
休(쉼); 그리고 事(일)
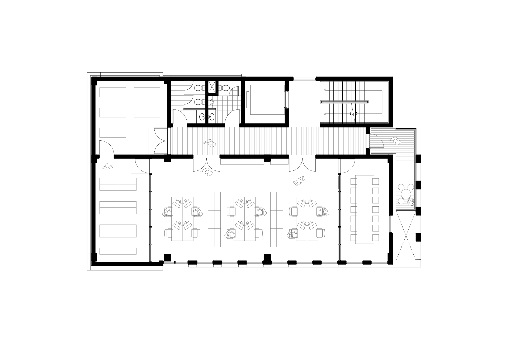
공영주차장 관리사무실은 주차 민원 업무와 주차 상황을 실시간 보고하는 곳이다. 많은 민원과 업무 중 잠깐의 휴식을 가질 수 있는 다양한 틈새 휴식 공간을 실내와 실외에 계획하였다. 차 한 잔과 담소를 나누며 산을 바라볼 수 있고, 날이 좋은 때는 테라스에 나가 따뜻한 햇빛 아래 바람을 느끼면서 북측 산을 볼 수 있도록, 일 속에서 잠깐씩 제대로 쉴 수 있는 휴식의 공간을 만들어 보고자 했다. 이곳에서 일하는 사람들, 그리고 이곳을 방문하는 사람들이 조금은 편하고 자연을 느낄 수 있도록 공간과 건물을 만들고자 했다.
동서로 길게 위치한 대지는 남측은 밝은 햇빛이, 북측은 초록의 녹지가 있는 곳에 위치한다. 사무실은 밝은 빛이 잘 들어오는 곳에 배치하고, 보안시설 및 외부와 차단이 필요한 시설은 독립적으로 배치했다. 인접한 주차장과 연계되도록 공영주차장과 직원 주차장은 인접하여 계획하였다. 출근하는 사람들과 민원인들이 좀 더 편안하게 접근하도록 도로변에 보행로를 만들어 연속적 보행 동선을 계획하였다. 또한 경제성을 고려하여 지상으로만 건물을 계획하였고, 대지의 조건인 옹벽을 유지한 상황으로 계획하였다.
차 한 잔과 담소를 나누며 산을 바라볼 수 있고, 날이 좋은 때는 테라스에 나가 따뜻한 햇빛 아래 바람을 느끼며 북측 산을 볼 수 있는, 일(事) 속에서 휴식(休)의 공간을 만들어 보고자 했다. 업무의 틈 사이로 들어간 휴식은 일하는 사람들의 업무 중 공간의 환기를 이끌어 낸다. 자칫 삭막해질 수 있는 사무 공간에 다양한 규모와 형태의 실내 그리고 실외 휴식 공간을 배치하여, 적극적으로 자연을 조망할 수 있고 이용자에게 쉼을 주는 새로운 업무 공간을 계획하고자 했다. 방문 혹은 업무 등 여러 목적을 가진 이용자가 공영주차장 관리사무실에서 쾌적함과 편리함을 느낄 수 있도록, 공영주차장 관리사무실을 만드는 것에 설계의 주안점을 두었다.












공영주차장 관리사무실 건립 설계공모
입상작_(주)와이건축사사무소
대표건축가 임수현
대지면적 1,180㎡
연면적 852.10㎡
건축면적 220.43㎡
건폐율 18.68%
용적률 72.21%
최고높이 18m
층수 지상 4층
구조 철근콘크리트구조
주차대수 23대
발주처 남양주시
'Plans' 카테고리의 다른 글
| 원산 오션뷰 스마트복합쉼터 설계공모 _ 당선작 / 아크토닉건축사사무소 (0) | 2025.06.17 |
|---|---|
| 원산 오션뷰 스마트복합쉼터 설계공모 _ 입상작(2등작) / 이로이도 건축사사무소 (0) | 2025.06.17 |
| 서울시 중랑구 묵1동 복합청사 건립 설계공모 _ 가작1 / 건축사사무소큐제이 (0) | 2025.04.30 |
| 평택중앙도서관 건립사업 국제설계공모 _ 당선작 / (주)선진엔지니어링종합건축사사무소 + 이아키텍츠서울 (0) | 2025.04.22 |
| 국가기록박물관 국제설계공모 _ 당선작 / (주)크레파스건축사사무소 (0) | 2025.03.28 |
마실와이드 | 등록번호 : 서울, 아03630 | 등록일자 : 2015년 03월 11일 | 마실와이드 | 발행ㆍ편집인 : 김명규 | 청소년보호책임자 : 최지희 | 발행소 : 서울시 마포구 월드컵로8길 45-8 1층 | 발행일자 : 매일



