
CS House
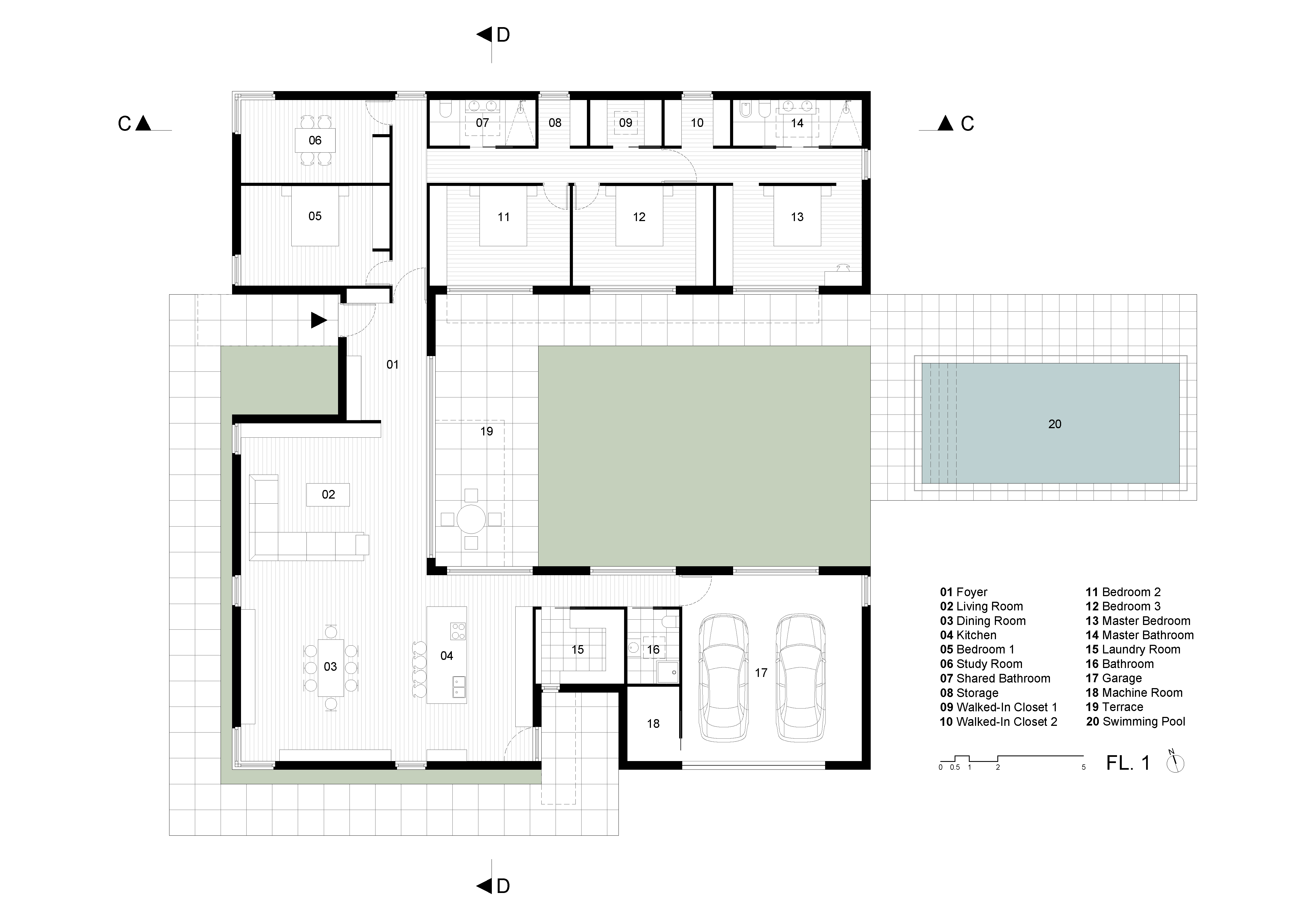
CS 하우스는 삼각형 대지 위에 지어진 젊은 가족을 위한 주택으로, 일상의 다양한 활동 속에서 가족이 어떻게 공간을 사용하는지를 합리적으로 탐색한 결과물이다. 포르투갈 아구에다 외곽의 준농촌 단독주택 지역에 위치한 이 대지는 도로보다 약간 높은 삼각형 형태이며, 그 중심에 정사각형 평면을 배치함으로써 단순한 직교형 매스를 형성하였다. 이 매스는 빛을 담는 용기로 기능하며, 특정한 위치에만 창을 내어 절제된 외관을 보인다.


건물은 U자 형태로 깎여 내부에 프라이빗한 안뜰을 만들었고, 이는 대지 끝에 자리한 별동 수영장과 연결된다. 이러한 구성은 공간의 명확한 기능 분배를 가능하게 하며, 안뜰을 중심으로 생활공간이 감싸는 구조를 통해 사생활 보호와 햇빛 조절을 동시에 달성하였다. 매스는 두 개의 모서리 창을 통해 절제된 외형에 변화를 주며, 내부 공간의 특수성을 강조한다. 도로를 향한 입면에는 통제가 강화된 개구부를 두고, 마당을 향해서는 열린 시각적 관계를 구축하여 아침부터 저녁까지 공간마다 다양한 빛의 변화를 누릴 수 있게 한다.


빛은 건축물의 내부와 외부, 재료 위를 통과하고 반사되며, 최소한의 마감과 단순한 형태, 재질감 속에서 강조된다. 특히 노출 콘크리트로 마감된 현관의 구조 요소들은 건물의 경계를 넘어 외부로 확장되는 인상을 주며, 단순한 매스 안에 공간의 깊이와 외부로의 연계를 동시에 구현하였다.






건축가 더블유에이엘에이에이 + 호르헤 곤잘레스 (WALAA + Jorge Gonzalez)
위치 포르투갈, 아구다
연면적 400㎡
준공 2024
대표건축가 Nuno Lobo, Jiangtong Wang
엔지니어 Luis Quintal – Engenharia, Lda
사진작가 Ivo Tavares Studio
'Architecture Project > Single Family' 카테고리의 다른 글
| 카지냐 다 멜호에이라 / 필리프 사라이바 아르키텍투스 (0) | 2025.05.13 |
|---|---|
| 과거와 현재를 연결한 리모델링 주택 / 주앙 티아구 아기아르 아키텍토스 (0) | 2025.05.12 |
| 사랑과 자연의 삶을 함께 담아내는 단독주택 / 샤토토 – 아키텍처 포 그린 리빙 (0) | 2025.04.21 |
| 리버쓰 머터리얼즈 하우스 / 하우스스케이프 디자인 랩 (0) | 2025.04.17 |
| 거미줄 모양의 지붕이 얹어진 주택 / 슈와르츠 앤드 아키텍처 (0) | 2025.04.16 |
마실와이드 | 등록번호 : 서울, 아03630 | 등록일자 : 2015년 03월 11일 | 마실와이드 | 발행ㆍ편집인 : 김명규 | 청소년보호책임자 : 최지희 | 발행소 : 서울시 마포구 월드컵로8길 45-8 1층 | 발행일자 : 매일



