
Amore -Omor Residence
AMORE는 두 명의 젊은 변호사 부부를 위한 주거 공간으로, 바쁜 일상에서 돌아온 그들이 음악, 예술, 자연, 반려동물과 함께 여유로운 삶을 누릴 수 있도록 설계되었다. 이 집은 단순한 사랑의 보금자리를 넘어, 부부의 감성적이고 다층적인 삶을 섬세하게 담아내는 구조이다.


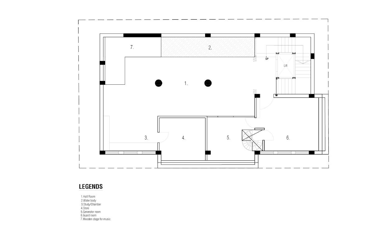
약 200㎡의 비교적 작은 대지 위에 건축가는 물리적 기능성과 감성적 요구를 모두 만족시키는 공간을 구현했다. 모든 공간은 실용성과 쾌적함을 중심으로 계획되었으며, 부부의 라이프스타일과 취향이 고스란히 반영되어 있다. 지하에는 음악 연습실이 마련되어 있으며, 천창으로 자연광이 스며들고 물소리가 감싸는 이곳은 하루의 피로를 풀어주는 감각적인 쉼터가 된다.



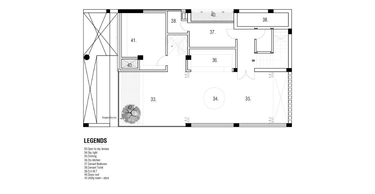
1층은 주차 공간이지만, 초록 정원과 수공간, 풍부한 자연 채광이 어우러진 로비가 함께 조성되어 있다. 로비 벽면에는 엄선된 예술 작품들이 전시되어 집의 첫인상부터 감성적이고 예술적인 분위기를 자아낸다. 전통적인 공간 배치에서 벗어나, 응접실과 같은 포멀한 공간은 상층에 배치되었으며, 이들은 하늘로 열린 테라스와 연결된다. 서쪽 햇살을 받으며 무성하게 자란 식물들은 생동감 있게 뻗어 나가며, 공간 자체를 삶의 방식에 대한 새로운 제안으로 승화시킨다. 3층에는 여름을 상징하는 붉은 꽃을 피우는 나무가 심어져 있다. 자연의 생동감과 계절의 아름다움을 시각적으로 체험하게 하며, 이 집에 열정과 활기를 더해준다.



AMORE는 단순한 주택이 아니라, 사랑과 일상, 예술과 자연이 어우러지는 감각적인 풍경이다. 기능성과 감성이 섬세하게 균형을 이루며, 매일 새로운 영감을 선사하는 이 집은 도시의 소음 속에서 조용한 안식을 찾는 이들에게 이상적인 거처가 된다.









건축가 샤토또 – 아키텍처 포 그린 리빙 (SHATOTTO - architecture for green living)
위치 방글라데시, 다카, 니쿤
용도 주택
연면적 145㎡
준공 2024
대표건축가 Prof Rafiq Azam
디자인팀 Antara Talukdar, Jamal Hossain Shaon, Anika Asif, Md. Kamrul Alam
인테리어 Ar. Zannat Jui
엔지니어링 Mohiminol Islam
구조 컨설턴트 Akter Hossen
사진작가 Junaid Hasan Pranto
'Architecture Project > Single Family' 카테고리의 다른 글
| 과거와 현재를 연결한 리모델링 주택 / 주앙 티아구 아기아르 아키텍토스 (0) | 2025.05.12 |
|---|---|
| 젊은 가족을 위한 단독주택 / 더블유에이엘에이에이 + 호르헤 곤잘레스 (0) | 2025.05.08 |
| 리버쓰 머터리얼즈 하우스 / 하우스스케이프 디자인 랩 (0) | 2025.04.17 |
| 거미줄 모양의 지붕이 얹어진 주택 / 슈와르츠 앤드 아키텍처 (0) | 2025.04.16 |
| 비둘기와 함께하는 집 / 슈와르츠 앤드 아키텍처 (0) | 2025.04.15 |
마실와이드 | 등록번호 : 서울, 아03630 | 등록일자 : 2015년 03월 11일 | 마실와이드 | 발행ㆍ편집인 : 김명규 | 청소년보호책임자 : 최지희 | 발행소 : 서울시 마포구 월드컵로8길 45-8 1층 | 발행일자 : 매일



