
SAG-AFTRA Center for Performing Artists
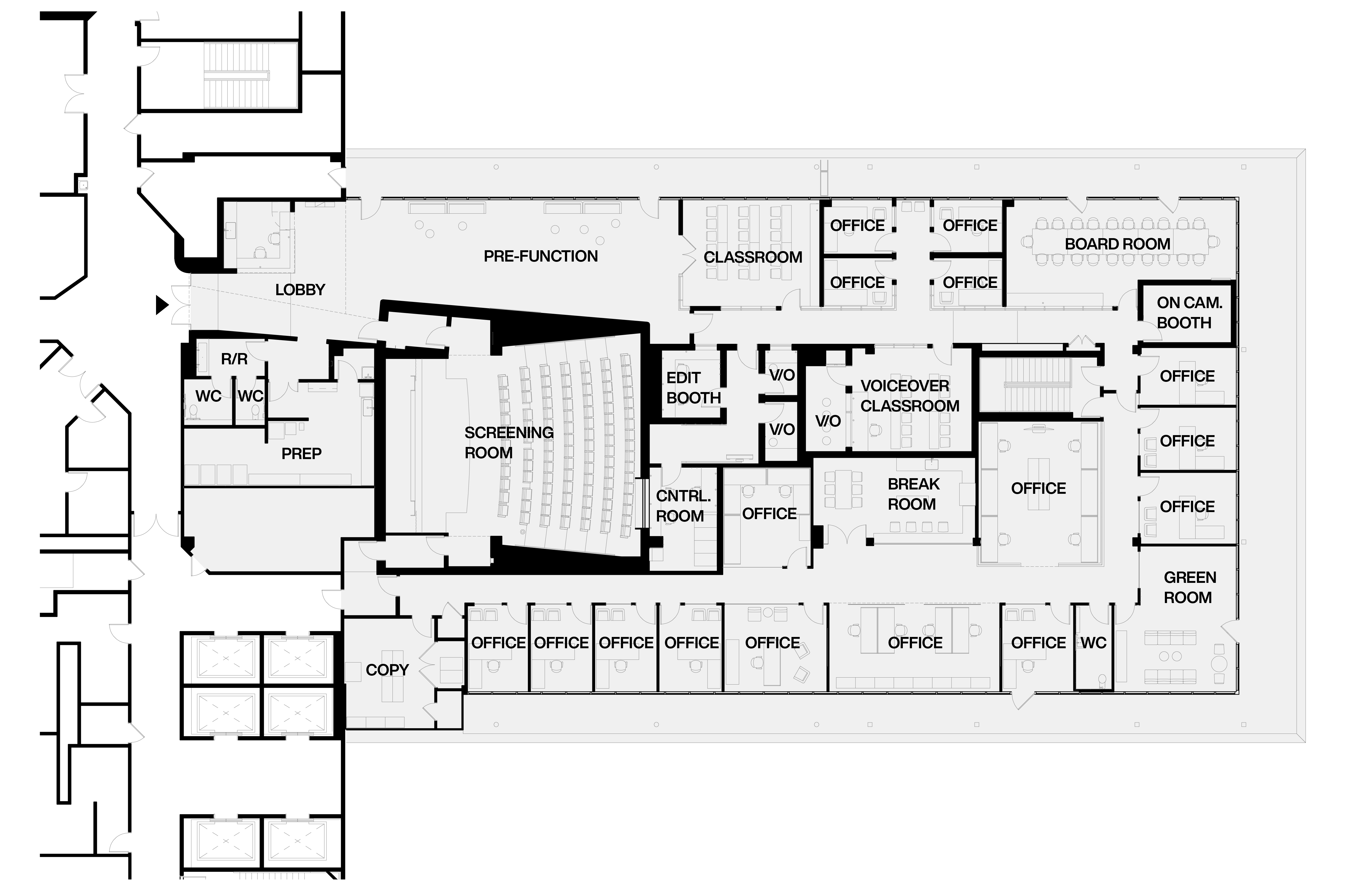
이 프로젝트는 1949년 Wurdeman & Becket이 설계한 Museum Square 건물의 펜트하우스에 위치해 있다. 약 340평 규모의 이 공간은 배우, 성우, 교육자, 영화 산업 종사자들이 창작과 교류를 위해 모일 수 있는 중요한 중심지로 기능한다. 공간은 크게 재단 사무실, 교육 공간, 상영관으로 구성되어 있으며, 각 공간은 창의성을 자극하고 공동체의 결속을 이끌어낼 수 있도록 섬세하게 설계되었다.


건물의 10층 입구에 들어서면, 우드 템버보드로 마감된 벽면과 유리문이 방문객을 로비로 안내한다. 건축가는 짙은 붉은색 벽과 맞춤 제작한 천장 조명을 통해 극적인 환영의 느낌을 연출했다. 새로 설치된 화장실과 케이터링 팬트리, 서빙 공간은 로비 양옆에 배치되어 있고, 천장부터 바닥까지 이어지는 창문을 통해 할리우드 힐스의 전망을 한눈에 감상할 수 있다. 로비 끝에는 거울 벽을 두어 자연광을 극대화했으며, 가변형 유리문을 통해 대형 강의실과 직접 연결되도록 하여 다양한 행사가 유연하게 열릴 수 있도록 계획되었다.


이 센터의 중심 공간은 100석 규모의 상영관이다. 우드 템버보드로 마감된 이 쥬얼 박스 극장은 아늑하면서도 고급스러운 관람 경험을 제공하며, 재단은 이 공간에서 다양한 업계 행사 및 영화 상영회를 개최할 수 있다. 교육 공간은 로비와 직접 연결되어 있어 수업이나 프로그램 참가자들이 편리하게 이동할 수 있으며, 건축가는 이 구역을 무대 뒤 장면처럼 상상하여 복도는 짙은 색조로 마감하고 붉은 조명 기구를 활용해 셀룰로이드 필름의 가장자리를 연상시키는 시각적 리듬을 더했다.

복도 중앙에는 사회복지 서비스 및 교육자들을 위한 사무공간이 마련되어 있으며, 성우 스튜디오, 온카메라 스튜디오, 녹음 부스 등과의 접근성이 뛰어나다. 그 외에도 기술 실습실, 편집실, 대형 회의실이 갖춰져 있어 다양한 교육과 창작 활동이 유기적으로 이루어질 수 있다.

재단 사무실은 펜트하우스 남쪽에 위치하며, 개방형과 독립형 업무 공간이 함께 구성되어 있다. 이는 상영관 및 교육 공간과의 긴밀한 연계를 돕는다. 사무공간 중앙에는 넓은 직원 휴게실이 있고, 코너에는 자연광이 들어오는 그린룸이 마련되어 방문하는 예술가들에게 쾌적한 환경을 제공한다. 교육 구역의 어두운 분위기와 달리, 이 사무 공간은 밝고 개방적인 분위기를 가지며, 공간 전반에 걸쳐 동일한 조명 언어를 사용해 전체적인 통일감을 유지했다.

건축가 베스트 프랙티스 아키텍처(Best Practice Architecture)
위치 미국, 로스엔젤레스
프로젝트면적 12,200sf2
구조엔지니어 Silman Structural Solutions
MEP엔지니어 Derive Engineers
조명 Dark | Light Design
사진작가 Rafael Soldi
'Interior Project > Other' 카테고리의 다른 글
| 살롱 인 야쓰가타케 / 타키비 (0) | 2025.07.04 |
|---|---|
| 울산 강동 트레이닝센터 / 심플렉스 건축사사무소 (0) | 2025.06.16 |
| 윈터서커스 / 오와이오 아키텍츠 (0) | 2025.02.07 |
| 무한한 대비와 켜가 그리는 공간 / 엑스 플러스 리빙 (0) | 2025.02.04 |
| 엠 빌딩 / (주)엘케이에스에이 건축사사무소 (0) | 2025.01.24 |
마실와이드 | 등록번호 : 서울, 아03630 | 등록일자 : 2015년 03월 11일 | 마실와이드 | 발행ㆍ편집인 : 김명규 | 청소년보호책임자 : 최지희 | 발행소 : 서울시 마포구 월드컵로8길 45-8 1층 | 발행일자 : 매일



