
Meadows Primary School
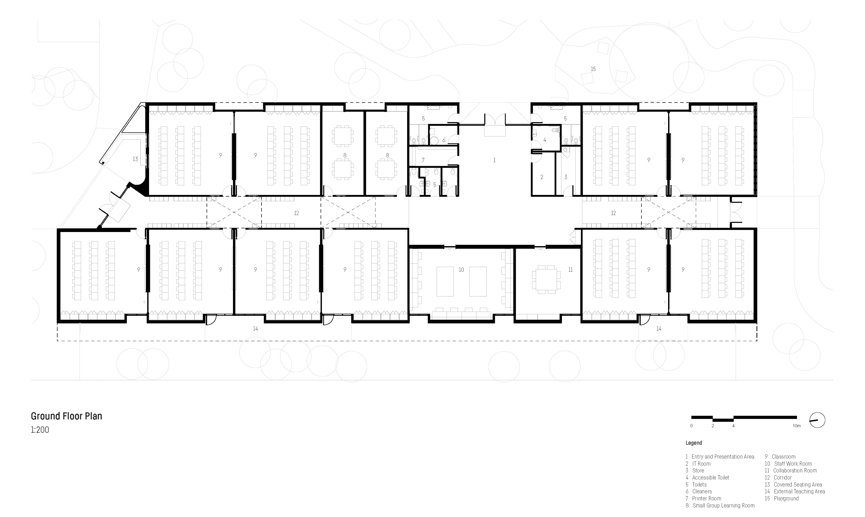
메도우즈 초등학교의 새로운 교실 건물은 200명의 학생을 위한 학습 공간으로, 이민자 가정 출신 학생들이 다수인 학교의 특성을 반영하여 설계되었다. 기존 개방형 학습 공간에서 소음과 시각적 요소로 인해 집중력이 흐트러지는 문제가 있었던 만큼, 새로운 건물은 차분하고 안정적인 환경을 조성하는 데 중점을 두었다. 학교와 지역사회 간의 연결도 강화되었다. 새로운 공간은 학생과 가족을 지원하는 복지 서비스와 연계되어 학업뿐만 아니라 정서적·사회적 필요도 충족할 수 있도록 설계되었다. 교사들은 학생들의 학업 및 정서적 요구를 더욱 효과적으로 지원할 수 있게 되었으며, 학생들의 행동과 전반적인 웰빙이 개선되었다는 평가를 받았다.



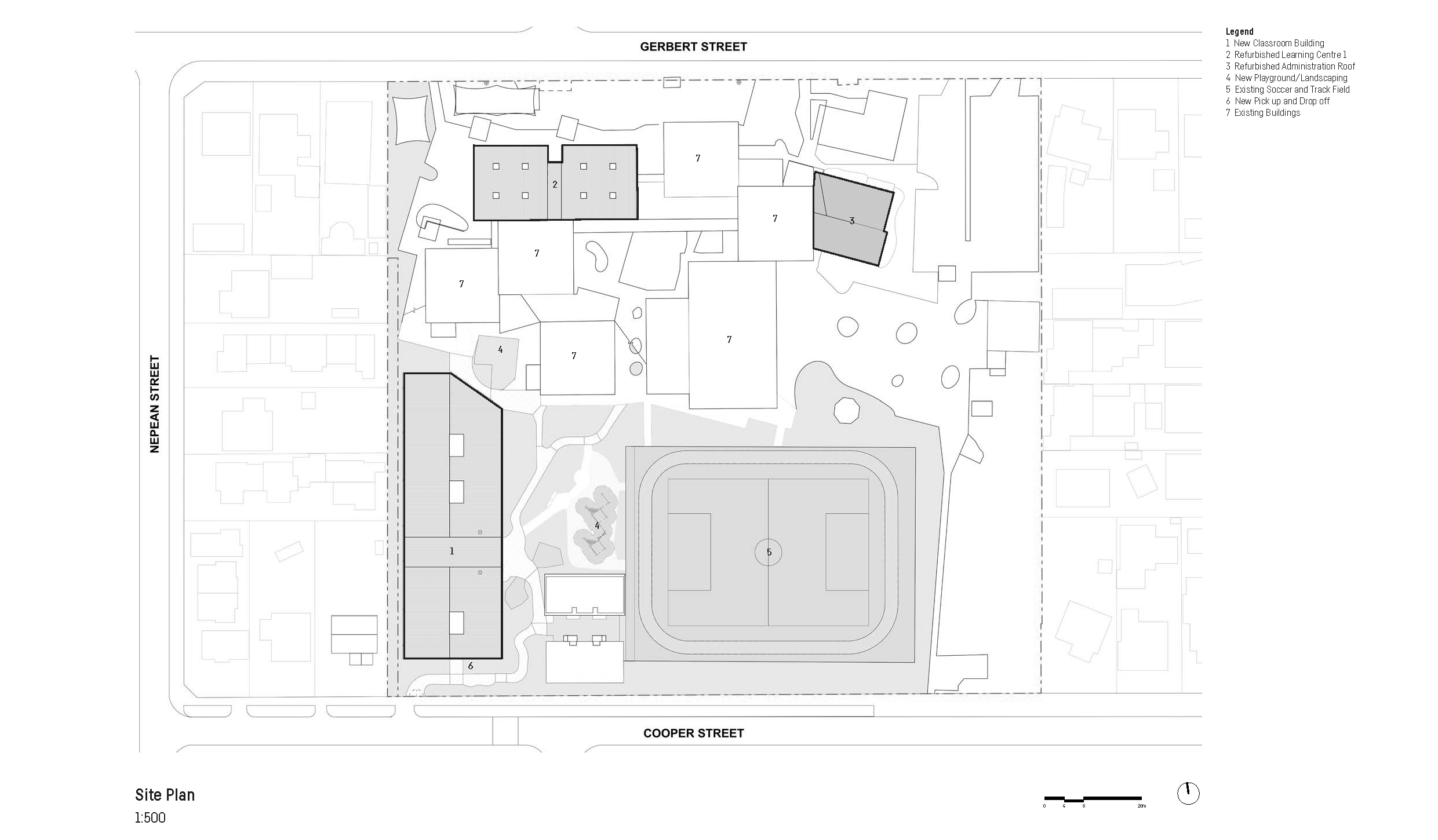
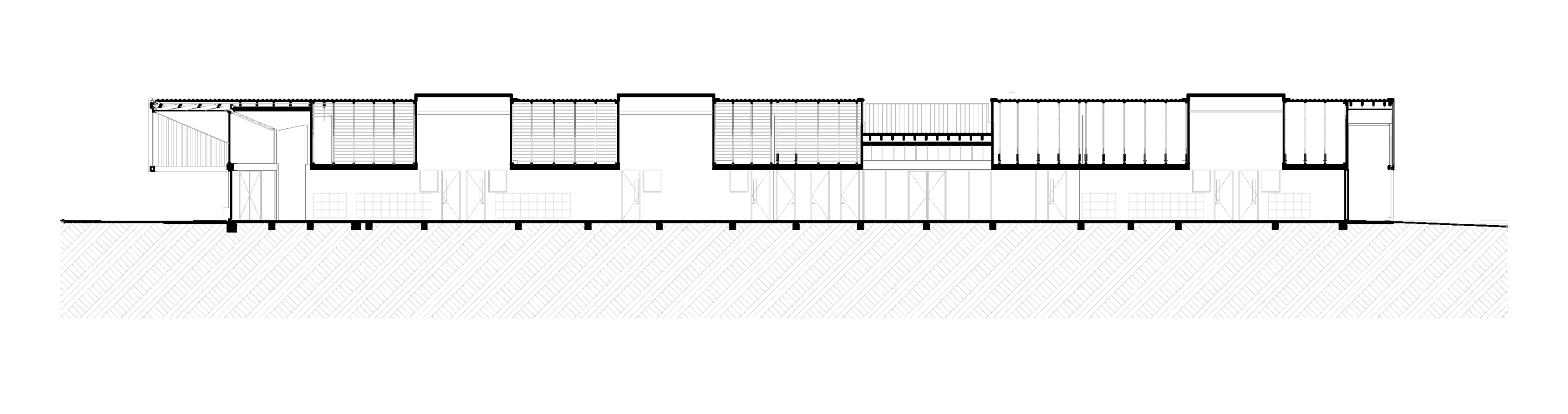
새로운 교실 건물은 캠퍼스 남서쪽 코너에 배치되어 기존 건물과 운동장 사이의 협소한 공간을 효과적으로 활용했다. 인근 주거 지역과 조화를 이루는 박공지붕 형태를 적용했으며, 서쪽에는 넓은 처마를 두어 차양 기능을 강화했다. 북쪽에는 금속 스크린과 덮개가 있는 야외 좌석 공간을 조성하여 학생들이 편안하게 쉴 수 있도록 했다. 동쪽 출입구는 천창을 활용하여 자연광을 실내로 유입시키면서도 명확한 출입 동선을 제공했다.


재료 선정에서는 내구성과 실용성을 최우선으로 고려했다. 벽돌 마감과 검은색 창 프레임이 조화를 이루며, 외장재는 부드러운 확산광을 제공하여 출입구 공간을 밝게 연출했다. 또한, 태양광 반사 효과를 극대화한 회색 컬러본드 지붕을 적용하여 주변 건물과 조화를 이루었다. 환경 지속 가능성도 중요한 요소였다. 건물의 단열 성능을 극대화하고, 자연 채광과 환기를 적극 활용했다. 건물 전반에 걸쳐 에너지 절약형 설비와 친환경 마감재를 적용했다. 결과적으로, 메도우즈 초등학교의 새로운 교실 건물은 단순한 학습 공간을 넘어 지역사회와 연결된 포용적인 환경을 제공하는 중요한 교육 시설로 자리 잡았다.









건축가 프로젝트 12 아키텍처(Project 12 Architecture)
위치 호주, 빅토리아, 브로드메도우스
용도 교육시설
건축면적 1,270㎡
구조엔지니어 OPS Engineers
조경 Simon Ellis Landscape Architects
시공 Alchemy Construct Pty Ltd
사진작가 Rory Gardiner, Glenn Hester
'Architecture Project > Education' 카테고리의 다른 글
| 학문의 허브를 꿈꾸는 대학교 캠퍼스 / 씨씨비에이 디자인즈 (0) | 2025.04.21 |
|---|---|
| 병영부지 안에 세워지는 물결무늬 대학 캠퍼스 / 마리오 쿠치넬라 아키텍츠 (0) | 2025.04.10 |
| 관목지대에 걸터앉은 등대같은 공간, 카우스 초등학교 체육관 / 프로젝트 12 아키텍처 (0) | 2025.04.02 |
| 나무 속의 학교 / 에이치이엠에이에이 아키텍츠 (0) | 2025.03.28 |
| 아궁산 모양 지붕이 앉은 교육 공간 / 윌스 쿠수마 아키텍츠 (0) | 2025.03.27 |
마실와이드 | 등록번호 : 서울, 아03630 | 등록일자 : 2015년 03월 11일 | 마실와이드 | 발행ㆍ편집인 : 김명규 | 청소년보호책임자 : 최지희 | 발행소 : 서울시 마포구 월드컵로8길 45-8 1층 | 발행일자 : 매일



