
글로우(GLOW)는 투명함과 반짝임을 주요 아이덴티티로 내세운 화장품 브랜드이다. 건축가는 외부 포함 약 11평 규모의 공간과 가로수길의 작은 골목 안쪽의 제한된 입지 조건속에서 글로우의 색감과 아이덴티티를 확실히 드러내고 사람들의 시선을 사로잡는 쇼룸 디자인을 목표로 삼았다.



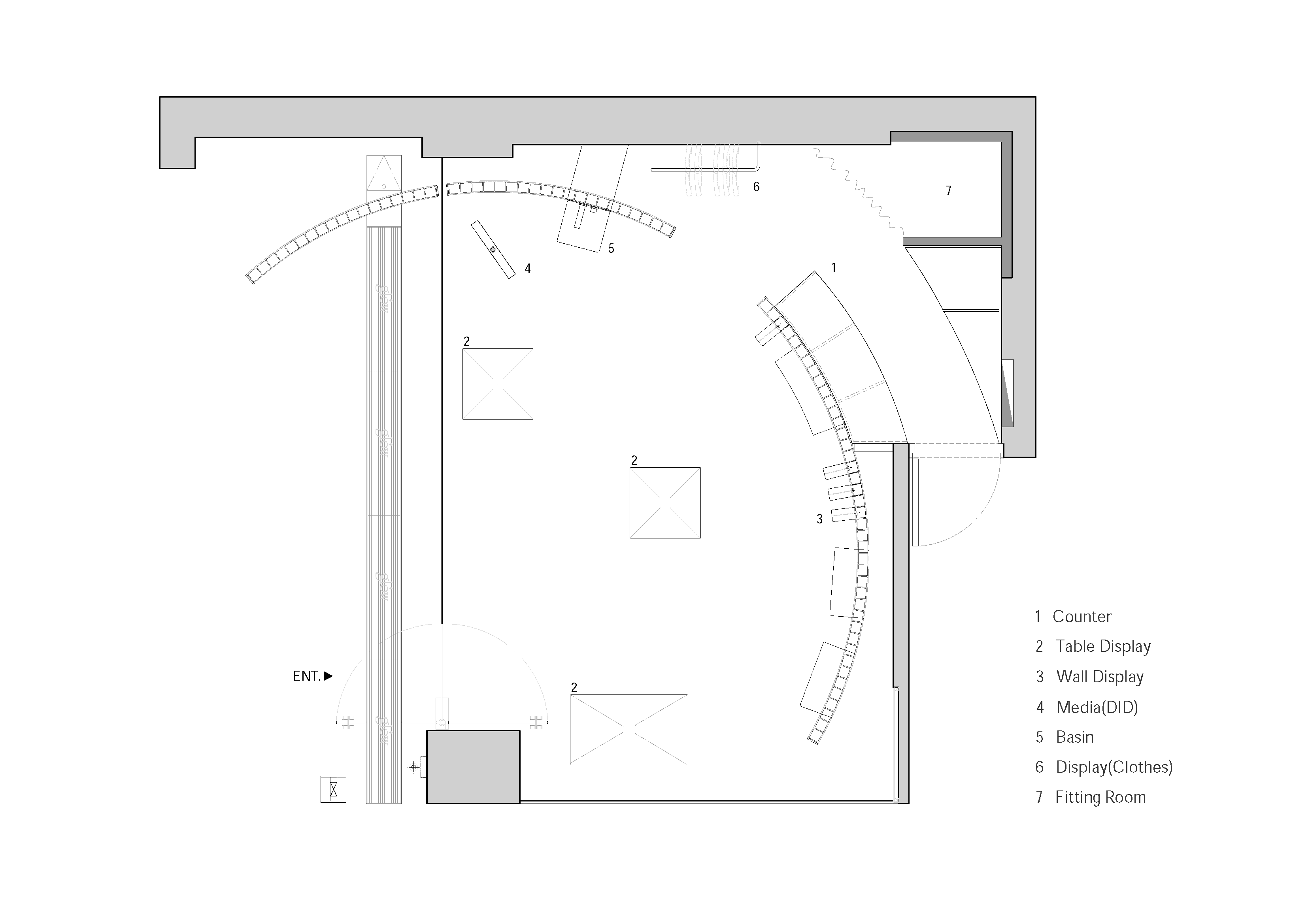
브랜드 아이덴티티를 공간에 반영하기 위해 주요 재료를 유리로 선택했다. 투명한 유리를 활용해 실내와 실외의 경계를 허물었으며 바닥 타일, 천장, 벽체까지 연결해 작은 7평의 공간을 외부까지 하나의 흐름으로 이어지는 느낌을 구현했다. 특히, 외ㆍ내부를 가로지르는 곡선형 유리벽체는 공간의 중심적인 건축적 장치로, 멀리서도 시선을 사로잡아 자연스럽게 시선을 내부로 이끌며 내부 공간을 자연스럽게 분리해 손님과 직원 동선을 구분하는 역할도 한다. 유리벽체 뒤쪽에는 탈의실과 카운터를 배치해 프라이버시를 보장하고 앞쪽 공간은 상품 전시 공간으로 활용된다.


마지막으로, 글로우 심볼을 활용한 아크릴 손잡이와 브랜드 로고가 새겨진 그레이팅 같은 세심한 디테일을 쇼룸 곳곳에 담아 브랜드 정체성의 통일감과 공간의 완성도를 더욱 높였다. 글로우 쇼룸은 접근성이 제한된 작은 공간을 브랜드 아이덴티티를 극대화해 시각적이고 기능적인 공간으로 탈바꿈한 프로젝트이다. 인디살롱 특유의 유연한 설계와 창의적인 아이디어로 쇼룸은 단순한 전시 공간을 넘어, 브랜드의 가치를 오롯이 전달하는 현대적이고 세련된 공간이 된다.

건축가 인디살롱(Indiesalon)
위치 서울시 강남구 신사동
프로젝트면적 36㎡
준공 2024
대표건축가 장석준
디자인팀 최건욱, 홍성현, 김원나, 강지수
시공 임현명
발주자 Glow
사진작가 김동규
'Interior Project > Retail' 카테고리의 다른 글
| 파도처럼 흐르는 벽을 가진 매장 / 텐스 아뜰리에 (0) | 2025.04.02 |
|---|---|
| 과거와 현재의 미학이 조화를 이루는 영감의 도시 / 펀 커넥션 (0) | 2025.03.31 |
| 다채로운 위요가 만드는 공간 / 텐스 아틀리에 (0) | 2025.02.28 |
| 구부러지고 흐르며 연결하는 공간 / 하야오 오다기리 아키텍츠 (0) | 2025.02.18 |
| 책으로 만든 벽과 음악으로 직조된 곳 / 엘 데파르타멘토 (0) | 2025.02.14 |
마실와이드 | 등록번호 : 서울, 아03630 | 등록일자 : 2015년 03월 11일 | 마실와이드 | 발행ㆍ편집인 : 김명규 | 청소년보호책임자 : 최지희 | 발행소 : 서울시 마포구 월드컵로8길 45-8 1층 | 발행일자 : 매일



