
본질의 치유 공간, 원스클리닉
환자와의 소통을 통해 치유의 본질에 다가가고자 하는 One’s Clinic은 스스로 회복이 가능하도록 질병을 넘어 라이프 스타일을 관리하는 주치의의 철학을 지향하는 가정의원이다. 이곳을 찾아오는 모두를 귀하게 대접하고 싶다는 주치의의 말을 시작으로 치료의 진정한 목적에 대한 그들의 사유 지점을 연결하여 치유의 순수성 속 One’s Clinic의 정체성을 공간에 담아내고자 했다.


건축가는 단순한 공간 안에 내재되어있는 명상적인 분위기가 표현되기를 바랐다. 이는 시각적 절제를 통해 사용자가 고요함과 그 순도에서 '본질적인 치유'를 느끼길 바랐기 때문이다. 내부로 들어서면 조명이 비춤으로써 기둥의 열주와 끝없이 이어진 복도를 마주하게 된다. 이렇게 표현된 몰입감은 치유의 공간으로 진입하는 방향을 안내한다. 이 단순함과 묵직함은 비어있음으로 환자를 이끌며 공허의 터를 만든다. 공허의 터와 마주하는 대면의 공간은 질감으로 점철된 바탕으로 강세를 주며 공간에 색을 부여함으로 환자와 교류한다. 공간의 곳곳에 있는색채는 일상 속 평온의 휴식처를 뜻한다. 공간을 이동함에 따라 색의 위치는 가구 또는 벽으로옮겨가며 안 팎의 경계를 흐리고 공간에 몰입할 수 있도록 돕는다.


나선형으로 이어지는 계단을 따라 내려가면 은은하고 짙은 색을 띄는 끝이 불분명한 복도를 마주한다. 그 너머 간극의 공간은 순수한 형태의 전이공간으로서 고요함으로 치유에 몰입하게 한다. 낮은 수평으로 뻗어진 가로선과 섬세하게 세로로 뻗어진 금속 축은 기능을 넘어 그 자체로의 형태를 공간에 새겼다.


건축가 백에이어소시에이츠 (100A associates)
위치 서울특별시, 강남구, 압구정로
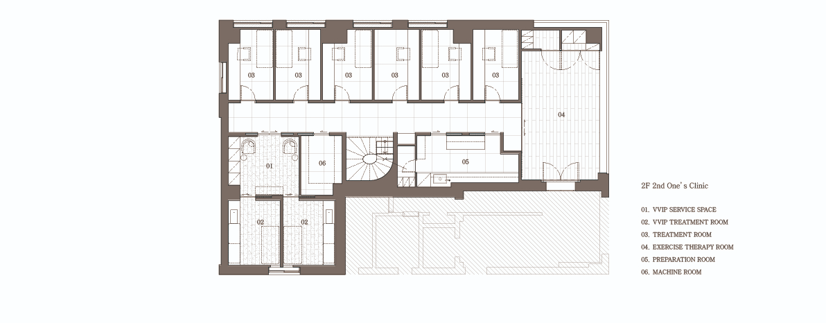
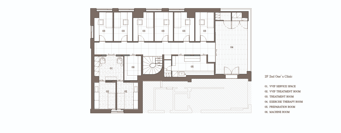
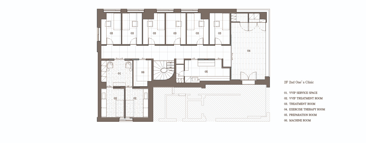
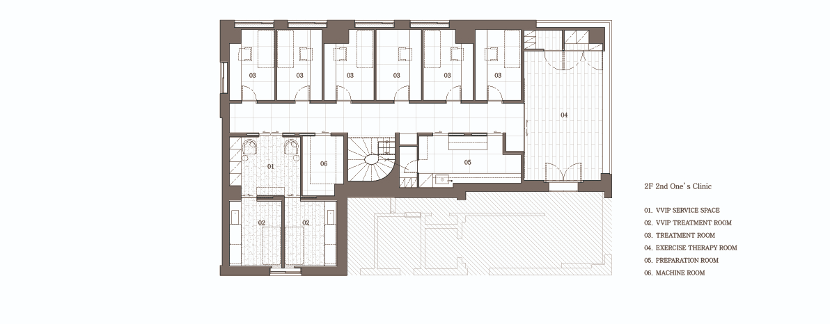
연면적 423.99㎡
규모 지상 2층
설계기간 2023.8. - 10.
시공기간 2023.10 - 12.
준공 2023. 12.
대표건축가 박솔하, 안광일
프로젝트건축가 박솔하,안광일
디자인팀 김민정, 홍서연
시공 백에이어소시에이츠
발주자 원스클리닉
사진작가 김재윤
'Interior Project > Healthcare' 카테고리의 다른 글
| 여백으로 완성된 치유의 공간, 더 결 의원 / 디자인스튜디오 모노 (0) | 2025.10.30 |
|---|---|
| 예술을 통해 치유하는 국제 메디컬 센터/ 윗 디자인 & 리서치 (0) | 2025.07.28 |
| HISPA (0) | 2024.09.24 |
| Psychology Center (0) | 2024.08.22 |
| ARK Club (0) | 2024.08.14 |
마실와이드 | 등록번호 : 서울, 아03630 | 등록일자 : 2015년 03월 11일 | 마실와이드 | 발행ㆍ편집인 : 김명규 | 청소년보호책임자 : 최지희 | 발행소 : 서울시 마포구 월드컵로8길 45-8 1층 | 발행일자 : 매일



