
이 건물의 긴 측면은 북동쪽과 남서쪽을 향하고 있습니다. 지하에는 두 개의 원래 부지(약 2,500 m²)를 거의 덮을 수 있는 공간이 마련되었으며, 그 중 일부는 플라타너스 나무가 있습니다. 1층은 투명한 유리 파사드를 갖춘 공간으로, 건물의 외부와 내부가 자연스럽게 연결되도록 디자인되었습니다. 출입구는 건물 내부의 공공 공간과 연결되는 교량과 같은 역할을 하는데, 학생들과 지역 주민들이 상호작용할 수 있도록 돕습니다.





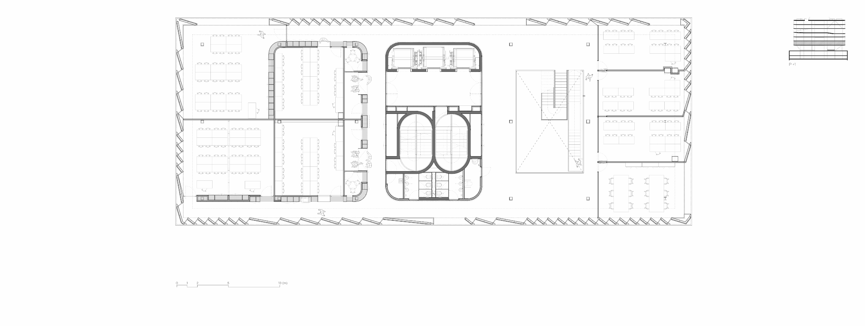
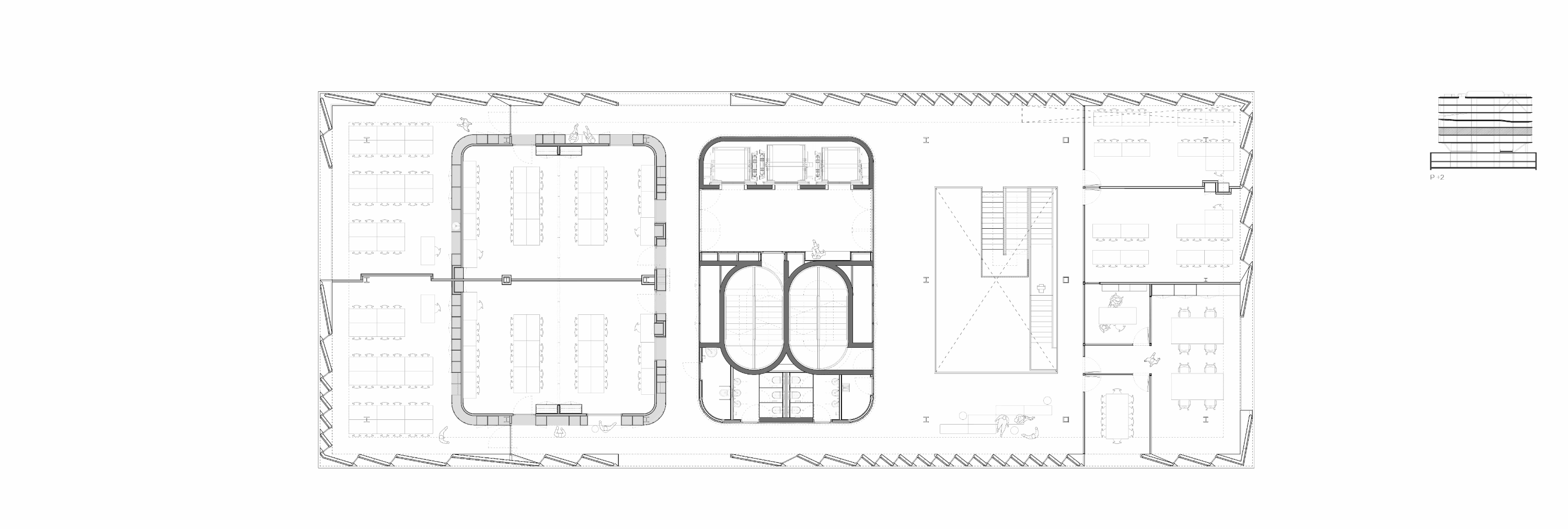
이 건축물은 '수직 캠퍼스'로 설계되어 3,000명의 학생들을 수용할 수 있습니다. 지상에는 교실, 실습 스튜디오, 행정 사무실, 도서관, 학생 공간이 있습니다. 순환 통로는 건물 외벽을 따라 있으며, 이 통로는 태양광 차단, 사회적 공간, 작업 공간, 전시 공간의 역할을 동시에 합니다. 파사드의 리듬은 실내와 실외를 구분 짓는 경계를 흐리게 하여, 통로를 몰입감 있는 공간으로 만들어줍니다. 지하에는 학생들을 위한 넓고 개방된 공간으로, 다양한 활동을 위해 두 개의 대형 홀과 함께 작업 공간, 실험실 등이 있습니다. 이 공간은 자연광이 두 배 높이 층고를 통해 들어오며, 위층의 채광창을 통해 빛이 비춰집니다. 3층에서 5층까지는 외벽을 따라 감싸는 순환 통로가 '고층 광장'과 연결됩니다. 이 광장은 직사광선을 피할 수 있도록 지붕이 있는 공간으로, 바람과 함께 바다의 전망을 즐길 수 있습니다.

이 건물은 주변 환경에 반응하는 디자인으로, 지오메트리(형태)는 태양광 제어 장치로 기능합니다. 톱니형 파사드는 다섯 개의 크기가 다른 모듈로 결합되어 있습니다. 직사광선을 차단해 눈부심을 방지하고, 간접광을 최대화합니다. 외벽은 3mm 알루미늄 패널로 구성되어 있으며, 반투명 분체 코팅을 통해 금속의 질감과 반사성을 유지합니다. 내부는 흰색 합판으로 마감되어 있습니다. 알루미늄 재료는 건물이 주변 환경과 잘 어우러지도록 도와줍니다.





건축가 서큘러 스튜디오 (Circular Studio)
위치 스페인, 바르셀로나
프로젝트면적 11,740.19㎡
규모 지하 2층, 지상 7층
대표건축가 Ivan Serrano Vidal, Fernando Ansorena Marenco
디자인팀 Victor Ruíz, Íñigo Ocamica, Aina Santanach
조경 Circular Studio + SBS - Simón y Blanco SLP
시공 Constructora del Cardoner SA
사진작가 JULIO MESA, PEDRO NOGUERA
'Architecture Project > Infrastructure' 카테고리의 다른 글
| 방배숲환경도서관 / 인시추 건축사사무소 + (주)종합건축사사무소 가람건축 (0) | 2025.04.07 |
|---|---|
| 단순함이 만드는 공공공간 / 베어 아키텍츠 (0) | 2025.03.06 |
| Blue M Tec Pyeongtaek Logistics Center (0) | 2024.10.28 |
| HELLO Gas Pavilion (0) | 2024.05.24 |
| Baltimore Bend Playground (0) | 2024.05.20 |
마실와이드 | 등록번호 : 서울, 아03630 | 등록일자 : 2015년 03월 11일 | 마실와이드 | 발행ㆍ편집인 : 김명규 | 청소년보호책임자 : 최지희 | 발행소 : 서울시 마포구 월드컵로8길 45-8 1층 | 발행일자 : 매일



