
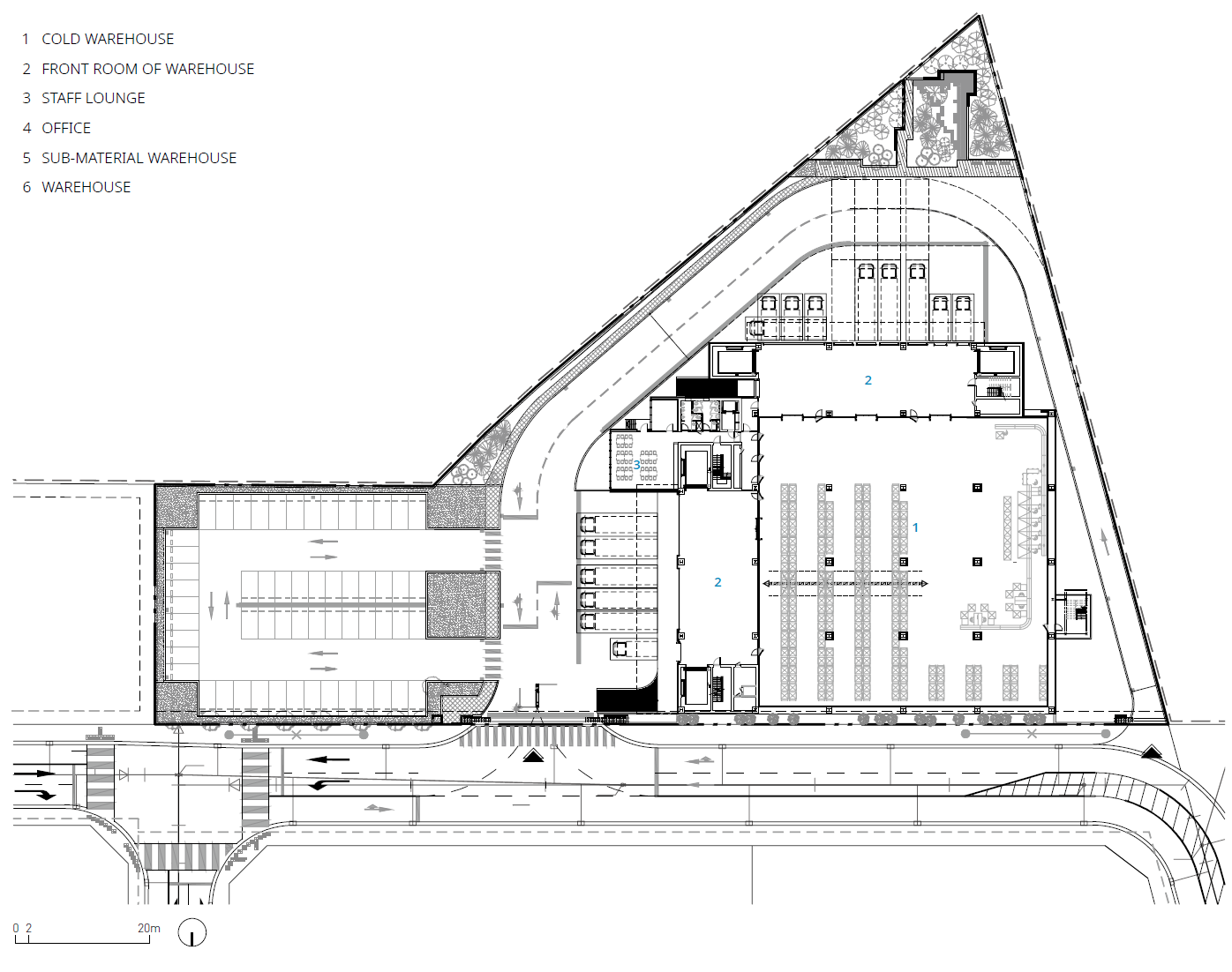
블루엠텍 평택물류센터 드림 1호는 의약품 전문 물류센터로 평택드림테크 산업단지 내에 위치해 있으며, 평택파주고속도로 어연IC를 통해 접근이 가능하다. 대지의 북측은 드림산단로에 면하고 남측은 마을과 접하는 동서로 긴 삼각형의 형태이다. 이러한 대지의 형태를 반영하여 도로에 면한 서측으로는 수평 증축을 고려한 유보 대지에 주차 공간을 만들었고, 서측과 남측에는 화물 차량이 접근 가능한 로딩 데크를 계획했다. 남측의 삼각형 모서리에 해당하는 대지에는 효과적인 조경 계획을 통해 운송 노동자들의 휴게 공간을 마련했다.
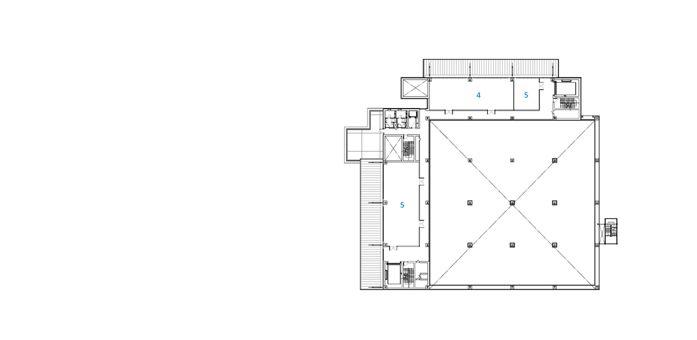
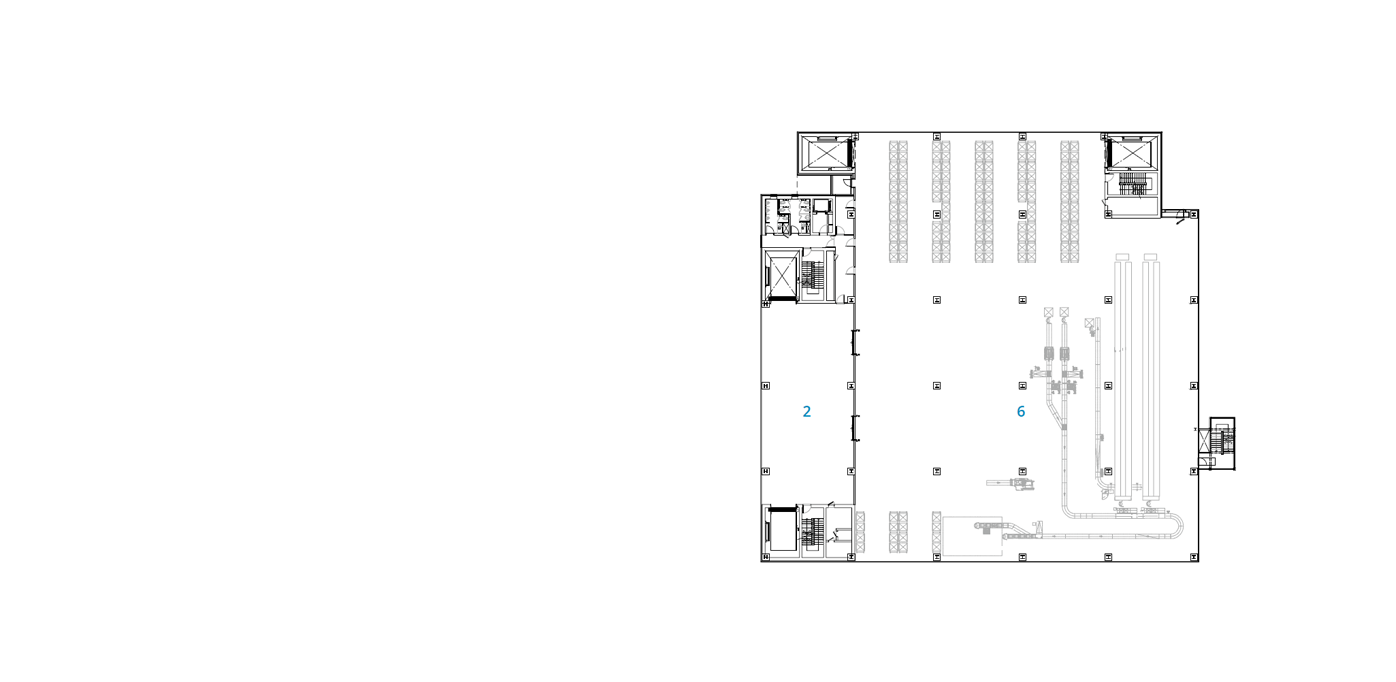
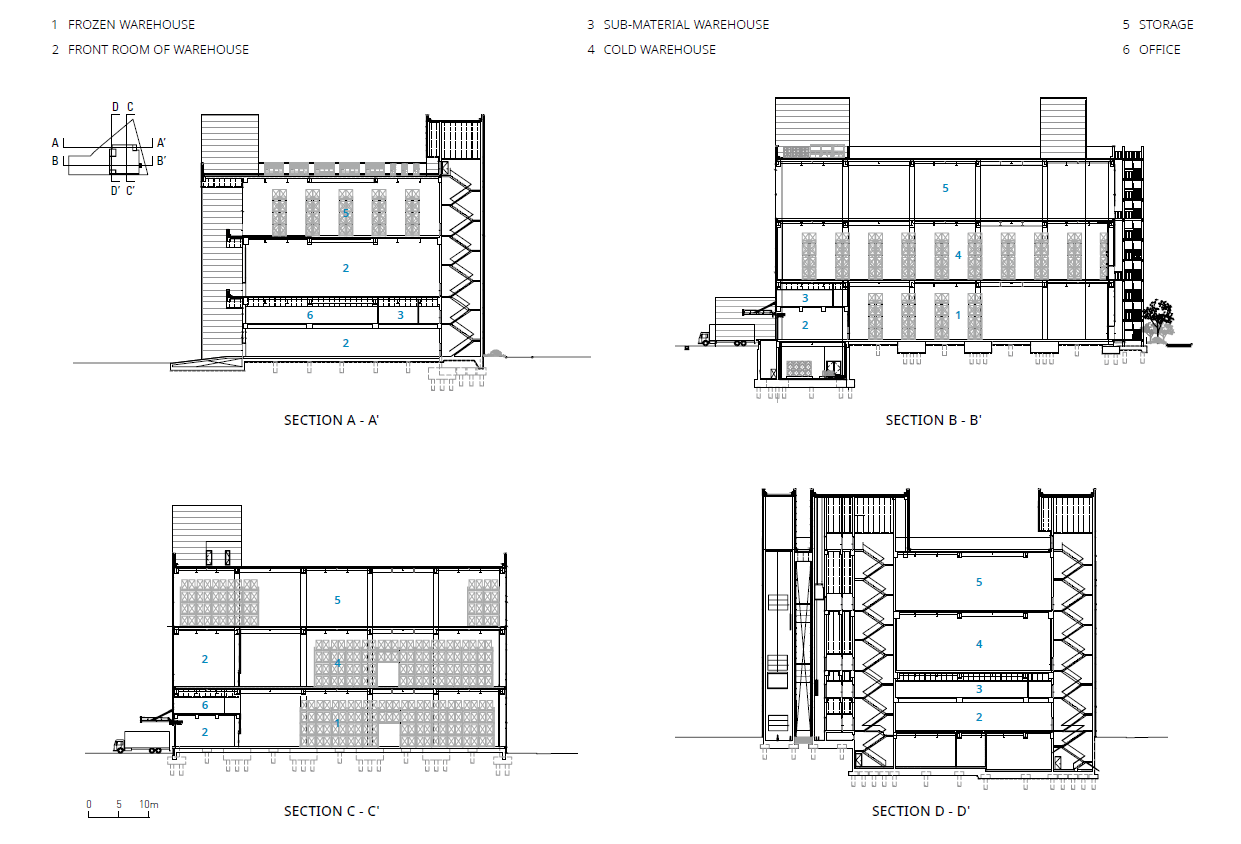
일반적인 물류창고는 화물 차량의 직접 접근을 고려한 로딩 데크를 각층에 설치한다. 블루엠텍 평택물류센터 드림 1호는 의약품 전문 물류창고로, 반입 시에는 대형 물품, 반출 시에는 소형 물품이 된다는 특징을 지닌다. 건축가는 이러한 특징을 고려하여 반입과 반출 로딩 데크와 화물용 대형 엘리베이터를 각각 분리하여 원활한 화물 반출입이 가능하게 했다. 지상 1층과 2층에는 중층을 설치해 업무시설로 활용하였는데, 지상 4층 규모의 정육면체 형태의 공간 안에 지상 3층 규모의 층을 형성하며 대공간을 형성하였다.
건축가는 지명 설계공모부터 실시설계까지 진행하며 몇 가지 설계 변경 사항을 검토해야 했다. 초기에는 대지에서 건축할 수 있는 규모와 건축주가 필요로 하는 면적을 고려하여 수평, 수직 증축이 가능한 볼륨 계획을 수립해야 했다. 건축물의 규모는 기본 설계와 실시설계를 거치며 건축주가 필요로 하는 규모만을 우선 건축하는 방향으로 결정했다.
한편, 경관심의 과정에서 건축주의 요구사항에 따라 가장 많은 변경 사항이 적용된 부분은 입면 계획이었다. 당초 제안은 알약의 다양한 색상을 입면에 적용하여 의약품 물류창고로서 아이덴티티를 확보하는 것이었다. 건축주는 홍보효과를 위해 공장 외벽면에 몬드리안 회화를 적용할 것을 요구했다. 이에 따라 건축가는 회화를 건축적으로 적용할 수 있는 방안을 고민해야 했다. 그 결과, 몬드리안 구성을 건축물 외벽에 적용하였고 정육면체의 매스가 하나의 회화처럼 보이도록 두 면을 연결하여 입체적인 구성으로 계획했다.















건축가 플라건축사사무소
위치 경기도 평택시 청북읍 율북리
용도 창고시설
대지면적 8,733.12㎡
건축면적 3,278.13㎡
연면적 10,293.89㎡
규모 지하 1층, 지상 4층
건폐율 37.54%
용적률 117.87%
준공 2023. 6.
구조 철골철근 콘크리트조
대표건축가 정준철
프로젝트건축가 (플라 건축사사무소)정준철 / (건축사사무소 문화공장)김재훈
디자인팀 (플라 건축사사무소)신나영
발주자 (주)블루엠텍
사진작가 이남선
해당 프로젝트는 건축문화 2024년 10월호(Vol. 521)에 게재되었습니다.
The project was published in the October, 2024 recent projects of the magazine(Vol. 521).
October 2024 : vol. 521
Contents : COMPETITION : RECENT PROJECTSilver for Rest / so-ul architects은빛 숲 / 소을건축사사무소Ginkgo Gallery / MORE Architecture긴코 갤러리 / 모어 아키텍처The April House / YAYArchitects사월애가(四月愛家) / (주
anc.masilwide.com
'Architecture Project > Infrastructure' 카테고리의 다른 글
| 단순함이 만드는 공공공간 / 베어 아키텍츠 (0) | 2025.03.06 |
|---|---|
| 은빛 물결이 넘실대는 곳 / 서큘러 스튜디오 (0) | 2025.01.31 |
| HELLO Gas Pavilion (0) | 2024.05.24 |
| Baltimore Bend Playground (0) | 2024.05.20 |
| PTT Saraphi Gas Station (0) | 2023.12.26 |
마실와이드 | 등록번호 : 서울, 아03630 | 등록일자 : 2015년 03월 11일 | 마실와이드 | 발행ㆍ편집인 : 김명규 | 청소년보호책임자 : 최지희 | 발행소 : 서울시 마포구 월드컵로8길 45-8 1층 | 발행일자 : 매일



