
비엘 빌딩은 건축법상의 제약 속에서도 대지가 가진 매력을 최대한 살리는 데 중점을 둔 건축물이다. 비스듬하게 생긴 대지의 축을 따라 배치된 건물과 강렬한 사선의 모습은 보행자에게 역동적인 인상을 준다.



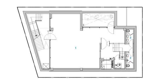
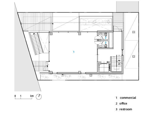
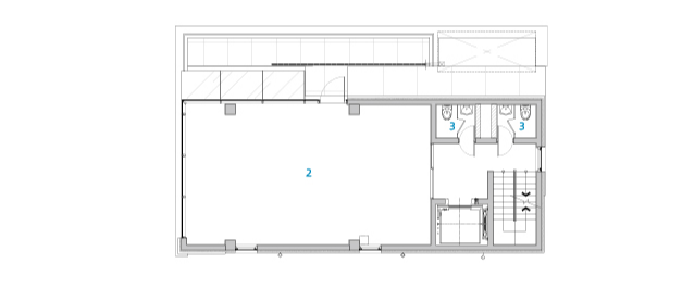
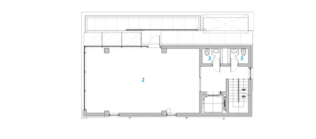
주 출입구와 계단은 후면에, 주요 전용 공간은 전면에 있다. 지하 공간의 쾌적함과 활용을 위해 선큰은 건축물 전면과 후면에 각각 배치되어 있다. 캔틸레버 구조로 설계된 지상 1층은 기둥이 외부로 노출되지 않아 입면 유리의 깔끔하고 세련된 인상을 강하게 남긴다. 지상 1층부터 지하 1층까지 이어지는 유리 벽면이 보행자의 시선을 자연스럽게 선큰이 있는 지하로 내려가게 한다. 3층부터는 건물 벽면을 따라 사선으로 디자인된 기둥이 공간의 효율성을 극대화한다.






건축가 보이드에이 건축사사무소(VOID.A Architects)
위치 서울특별시 강남구 봉은사로44길 27
용도 근린생활시설(휴게음식점, 사무소)
대지면적 240.90㎡
건축면적 124.02㎡
연면적 359.33㎡
규모 지하 1층, 지상 4층
건폐율 51.48%
용적률 149.16%
설계기간 2022. 7. - 2023. 2.
시공기간 2023. 4. - 2024. 4.
준공 2024. 4.
대표건축가 임세환
프로젝트건축가 원영준
디자인팀 보이드에이 건축사사무소
구조엔지니어 코어구조(주영돈)
기계엔지니어 정찬기술단(차영덕)
전기엔지니어 정찬기술단(박은영)
시공 범진건설
발주자 주식회사 밴드앤링크
사진작가 김창묵
해당 프로젝트는 건축문화 2025년 1월호(Vol. 524)에 게재되었습니다.
The project was published in the November, 2024 recent projects of the magazine(Vol. 524).
January 2025 : vol. 524
Contents : RECORDS : COMPETITION : BOOKS : RECENT PROJECT Toegye-dong Community Center / ZANGINSOO.ARCHITECTS + SIMMI ARCHITECTURE & ENGINEERING퇴계동 행정복지센터 / 장인수건축사사무소 + 심미건축사사무소 Kanagawa De
anc.masilwide.com
'Architecture Project > Other' 카테고리의 다른 글
| 지붕을 엮어 만든 다양함 / 칭-티엔 메이킹 (0) | 2025.01.17 |
|---|---|
| 더 워프 / 미쓰비시 지쇼 디자인 (0) | 2025.01.17 |
| 무아경 / 건축과환경 (0) | 2025.01.15 |
| 비울수록 널리 퍼지는 것은 / 아틀리에 오이 (0) | 2025.01.15 |
| 마음의 불을 켜고, 기리며 / 미올크 아르히텍티 (0) | 2025.01.14 |
마실와이드 | 등록번호 : 서울, 아03630 | 등록일자 : 2015년 03월 11일 | 마실와이드 | 발행ㆍ편집인 : 김명규 | 청소년보호책임자 : 최지희 | 발행소 : 서울시 마포구 월드컵로8길 45-8 1층 | 발행일자 : 매일



