
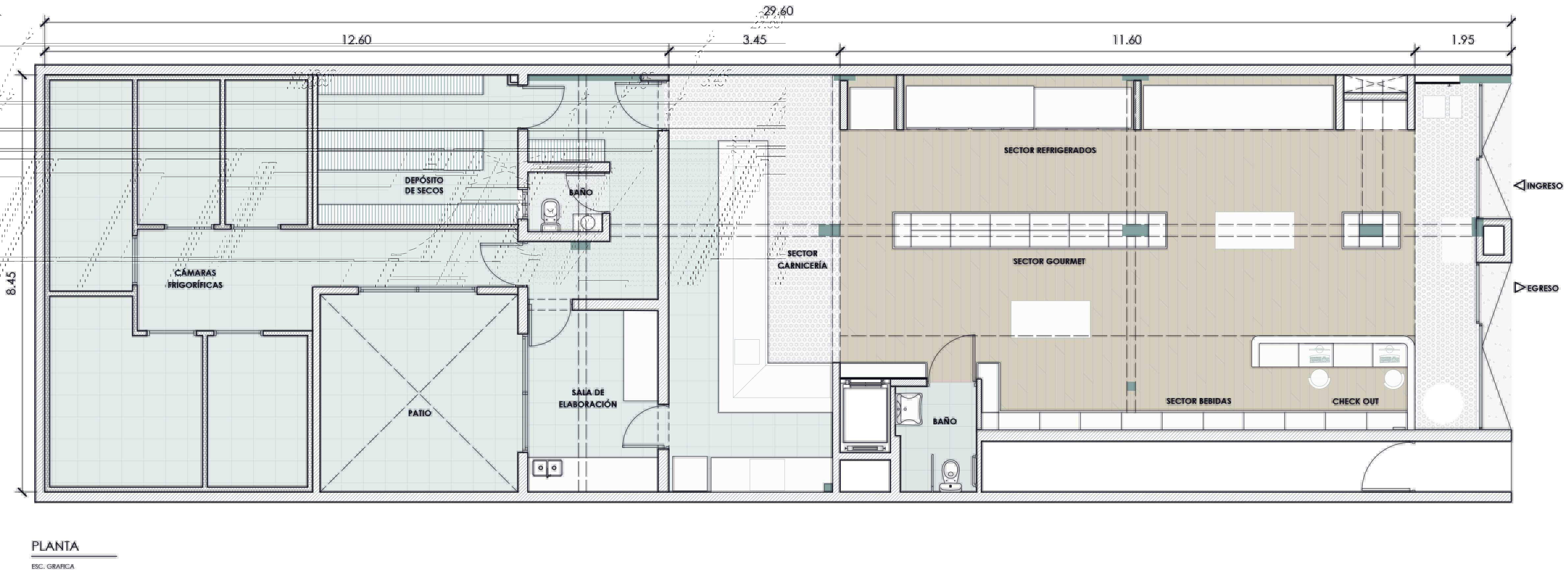
De Pastura는 풀밭에서 기른 소의 고기와 고급 식료품을 판매하는 마켓이다. 이 매장은 브랜드의 철학을 따뜻함과 신선함과 같은 감각을 통해 전달하고자 했다. 자연과 연결된 소재들이 사용되었고, 질감들이 조화를 이루며 대비를 만들었다.




디자이너 에스투디오 몬테비데오(ESTUDIO MONTEVIDEO)
위치 부에노스아이레스, 벨그라노 (차이나타운)
프로젝트면적 240㎡
설계기간 2022 - 2023
시공기간 2023 - 2024
대표건축가 Ramiro Veiga, Marco Ferrari, Gabriela Jagodnik
디자인팀 Melisa Daives, Florencia Mc Kidd, Camila Ripoll, Gisela Callegari, Violeta Bonicatto
사진작가 Gonzalo Viramonte
반응형
'Interior Project > Retail' 카테고리의 다른 글
| 공간을 품은 공간이 소통하는 법 / 스튜디오 모둠 (0) | 2025.01.16 |
|---|---|
| 변화로의 초대 / 에이아이엠 아키텍처 (0) | 2025.01.14 |
| 금색 옷을 걸친 쇼룸 / 에스투디오 몬테비데오 (0) | 2025.01.09 |
| 물성의 대비로 만드는 공간 / 스튜디오 수 (0) | 2025.01.08 |
| 좋아하는 것으로 하나가 되는 공간 / 오픈스튜디오 (0) | 2025.01.07 |
마실와이드 | 등록번호 : 서울, 아03630 | 등록일자 : 2015년 03월 11일 | 마실와이드 | 발행ㆍ편집인 : 김명규 | 청소년보호책임자 : 최지희 | 발행소 : 서울시 마포구 월드컵로8길 45-8 1층 | 발행일자 : 매일



