
PSG(paris saint germain)는 프랑스 파리를 연고지로 두고 있는 축구구단으로 축구문화와 관련된 다양한 의류, 굿즈들을 만들어내며 축구문화를 라이프스타일에 잘 녹여내고 있습니다. 총 4개층인 이 공간은 1층 (cafe/bar), 2층 (PSG 제품 쇼룸), 3층 (POP UP/협업제품 쇼룸), 4층(office)로 구성되어있습니다. 전체적인 컨셉은 수직광장으로 파리의 광장을 걸을 때 길의 상점들을 하나하나 들어가며 도시의 분위기를 느끼고 다양한 컨텐츠를
즐기는 것을 수직적으로 표현하고자 하였습니다. 건물의 1, 2, 3층을 오르내리며 각 층마다 다른 컨셉의 공간과 컨텐츠를 즐기고 체험할 수 있게 하기 위함입니다.

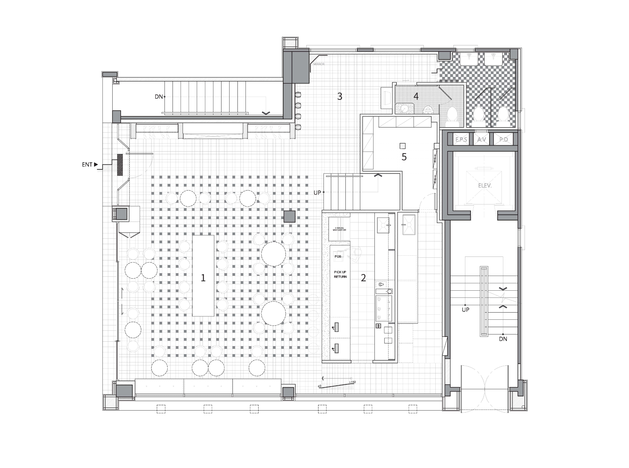
1층은 주간에는 cafe로 운영되며 야간에는 bar로 변합니다. 그에 맞게 조명의 색을 변화를 줄 수 있도록 설계하였으며 광장처럼 외부와 경계를 줄이기 위해 큰 창을 구성해, 열어놓았을 때는 레벨차이로 생기는 턱에 걸터앉아 자유롭게 내외부를 즐길 수 있게 하였습니다. 수직적으로 보았을 때 1층은 가장 클래식한 분위기가 진한 곳으로 다양한 디테일과 레트로한 분위기를 가지고 있습니다.

PSG의 중요경기가 있을 때는 팬들이 모여 뷰잉파티를 열게 되는데 이를 위해 파리 현지의 펍에서 축구를 즐기는 느낌을 주고싶었습니다. 또한 이러한 이벤트들과 주야간에 공간의 성격이 변화하는 것이 브랜드의 지속가능성적인 부분과 브랜드의 커뮤니티활성화에 큰 도움이 될 것이라고 생각합니다.


2층은 PSG의 유니폼, 의류, 굿즈를 판매하는 공간으로 다양한 카테고리의 제품들을 모두 체험할 수 있도록 천정의 구조, 바닥의 패턴 등을 활용하여 동선을 계획하였습니다. 축구를 떠올릴 수 있는 락커룸과 선수대기석을 형상화 하고 목재와 금속을 믹스하여 과거와 현재가 공존하며 브랜드의 아이덴티티, 가치를 느낄 수 있는 공간으로 의도하였습니다.



3층은 미래의 공간입니다. 유니폼 마킹, 이벤트들이 일어나는 이 공간은 노출콘크리트와 금속의 물성만 사용하여 1,2층과는 차별성을 두었고, 조명과 행거를 이동식으로 계획하여 이벤트가 일어날 때 공간을 바꿔서 사용할 수 있도록 하였습니다. 또한 이동식 행거와 디스플레이매대 또한 조립식 모듈형으로 계획하여 활용도를 늘릴 수 있도록 의도하였습니다. 지금은 키네틱 집기를 통해 움직이는 형태와 유니폼, 굿즈를 활용하여 브랜드를 더 깊게 체험할 수 있도록 계획되어 있습니다. PSG라는 브랜드를 수직적이고 다양한 컨텐츠로 기획하여 사용자들이 모든 층과 컨텐츠를 활용할 수 있는데 중점을 두었으며 다양한 디테일과 변화를 통해 오랫동안 이 공간이 사용되었으면 합니다. 또한 이 공간을 통해 PSG라는 브랜드와 팬들이 연결되고 커뮤니티가 더욱 더 활성화되기를 바라며 프로젝트를 진행하였습니다.

디자이너 오픈스튜디오
위치 서울시 강남구 신사동
건축면적 685㎡
규모 지상 4층
설계기간 2023. 11. - 2024. 12.
시공기간 2024. 12. - 2024. 2.
준공 2024. 2.
대표디자이너 김진수, 김수지
디자인팀 양진주, 박홍규, 신세린
발주자 h9studio
사진작가 최용준
'Interior Project > Retail' 카테고리의 다른 글
| 금색 옷을 걸친 쇼룸 / 에스투디오 몬테비데오 (0) | 2025.01.09 |
|---|---|
| 물성의 대비로 만드는 공간 / 스튜디오 수 (0) | 2025.01.08 |
| 떠 있는 빙산처럼 / 에이치에이에스 디자인 및 리서치 (0) | 2024.12.26 |
| 날 것으로 만든 남산 웨어하우스 / 언씬버드 (0) | 2024.12.23 |
| 안타 플래그십 스토어, 왕푸징 (0) | 2024.12.06 |
마실와이드 | 등록번호 : 서울, 아03630 | 등록일자 : 2015년 03월 11일 | 마실와이드 | 발행ㆍ편집인 : 김명규 | 청소년보호책임자 : 최지희 | 발행소 : 서울시 마포구 월드컵로8길 45-8 1층 | 발행일자 : 매일



