뒤뜰과 연결되는 레인웨이 워크샵 / Jon Cummings Architecture (JC-A)
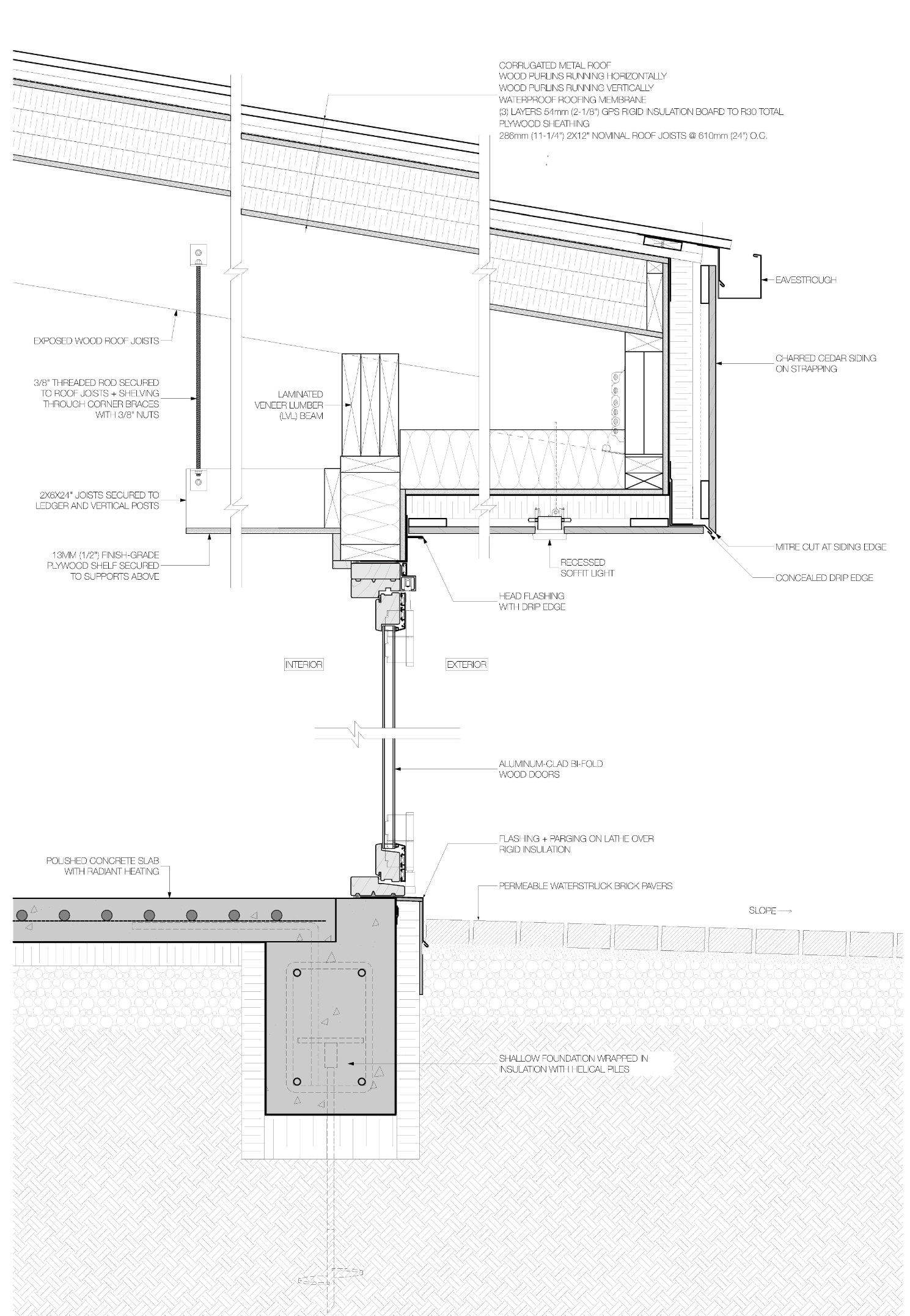
Laneway Workshop팬데믹 이후 전문직 종사자인 부부는 변화하는 라이프스타일로 인해 여러 가지 필요를 경험했습니다. 그들은 지금보다 더 나은 재택근무 사무실이 필요했습니다. 또한, 1920년대에
anc.masilwide.com

건축가 Jon Cummings Architecture (JC-A)
위치 캐나다, 온타리오, 토론토
시공기간 2023 - 2024
사진작가 Scott Norsworthy
반응형
'Detail' 카테고리의 다른 글
| [단면상세] 경량 재료를 사용해 계절과 날씨를 담는 곳 , 청두 상업공간/ 와이아이아이디 아키텍츠 (0) | 2025.03.26 |
|---|---|
| [단면상세] 교차되어 길게 내려앉은 / 에이지오 아키텍츠 (0) | 2024.12.27 |
| [section] 지속가능한 디자인을 통해 재탄생한 토아- 빈 본사 입면 (0) | 2024.12.11 |
| [section] Renovation and Expansion of the Irura Town Hall (0) | 2024.12.09 |
| [section] 연주제선 (0) | 2024.12.06 |
마실와이드 | 등록번호 : 서울, 아03630 | 등록일자 : 2015년 03월 11일 | 마실와이드 | 발행ㆍ편집인 : 김명규 | 청소년보호책임자 : 최지희 | 발행소 : 서울시 마포구 월드컵로8길 45-8 1층 | 발행일자 : 매일


