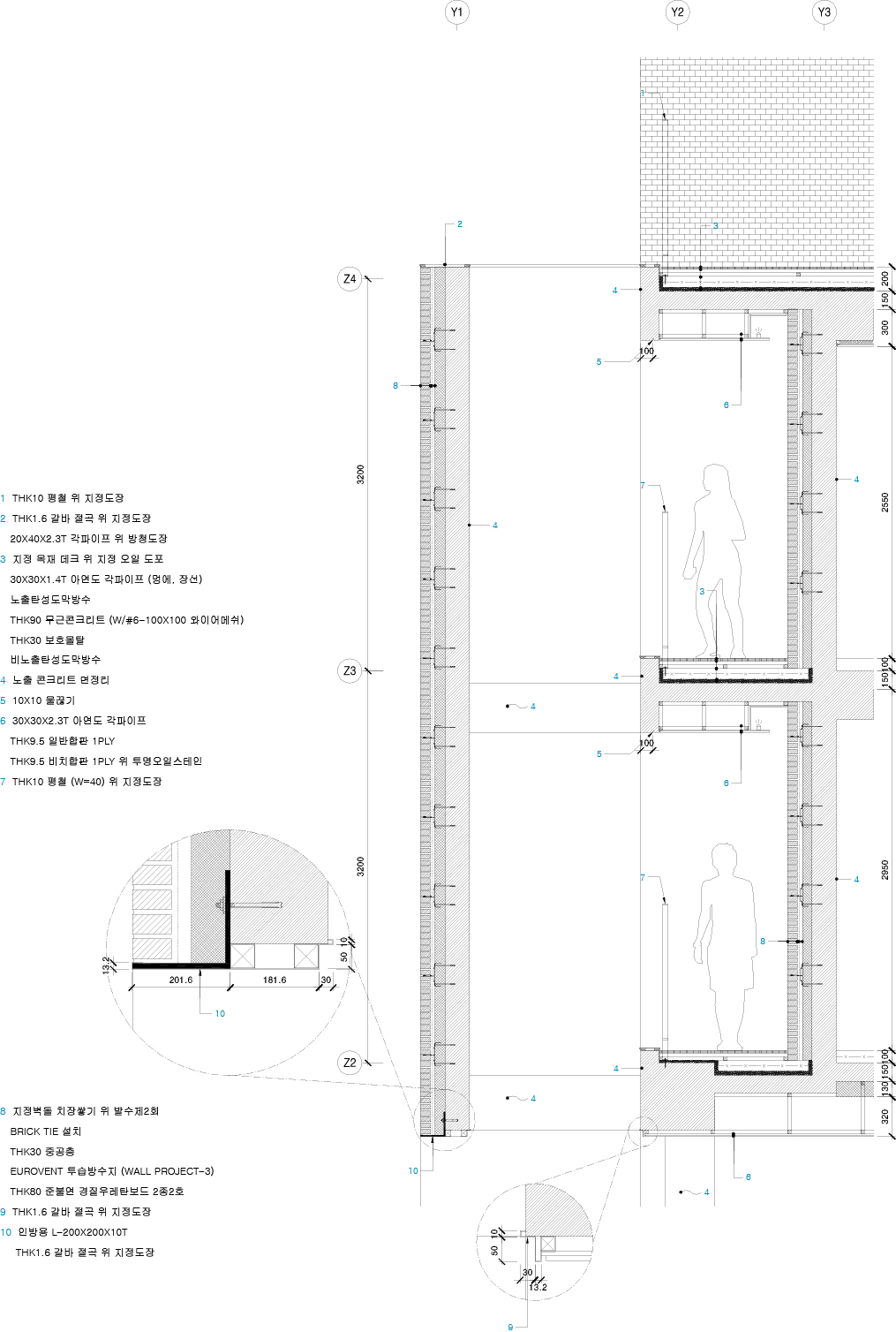
연주제선
연주제선은 주택들과 중소 규모의 상가들이 공존하는 동네에 있다. 유사한 유형의 건축물들이 대지 주변을 둘러싸고 있다. 지상층의 사무 공간과 지하층의 스튜디오 공간이 상호 간섭되지 않
anc.masilwide.com


건축가 SEOGA ARCHITECTS | (주)건축사사무소 서가
위치 서울특별시 강남구 역삼동
Completed 2024. 5.
Photographer studio texture on texture, 김명구
반응형
'Detail' 카테고리의 다른 글
| [section] 지속가능한 디자인을 통해 재탄생한 토아- 빈 본사 입면 (0) | 2024.12.11 |
|---|---|
| [section] Renovation and Expansion of the Irura Town Hall (0) | 2024.12.09 |
| [section] Renovation and Expansion of the Irura Town Hall (0) | 2024.12.05 |
| [section]QIAOCHENGBEI PARK VISITOR CENTER (0) | 2024.12.03 |
| [section] Pavillon Jardins (0) | 2024.11.20 |
마실와이드 | 등록번호 : 서울, 아03630 | 등록일자 : 2015년 03월 11일 | 마실와이드 | 발행ㆍ편집인 : 김명규 | 청소년보호책임자 : 최지희 | 발행소 : 서울시 마포구 월드컵로8길 45-8 1층 | 발행일자 : 매일



