
The historic charm of Kuanzhai Alley and the sleek modernity of a tech brand may appear to be an unlikely pairing, but this seemingly paradoxical combination has recently come to life with the opening of HONOR’s first global flagship store, unveiling a fresh identity through an innovative combination of old and new.
Across China, many historic areas face the challenges of urban renewal and the need for innovative commercial offerings. Concurrently, domestic tech brands are increasingly prioritizing the integration of brand storytelling and unique aesthetic spaces to innovate consumer experience. Bridging these two worlds, design-led innovation has achieved a win-win solution, seamlessly integrating local cultural heritage with cutting-edge technology through non-invasive micro-renewal efforts. This approach redefines how urban culture and brand narratives are expressed.
HONOR Retail Design Studio is at the forefront of this effort, dedicated to exploring unique spatial aesthetics and retail experiences that capture the essence of the brand.
01 Genius loci: an integration of Chengdu’s millennium-old culture and modern technology
Built on a 300-year-old ancient residential courtyard in western Sichuan, this project incorporates grey tile elements into modern designs, exuding a classic vibe through the “grey tiled rooftop reflection in the water feature.” During the construction, the design team respected and restored the original layout of historic buildings, well preserving the city’s historical heritage. The design honors the wisdom of historic architecture, creating a harmonious integration between the old building and the newly envisioned courtyard. Here, past and present engage in a dialogue across time.
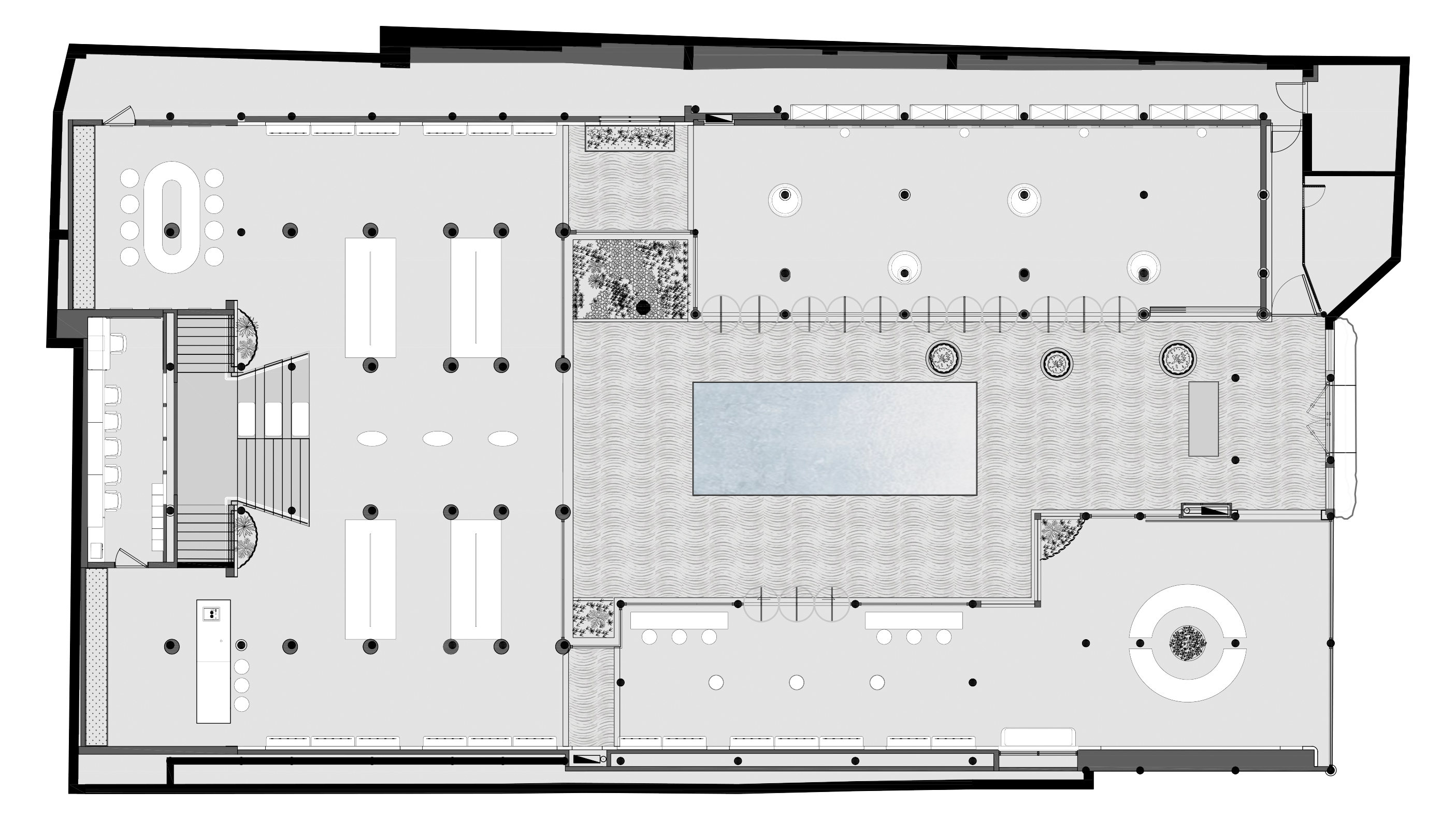
Visitors are welcomed by an understated entrance that echos the unique etiquette of western-Sichuan courtyards. The original layout has been preserved, with careful renovations to the facade and a restored symmetrical roofline. Custom-designed elements, such as transparent glass display windows, coin-pattern screens, and wooden signage, integrate naturally with the original architecture, creating a facade that exudes classic beauty. Inside, the space rises gradually from front to back, featuring a semi-transparent water curtain that resonates with the traditional Chinesearchitectural philosophy of “facing water and leaning against mountains.”
In alignment with Kuanzhai Alley’s renovation ethos—where each courtyard is given its distinctive landscape and feature, the central courtyard extends the grey tile motif from the roof to the ground, mirrored in a tranquil waterscape. The symmetrical ground design seamlessly connects the reflective waterscape with the indoor gallery. The ground is paved with tiles, arranged in a way that mimics stones with grooved patterns, with lighting hidden inside. The building’s windows and doors, featuring a blend of glass and intricate wooden carvings, striking a balance between the warmth of timber and the cool tones of tiles and bricks.
Traditional cultural tourism districts like Kuanzhai Alley have historically been dominated by local handicrafts and specialty shops. However, the introduction of the HONOR flagship store has infused a fresh commercial element into the area, enriching its business landscape.The brand has also expanded its offline consumer engagement by crafting a new narrative rooted in traditional culture. This successful model has drawn the attention of historic tourism real estate developers in other cities, who are now inviting HONOR to replicate the success in their own locations.
02 Narrative: a harmonious fusion of technology, culture, and art
HONOR envisions its stores not merely as retail spaces, but as a living embodiment of the brand’s identity, technology, service, and experience. To bring this vision to life, the design team plays a crucial role as creators. From retail spaces and displays to graphic elements, cultural products, and online platforms, HONOR’s comprehensive design team meticulously curates every touchpoint, both online and offline. This demands not only exceptional design expertise but also a deep understanding of global consumers, a keen grasp of HONOR’s product essence, and an active role to amplify newly launched products’ identity in the market.
When entrusted with designing the Chengdu flagship store, the HONOR team faced the challenge of merging the brand’s visual identity with the historic context of Kuanzhai Alley. Situated in a culturally significant building in Kuanzhai Alley, where standard 3A retail systems fell short, the team went beyond conventional 3C store designs, integrating HONOR’s store identity system (SI) with the unique character of the site. Drawing inspiration from Chinese garden aesthetics, they incorporated natural elements like bamboo into customer experience, using traditional garden techniques like framed views and opposite views. This creates a dynamic journey where every step reveals a new scene, offering customers a rich sensory and retail experience.
Art installations and curated exhibits, seamlessly integrated with product displays and functional needs, present innovative spatial solutions. The store’s narrative unfolds across five thematic zones: Tech Aesthetics Co-Creation, Tech and Cultural Expo, Tech Aesthetics Lounge, Local Art Gallery, and Central Axis Exploration. These zones guide visitors along two intertwined circulation routes—an art axis and a product axis—creating a journey of technological, cultural, and artistic exploration rooted in HONOR’s brand essence and the local heritage of Kuanzhai Alley.
This store is not merely a retail space; it is a vessel for carrying forward the cultural heritage of Chengdu’s iconic Kuanzhai Alley. Through innovative urban micro-renewal interventions, the design team has breathed new life into the space, making it a vibrant destination that resonates with visitors from around the world, showcasing the cutting-edge Chinese technology and the rich allure of Chinese culture.
The spatial design emphasizes openness and transparency, with expansive glass curtain walls and a broad entrance that seamlessly connect the interior with the external environment. This design not only enhances natural daylighting, but also adds depth and visual impact to the space.
In terms of display strategy, encircling display tables are cleverly designed to optimize the existing columns in the space, combining metal and wood for a striking contrast between warm and cold tones. Each interior zone features customized lighting systems, dynamic ambient lighting, and interactive display walls, introducing cutting-edge technology experiences into the historic architecture.
The cultural product area showcases a variety of items on a display wall, from lifestyle accessories, to phone cases and exclusive collaborations. A flexible display system accommodates diverse presentation of different themed products, supporting offline content marketing and encouraging deeper consumer engagement with the store.
03 An artistic practice: creating a new retail experience
The largest of the four wing rooms is a multifunctional area, featuring four customized tables that showcase the brand’s flagship products. The tables appear to float, with legs seamlessly integrated into the columns, enhancing the harmony of the space. Building on HONOR’s existing brand identity, the design team made subtle adjustments, changing the original wood-colored display tables to a walnut wood hue, enhancing the space’s overall visual coherence in its unique setting.
In the main passage, three clay figurines named “Leshu” (meaning “Happy Sichuan”) draw inspiration from artifacts from the Sanxingdui Museum, paying homage to the optimistic local ethos while serving as unique product displays. Surrounding the space, five key scenarios—gaming, wearables, audio-visual entertainment, mobile office, and smart home, are thoughtfully integrated into the wall displays. The staircase design creates social spaces within the store. The left stairs guide vertical traffic, while the right one invites visitors to relax, offering a place to sit, chat, admire the view of the ancient courtyard, contemplate, or capture moments.
At the northernmost end of the store, a tea and coffee area merges with a workspace in a “sunlit space”. All seating areas are equipped with fast-charging stations, catering to those who need a brief stop to work, recharge, or unwind. The after-sales area features an embedded countertop, complemented by a full-length transparent display cabinet on the back wall, which, together with the clean white lighting, creates a sleek, modern ambiance. The VIP area, inspired by traditional Chinese reception halls, is arranged symmetrically with classic Chinese furnishings like yoke-back armchairs and four-immortal tables, reviving the etiquette of traditional Chinese hospitality.
The store’s design transcends traditional retail experiences by dedicating over half of its space to cultural and artistic activities. An art exhibition area, centered around the courtyard, creates a serene environment for visitors, with two distinct circulation routes on either side catering to both shopping and cultural experiences.
In this five-meter-high art exhibition space, the HONOR Talents initiative collaborates with Chengdu’s culture and tourism authorities to showcase artworks that reflect the cultures of HONOR, Chengdu, and Kuanzhai Alley. This collaboration invites every visitor to experience the fusion of Chinese technological prowess with traditional culture. Not only focusing on sales itself, the Chengdu flagship store aims to revitalize traditional neighborhoods through cultural promotion, social media engagement, and community influence.
Through its innovative approach, the HONOR Chengdu Flagship Store redefines the conventional technology retail model, embedding commercial public spaces within a historical and cultural neighborhood. This non-invasive micro-renewal practice creates a technology-infused experiential space that blends retail, culture, and lifestyle, offering personalized experiences to consumers from various regions and forging deeper emotional connections between the brand and its customer community.










디자이너 HONOR Retail Design Studio
위치 China, Chengdu, Kuanzhai Alley, Kuanxiangzi Alley, K2 Courtyard
건축면적 973m²
준공 2024.5.
대표디자이너
디자인팀 HONOR Retail Design Studio
컨설턴트 LabD+H, GCL Construction Group
사진작가 Peng Yi
'Interior Project > Retail' 카테고리의 다른 글
| 안타 플래그십 스토어, 왕푸징 (0) | 2024.12.06 |
|---|---|
| MASONPRINCE Shanghai Flagship Store (0) | 2024.11.28 |
| ICHI STATION (0) | 2024.11.05 |
| Origami Bar (0) | 2024.11.05 |
| Samsung galaxy studio – Filp side market (0) | 2024.11.04 |
마실와이드 | 등록번호 : 서울, 아03630 | 등록일자 : 2015년 03월 11일 | 마실와이드 | 발행ㆍ편집인 : 김명규 | 청소년보호책임자 : 최지희 | 발행소 : 서울시 마포구 월드컵로8길 45-8 1층 | 발행일자 : 매일



