
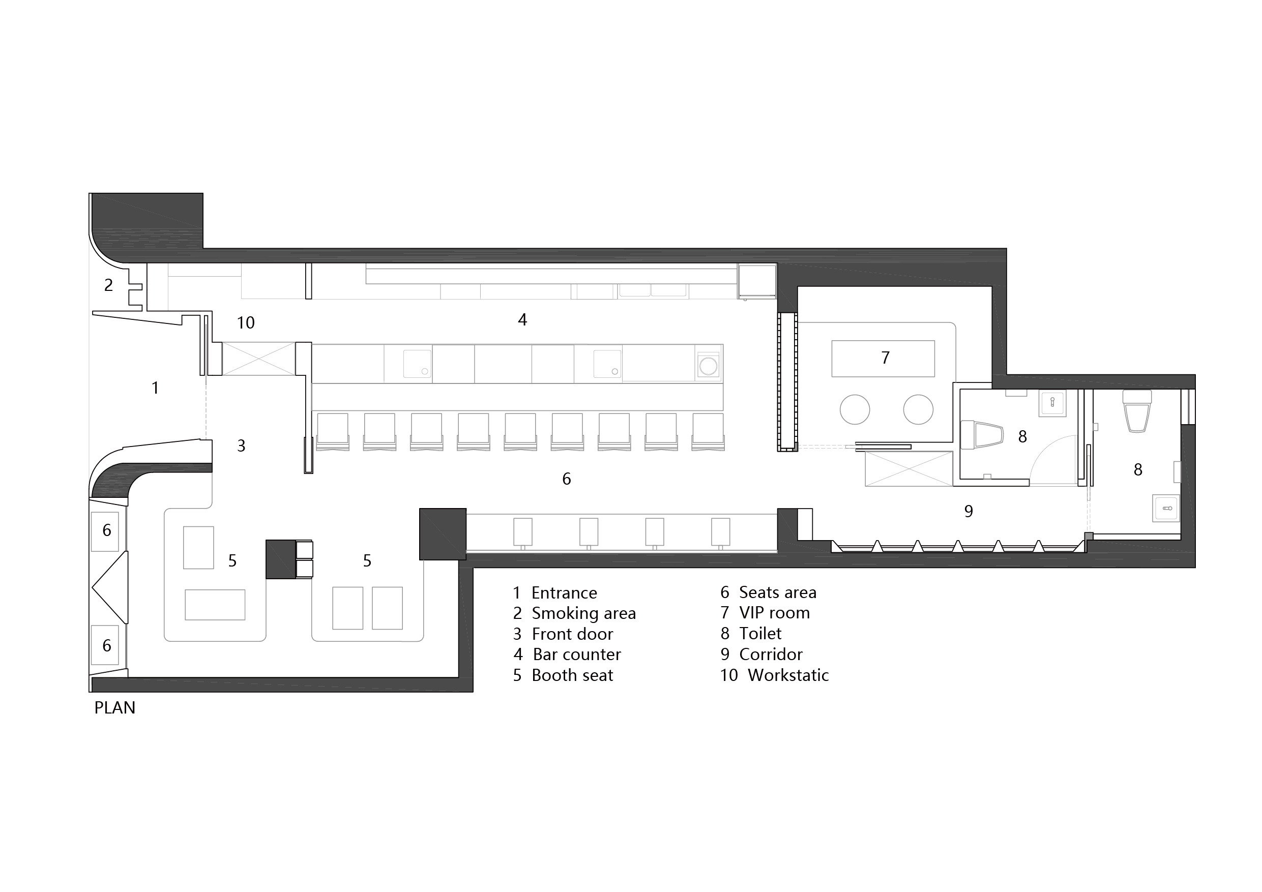
Origami Bar is located on Middle Huaihai Road near the Shanghai Conservatory of Music, the name "Origami" is derived from a video of paper airplanes, which carry a wealth of symbolism. As the owner described his conceptualization process to us, a corresponding picture of the space gradually emerged in our minds. People who love to drink, they often come with a wealth of emotions and moods of their own, and these qualities are the most natural and wonderful decorations. Therefore, we wanted to keep the space design as restrained and rational as possible, and use it as a pure container. The overall shape of the interior and the materials in the space are designed with origami as the core to ensure the coordination and unity of the space.

We have reduced the size of the main entrance and added a section of partition wall to eliminate the yellow metal panels from visually interfering with the entrance area. The area to the left of the partition wall was planned as a smoking area, while the right side served as the entrance to the bar. By reducing the scale of the entrance, the area is made more private and attractive. Above the entrance, an orange breathing circular soft film light with a constant on mode is designed to attract pedestrians to stop and provide a warm visual sensation for them at night. The glass window area on the right side of the facade is subdivided into two parts, with seating for pedestrians to stop for a short time, while customers can enjoy the relaxing outdoor atmosphere with a glass of wine, reinforcing the coherence of the indoor/outdoor space and the overall interactivity of the environment.


The design of the ceiling molding aims to hide the M&E equipment such as air conditioning and lighting as much as possible, while showing the texture of the building itself. We chose to expose part of the original beams so that the ceiling design achieves the most simple and direct effect. In the ceiling design, we used the shape of origami structure, and through the combination of the shape and the lighting, the light and shadow also show the geometric form of triangles. This design not only creates a rich sense of spatial hierarchy visually, but also effectively integrates the building system functionally, ensuring the integrity and aesthetics of the space.








건축가 Tens Atelier
위치 China, Shanghai, Xuhui District, No.1158 Middle Huaihai Road
면적 96㎡
준공 2024.01.
대표건축가 Tan Chen, YUI
프로젝트건축가 Guo Ankey, Li Zhengzhi
디자인팀 Tens Atelier
구조 Shanghai Takuzen Construction Consulting CO., Ltd
건축주 Origami Bar
사진작가 YUUUUNSTUDIO
'Interior Project > Retail' 카테고리의 다른 글
| HONOR Flagship Store (0) | 2024.11.25 |
|---|---|
| ICHI STATION (0) | 2024.11.05 |
| Samsung galaxy studio – Filp side market (0) | 2024.11.04 |
| Lador seongsu (0) | 2024.10.29 |
| THE CITY ONE Sales Center (0) | 2024.10.22 |
마실와이드 | 등록번호 : 서울, 아03630 | 등록일자 : 2015년 03월 11일 | 마실와이드 | 발행ㆍ편집인 : 김명규 | 청소년보호책임자 : 최지희 | 발행소 : 서울시 마포구 월드컵로8길 45-8 1층 | 발행일자 : 매일



