
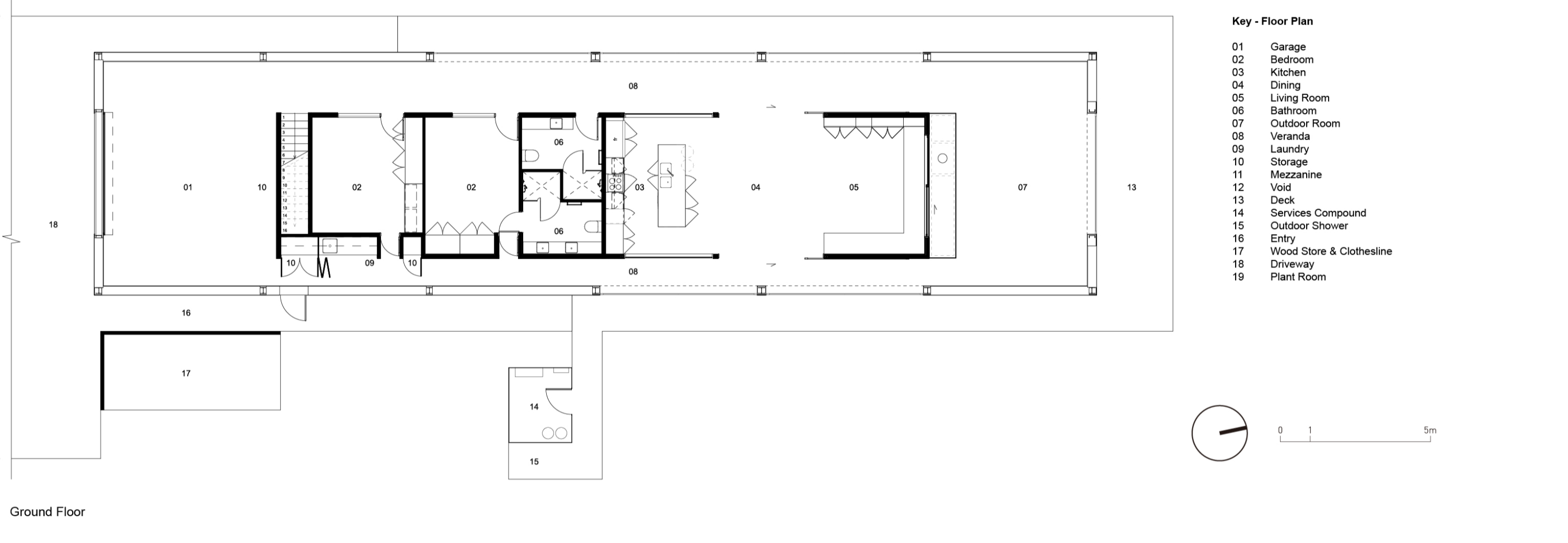
The Chodge is a rural holiday home designed by DCA Architects of Transformation located in New Zealand, surrounded by natural landscape beauty. The dwelling is an exploration of the interstitial space between inside and outside. It’s a “kiwi” holidaying obsession of living across the threshold of indoors and outdoors.
The clients had camped on the bare land for 14 years prior and loved the connectedness with daylight hours and landscape. They requested a house that could be used across all the seasons, while connected to landscape, feel intimate for two, or spacious to cater for ten. The design is an exploration of the interstitial space between inside and outside, how you live when on holiday, the relationship with landscape and connection to a rural vernacular. We set out to explore the potential live ability of this interstitial space. Living in the threshold drove the idea of creating a space outside the inside, but still inside the outside. The Woolshed vernacular drove the exterior form. A simple functional roof pitch, unadorned, undecorated, and true to the existing woolshed standing on the property. The outer cladding is weathertight and light emitting. A translucent skin on the interior contributes to the control of heat gain and heat loss. Large operable openings, fire station doors, aircraft hangar doors when open render the outside structure a large-scale veranda. Inside this outer shell is an extruded wooden container for living functions, designed to Passive Haus principles, cave like in stark contrast to the outside structure. This inner structure is wood clad, warm, recessive and contemplative. Essentially a house within a house.
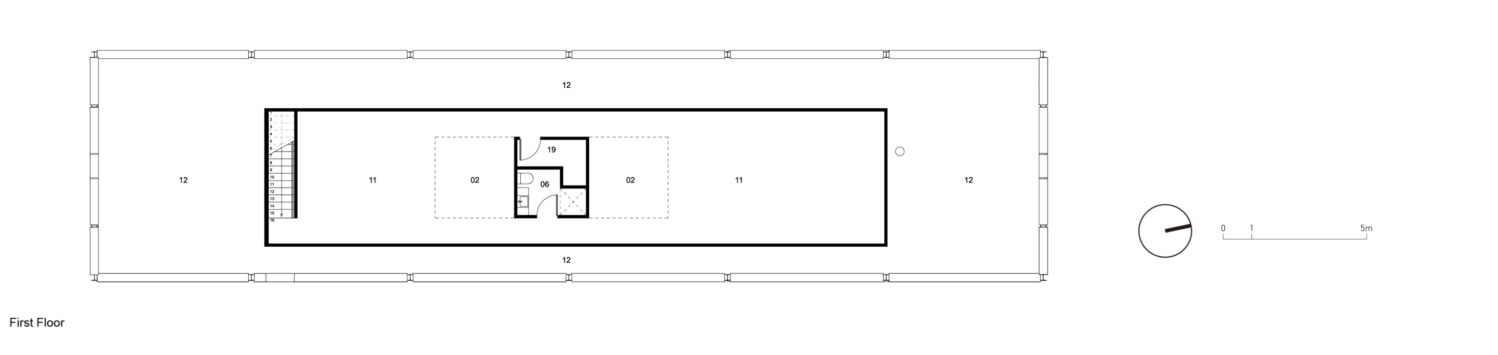
By creating this interstitial space, the occupants could live across all the seasons and weather patterns. Additional sleeping spaces on the mezzanine resonate with past camping on the site, in tune with the circadian rhythm of natural daylight hours. A simple frame with curtain pulls around the beds to create a space with a degree of privacy.











건축가 DCA Architects of Transformation
위치 New Zealand, Whakamaru, Waipamu Station
연면적 299m²
준공 2023
대표건축가 DCA Architects of Transformation
사진작가 Simon Devitt
'Architecture Project > Single Family' 카테고리의 다른 글
| 마누엘라 페드라사 주택 / 오에이디디 아르케텍토스 (0) | 2024.12.04 |
|---|---|
| Two-Face House (0) | 2024.11.26 |
| Nam House (0) | 2024.11.21 |
| 3 x 30 Introverted House (0) | 2024.11.20 |
| Villa Sidonius (0) | 2024.11.20 |
마실와이드 | 등록번호 : 서울, 아03630 | 등록일자 : 2015년 03월 11일 | 마실와이드 | 발행ㆍ편집인 : 김명규 | 청소년보호책임자 : 최지희 | 발행소 : 서울시 마포구 월드컵로8길 45-8 1층 | 발행일자 : 매일



