
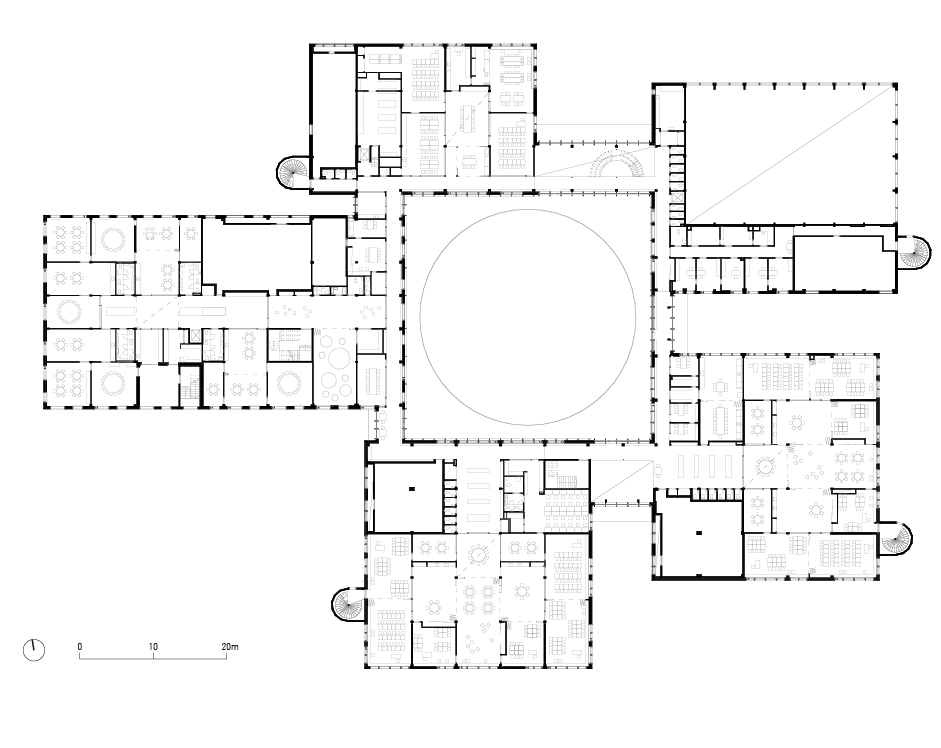
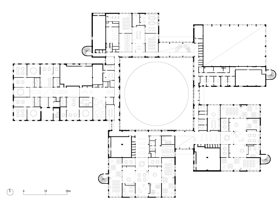
Maatulli School and Kindergarten is one of Helsinki’s first mass timber schools. The school’s design is informed by research indicating that educational institutions built from wood and closely connected to nature have a positive impact on children’s mental and physical health. Located in a lush park in Helsinki’s Tapulikaupunki district, the school serves 700 pupils and 238 kindergarteners. Organized as a village of five wooden buildings, the school features a circular courtyard known as “The Forest Glade,” which introduces a significant green outdoor space at the heart of the school. This peaceful courtyard enhances the learning environment, providing natural light to the center of the building and all common areas while adding value beyond the original program.

The school’s outdoor learning areas, featuring local plants, play a crucial role in its pedagogy, helping children connect with nature and fostering sustainability. The wood-clad façade, inspired by surrounding trees, creates a harmonious relationship between the interior and exterior, reinforcing the building's connection to its natural setting. Overall, the design seamlessly integrates with the surrounding landscape, making the school, its outdoor learning spaces, and the nearby parks one large unified learning environment that supports community, social interaction, and inclusion among both the learners and the residents.

Designed from a learner’s perspective, the school offers a green and flexible environment that promotes well-being, concentration, and creativity. The distinct building blocks, connected by central common areas, create a framework for a human-scale learning environment where learners can easily navigate, meet, and learn from one another. The efficient layout ensures that all functions are within a short distance of the central space and entrances. Each blocks has its own unique character, housing learning spaces, canteen, sports hall, science and art facilities, and kindergarten. The multifunctional building also serves as a community center for local residents during evenings and weekends. Adaptable learning spaces, with movable partitions, can be reconfigured to suit different activities and easily adjusted to meet the learners’ needs. Local wood and natural materials enhance the connection to nature, creating an inviting, calm environment where all learners feel at home.








건축가 Fors Arkitekter
위치 Finlandm, Helsinki
대지면적 30.162m²
건축면적 5.483m²
연면적 9.899m²
조경면적 24.394m²
건폐율 18.18%
용적률 32.81%
프로젝트기간 2020. 8. - 2024. 8.
준공 2024. 8.
대표건축가 Sofia Fors
디자인팀 Fors Arkitekter, Arkkitehtuuri- ja muotoilutoimisto Talli Oy, Blomqvist Arkitektur
구조엔지니어 A-Insinöörit Oy
전기엔지니어 Shs-sähkö Oy
공조엔지니어 Ramboll Oy
시공 Jatke Oy
조경 Masu Planning
건축주 City of Helsinki
사진작가 Tuomas Uusheimo
[section] Maatulli School and Kindergarten
Maatulli School and KindergartenMaatulli School and Kindergarten is one of Helsinki’s first mass timber schools. The school’s design is informed by research indicating that educational institutions built from wood and closely
anc.masilwide.com
'Architecture Project > Education' 카테고리의 다른 글
| 미래산업과학고등학교 급식실 증축공사 / 비그라운드 아키텍츠 건축사사무소 (0) | 2025.01.13 |
|---|---|
| 가나가와 치과대학 캠퍼스 센터 / 아틀리에 미미 (0) | 2025.01.08 |
| Willi Resetarits Educational Facility (0) | 2024.10.28 |
| Ecole du Honcourt (0) | 2024.10.28 |
| ABF "Maria Manetti Shrem" Educational Center (0) | 2024.10.25 |
마실와이드 | 등록번호 : 서울, 아03630 | 등록일자 : 2015년 03월 11일 | 마실와이드 | 발행ㆍ편집인 : 김명규 | 청소년보호책임자 : 최지희 | 발행소 : 서울시 마포구 월드컵로8길 45-8 1층 | 발행일자 : 매일



