
This residential complex of 188 units of student housing and 50 fl ats for families emerges from theEmpalot site, in the city of Toulouse, at the point connecting the housing estate dating from the1960s, the new footbridge that straddles the Garonne to the Île Ramier, and the sports fi eld thatserves as the district’s central point. The project is designed to give inhabitants a tangible “athome” feeling and to create a mellow urbanity that can reconcile the surrounding architecture'sdisparate silhouettes.
Though courteous, the Formes Hautes are no less assured for, even if the approach is reparative,it is above all forward-looking. The architecture is strong, determined, protective, open, porous,appropriable, and transformable. It has been designed for the long term: the generous structuralgrid makes possible the reversibility of the car parks into a public or cultural facility (district library,cultural center), the evolution of housing, and student cells can all be easily transformed intofamily fl ats. Prefabricated façade modules are inserted into these grids, which in forty or fi ftyyears, could easily be replaced to meet new environmental or socio-cultural challenges.
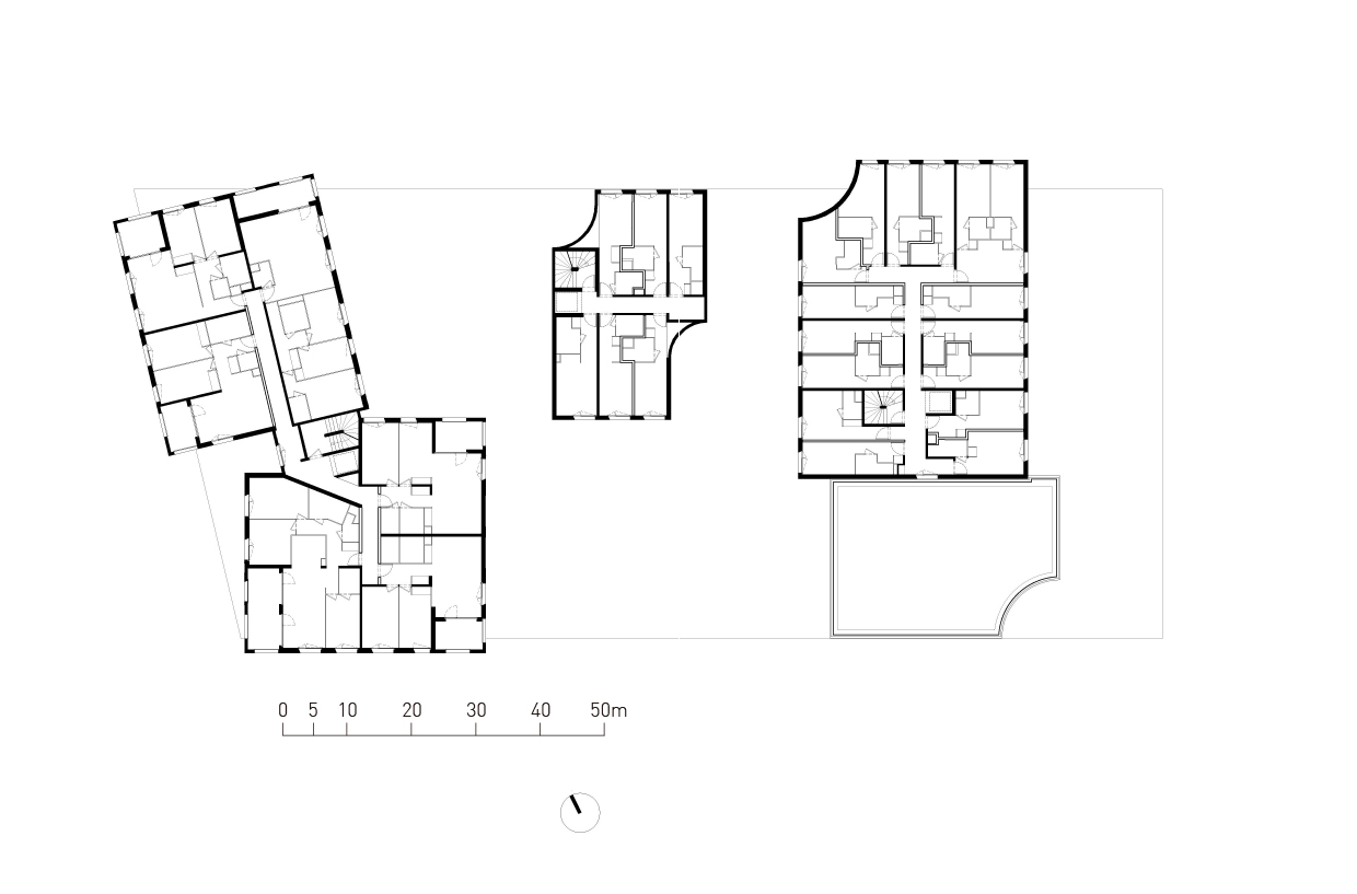
From an urban point of view, the city superblock respects the natural ground cover. It settles uponit without invading, inspired by the Japanese manner of landscaping, yet rises to the challenge of replicating it in height, thanks to a podium that closely adheres to the perimeter of the lot, therebyemphasizing the unity of the complex. Within this limit are shared spaces, streets, squares,patios, ramps as well as two levels currently used as a car park.
This inhabitable substructure punctuated by strong columns, playing with dilatation as much ascompression, creates a hypostyle space crossed by long perspectives that direct the gazetowards interior spaces, city, and landscape.
From this solid and porous matrix, three blocks of fl ats loom up (G+7, G+6, G+3), with a viewacross the river towards the older city and the Île du Ramier. The architecture leaves the groundat the same time it is tethered to it, in a permanent search for strength and elegance that fi nds itsfull expression in the work with materials (onsite concrete, limestone paving stones), in thecolours, and the precision of the design.
The composition of the Formes Hautes is skillful and the movement continuous: the blocks areunaligned, slipping, and entering into tension with each other; the volumes are sculpted by bevelsand fl utes that catch the light, enabling the surfaces and angles to exist; the geometry of thewindows plays with kinetics and increases the number of optical effects.
The architecture participates in building the city based on an innovative partition that works withthe superblock at every scale and in all its dimensions. Here, the present aims to simultaneouslycontain the past and the future (of the city).








건축가 Atelier Stéphane Fernandez
위치 France, Toulouse
연면적 8,700m²
준공 2024
대표건축가 Stéphane Fernandez
디자인팀 Technie ingénierie, G2 ingénierie, Nec ingénierie
어반플래너 Germe et Jam
건축주 Vinci Immobilier Grand Ouest - Oppidea (31)
사진작가 WE ARE CONTENT(S)
'Architecture Project > Multifamily' 카테고리의 다른 글
| 모두를 감싸안는 (0) | 2024.12.11 |
|---|---|
| 다온주택 (0) | 2024.11.27 |
| J-House (0) | 2024.11.07 |
| Meander Residence (0) | 2024.11.05 |
| Q8 Residence (0) | 2024.10.31 |
마실와이드 | 등록번호 : 서울, 아03630 | 등록일자 : 2015년 03월 11일 | 마실와이드 | 발행ㆍ편집인 : 김명규 | 청소년보호책임자 : 최지희 | 발행소 : 서울시 마포구 월드컵로8길 45-8 1층 | 발행일자 : 매일



