
The streets of Khar used to be lined with low rise homes set back from the street and hidden behind trees and shallow front gardens. Densification and the demand for floor space has transformed these neighbourhoods’ into rows of tall structures battling for light and air and eliminating any manner of dialogue with the street, owing to the concentration of “decorative” multi-storey parking structures at the ground level.
The sea lies to the west of the site, a direction from which the harshest sun and rain originate.
Major parameters for design were:
a. Re-establish a substantive relationship with the street and eliminate the presence of a massive building at the street eye level.
b. Mediate with the west to allow for permanent visibility / semi-covered spaces that can be used perennially / provide privacy for internal spaces without the constant use of internal shading devices.
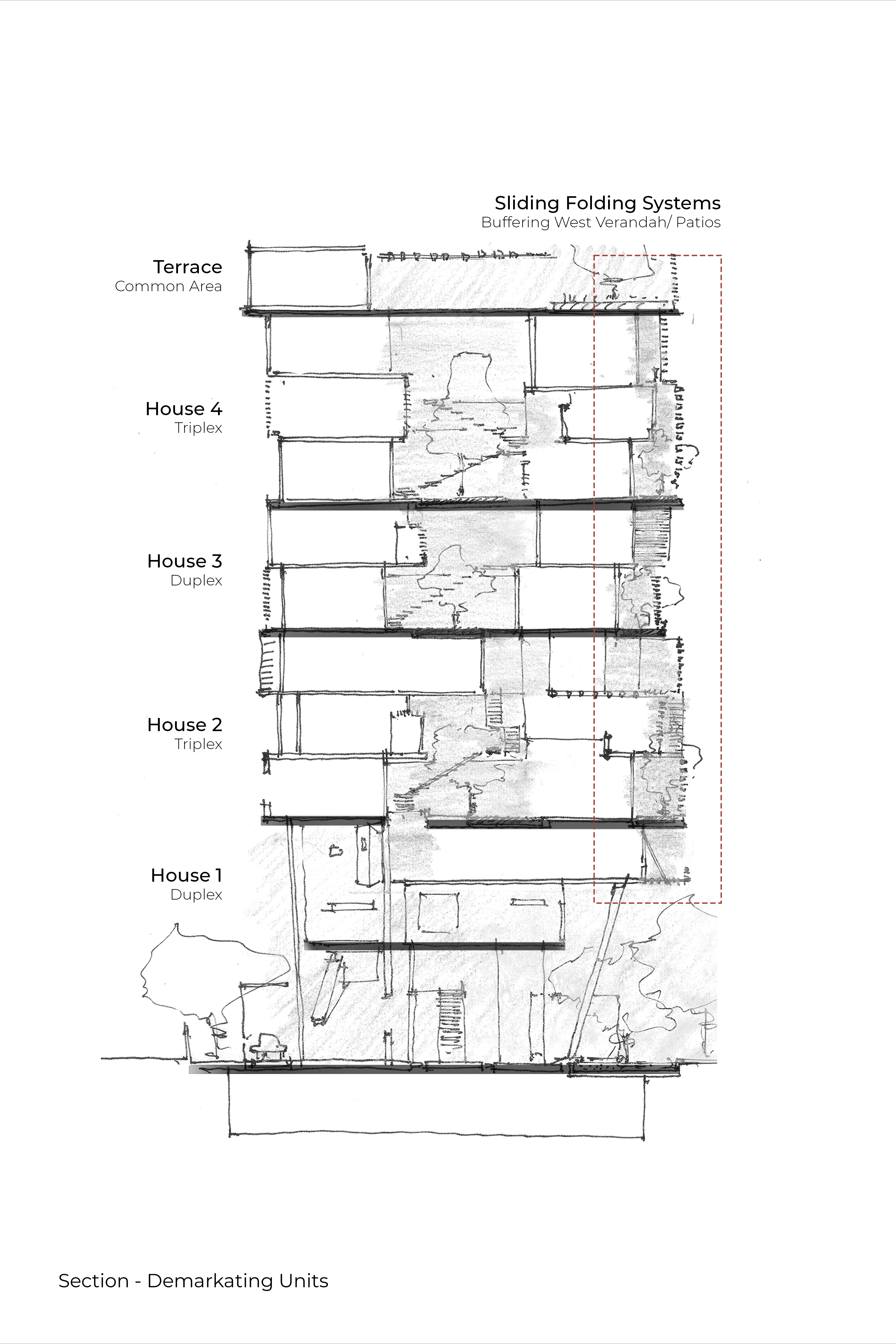
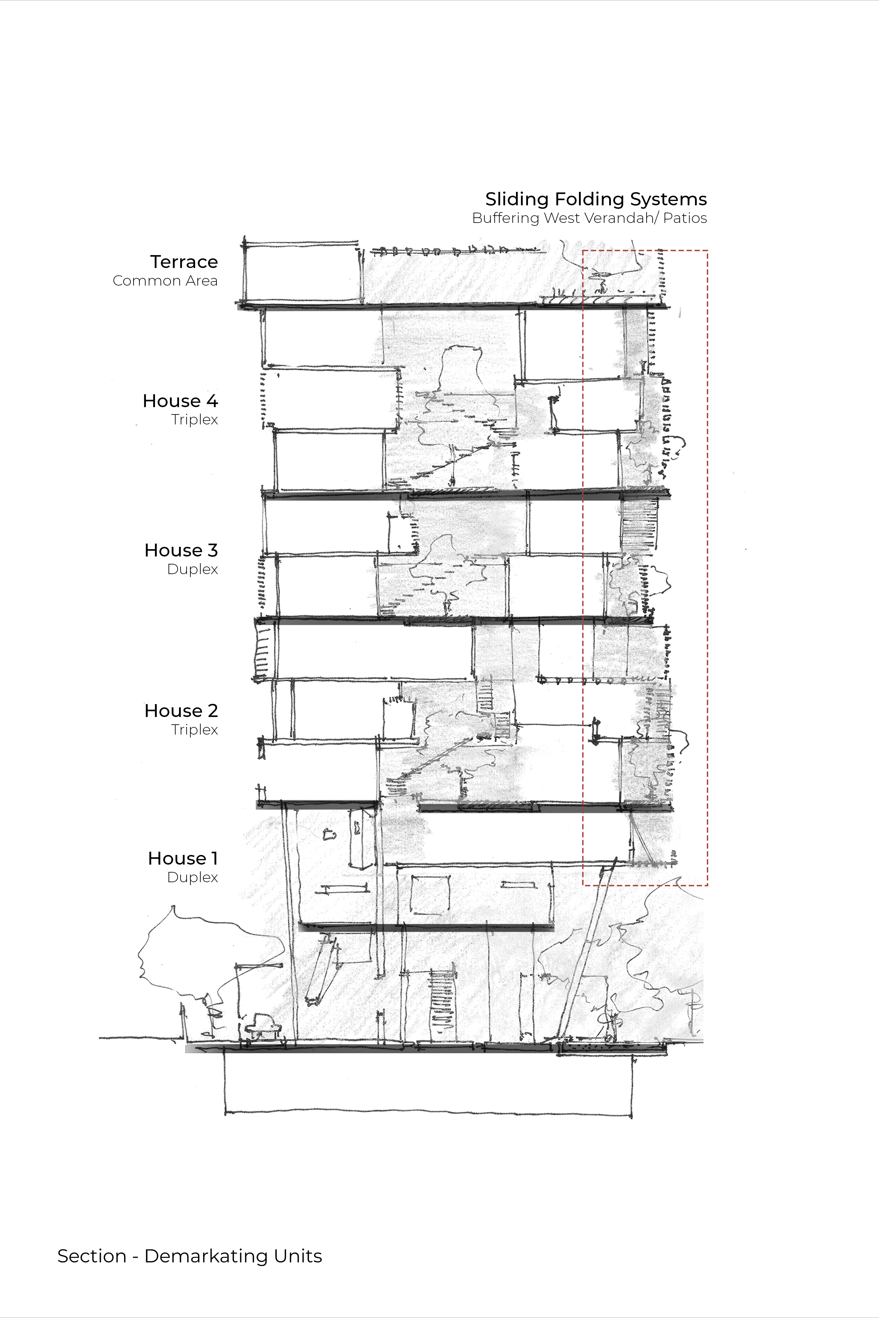
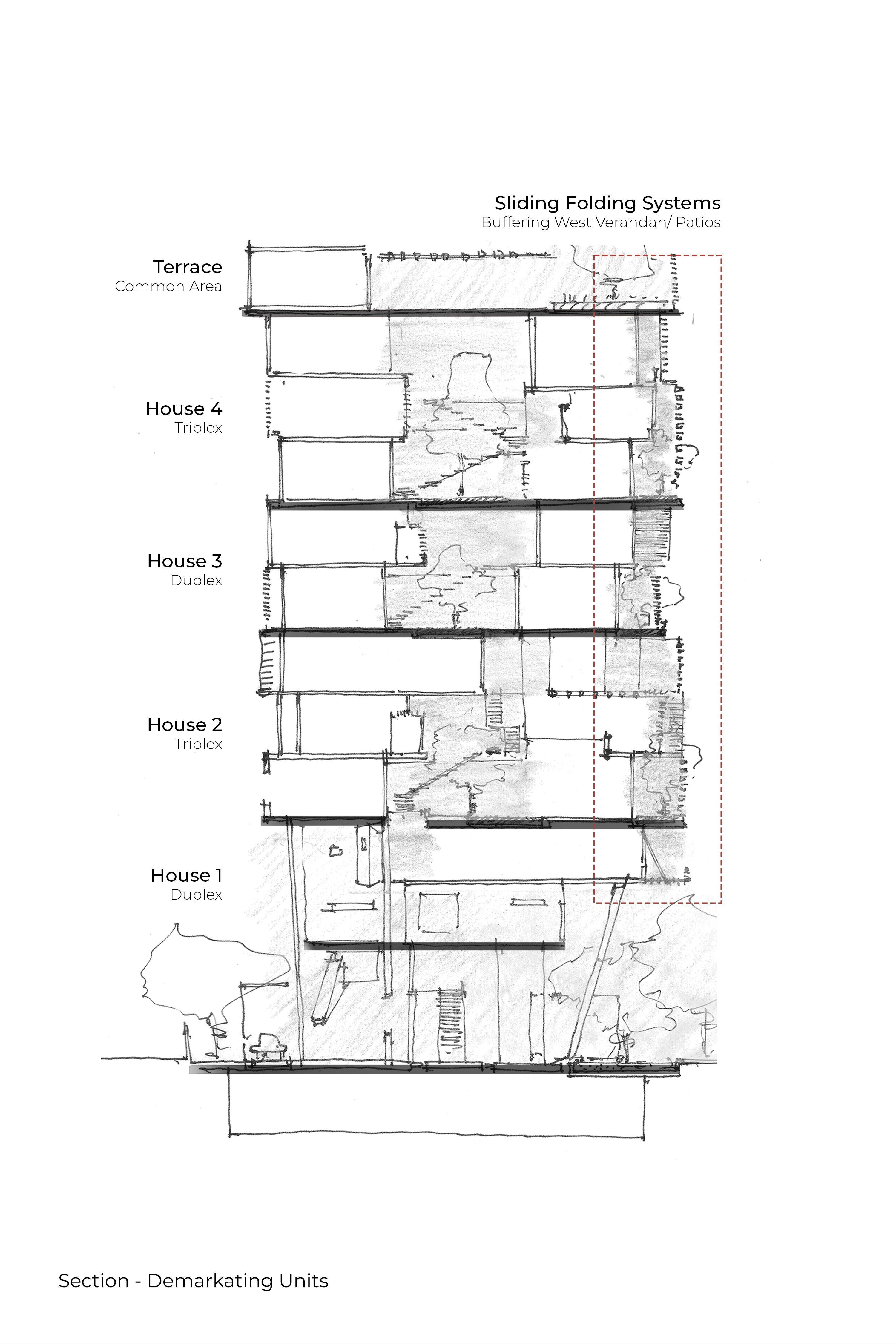
c. Bind the core of the building to work against the separation inducing stratification of the high rise. This is imperative to translate the public / private relationship of the joint family.
To find answers, we looked at 3 indigenous devices viz:
1. Courtyard
2. Verandah
3. Jaali / Screens
The plan and section have evolved through iterations of these three devices.
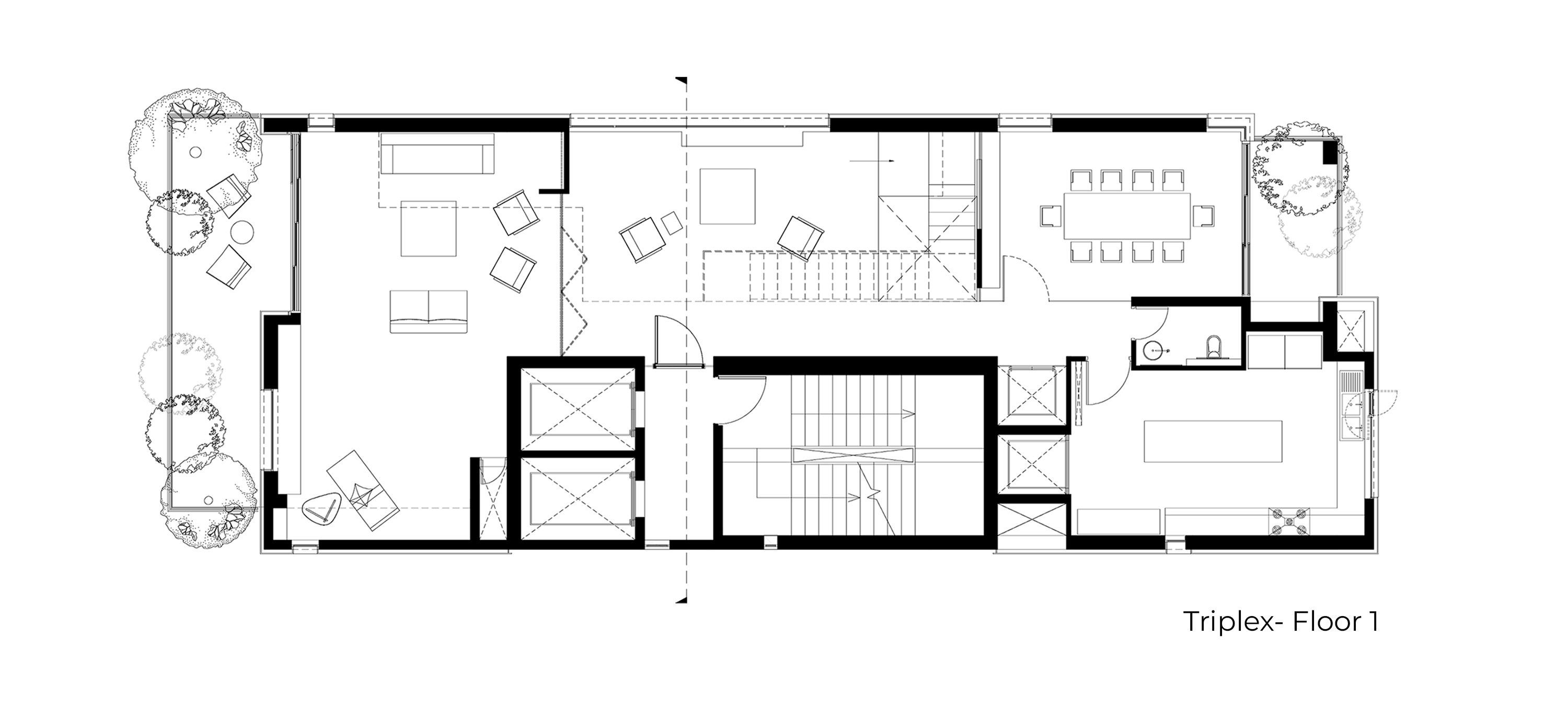
By accommodating the parking within the basement, the street level, up to a height of 11.0m is devoid of residential spaces. Instead, structure and volume are set back from the street and organized within a garden shaded by the cantilevered residential volumes above. At the street level the language of water, trees and low rise, set back spaces create the first point of mediation with the urban condition.
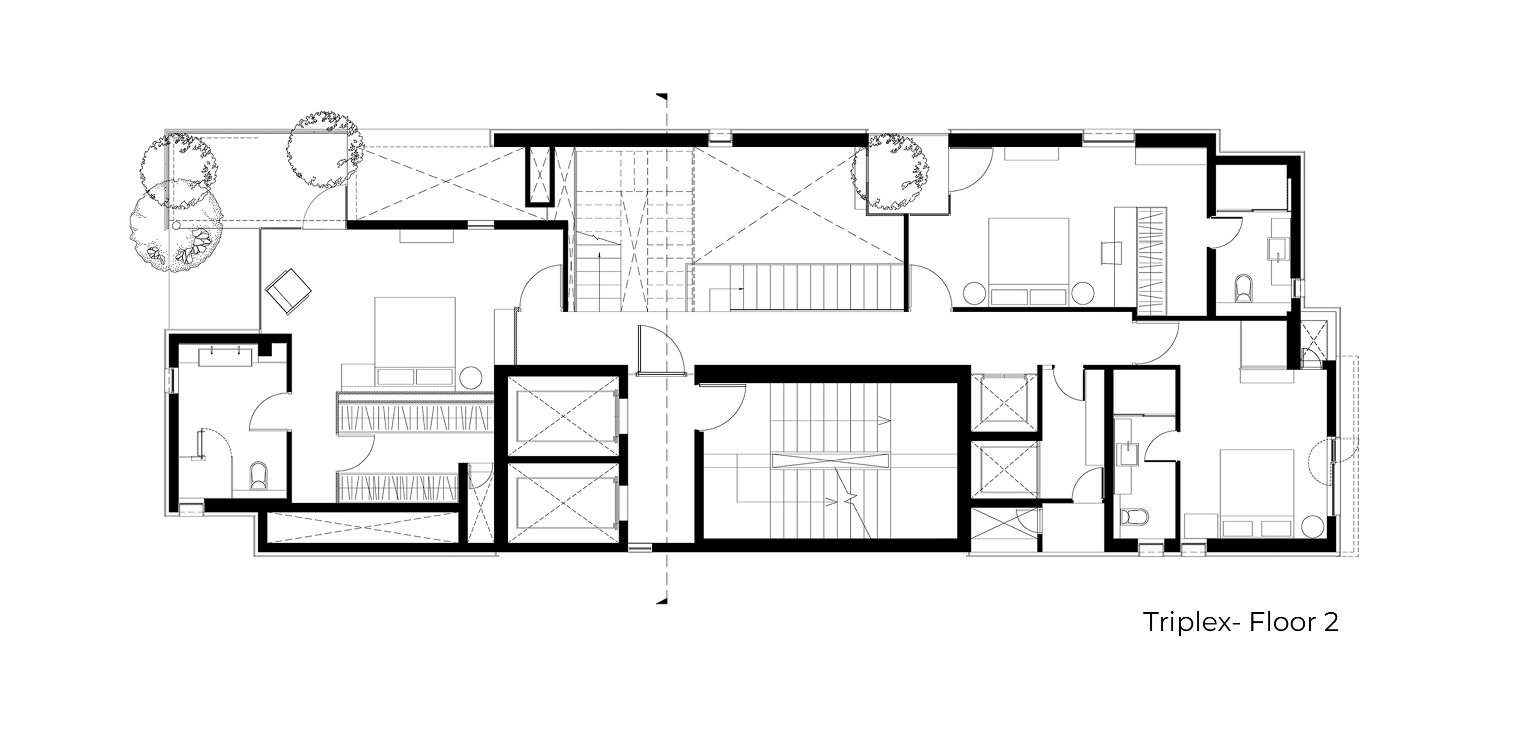
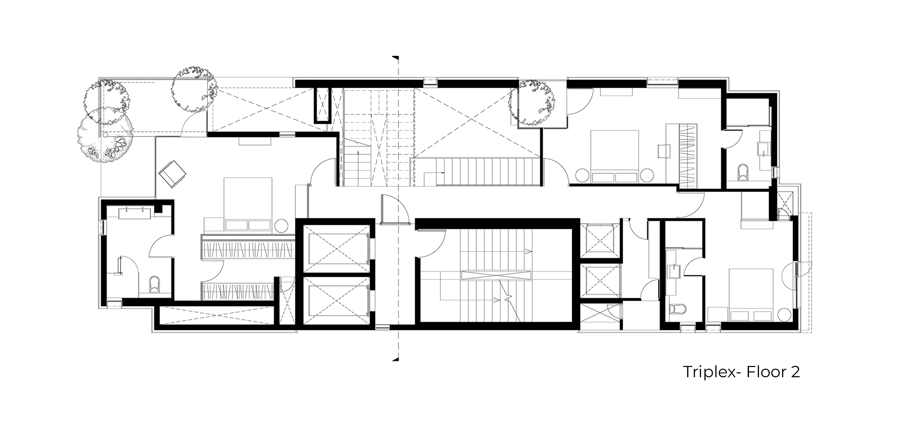
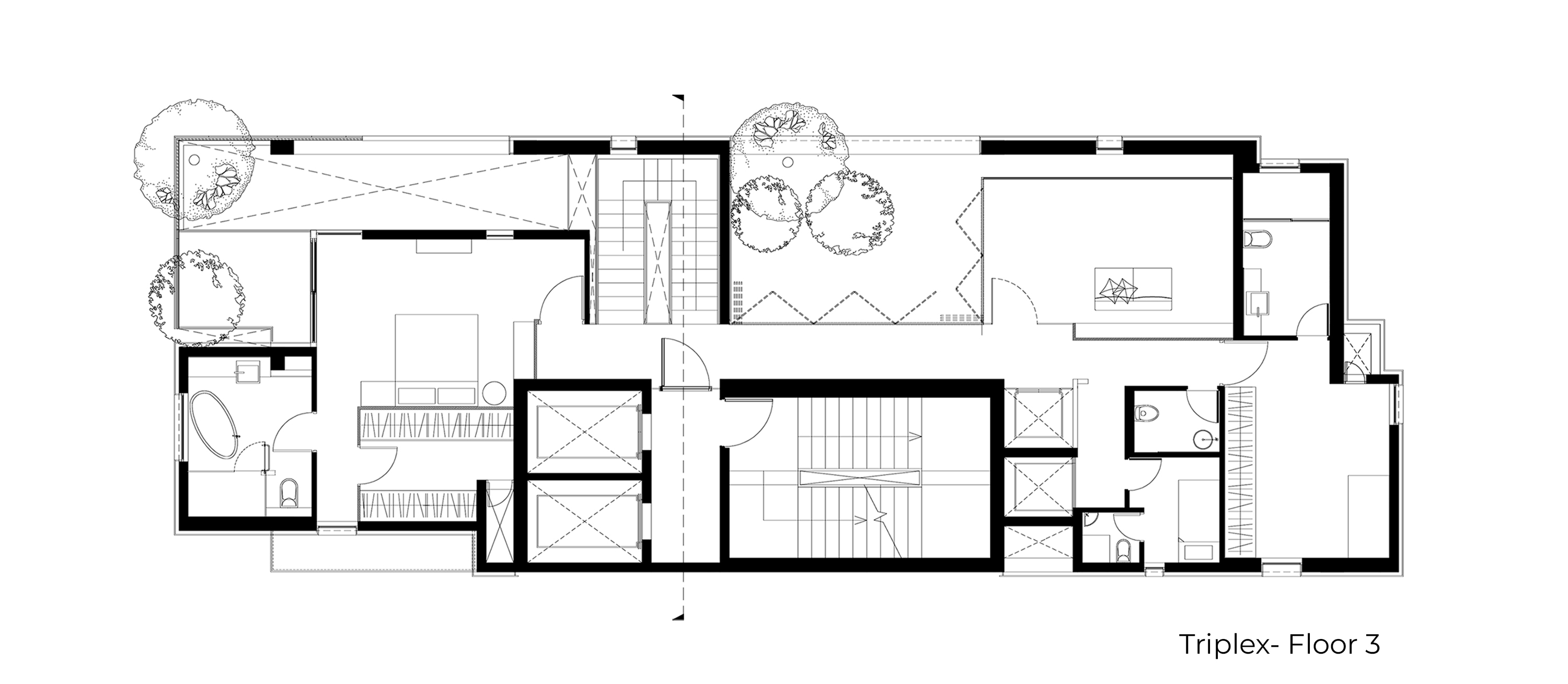
The individual “bungalows” are planned around central north facing courtyards with the public/private spaces located at the east and west zones to establish views into the funnels between the surrounding buildings. The individual courtyards bind the internal spaces and allow for natural light and breezes to flow through the house, behaving, in the hot months, like a thermal stack. Internal shifts in space and structure make the courtyard extend into the private spaces creating a network of deep voids and punctuated skylights. The sensation of living under the sky permeates through the house.
The western edge, with its views of the sea, and its propensity to be subjected to the maximum force of the elements is organized as a series of deep shaded verandahs with fixed and operable screens. The Verandah spaces shift profiles within this tall void, based on the relationship with the interior, and each bungalow develops its own proportion of verandahs’. The operable screens create privacy and shading making those spaces perennially habitable.
Through the analysis and adaptation of vernacular devices a plausible solution to the urban impact of these rapidly proliferating building types seems possible.
















위치 India, Mumbai, Maharashtra, Khar
대지면적 642.82㎡
연면적 4,000㎡
준공 2023
대표건축가 Kamal Malik, Arjun
디자인팀 Arjun Malik, Rucha Pimprikar, Jay Jani, Jignesh Vadhia
구조컨설턴트 SEMAC, Hyderabad / Global Engg.
전기엔지니어 SEMAC, Hyderabad / Nat. Engg.
배관컨설턴트 SEMAC, Hyderabad / Nat. Engg.
공조컨설턴트 SEMAC, Hyderabad / Nat. Engg.
구조 Unique Concrete Technologies (UCT)
공조 Clinton (by client)
전기 Imperial Electricals Pvt. Ltd.
배관 및 소방 Shree Padmavati Engg. Pvt. Ltd. (Khodiyar Group)
파사드 Destal India Pvt. Ltd.
인테리어 및 목공 Sapna Nostrum Enterprises (By client)
건축주 Rakesh Jain, Rajesh Jain, Rakshit Jain, Shivani Jain, Vinita Jain
사진작가 Bharath Ramamrutham
'Architecture Project > Multifamily' 카테고리의 다른 글
| 다온주택 (0) | 2024.11.27 |
|---|---|
| Les Formes Hautes Residential Complex (0) | 2024.11.12 |
| Meander Residence (0) | 2024.11.05 |
| Q8 Residence (0) | 2024.10.31 |
| Housing Complex in Leiria (0) | 2024.10.25 |
마실와이드 | 등록번호 : 서울, 아03630 | 등록일자 : 2015년 03월 11일 | 마실와이드 | 발행ㆍ편집인 : 김명규 | 청소년보호책임자 : 최지희 | 발행소 : 서울시 마포구 월드컵로8길 45-8 1층 | 발행일자 : 매일



