
스튜디오 제라 (숲을 기억하는 사진관)
바람이 많은 제주에는 유독 삼나무가 많다.
그 까닭은 아프다. 일제 강점기에 무분별한 벌목이 있었고 그에 대한 보상차원으로 심어진 일본 삼나무가 지금까지 이어온 것이기 때문이다. 그렇지만 삼나무 덕에 벌거숭이 제주의 산과 들을 메울 수 있었고 노랗게 익은 감귤을 바람으로부터 보호해줄 수 있었다.

서귀포 남원읍 신흥리와 수망리 일대에 자리 잡은 ‘경흥농원’은 남원에서 처음 감귤농사를 시작했을 만큼 역사가 깊은 농장이다. 농장을 조성하며 감귤 밭 주변과 길에도 삼나무가 심어졌고, 50년이 넘은 삼나무 숲은 경흥농원에 없어서는 안 될 터즛대감 같은 존재가 되었다. 스튜디오 제라가 들어설 땅도 삼나무가 울타리가 된 키위 밭이었다. 7~90년대 농장은 마을 사람들의 주 수입원이었다. 마을 사람들의 인력으로 농장을 꾸려갔으며, 농장의 수익은 다시 농장에 쓰여 동백나무가 심기고 숲이 가꾸어졌다.
돌아가신 아버님으로부터 농장을 물려받은 의뢰인에게 있어 삼나무와 동백나무는 아버지와 다를 바 없는 존재였다. 지켜내고 보전하고 더 잘 가꾸어나가는 것이 아버지를 기억하고 사랑하는 방법이기에, 이 장소의 주인공은 숲이어야 했다. 경흥농원의 아름다운 숲을 보전하면서, 즐기고 기억하는 것으로 사진만큼 좋은 방법이 또 있을까. 이미 신혼부부에게 야외촬영의 명소로 자리 잡은 농원의 동백 숲을 활용하여 사진스튜디오를 계획한 의뢰인은 그래서 현명했다.

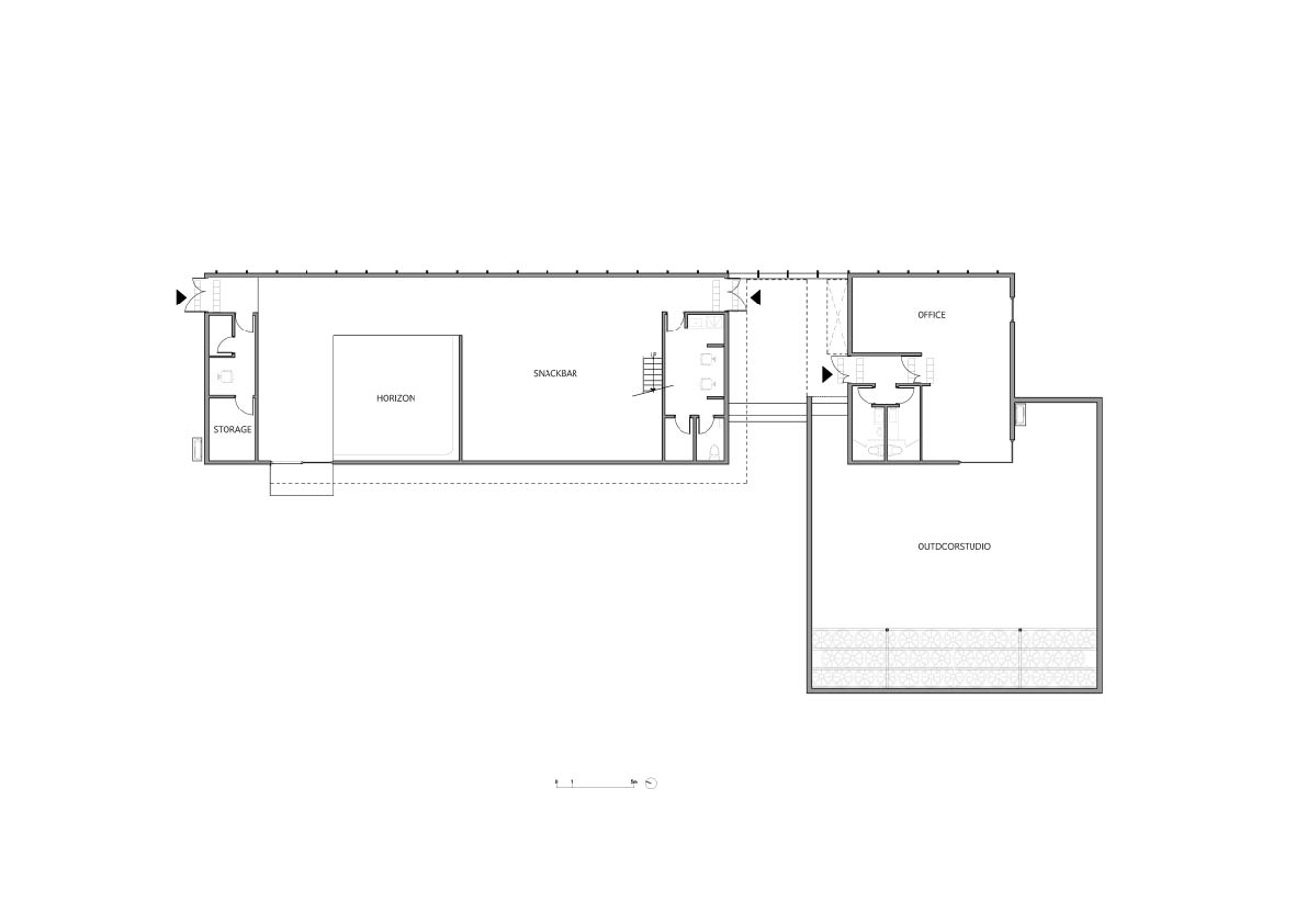
700평 남짓의 땅에 들어설 프로그램은 이렇다. 호리존이 구비된 실내스튜디오와 남, 여가 분리된 파우더룸, 피팅룸이 본동에 위치하고 별동은 운영사무실과 응접공간이 위치하게 된다.
외부에는 14m x 14m의 정방형 중정이 별동에 인접하여 위치하는데, 스몰웨딩이나 촬영, 행사를 대비한 공간이다.
건물의 후면은 방문객을 위한 주차공간이며, 전면의 정원은 사진촬영을 위한 자연의 스튜디오 역할을 한다.

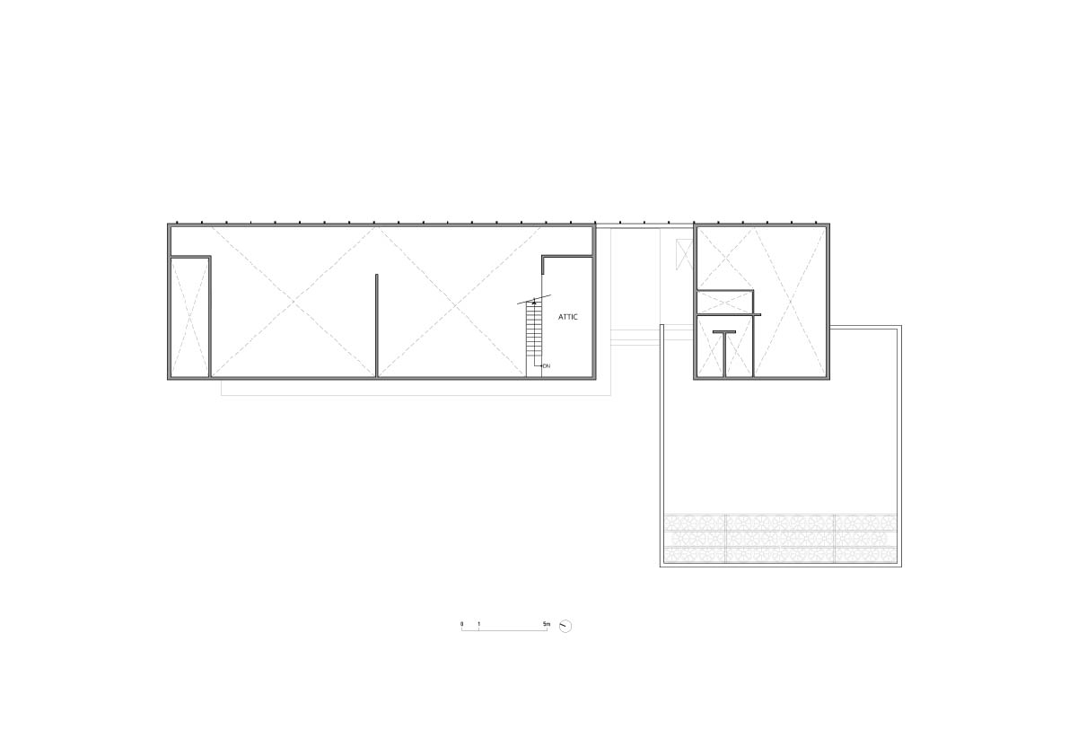
300㎡ 가 조금 안 되는 단층의 스튜디오는 존재를 드러내기 보다는 없는 듯 있기로 했다. 사진관은 사진을 찍는 곳이지 찍히는 대상은 아니라는 생각에서 그리했다. 그래서 가장 단순한 형태로 무심하게 숲 속에 파묻히게 했다.
단순한 매스마저도 드러내고 싶지 않아 사람의 시선이 닿는 정도의 높이까지는 미러스테인레스로 마감을 했다. 14m x 14m 의 중정은 미러스테인레스 덕분에 외부에서 완벽하게 은폐된다.

외부에서 인식되지 않는 이 장소는 숲 속의 또 다른 추상의 숲이며, 푸른 하늘과 붉은 송이석의 대비가 뚜렷한 비워진 공간이다. 중정의 안 벽은 규화 처리된 적삼목으로 마감되어 있는데, 수직으로 뻗은 삼나무 숲의 은유이며 하늘과 바닥을 자연으로 잇기 위한 시도였다.

행사나 스몰웨딩의 단상으로 쓰여 질 데크의 상부에는 마차바퀴가 캐노피처럼 설치되어 있는데, 빛이 좋은 날은 마차바퀴의 그림자가 바닥을 구르고 벽을 타고 오르는 것을 볼 수 있다.





건축가 투닷건축사사무소(주)
위치 제주특별자치도 서귀포시 남원읍 수망리 29-1
대지면적 2,331㎡
규모 지상 1층
건폐율 12.84 %
용적률 12.84 %
설계기간 2022. 11 – 2023. 07
시공기간 2023. 08 – 2024. 08
준공 2024. 08
대표건축가 조병규, 모승민
프로젝트건축가 조병규
디자인팀 심건규
구조엔지니어 제스연구소
기계엔지니어 ㈜한빛안전기술단
전기엔지니어 ㈜천일엠이씨
시공 (주)브라운트리 종합건설 (제이디홈플랜)
조경 김원희 가든웍스 + 어반노마드
건축주 주식회사 제라
사진작가 변종석
'Architecture Project > Other' 카테고리의 다른 글
| ECHO OF THE MOUNTAIN (0) | 2024.11.01 |
|---|---|
| Bodegas Faustino Winery (0) | 2024.10.30 |
| Sistemazione Spazio Pubblico Via Cademario (0) | 2024.10.24 |
| Electrical cabin recovery (0) | 2024.10.24 |
| TipiTop Tents, Glamping Tents (0) | 2024.10.23 |
마실와이드 | 등록번호 : 서울, 아03630 | 등록일자 : 2015년 03월 11일 | 마실와이드 | 발행ㆍ편집인 : 김명규 | 청소년보호책임자 : 최지희 | 발행소 : 서울시 마포구 월드컵로8길 45-8 1층 | 발행일자 : 매일



