
There has been a change in the way we live. After the pandemic people have a need to go out, to not be cooped up, habits that have changed and will change forever. The terraces of houses have ceased to be that lost space that people tried to eliminate, instead, the interior apartments of big cities that are illuminated and ventilated into dark and gloomy patios are options to be avoided. Mentalities have changed, people need to go out, enjoy nature, have new experiences...
All these consequences have had an enormous impact on the camping sector, surely the part of the tourism
sector with the greatest potential for development. In these years good examples are emerging that demonstrate the capacity of the sector to develop its potential, family tourism, recreational areas, sleeping in nature...
This project was born after 6 years of work of the Canobardin architecture team in the world of camping. During that time, looking for glamping tents for their clients, they could not find options that fit them. They were usually too rudimentary and those that were good, with African aesthetics that did not fit with the design standards of the projects on the European continent.
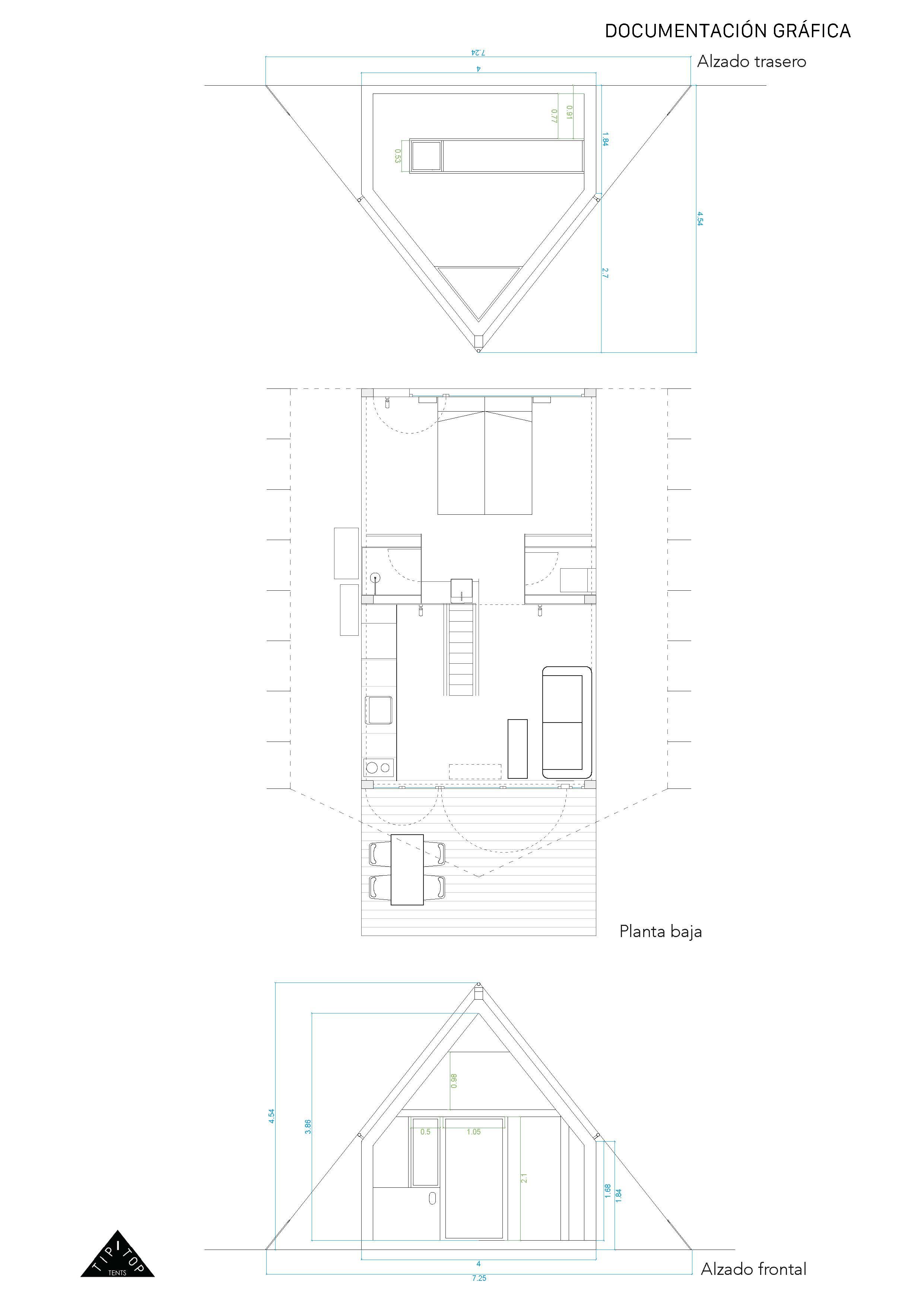
TipiTop Tents, seeks to enhance the emblematic element of camping, the tent. That is why we started from the global imaginary of what a tent is: a triangular prism. With a structure made entirely of laminated pine wood, a volume is formed from three porticoes that will support the tarpaulins and give shape to the tent. This structure also serves as an organizer of space delimiting a public living area with kitchen, another private area with a bathroom and two double rooms, one downstairs, and one upstairs, connected by a staircase boat, in a large and cozy loft. The materials, all of them made of wood, fabric or recyclable panels, are arranged in a simple way looking for a resounding design in wood, sand and white colors. The goal is to generate a large and cozy space that brings us the rotundity of the icon of the store.
All the details have been worked together: furniture, fabrics, electrical appliances, lighting, toilets, etc... so that the result is a global and coherent proposal.
On the outside, the front and rear facades are made of sanded pine wood and glass. The side facades are closed with two separate tarpaulins between them. The inner one is made of cotton and breathable and the outer one of waterproof PVC. The combination of both and this separation, generates a climatic comfort thanks to the fact that this air cushion acts as insulation avoiding the greenhouse effect.
TipiTop Tents is not only a proposal for a tent, all of them together form real landscapes, articulating squares and ordering the space. The play of tarpaulins and the shadows of the trees projected on them makes the tents integrate with the environment and duplicate the foliage. At night, however, they become lamps that illuminate and set the mood outside, transforming the squares into warm and welcoming places.
TipiTop has now set up 34 tents in Tarragona at Tamarit Beach Resort, and another 40 tents at Costa del Sol Glamping Village, next time it will set up in...










건축가 Canobardin (Julio Cano + Bárbara Bardin)
위치 Spain, Tamarit Beach Resort. Tarragona. Units: 34 / Costa del Sol Glamping Village. Units: 40
준공 2023
건축주 TipiTop Tents
사진 Imagen Subliminal (Miguel de Guzmán + Rocío Romero), Nico Diaz
'Architecture Project > Other' 카테고리의 다른 글
| Sistemazione Spazio Pubblico Via Cademario (0) | 2024.10.24 |
|---|---|
| Electrical cabin recovery (0) | 2024.10.24 |
| 코르테베키아 광장 / 인아웃 아르키테투라 (0) | 2024.10.22 |
| Pustevny Gateway (0) | 2024.10.22 |
| Renovation of Shanghai Relay Factory (0) | 2024.10.18 |
마실와이드 | 등록번호 : 서울, 아03630 | 등록일자 : 2015년 03월 11일 | 마실와이드 | 발행ㆍ편집인 : 김명규 | 청소년보호책임자 : 최지희 | 발행소 : 서울시 마포구 월드컵로8길 45-8 1층 | 발행일자 : 매일


