
농어촌관광휴양단지 조성사업을 위해 매립한 인공 대지로, 2026 여수세계섬박람회 활용을 위해 도로와 대지의 용도가 정해져 있는 상황이었다. 이에 따라 박람회 이후 지역 주민의 사용을 고려한 문화 및 집회시설을 설립하는 것이 목적이었다.
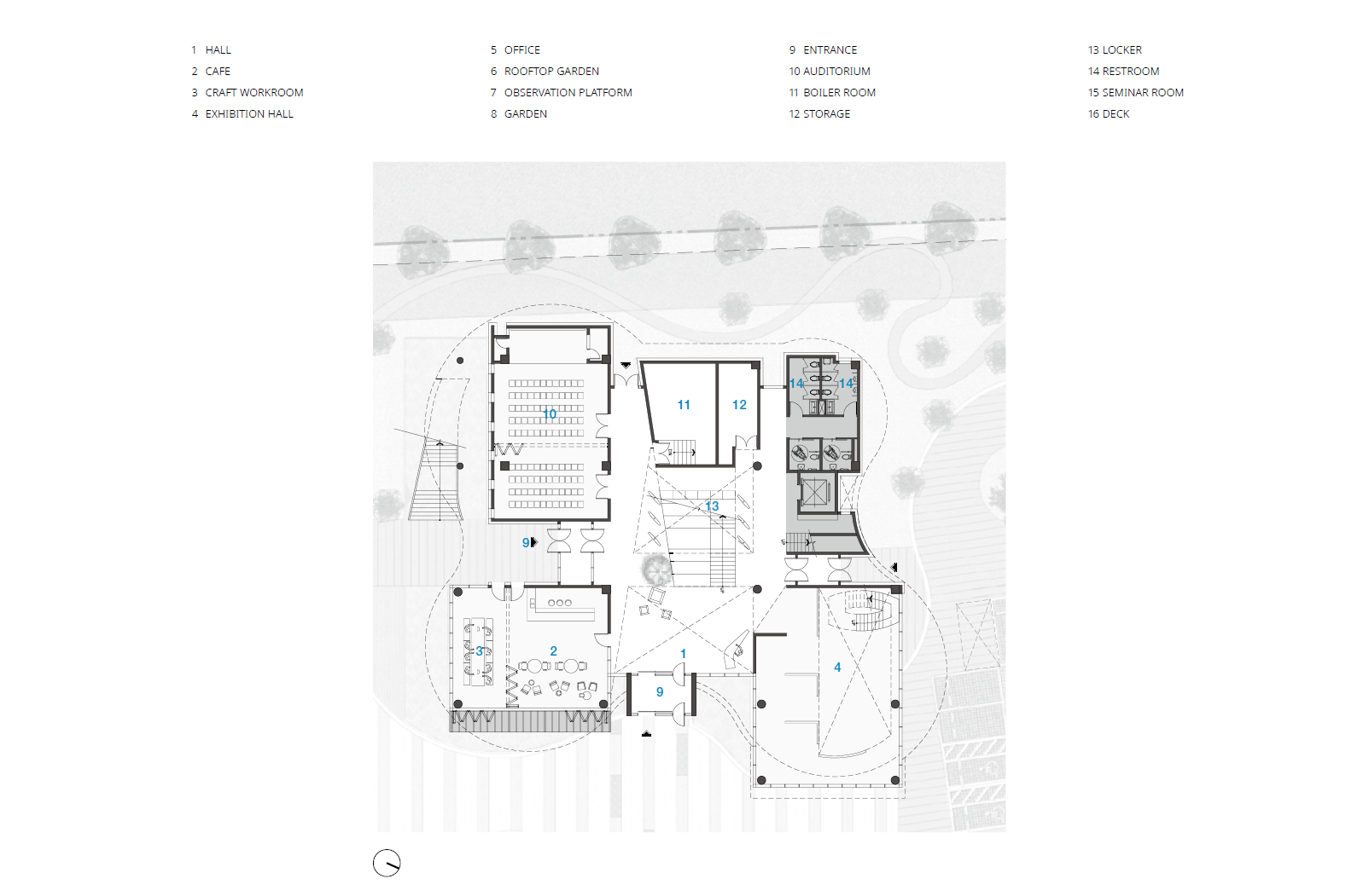
배치는 인접 대지의 체험 공간과 연계가 가능하도록 서측에 계획하였으며, 차량 출입구와 주차장을 북동쪽에 배치하여 북측 행사장 주차장과 연계를 고려했다. 보행 접근은 남쪽과 동쪽 인접도로에서 이루어져 안전한 보차분리가 이루어진다. 프로그램은 박람회 행사와 지역 주민이 사용할 수 있는 전시시설, 교육시설, 휴게 공간과 전망대로 구성되며, 동선의 자연스러운 연계와 조망이 가능하도록 계획하였다.
문화센터 1층에는 마당으로 열린 휴게시설과 중앙홀을 통해 접근 가능하다. 대형 전시물을 고려한 상부 오픈형 전시실과 행사 시 별도 출입을 고려한 다목적강당을 배치했다. 중앙홀에서 대형 계단으로 연결된 2층에는 교육 공간과 사무실을 계획하였다. 옥외정원에서 외부 계단을 통해 옥상 하늘전망대로 접근할 수 있다.




건축가 플라건축사사무소
위치 전라남도 여수시 화정면 개도리 1819번지 일원
대지면적 5,143.00㎡
건축면적 967.55㎡
연면적 1,238.88㎡(지침 대비 +2.39%)
규모 지상 2층
건폐율 12.94%
용적률 24.09%
주요마감 세라믹패널, 알루미늄패널, 로이복층유리
주차개요 26대(장애인주차 2대, 대형주차 2대 포함)
대표건축가 정준철
프로젝트건축가 (플라건축사사무소)정준철 / (맥스유엔지니어링건축사사무소)김기준
디자인팀 (플라건축사사무소)신나영, 김민석 / (맥스유엔지니어링건축사사무소)김영태
발주자 전라남도 여수시
해당 프로젝트는 건축문화 2024년 10월호(Vol. 521)에 게재되었습니다.
The project was published in the October, 2024 recent projects of the magazine(Vol. 521).
October 2024 : vol. 521
Contents : COMPETITION : RECENT PROJECTSilver for Rest / so-ul architects은빛 숲 / 소을건축사사무소Ginkgo Gallery / MORE Architecture긴코 갤러리 / 모어 아키텍처The April House / YAYArchitects사월애가(四月愛家) / (주
anc.masilwide.com
'Plans' 카테고리의 다른 글
| 부곡2동 행정복지센터 신축사업 _ 입상작 A (0) | 2024.11.05 |
|---|---|
| 부곡2동 행정복지센터 신축사업 _ 당선작 (0) | 2024.11.04 |
| 구미시 첨단방위산업진흥센터 건립공사 _입상작 (0) | 2024.11.01 |
| 농산어촌유학마을 조성사업 설계공모_당선작 (0) | 2024.10.31 |
| 용인시의회 증축사업 _ 입상작 B (0) | 2024.10.31 |
마실와이드 | 등록번호 : 서울, 아03630 | 등록일자 : 2015년 03월 11일 | 마실와이드 | 발행ㆍ편집인 : 김명규 | 청소년보호책임자 : 최지희 | 발행소 : 서울시 마포구 월드컵로8길 45-8 1층 | 발행일자 : 매일



