
다목적 실내 수상 스튜디오는 다목적 대형 스튜디오 ‘스튜디오 큐브’의 다양한 특수목적 촬영을 위해 야외촬영장 대지에 조성된 시설이다. ‘스튜디오 큐브’는 첨단 영상 제작 인프라 구축사업을 통해 2017년부터 개관하여 운영되고 있었다. 점차 다양해지는 특수한 촬영지의 수요가 늘어남에 따라 영상을 제작할 공간 마련을 위해 ‘다목적 실내 수상 스튜디오 설계공모’가 개최되었다. 건축가는 24개월간 스튜디오 증축에 참여한 경험을 바탕으로 공모에 참여하였고 ‘스튜디오 큐브’의 대형 스튜디오의 공간과 프로그램 구성에 따른 최적화된 공간을 제시하며 공모전에서 당선되었다.
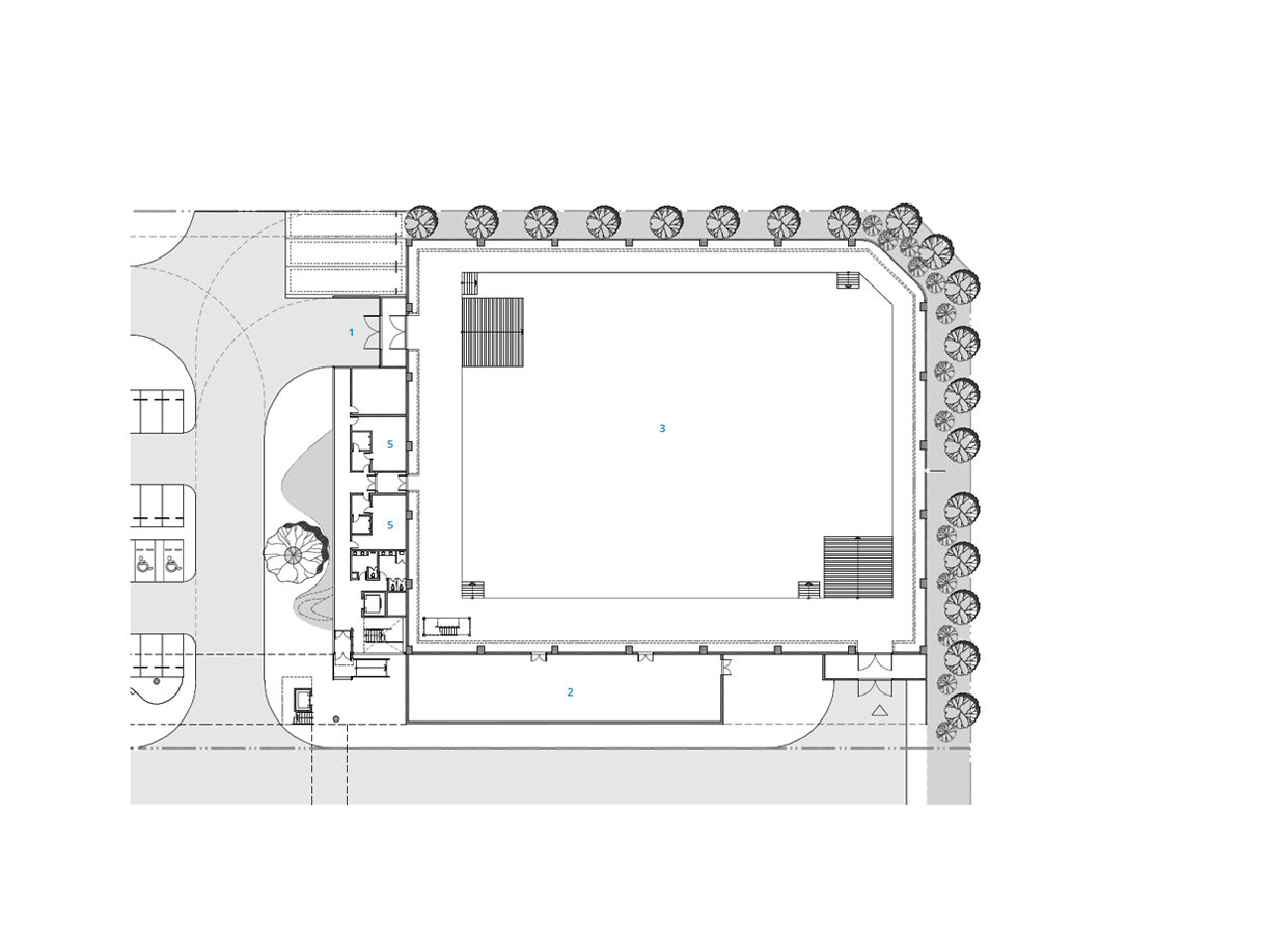
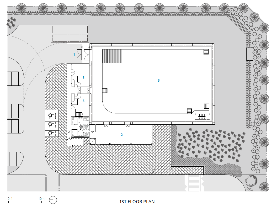
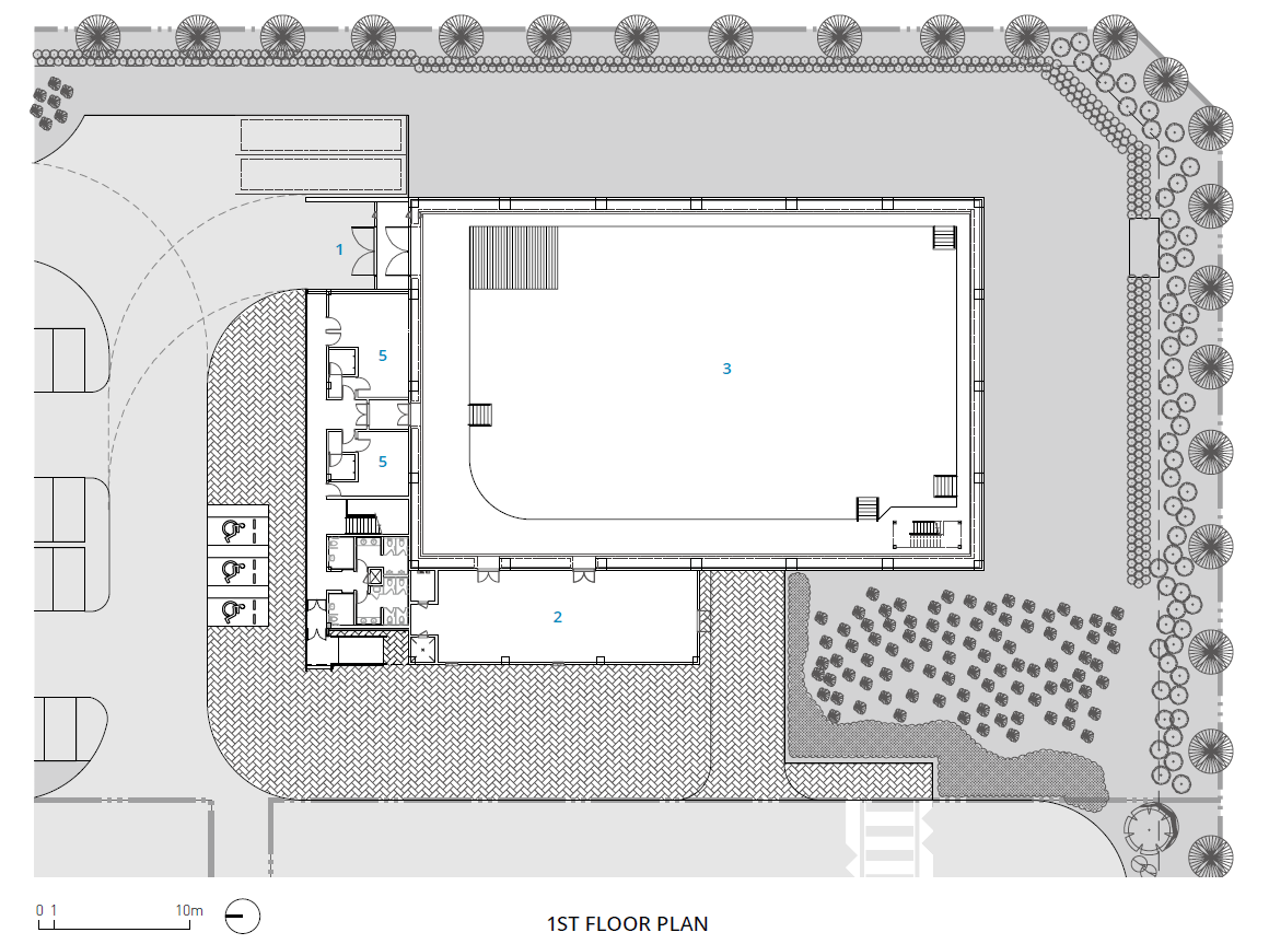
건축물의 배치는 단지 내 도로의 선형을 따르면서 주 소음원인 인근의 백화점과 호텔, 주차장 출입구로부터 최대한 이격하였다. 스튜디오 내부에는 대형 윙바디 차량 운행이 가능하도록 차량 동선을 고려했고, 수조에 경사로를 설치하여 수조 하부까지 차량 진입이 가능하다. 스튜디오 층고는 유사 사례를 참고하여 수조에 물을 채우고 촬영하는데 지장이 없는 깊이와 천장고를 최대한 확보했다.흥미로운 입면을 만들기 위해 부속실 복도에 면한 외벽은 옥외주차장 방향으로 산처리된 유리를 복층으로 적용하였는데, 이를 통해 촬영장 내부 환경을 쾌적하게 하며 촬영 시의 프라이버시를 확보할 수 있었다. 스튜디오 외벽은 표면에 줄눈이 있는 콘크리트가 쓰였고, 외부용 수성페인트와 경질우레탄 패널로 마감되었다. 스튜디오 내부는 외부 환경에 영향을 받지 않도록 NC 25, STC 65를 적용한 음향 계획을 제안했고, 무대는 세트를 설치할 때와 촬영할 때 편의성을 고려하여 바턴(무대 조명장치 및 막 승하강 장치), 이동식 크레인, 레일 방식의 크로마키 커튼을 설치하였다.
한편 주차면에는 스토퍼를 설치하는 대신 옥외주차장과 다목적 실내 수상 스튜디오 사이에 스튜디오 부속실을 설치하여 양쪽에서 이용할 수 있다. 주차장은 경사가 있어서 필요시 크로마키 보드를 활용하여 야외 수상 촬영장으로 이용 가능하다.















건축가 플라건축사사무소
위치 대전광역시 유성구 대덕대로 480
용도 방송통신시설
대지면적 64,785.80㎡
건축면적 1,444.54㎡
연면적 1,609.66㎡
규모 지상 2층
건폐율 2.23%
용적률 2.48%
준공 2023. 5.
구조 철근 콘크리트조, 철골조
대표건축가 정준철
프로젝트건축가 (플라 건축사사무소)정준철, 신나영
디자인팀 (플라 건축사사무소)김형권
발주자 한국콘텐츠진흥원
사진작가 이남선
해당 프로젝트는 건축문화 2024년 10월호(Vol. 521)에 게재되었습니다.
The project was published in the October, 2024 recent projects of the magazine(Vol. 521).
October 2024 : vol. 521
Contents : COMPETITION : RECENT PROJECTSilver for Rest / so-ul architects은빛 숲 / 소을건축사사무소Ginkgo Gallery / MORE Architecture긴코 갤러리 / 모어 아키텍처The April House / YAYArchitects사월애가(四月愛家) / (주
anc.masilwide.com
'Architecture Project > Cultural' 카테고리의 다른 글
| Wuto space (0) | 2024.11.06 |
|---|---|
| Fondation Maeght Extension (0) | 2024.11.01 |
| SHEN NONG SHI (0) | 2024.10.15 |
| Ginkgo Gallery (0) | 2024.10.14 |
| Stellar Isle (0) | 2024.09.26 |
마실와이드 | 등록번호 : 서울, 아03630 | 등록일자 : 2015년 03월 11일 | 마실와이드 | 발행ㆍ편집인 : 김명규 | 청소년보호책임자 : 최지희 | 발행소 : 서울시 마포구 월드컵로8길 45-8 1층 | 발행일자 : 매일



