
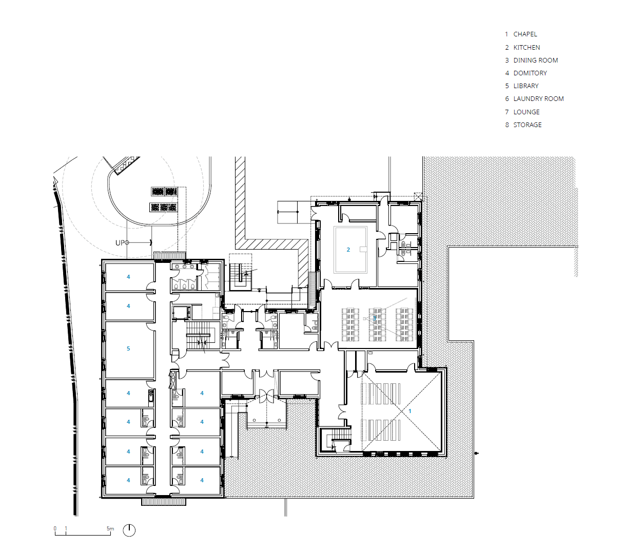
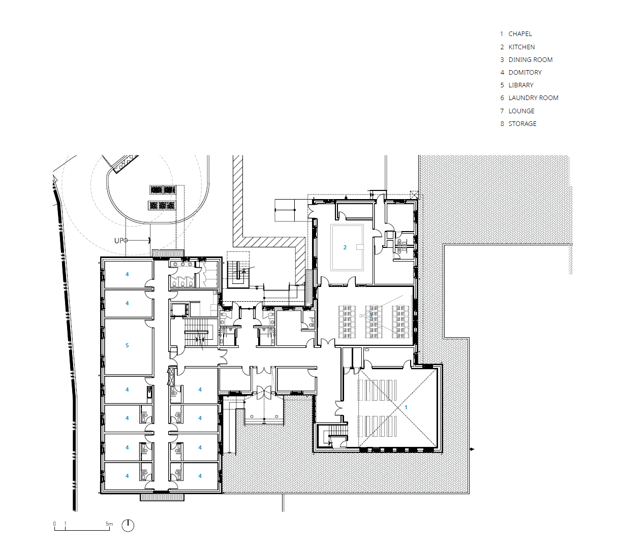
관항리 수도원은 관항리 초입 대지에 지어진 종교시설이다. 대지는 주변이 논밭으로 둘러싸여 있으며 지평선이 멀리 보이는 낮은 구릉이다. 관항리 수도원은 넓은 다각형의 형태로 북측의 관항리 마을과 면하고 있다. 마을길에서 콘크리트로 포장된 급경사 길을 오르면 북측으로 옥외주차장이 있고, 서측으로는 수도원이 있어 마을에서 시각적인 간섭을 받지 않는다.
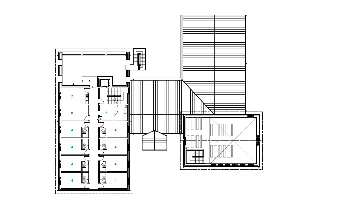
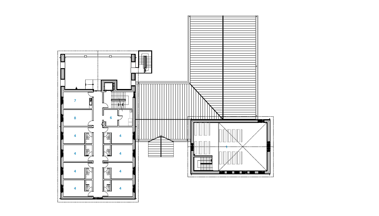
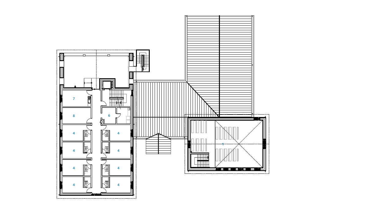
건축가는 기존에 위치한 찜질방 구조물을 철거하면서 지하의 기계실과 일부 시설은 재활용하여 수도원의 공간으로 사용할 수 있도록 계획했다. 프로그램은 예배 공간인 성당, 학습 공간인 도서실, 식사와 교류 공간인 식당, 묵상과 거주 공간인 기숙사로 이루어져 있다. 대지의 여건을 고려하면서 각 프로그램 배치를 계획했는데, 진입로에서 마주보는 자리에 성당을 배치하고 식당은 서비스 차량이 접근 가능하도록 북측에 배치했다. 기숙사는 동향과 서향의 2층 복도를 따라 있으며, 성당의 식당과 연결된 통로 가까이 수도원장실과 관리실이 있다. 학습 공간인 도서실은 박공 지붕의 하부 공간을 활용했다.
주요 외장재는 벽체는 점토벽돌, 지붕에는 동판을 사용하였다. 여기에 외부에서 보이는 벽돌 모듈과 내부 공간에도 벽돌을 사용하여, 종교시설 사용자의 요구사항을 만족할 수 있는 입면으로 계획했다. 평면에서 벽돌 장변 240mm를 잘라서 쓰지 않고 온장으로 사용하기 위해 평면과 단면의 전체 길이와 개구부를 벽돌 모듈에 맞췄다. 성당의 내부 마감재도 벽돌을 사용하였는데, 통일된 마감재가 실내 공간에서도 일체된 공간의 경험을 만든다.















건축가 플라건축사사무소
위치 경기도 화성시 정남면 관항리 190-1
용도 종교시설
대지면적 9,216.00㎡
건축면적 1,194.43㎡
연면적 1,342.84㎡
규모 지하 1층, 지상 2층
건폐율 12.96%
용적률 14.57%
준공 2022. 8.
구조 철근콘크리트조
대표건축가 정준철
프로젝트건축가 (플라 건축사사무소)정준철 / (건축사사무소 하오)김세원
디자인팀 (플라 건축사사무소)신나영 / (건축사사무소 하오)이홍원, 김계원
발주자 (재)미리내천주성삼성직수도회
사진작가 이남선
해당 프로젝트는 건축문화 2024년 10월호(Vol. 521)에 게재되었습니다.
The project was published in the October, 2024 recent projects of the magazine(Vol. 521).
October 2024 : vol. 521
Contents : COMPETITION : RECENT PROJECTSilver for Rest / so-ul architects은빛 숲 / 소을건축사사무소Ginkgo Gallery / MORE Architecture긴코 갤러리 / 모어 아키텍처The April House / YAYArchitects사월애가(四月愛家) / (주
anc.masilwide.com
'Architecture Project > Religious' 카테고리의 다른 글
| Changdai Promiseland (0) | 2024.10.30 |
|---|---|
| Chapel of Music (0) | 2024.10.29 |
| Meditation Chapel (0) | 2024.05.30 |
| The Grave of Kamakura Yukinoshita Church (0) | 2023.07.03 |
| EUNSAM CHURCH (0) | 2023.05.08 |
마실와이드 | 등록번호 : 서울, 아03630 | 등록일자 : 2015년 03월 11일 | 마실와이드 | 발행ㆍ편집인 : 김명규 | 청소년보호책임자 : 최지희 | 발행소 : 서울시 마포구 월드컵로8길 45-8 1층 | 발행일자 : 매일



