

실존적 순례공간
Existential Pilgrimage Space
멍때림 채플은 도시 공동체 속에 있는 전통적인 예배를 드리는 장소라기보다, 대자연 속에서 신 앞의 단독자로 실존을 누릴 수 있도록 그야말로 도시를 벗어난 순례자들을 위한 작은 기도 공간의 요청에서 시작되었다. 그리하여 나와 건축주는 모든 것을 걷어내려는 형식적인 미니멀 건축의 형식을 답습하기보다, 방문자의 실존을 담을 수 있는 그릇 역할에 충실한 기능주의적 단순성을 채택하였다.
The Meditation Chapel is less a place for traditional worship within an urban community, and more a sanctuary for solitary individuals to savor their existence before the divine in nature, essentially a retreat from the city. It originated from the request for a small prayer space for these pilgrims. Hence, rather than mimicking the form of minimalistic architecture which aims to strip everything down, the architect opted for functional simplicity faithful to the role of a vessel that can hold the visitor's existence.
하나의 들린 볼륨
One Lifted Volume
대자연 속에 놓인 단순한 볼륨의 채플은 세속으로부터의 분리를 의미하는 들린 상자로 건축된다. 최소의 시퀀스와 수직팽창 효과로써 경건한 공간을 조성한다. 이곳을 방문하는 이들에게는 동선을 늘려 자연과 공간의 풍요를 누리게 하는 산책적 건축 방식보다는 오히려, 짧고 간결하게 빈 하늘 앞에 도달하여 신 앞의 단독자로서 직접 설 수 있게 한다.
The simple chapel volume, set in the vast nature, is constructed as a lifted box, signifying a separation from the secular world. It creates a reverent space through minimal sequence and the effect of vertical expansion. Rather than adopting a strolling architectural approach that extends the path for visitors to enjoy the abundance of nature and space, it allows them to reach the open sky quickly and succinctly, and to stand directly as solitary individuals before the divine.




네 개의 면
Four Surfaces
채플 내부는 각자의 쓰임새에 맞는 4개의 면, 즉 바다, 소리, 빛 그리고 이를 담는 배경의 테마를 가진다. 정면은 흐릿한 서해와 자연광을 머금고 무념의 전경을 담을 수 있는 콘크리트 벽으로 드리워져 있다. 파도가 넘실대는 흔한 바다의 드라마틱한 전경이 아니라 먹먹한 서쪽 바다로 채워져서 더욱 숙연하다. 그래서 신앙의 권유를 의도하는 조촐한 강단마저도 필요치 않은 공간이 된다.
배면은 때때로 천상의 하모니를 공감각적으로 표현할 음향의 도구 오르간이 설치된 벽으로서, 예의 검소하면서도 누추하지 않고, 화려하지만 사치스럽지 않은 벽면의 한 전형이다. 그리고 주변으로 둘러쳐진 녹음을 환유하는 벽은 모노톤으로 구성되고 균형 잡힌 비례로 디자인됐다.
12개 사각 깔대기 모양의 스테인드글라스는 자연의 메타포로서 중세교회의 색유리가 성서의 내용을 구체적으로 표현하려 한 것에 비해, 여기서는 방문자가 자연을 연속적으로 인식하도록 추상적 녹음의 모티브로 내외부를 채운다.
채플의 출입문이 놓인 벽면은 시야를 안쪽에서 바깥 세계로 안내하고, 둘러친 세 개 테마의 벽을 바라보는 관찰자 시점의 빈 벽이다. 그리고 해가 기우는 오후 시간에는 길게 드리우는 스테인드글라스의 광선을 수용하는 스크린이 된다.
The interior of the chapel is divided into four surfaces, each with its own purpose and theme: the sea, sound, light, and the background that encapsulates them. The front is covered with a concrete wall that can capture a mindless view, holding the hazy West Sea and natural light. Instead of the dramatic view of the common sea where waves sway, it is filled with the dark western sea, making it more solemn. Thus, it becomes a space where even a modest pulpit intended for religious persuasion is unnecessary.
The back surface is a wall where the organ, a tool that occasionally expresses the harmony of heaven in a synesthetic way, is installed. It's a typical example of a wall that's modest yet not shabby, vibrant but not luxurious. And the walls welcoming the greenery around are composed in monochrome and designed in balanced proportions.
The 12 funnel-shaped stained glass windows serve as metaphors of nature. Unlike the colored glass of medieval churches that tried to concretely express the contents of the Bible, here, they fill the interior and exterior with the abstract motif of greenery, enabling visitors to continuously perceive nature.
The wall where the chapel's entrance is placed guides the view from the inside to the outside world. It's an empty wall from the observer's perspective, looking at the other three themed walls. And in the late afternoon when the sun sets, it becomes a screen that accommodates the long ray of light from the stained glass.



세 가지 공간
Three Spaces
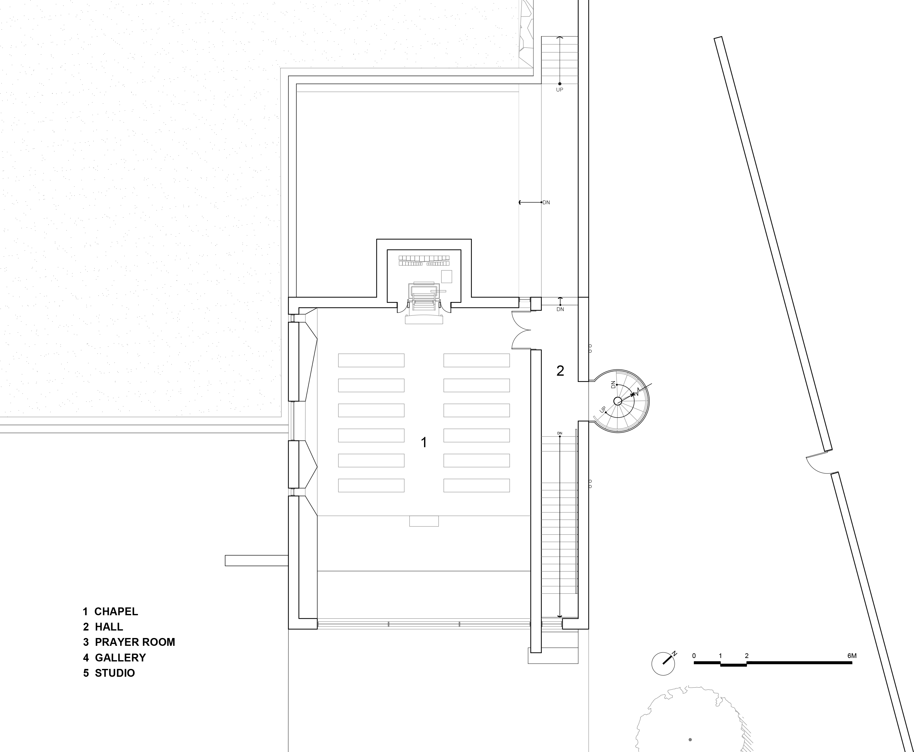
멍때림의 기능을 견인하는 세 가지 공간으로 이 채플은 이뤄져 있다. 먼저 제임스 터렐 (James Turrell)의 설치예술처럼 끝없이 희미한 전경을 바라보는 ‘바다 채플’이 있고, 또한 고요하게 빛의 근원에 집중할 수 있는 ‘골방 채플’이 있다. 그리고 녹음으로 둘러쳐져서 오로지 하늘만을 인식하게 되는 ‘하늘 채플’이 옥상에 놓여 있다. 그래서 멍때림 채플의 공간적인 경험이 단순한 볼륨에서 비롯되나 다채롭고도 지속적이다.
바다 채플은 먼 서해의 희미한 수평선과 중성적 하늘 전경을 바라보는 곳으로 여러 명이 함께 사용하는 공간이며, 풍요로운 예술적 경험을 지원하는 공동체적 멍때림 공간이다.
골방 채플은 협소하고 길며, 전면 벽으로부터 자연광이 흘러들어와 벽면을 타고서 바닥에 이르는 광선으로 경건함을 고취한다. 이곳은 홀로 깊은 묵상에 빠져들 수 있도록 배려되는 빛의 멍때림 공간이며, 바다 채플의 전면 상부에 독립된 공간으로 놓여 있다.
하늘 채플은 네모반듯한 옥상 공간으로, 건물 너머 언뜻언뜻 보이는 산등성이들과 아래쪽 건물들을 적절히 가리는 콘크리트 벽면에 둘러쳐져 온전한 위요감을 획득한다. 수직으로는 하늘 멍때림에 집중할 수 있고 수평적으로는 끝없는 멍때림을 유발한다.
The chapel is composed of three spaces that pull the function of mindfulness. Firstly, there's the 'Sea Chapel, ' where one gazes at an endlessly dim view, similar to James Turrell's installation art, and also the 'Closet Chapel, ' where one can calmly focus on the source of light. Furthermore, the 'Sky Chapel, ' where only the sky is perceived surrounded by greenery, is placed on the rooftop. Therefore, the spatial experience of the mindfulness chapel is diverse and sustained, originating from the simple volume.
The Sea Chapel is a place where several people look at the faint horizon of the far West Sea and the neutral sky view. It is a communal mindfulness space that supports a rich artistic experience.
The Closet Chapel is narrow and long, and the devoutness is heightened by the natural light flowing in from the front wall, reaching the floor along the wall. This place is a light mindfulness space that allows for deep contemplation alone, and it is placed as a separate space in the upper front of the Sea Chapel.
The Sky Chapel is a rectangular rooftop space that achieves a complete sense of awe surrounded by concrete walls that appropriately hide the faintly visible ridges beyond the building and the buildings below. Vertically, it allows for focusing on sky mindfulness and horizontally, it evokes endless mindfulness.





건축가 Atelier KOMA
위치 Incheon, South Korea
용도 종교시설
연면적 185.85 m²
건축면적 142.32 m²
준공 2020 - 2023
대표건축가 Lee Eunseok & Atelier KOMA
스테인글라스 디자인 Jeong Kyungmi
구조 엔지니어 Edun Structural
사진작가 Lim Juneyoung (Urban Azit)
'Architecture Project > Religious' 카테고리의 다른 글
| Chapel of Music (0) | 2024.10.29 |
|---|---|
| Gwanhang-ri Monastery (0) | 2024.10.24 |
| The Grave of Kamakura Yukinoshita Church (0) | 2023.07.03 |
| EUNSAM CHURCH (0) | 2023.05.08 |
| PAPO church (0) | 2023.04.03 |
마실와이드 | 등록번호 : 서울, 아03630 | 등록일자 : 2015년 03월 11일 | 마실와이드 | 발행ㆍ편집인 : 김명규 | 청소년보호책임자 : 최지희 | 발행소 : 서울시 마포구 월드컵로8길 45-8 1층 | 발행일자 : 매일



