

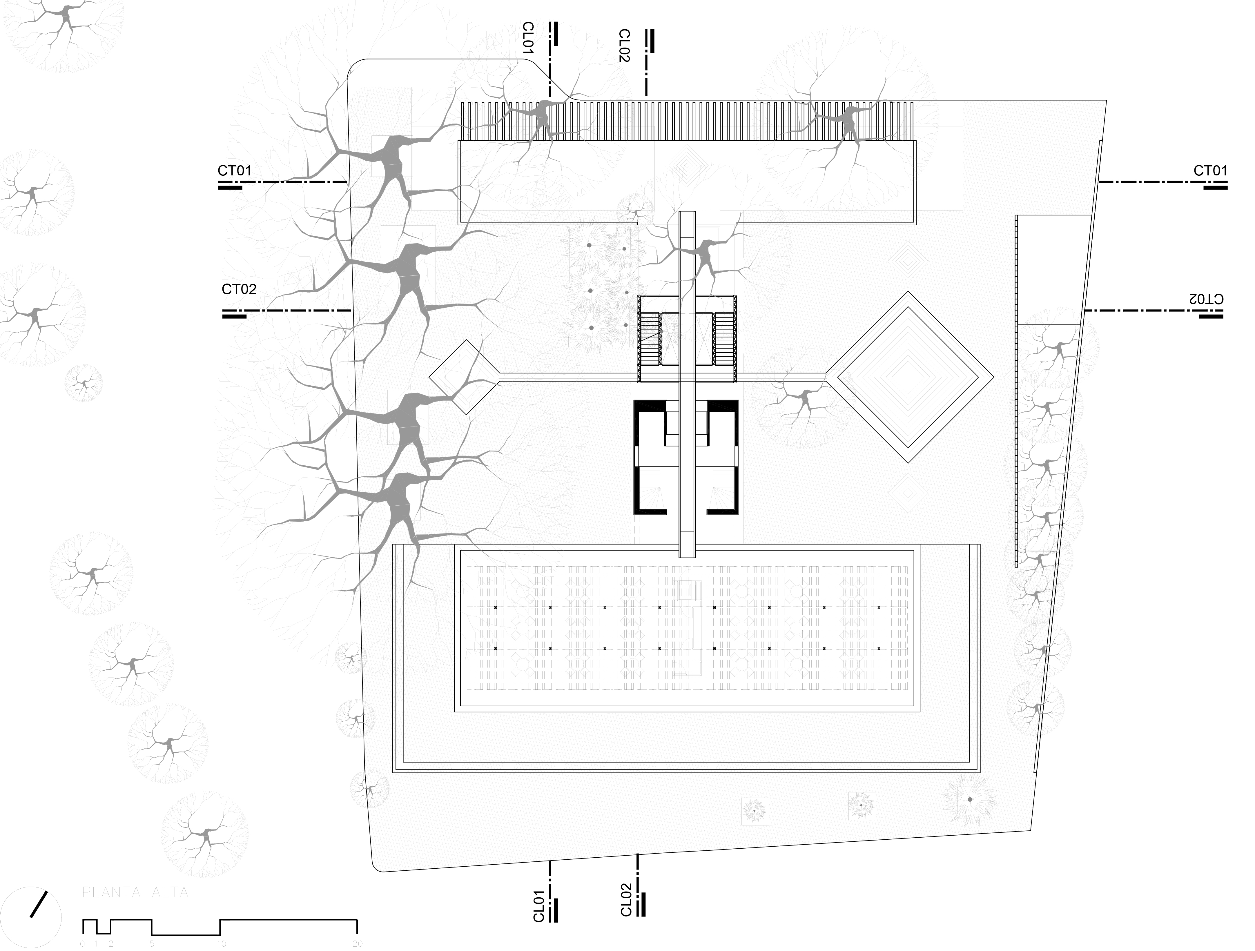
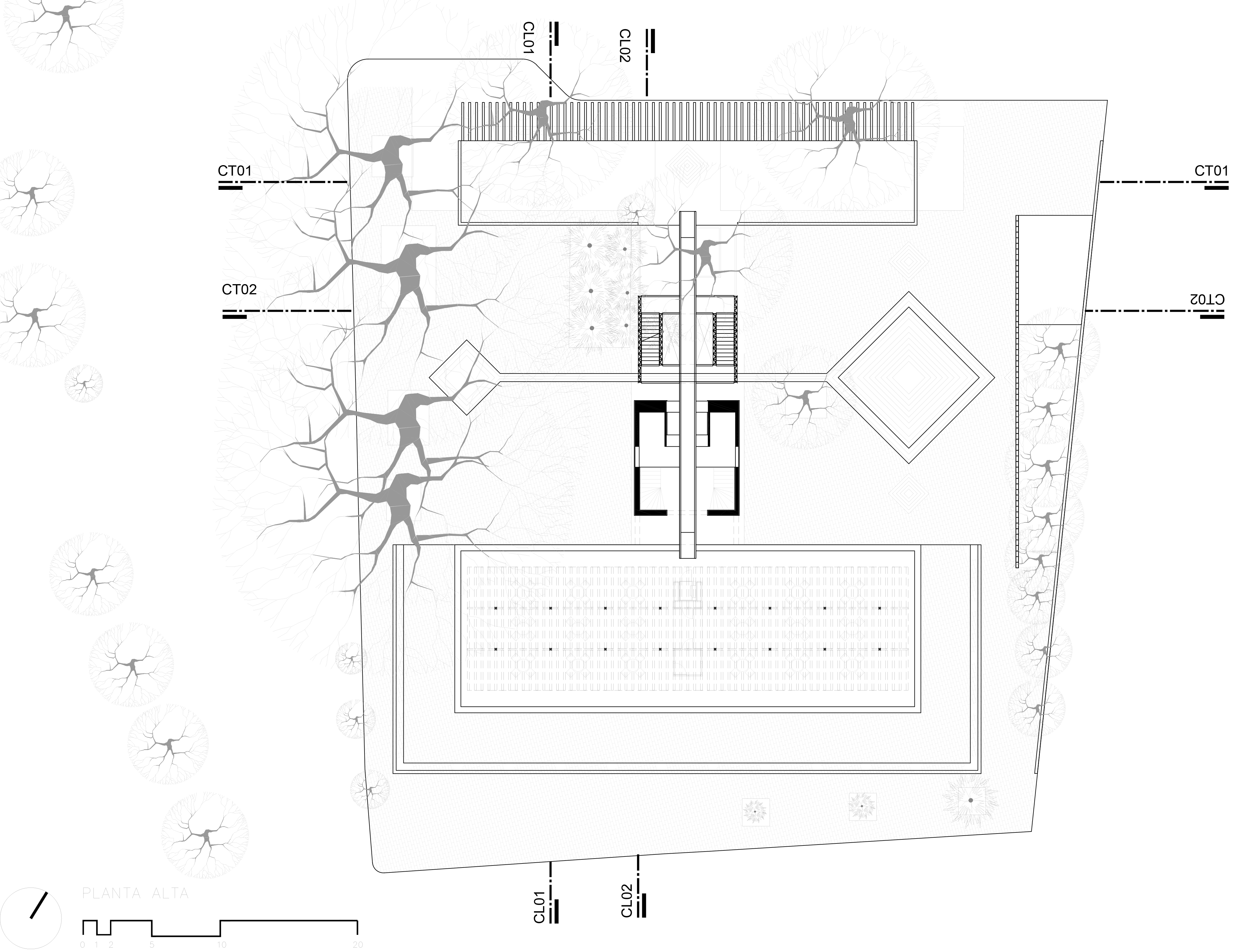
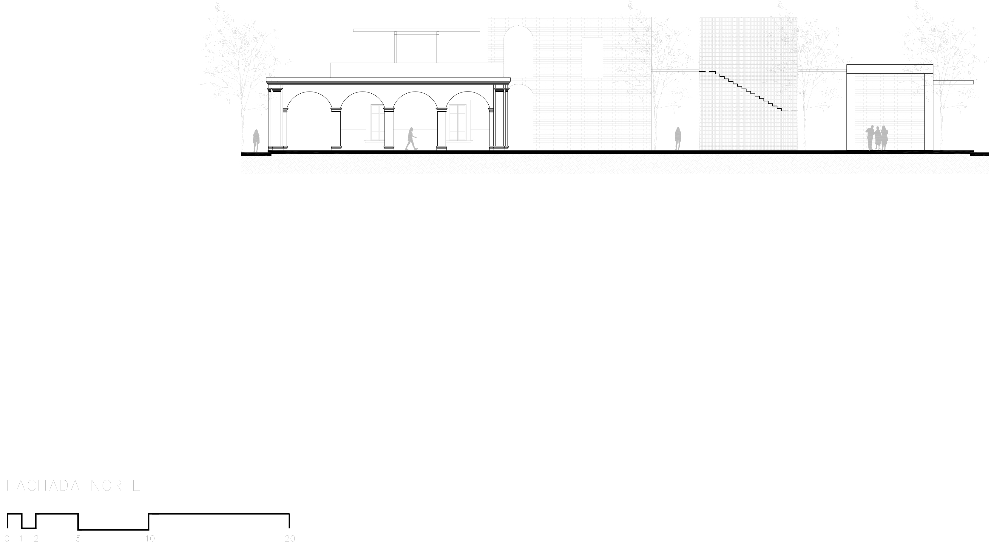
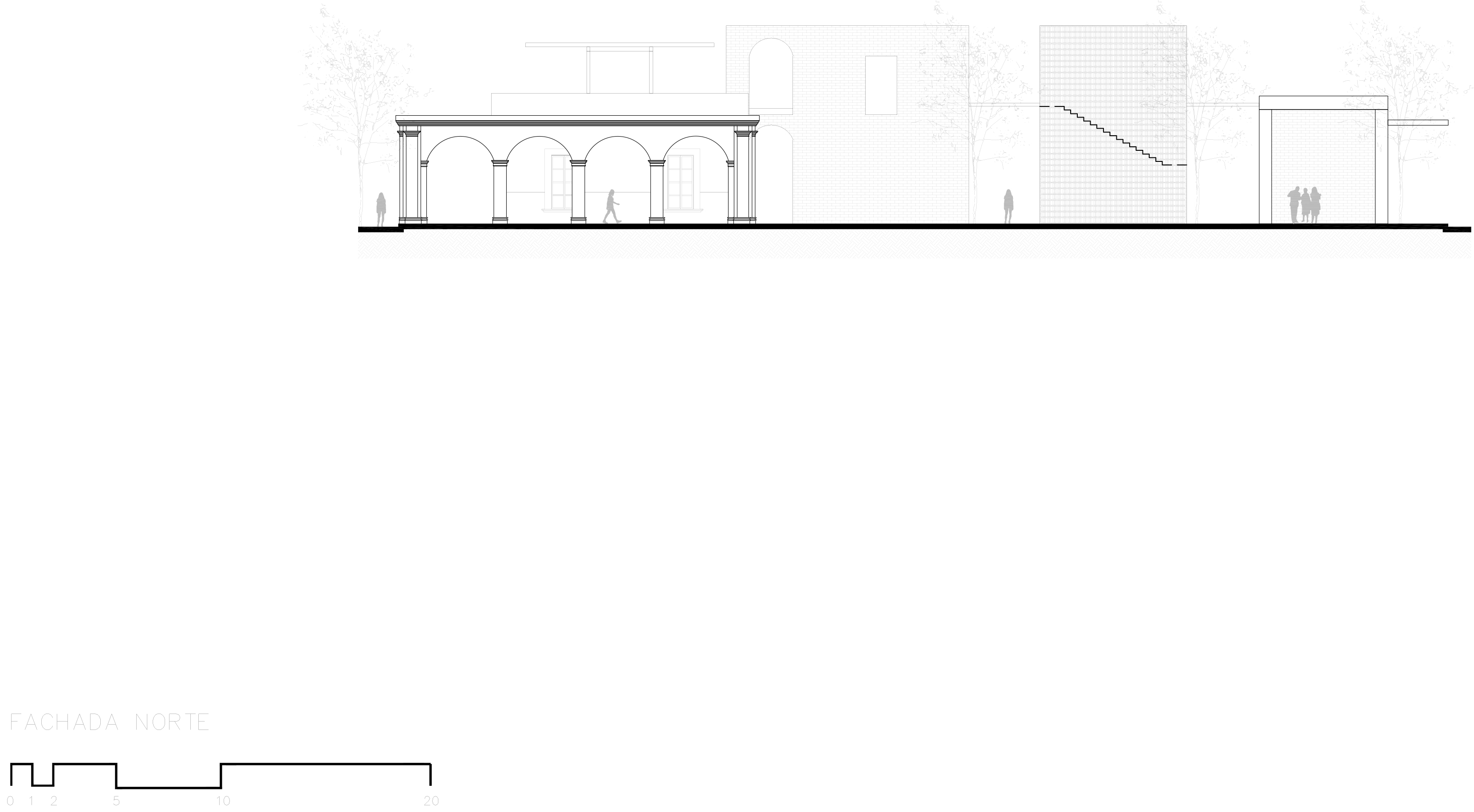
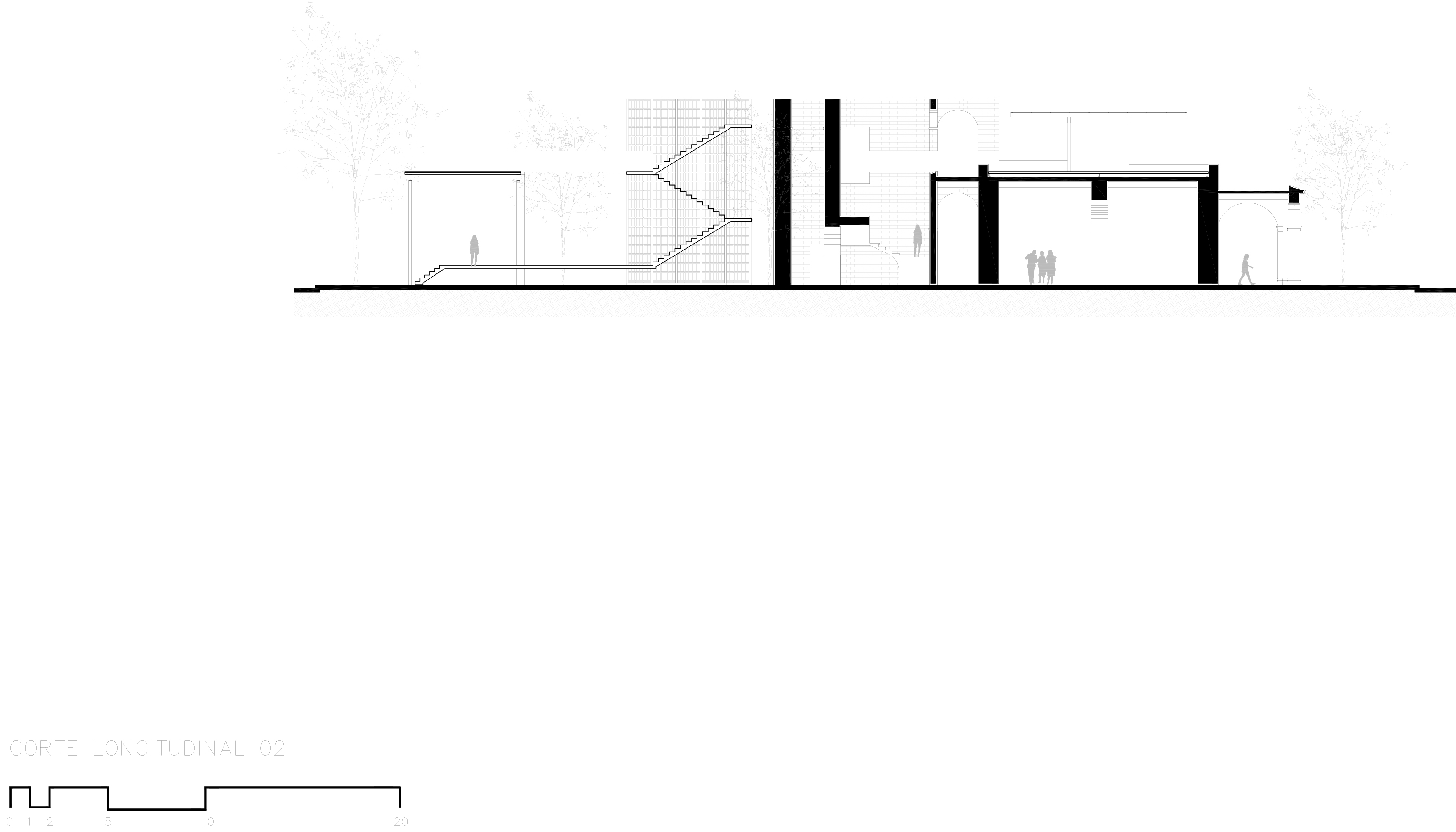
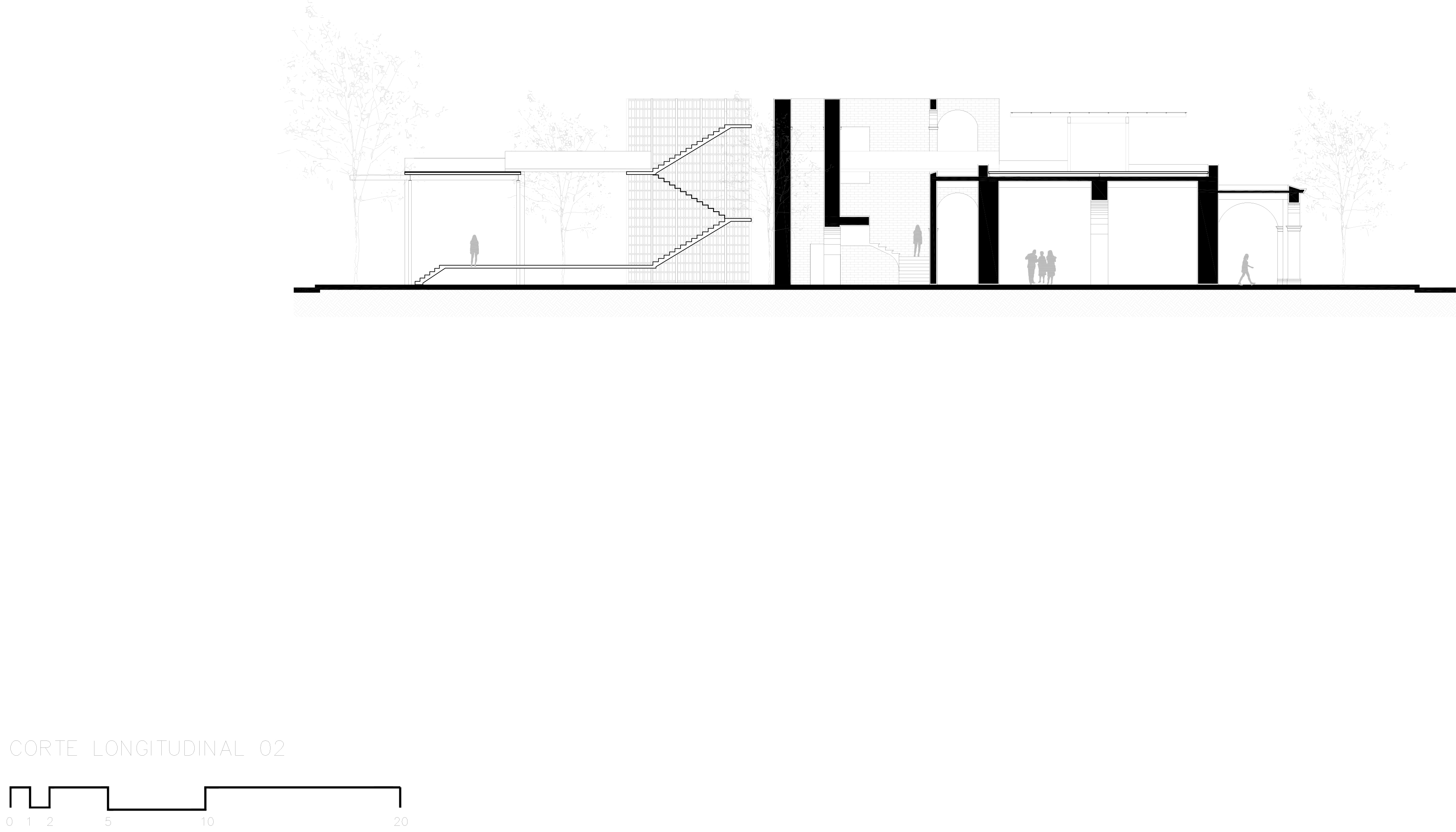
In 1768, the Port of San Blas was established in Nueva Galicia, Mexico, with the purpose of protecting the Pacific coast and becoming a gateway for Asian goods. Until a few years ago, the building of the old San Blas customs still preserved its first level and an old corridor used as an exhibition space. In addition, there are a series of small workshops and remnants of the original structure, made of handmade adobe bricks.




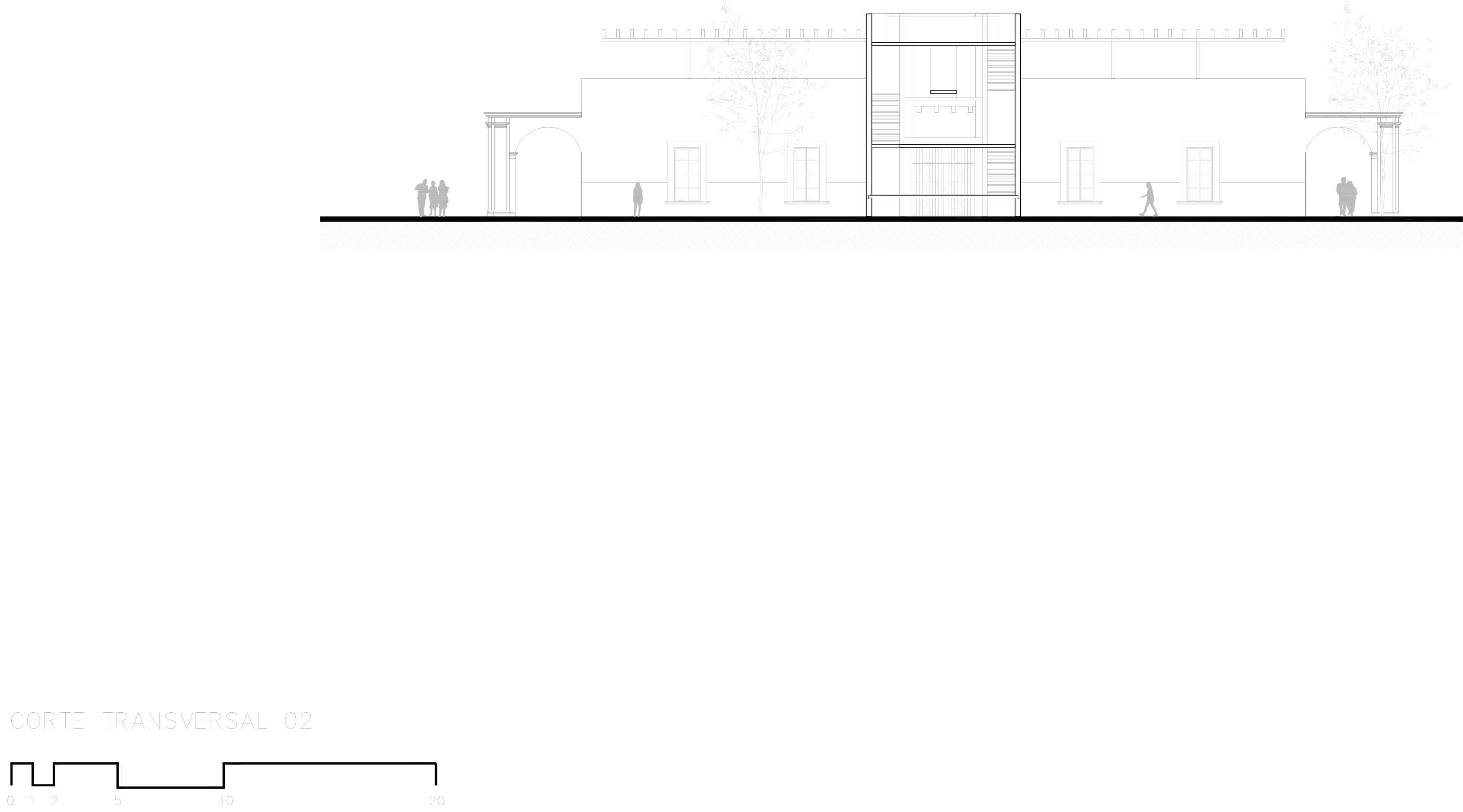
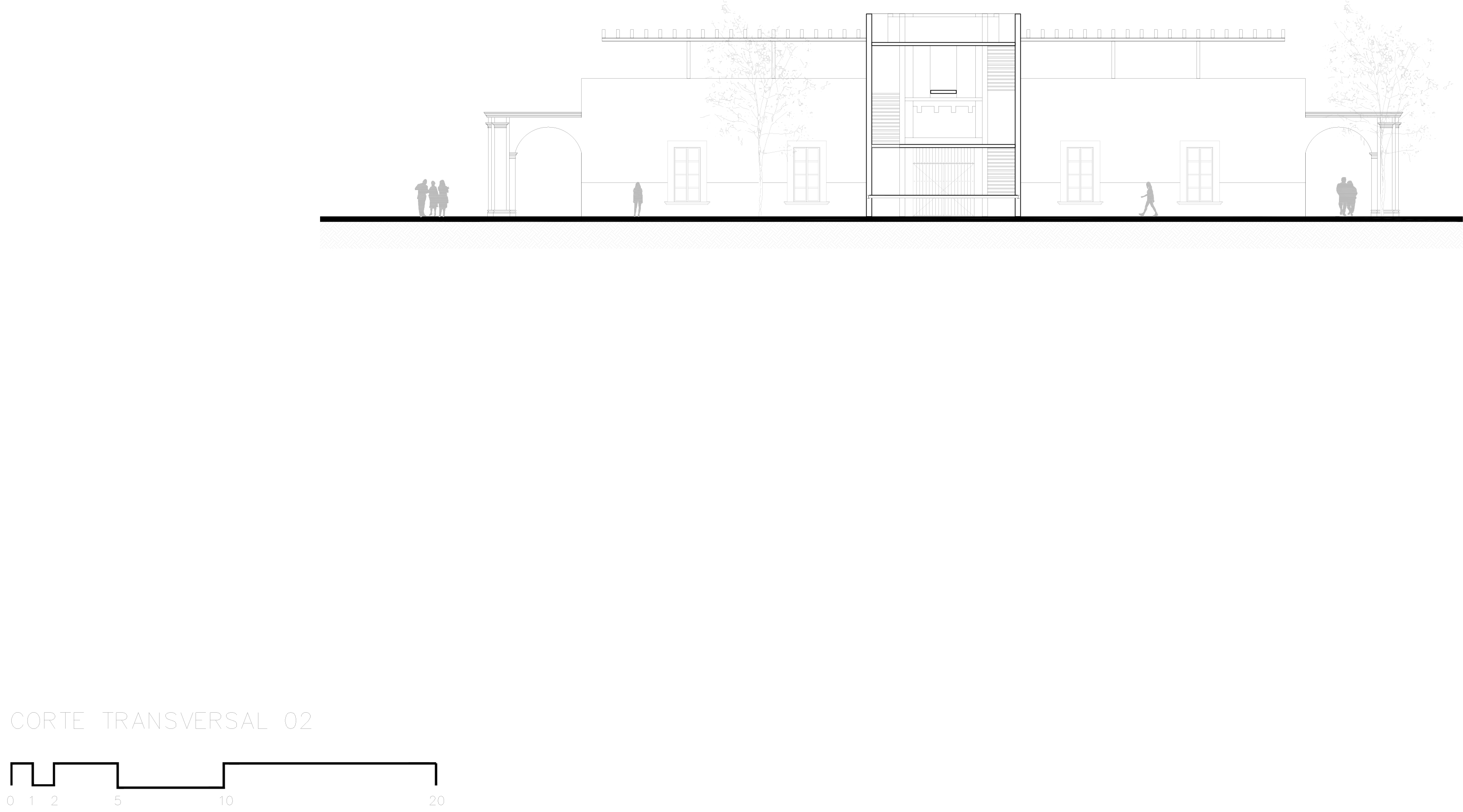
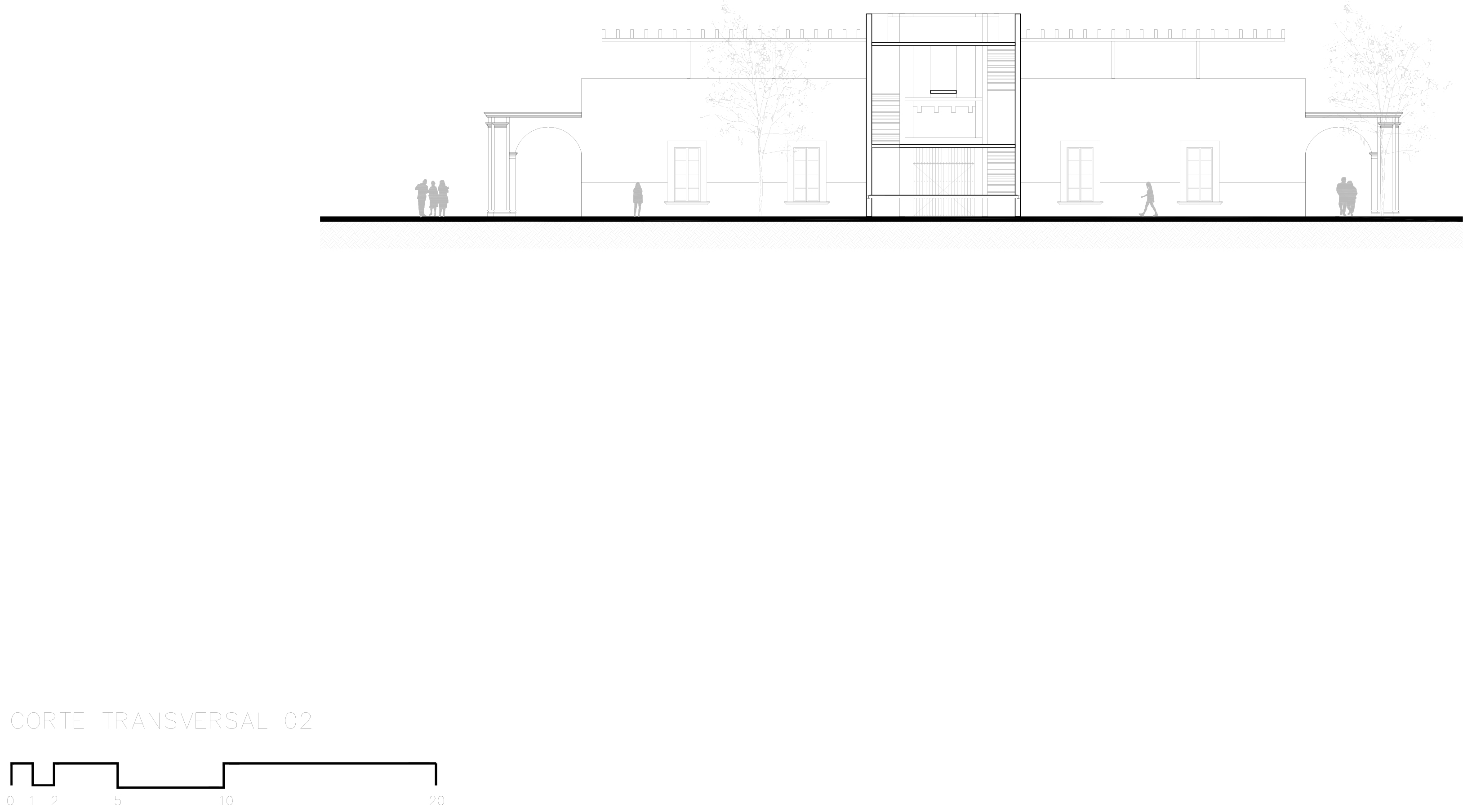
The main objective of the current intervention in the historic building was its recovery and the construction of workshops for the cultural development of the community, accompanied by a museum and exhibition area. The intervention began by consolidating the adobe remnants to preserve the memory of the past. Then, a contemporary structure was created with locally made adobe elements, defining public spaces such as squares and workshop areas.
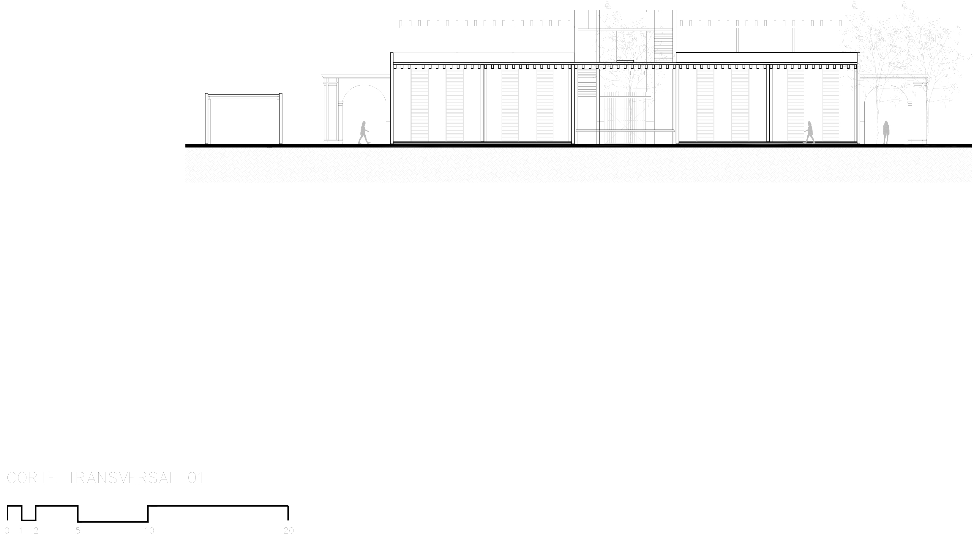
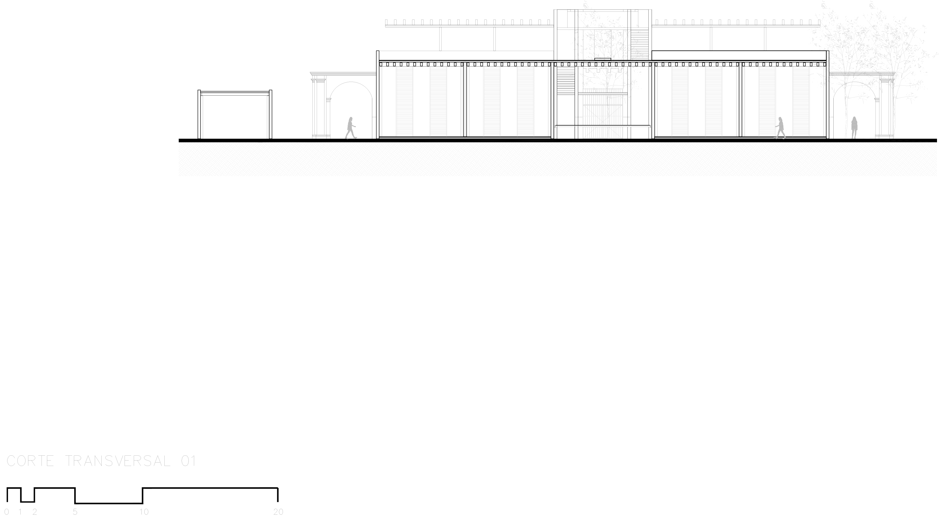
The heart of the courtyards is inhabited by an industrial-style bridge, a viewing platform and vertical walkway that allows visitors to reach the rooftop of the historic building and the rooftop of the workshops. In addition, there is an outdoor forum shaped like a Sikuli, a Huichol structure that represents the composition of the universe and the connection between human beings, nature, and the universe.



The composition of four adobe planes allowed for a new relationship between the existing building and the new structures, between the past and the present, and between nature and the constructed structures. The building seeks to unfold activities to a second level with other opportunities for wind, views, and light, turning the same rooftops into box seat spaces for cultural activities. The vertical walkway becomes a journey through time in the memory of one of the oldest buildings in this port.









건축가 COLECTIVO C733
위치 나야릿, 멕시코
용도 공공공간
준공 2021 - 2023
대표건축가 Eric Valdez, Gabriela Carrillo, Israel Espín , José Amozurrutia y Carlos Facio
디자인팀 Sofía Pavón, Roberto Rosales, Abraham Espindola
조경 디자인 Taller de Paisaje Hugo Sánchez
구조엔지니어 Labg, GIEE
기계 및 전기엔지니어 Enrique Zenón
사진작가 Rafael Gamo
'Architecture Project > Cultural' 카테고리의 다른 글
| MUSEO ESCULTÓRICO MONUMENTAL (0) | 2024.08.01 |
|---|---|
| Powerhouse Castle Hill (0) | 2024.07.30 |
| D-Day Museum (0) | 2024.07.29 |
| Han Pao-Teh Memorial Museum (0) | 2024.07.25 |
| Dr.Vishnuvardhan Memorial Complex (0) | 2024.07.24 |
마실와이드 | 등록번호 : 서울, 아03630 | 등록일자 : 2015년 03월 11일 | 마실와이드 | 발행ㆍ편집인 : 김명규 | 청소년보호책임자 : 최지희 | 발행소 : 서울시 마포구 월드컵로8길 45-8 1층 | 발행일자 : 매일



