
Han Pao-Teh is widely regarded as a seminal figure in modern architectural theory in Taiwan. In recognition of his significant contributions to the arts, his family commissioned a memorial museum at the Tainan University of the Arts, an institution he founded. The purpose of this museum was to provide both educational and exhibition spaces for his works and collections. Reflecting Han’s own views on museums and the importance of education, the memorial museum seamlessly integrates exhibition and teaching spaces to facilitate experiential learning.
Embracing the architectural principle of ‘a cube within a cube’, the simplicity in the geometric forms is imbued with a significant force and symbolism. The collision of the two cubes creates multiple facets, much like the diverse range of knowledge that Han possesses. The resilience of architectural concrete can be seen as a metaphor for an indomitable spirit.



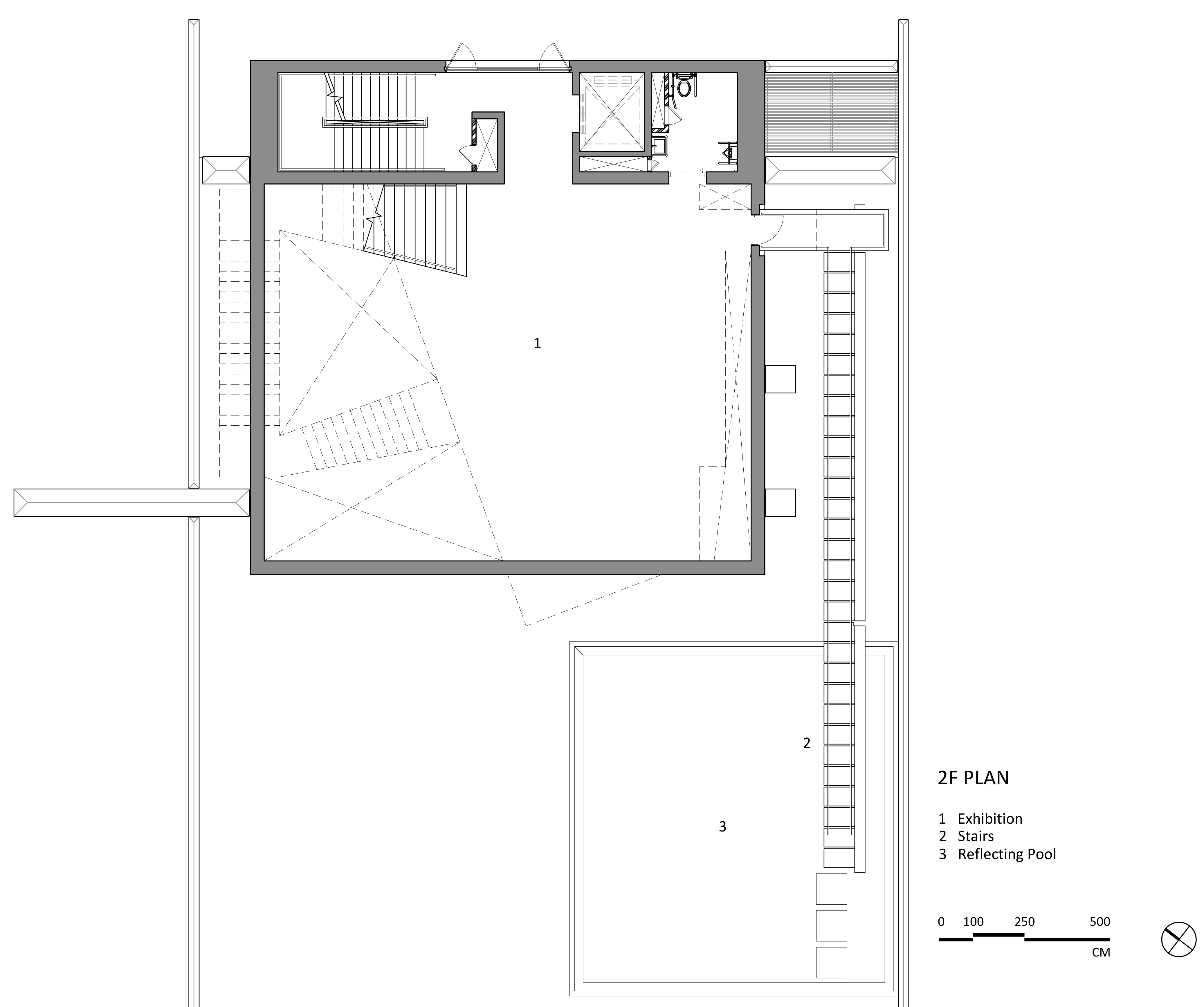
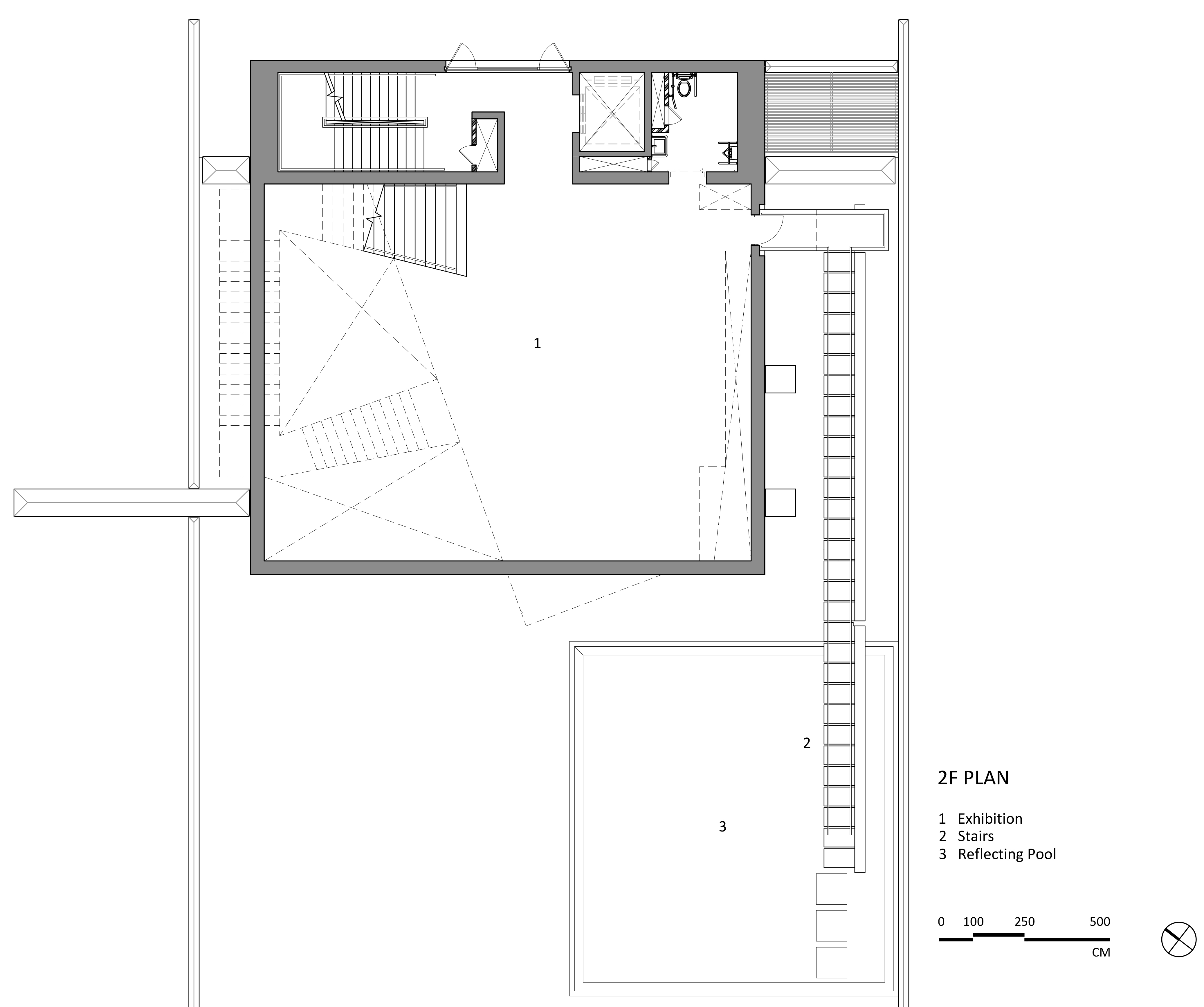
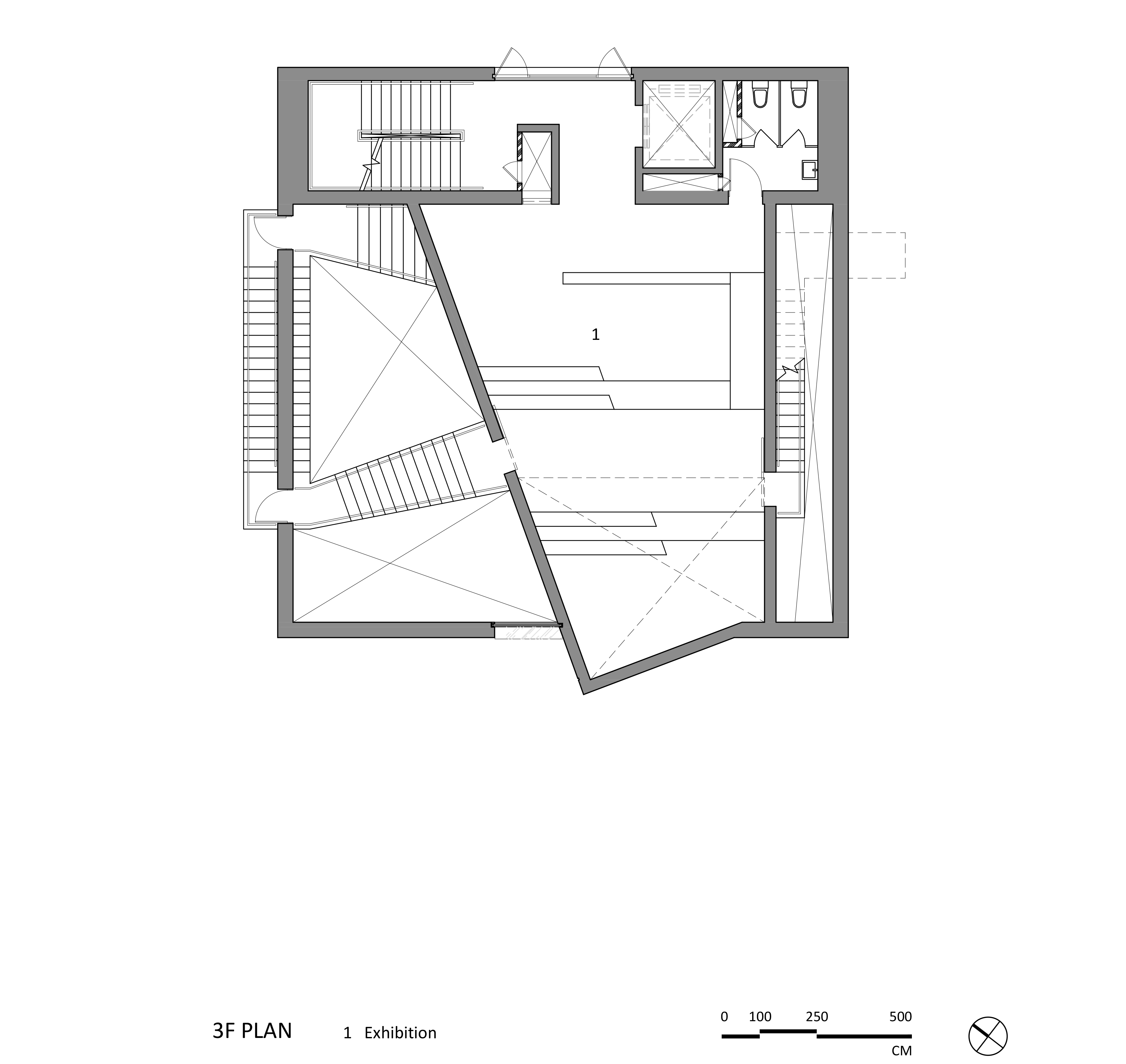
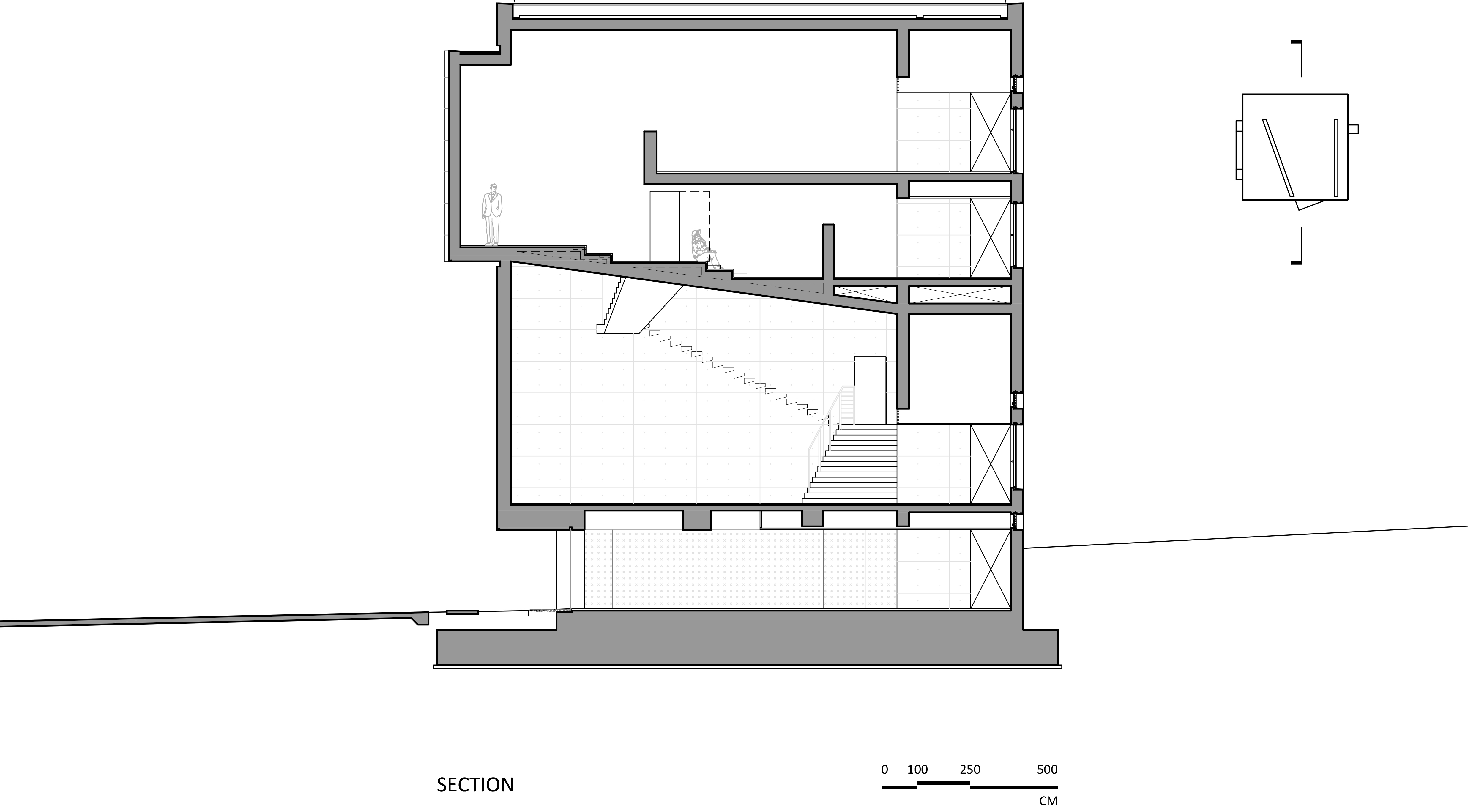
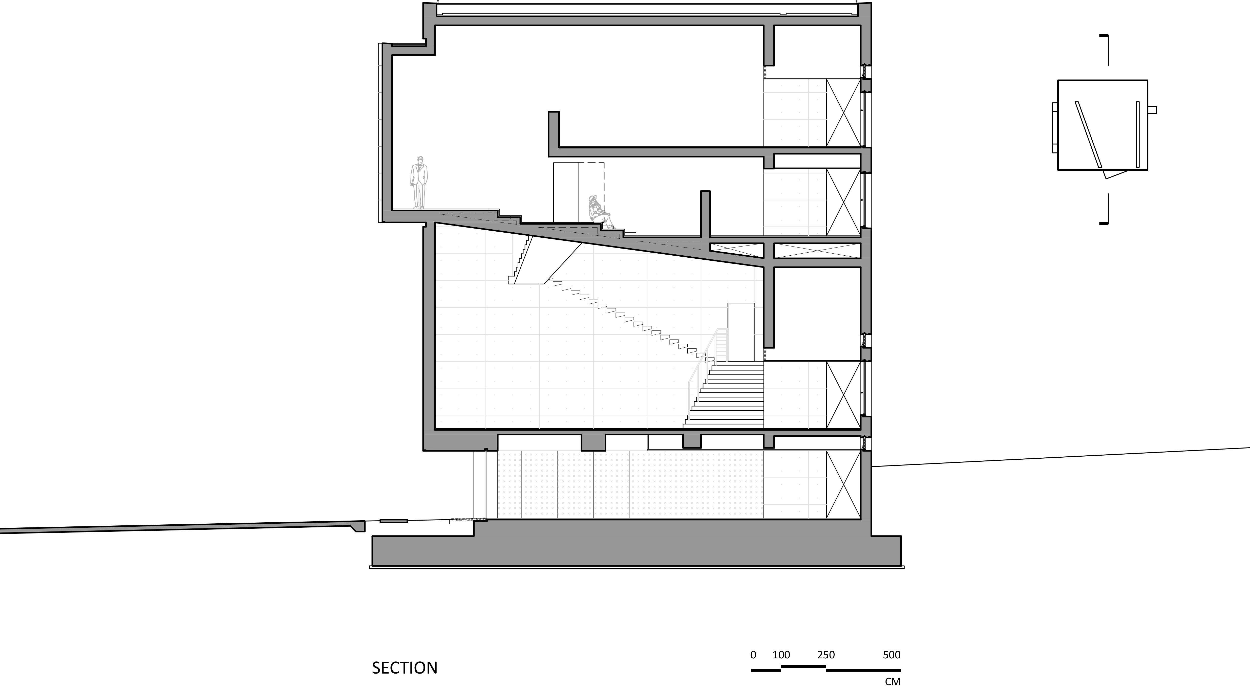
The building’s spatial arrangement invites visitors to ascend a low-rise staircase above a reflecting pool and enter through a side entrance adjacent to the main cube. Within the impressive 13.5-meter-tall student exhibition space, an imposing cubic mass appears to defy gravity as it floats above the area. This cube houses the Han Pao-Teh’s Permanent Exhibition, a two-story, auditorium-like space that juts diagonally from the larger cube. The rotated cube creates a fissure in the wall, through which light dramatically casts into the cavernous exhibition space, casting sharp shadows and imbuing the atmosphere with an air of theatricality.



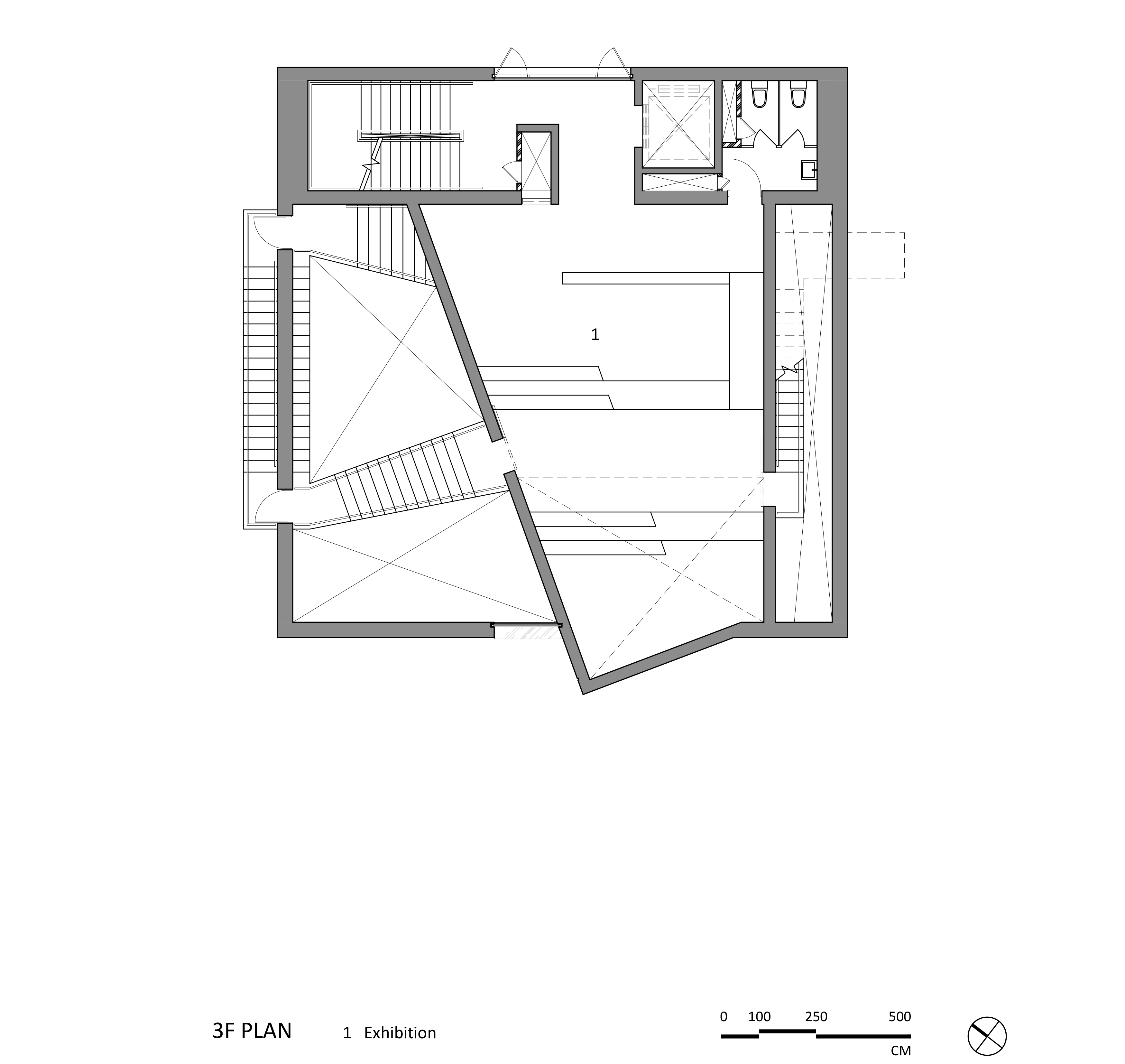
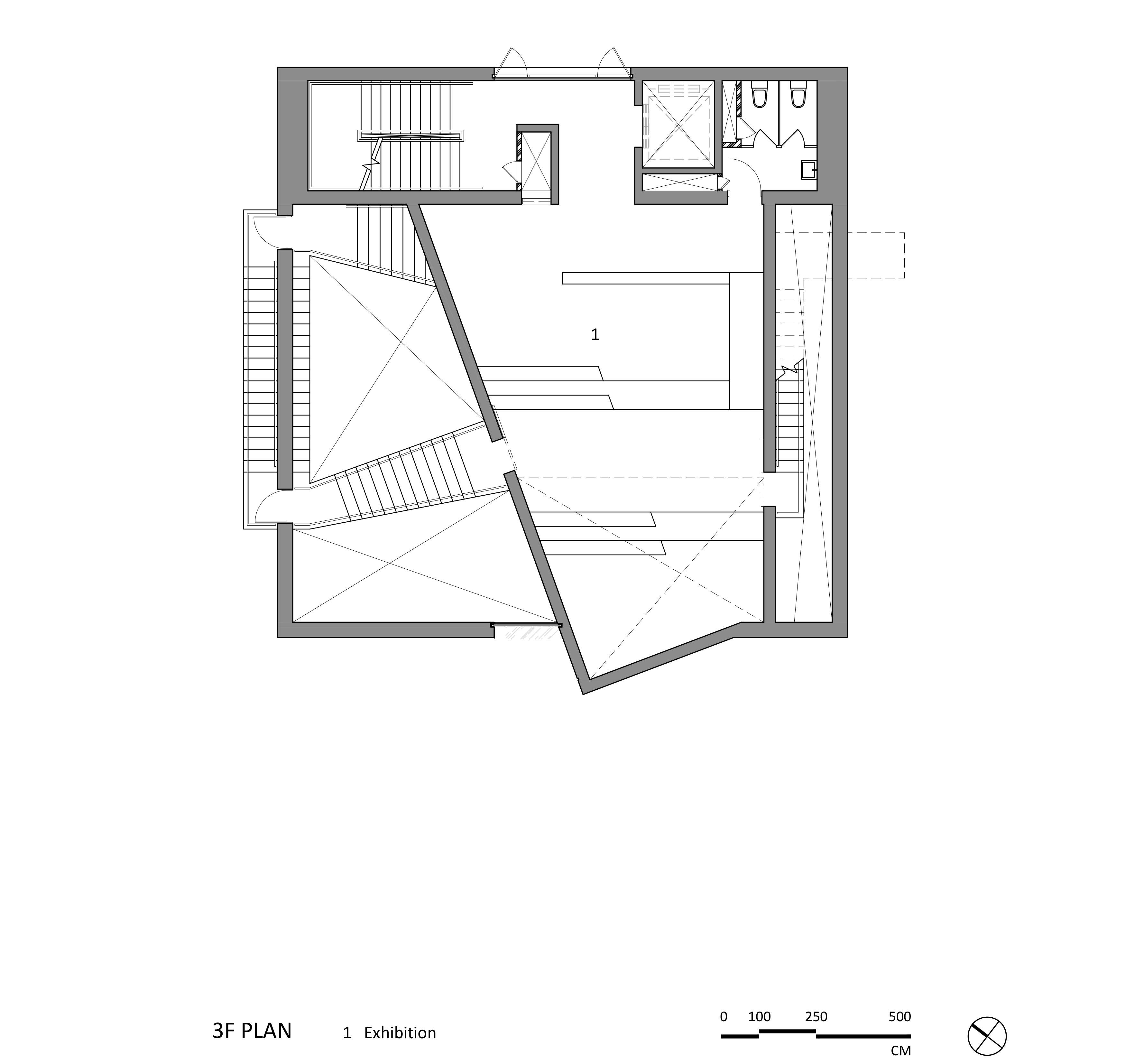
A generously sized window on the ground floor which has been recessed to mitigate direct sunlight, affords visitors a view of the verdant outdoors, leading them to embark on a theatrical ascent via a counter-clockwise staircase that traverses between the interior and exterior of the building. The overhanging stairs outside the structure enable visitors to take in the landscape from a new perspective before proceeding into the Han Pao-Teh Permanent Exhibition. The journey culminates in a narrow, gorge-like pathway that concludes the upward climb and delivers visitors to the building’s top level.
The memorial serves as a tribute to the late Mr. Han Pao-Teh, a pioneering architect whose profound contributions to Taiwan’s arts and architecture have left an indelible mark on the country’s culture and education.






건축가 KRIS YAO | ARTECH
위치 타이난, 대만
용도 뮤지엄
대지면적 2,850㎡
연면적 690㎡
준공 2015.08 - 2022.11
대표건축가 Kris Yao
디자인팀 Naiwen Cheng, Kai-Chih Chang, Albert Liu, Willy Yu, Megle Lin, Eden Sung, Yuan-Heng Shih
시공 Jun-Ren Chou, Jui-Hung Lin
구조엔지니어 Chuang Wei Structural Engineering Inc.
사진작가 Chris Stowers, Jeffrey Cheng, Shephotoerd Co.
'Architecture Project > Cultural' 카테고리의 다른 글
| Ex Aduana San Blas (0) | 2024.07.30 |
|---|---|
| D-Day Museum (0) | 2024.07.29 |
| Dr.Vishnuvardhan Memorial Complex (0) | 2024.07.24 |
| Jinji Lake Pavilion (0) | 2024.07.19 |
| Shijiazhuang Ander Memorial Park · Cloud Mirror (0) | 2024.07.16 |
마실와이드 | 등록번호 : 서울, 아03630 | 등록일자 : 2015년 03월 11일 | 마실와이드 | 발행ㆍ편집인 : 김명규 | 청소년보호책임자 : 최지희 | 발행소 : 서울시 마포구 월드컵로8길 45-8 1층 | 발행일자 : 매일



