

In the heart of rural tranquility in Mysore, a visionary project has taken shape to commemorate the iconic actor Dr. Vishnuvardhan. This memorial transcends its role as a mere architectural endeavor; it is a testament to the transformative power of design in fostering community dialogue and social change.
Designing with a Purpose
From the inception of this project, our architectural team set out with a clear objective - to create a space that would not only honor the memory of Dr. Vishnuvardhan but also serve as a hub for social transformation. We envisioned a space where the local community could come together to discuss and address the vital social and civil issues of our time.
Responding to the Landscape
The immediate surroundings of the memorial presented unique challenges. We observed that the location was not inherently welcoming. However, rather than imposing a stark contrast to the natural beauty of the site, we sought to work in harmony with the landscape.



The Memory Monument: An Iconic Presence
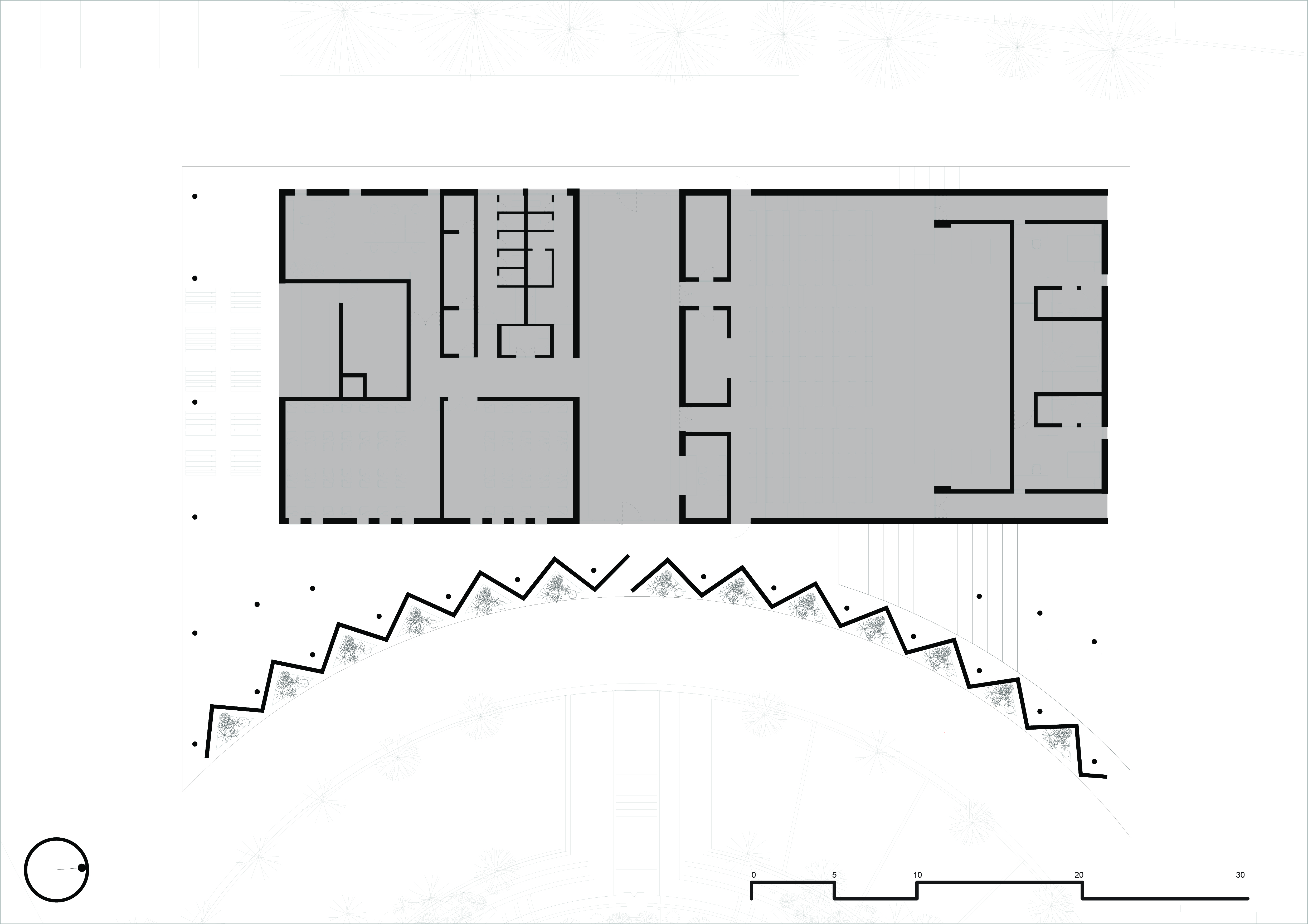
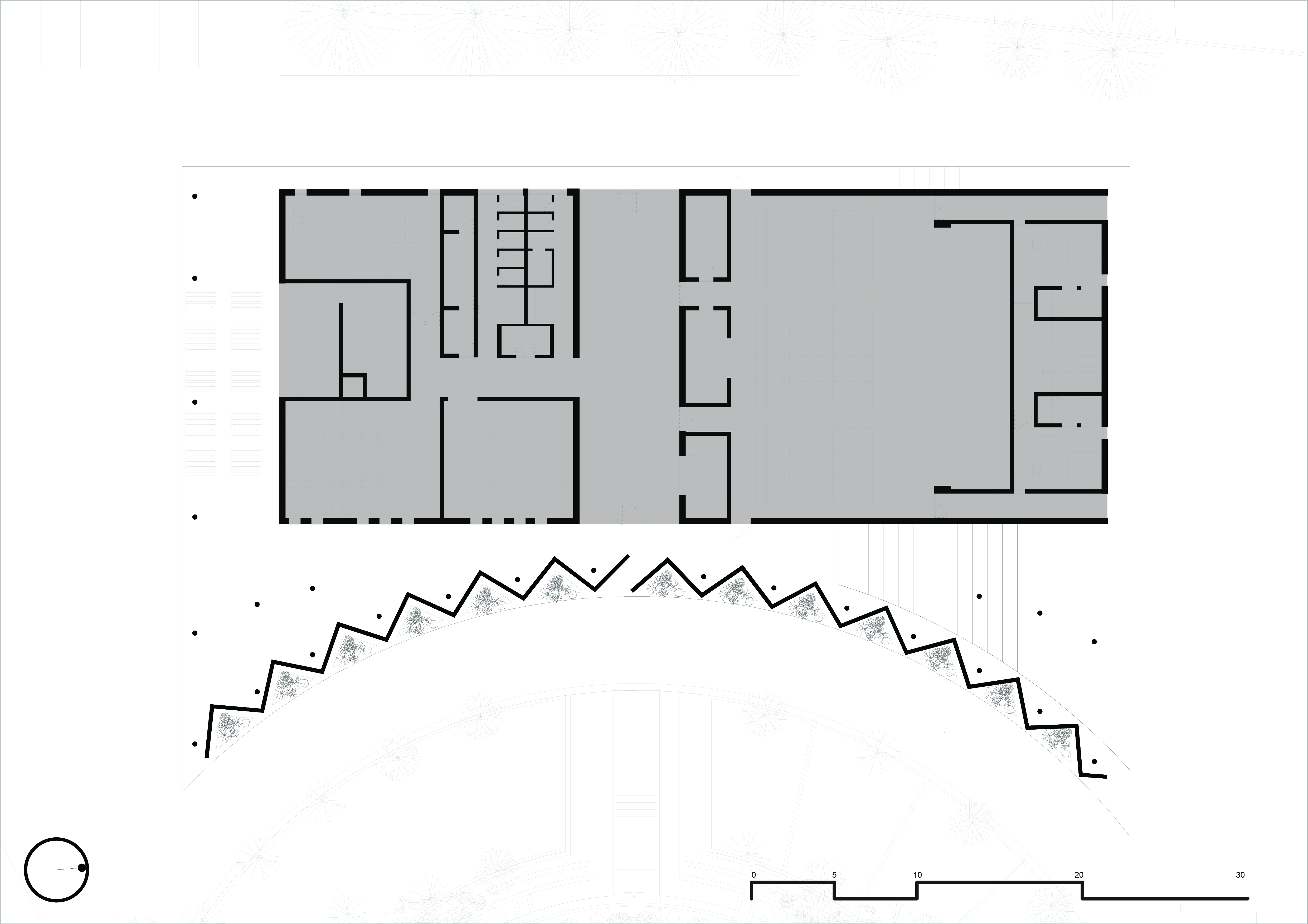
At the heart of this memorial is the towering Memory Monument, a tribute that transcends conventional memorials. Its design is emblematic of Dr. Vishnuvardhan's charisma. The structure, crafted entirely from fine metal is in the shape of a “kada" (famously worn as lucky charm by Dr. Vishnuvardhan), reaches an imposing height of three meters above the lower ground, symbolizing the actor's towering presence in the world of cinema and in our collective memory.
The Photo Gallery: A Journey through Time
The photo gallery is a discovery path that winds around the memorial tells a story. It features unseen photographs of Dr. Vishnuvardhan in iconic characters, reminiscent of his legendary on-screen roles. It is a space where visitors can engage with the actor's legacy, much like the way they engage with his films. It has become a beloved attraction for tourists and film enthusiasts alike. It is not just a repository of visual memories but a dynamic space that acts as an entry/exit point for visitors and artists. It facilitates a seamless transition between indoor and outdoor activities and serves as a symbolic link to Dr. Vishnuvardhan's enduring legacy.



Cinema, Legacy, and Privacy
The building block dedicated to film-related programs is strategically positioned in the southwest zone. It serves as a backdrop to the Memory Monument and the photo gallery, carefully preserving the sanctity of the space. Access to these programs is available by invitation and prior booking, ensuring a level of privacy and exclusivity.

As architects, we are deeply honored to have played a role in the creation of the Dr. Vishnuvardhan Memorial. It is a project that blends seamlessly with its rural surroundings, offering a contemplative space for the community while paying a fitting tribute to the legendary actor. Our hope is that this memorial becomes a catalyst for meaningful conversations and positive social change in the years to come.





건축가 M9 Design Studio
위치 미수루, 인도
용도 기념관
연면적 22,000 ft²
준공 2023
대표건축가 Nischal Abhaykumar
디자인팀 Jesal Pathak, Sakkir C, Preethi Balaraju, Sravya Gavini, Janani Mathumitha, Supreeth V.
구조엔지니어 Integrated Structural Associates
사진작가 Vivek Eadara
'Architecture Project > Cultural' 카테고리의 다른 글
| D-Day Museum (0) | 2024.07.29 |
|---|---|
| Han Pao-Teh Memorial Museum (0) | 2024.07.25 |
| Jinji Lake Pavilion (0) | 2024.07.19 |
| Shijiazhuang Ander Memorial Park · Cloud Mirror (0) | 2024.07.16 |
| Taoyiqiu Memorial (0) | 2024.07.11 |
마실와이드 | 등록번호 : 서울, 아03630 | 등록일자 : 2015년 03월 11일 | 마실와이드 | 발행ㆍ편집인 : 김명규 | 청소년보호책임자 : 최지희 | 발행소 : 서울시 마포구 월드컵로8길 45-8 1층 | 발행일자 : 매일



