
LANTERN is an adaptive reuse of a former commercial bakery and warehouse to create a new headquarters for two local non-profits, and a vibrant mix of galleries, artist studios, gathering spaces, and community-serving retail.
Detroit, May 16, 2024—LANTERN, OMA’s first project in Detroit, is now open to the public in Little Village, a neighborhood-wide initiative of Library Street Collective (LSC) co-founders Anthony & JJ Curis. Led by OMA Partner Jason Long, the former commercial bakery and warehouse built in the 1900s has been converted into a mixed-use art hub and public space.



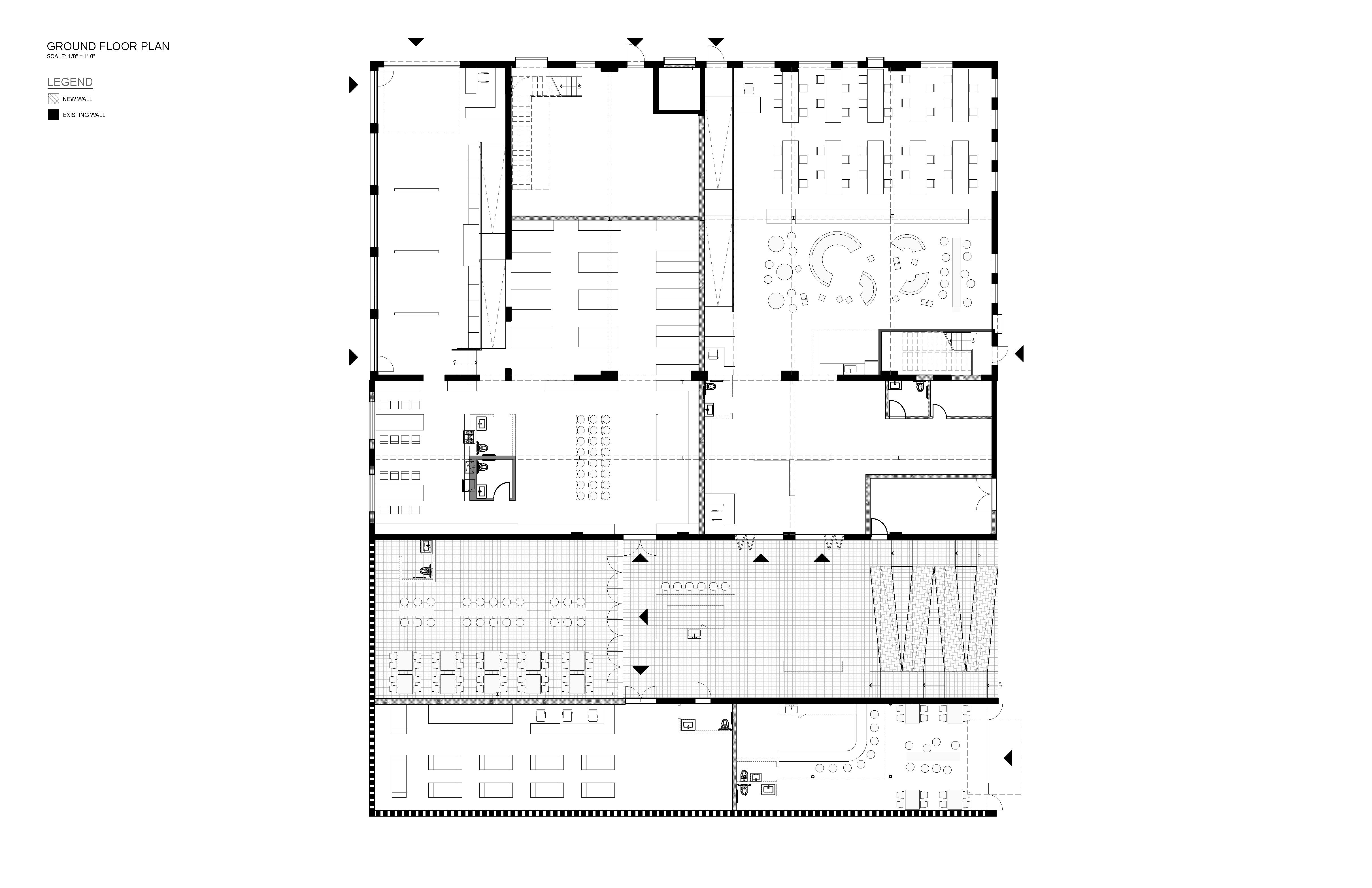
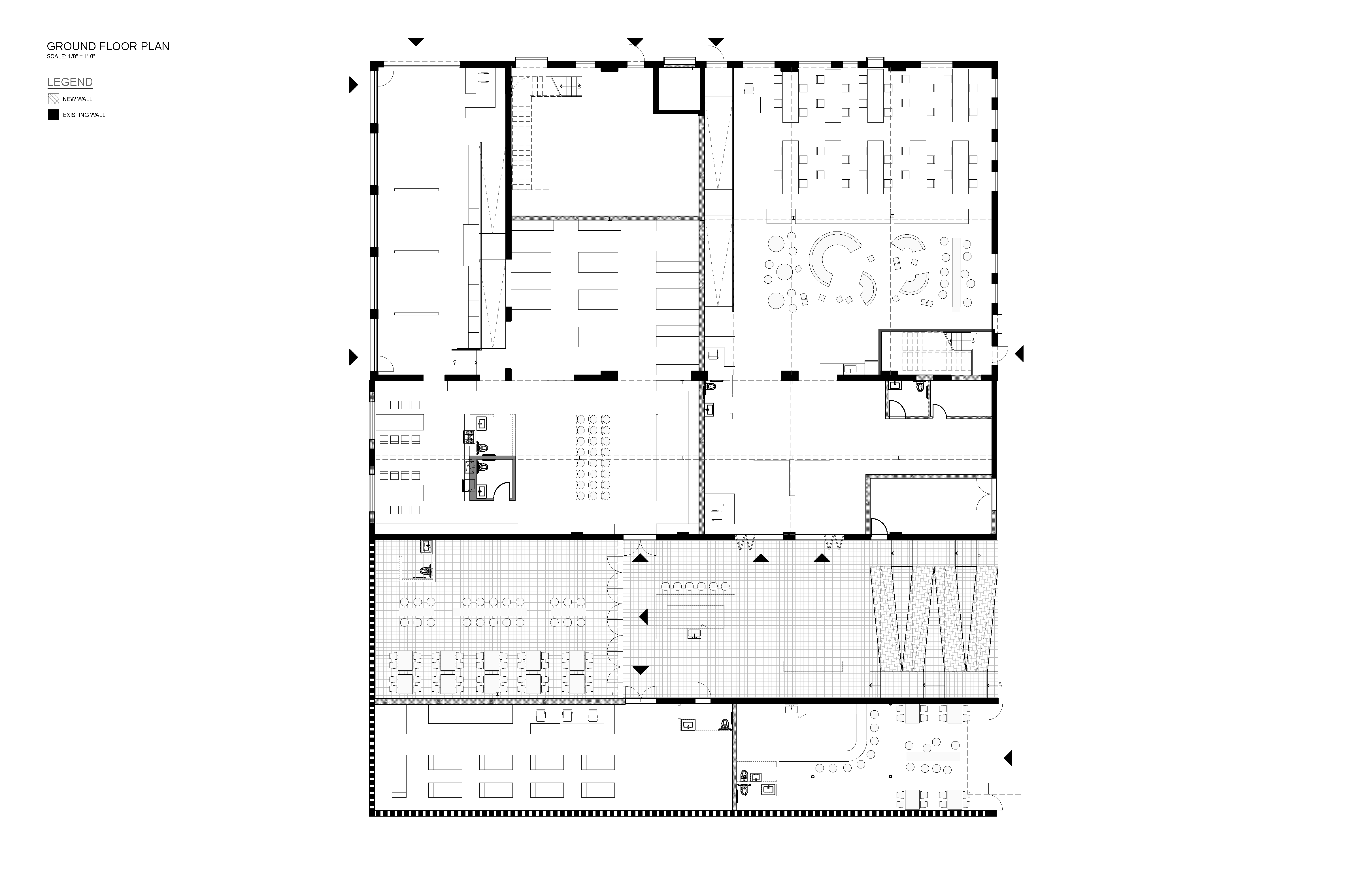
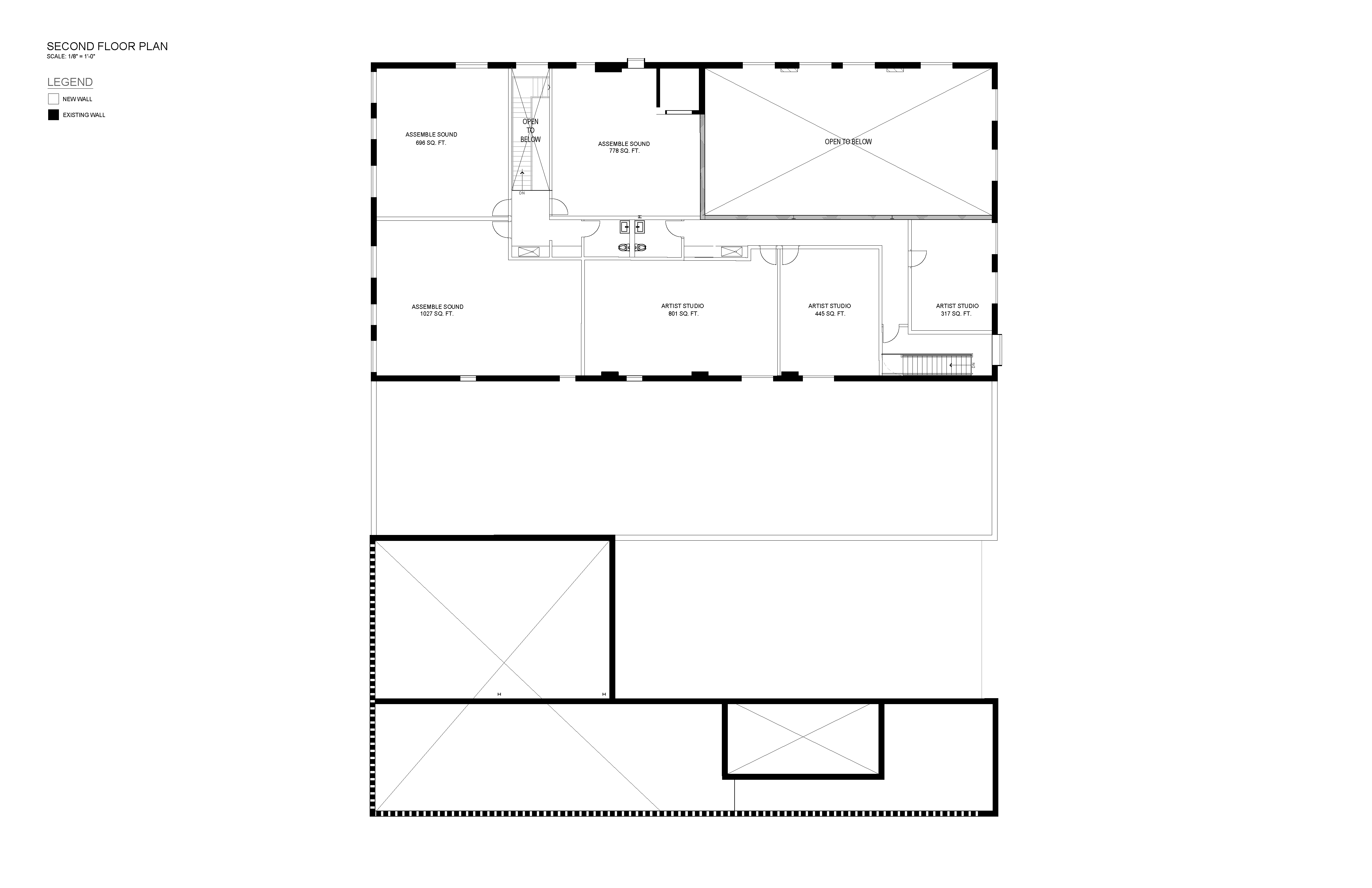
Led by OMA Partner Jason Long, the 22,300-square-foot complex serves as a new home for two local arts non-profits, Signal-Return and PASC (Progressive Arts Studio Collective). It also includes around 5,300 square feet of artist studios, gallery, and 4,000 square feet of creative retail—all centered around a 2,000-square-foot outdoor courtyard that will serve as an accessible community space.
"We are thrilled to see LANTERN open its doors and join the Little Village programming. Working with OMA and our partners, we've created a space that not only supports local businesses, artists, and non-profits, but also fosters inclusivity, education, and accessibility in the arts. We look forward to seeing LANTERN's impact on the neighborhood and beyond,” said Anthony and JJ Curis, LSC Founders.
“We are excited to start seeing the LANTERN come to life. In the renovation, we tried to work both with and against the former bakery’s solidity to make its transformation feel simultaneously familiar and mysterious. The result is a building that welcomes and emits light and creativity,” said Jason Long, OMA Partner.



OMA’s approach takes advantage of the building’s current state of disrepair, transforming an area missing both its roof and an end wall into a courtyard at the heart of the building. Defined as the primary entry with multiple frontages for all tenants, the courtyard becomes a public gateway and an activity condenser. Signal-Return and PASC’s diverse programs—art education, production, and gallery—are organized across the existing tripartite site to maximize points of access and potentials for community interface. Production zones and artist studios create an active and inviting face to Amity Street, galleries line the courtyard to reinforce a public heart for the building, and neighborhood-serving functions orchestrated on the opposite side of the courtyard consolidate the most public amenities along Kercheval Avenue.
Across the North Building, existing bricked or boarded-up doors and windows opened strategically. Operable windows inserted at the studios to allow for ventilation, extruded windows at galleries become art vitrines, and former loading entries create large openings at production spaces offer indoor-outdoor potentials. In contrast, the South Building posed a solid expanse of concrete masonry (CMU). Rather than imposing a new composition of windows, 1,353 holes are drilled into the blank walls and filled with cylindrical glass blocks. This monolithic field of tiny punctures subtly reveals light and movement within and transforms the building into a glowing lantern at night.




건축가 OMA New York
위치 미시간, 미국
용도 복합문화
연면적 2,072 ㎡
준공 2021-2024
대표건축가 Samuel Biroscak
디자인팀 Yiyao Wang, Cameron Fullmer, Mariana Curti
협업건축가 Metro Cad Group
구조엔지니어 Wiss, Janney, Elstner Associates, Inc.
사진작가 John D’Angelo, Jason Keen
'Architecture Project > Cultural' 카테고리의 다른 글
| Shijiazhuang Ander Memorial Park · Cloud Mirror (0) | 2024.07.16 |
|---|---|
| Taoyiqiu Memorial (0) | 2024.07.11 |
| Qintai Art Museum (0) | 2024.06.20 |
| Orbit (0) | 2024.06.19 |
| Hortensia Herrero Art Center (0) | 2024.06.19 |
마실와이드 | 등록번호 : 서울, 아03630 | 등록일자 : 2015년 03월 11일 | 마실와이드 | 발행ㆍ편집인 : 김명규 | 청소년보호책임자 : 최지희 | 발행소 : 서울시 마포구 월드컵로8길 45-8 1층 | 발행일자 : 매일



