

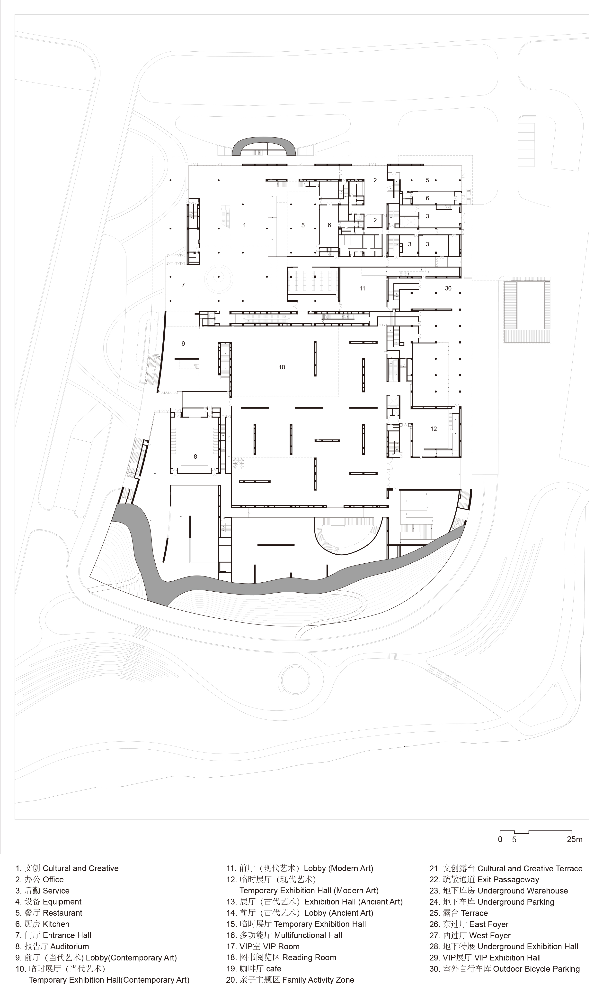
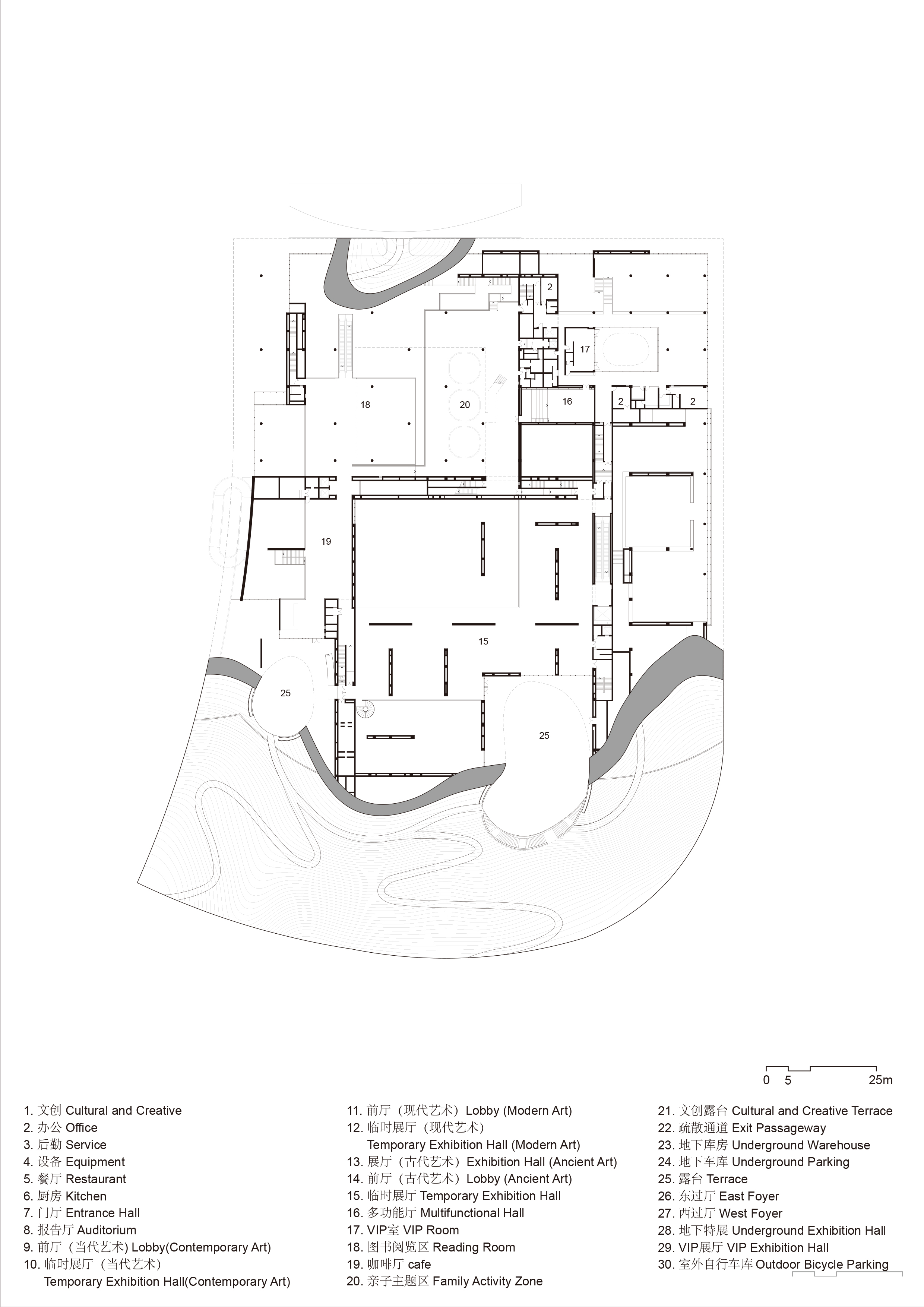
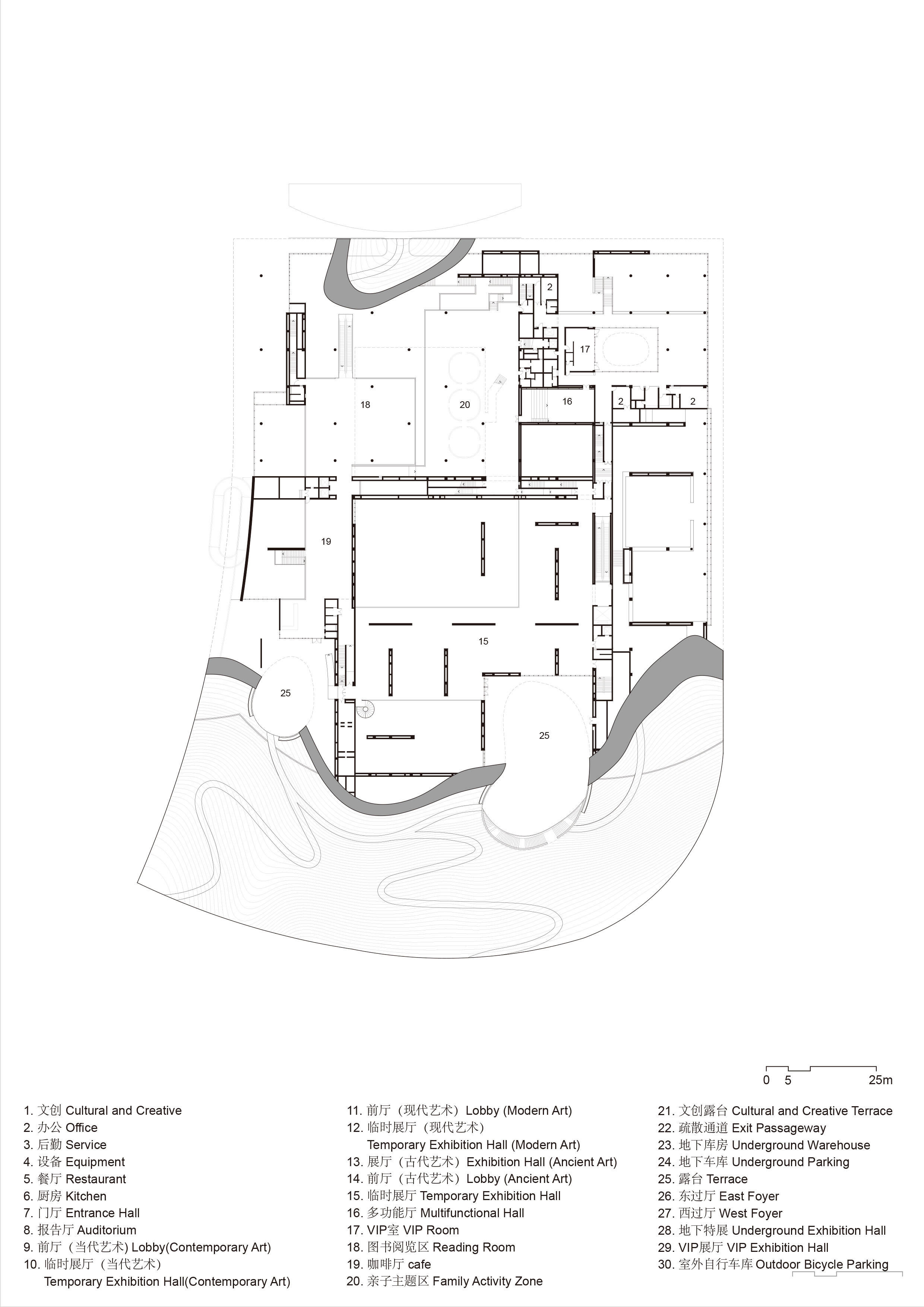
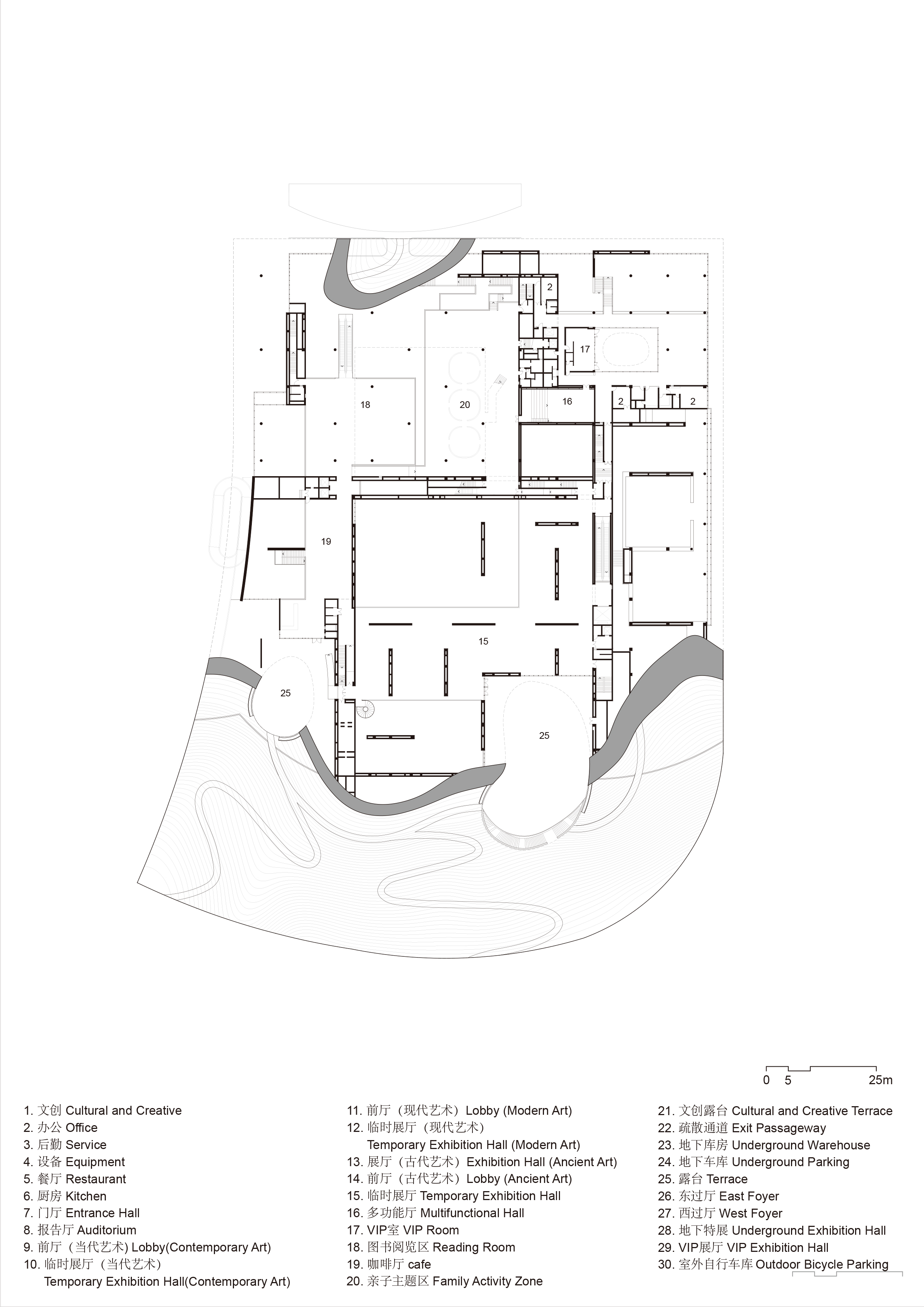
Qintai Art Museum is located on the lakeside of the Moon Lake in Wuhan’s Hanyang district, facing the Meizi Hill across the lake to the south. In order to reduce the weight of the architectural mass on the natural surface of the lake, the form of an undulating natural terrain is used in the direction of the lake, while sinking part of the exhibition spaces underground. This both uses the underground space, and also minimizes the massing on the ground. On the side facing the city road, on the other hand, a vertical facade continues to uphold architecture’s urbanity.

The undulating roof is formed by an abstract stepped terrace following topographic contours. The risers of the steps are lined using silver metallic surface, while the treads are covered with white stones and low vegetation, traversed by winding planked walking paths. These rooftop paths are entirely open to the public, connecting to the Moon Lake, as well as the exits of the museum exhibition spaces, the space for public education, the art shop, the café, and the other public spaces. Thus, they form a public space framework independent from the exhibition spaces of the museum. The activities of the public are part of the architectural surface.


The art museum architecture as intervention has redefined the urban space on the south bank of Moon Lake. To the west of the museum the space is reserved for an urban plaza, interacting in the future with the Wuhan Library and Drama Centre under planning. The main entrance to the museum, as well as the programs with strong public tenets including the Creative Cultural Spaces, are all placed on this side, where a subtly inwardly-curved façade together with the place create a sense of enclosure. From the plaza there are ramped paths linking to the second floor café and rooftop terrace, establishing a public circulation that could still operate after the museum closes. Operationally, this strengthens the openness of the museum and the urbanity of the architecture.

The main hall, together with the undulating roofscape, creates a unique space for exhibition. The space of the exhibition uses floating exhibition walls, and there is no longer a set circulation for visiting the exhibition. The walls are both surfaces for exhibiting, as well as the structure for the undulating roof. The exhibition spaces for contemporary art, modern art, classical art, as well as for special exhibitions, could be independently accessed, or sequentially linked, having great functional flexibility.















건축가 Atelier Deshaus
위치 우한시, 중국
용도 미술관
대지면적 33,600㎡
바닥면적 43,080㎡
준공 2016.05 - 2021.12
대표건축가 Liu Yichun, Chen Yifeng
디자인팀 Liu Yichun, Chen Yu, Wang Longhai, Hu Chenchen, Chen Hao, Shen Wen, Chen Chihhan, Tang Yun, Zhang Xiaoqi, Wu Wenchao, Deng Rui, Liu Xin, Pang Zirui, Wang Jiawen, Cao Ye
협업 CITIC General Institute of Architectural Design and Research Co., Ltd.
조경 Wuhan Institute of Landscape Architectural Design Co., Ltd.
구조 컨설턴트 AND Office
파사드 Shanghai CIMA Engineering Consulting Co., Ltd.
사진작가 Fangfang Tian, Shengliang Su
해당 프로젝트는 건축문화 2024년 6월호(Vol. 517)에 게재되었습니다.
The project was published in the December, 2023 recent projects of the magazine(Vol. 517).
June 2024 : vol. 517
Contents : SKETCH Around the Campín Stadium / Diego Alejandro Oquendo Sánchez 캄핀 스타디움 근처에서 / 디에고 알레한드로 오켄도 산체스 : COMPETITION : RECENT PROJECT MONOSPINAL / Makoto Yamaguchi Design
anc.masilwide.com
'Architecture Project > Cultural' 카테고리의 다른 글
| Taoyiqiu Memorial (0) | 2024.07.11 |
|---|---|
| LANTERN (0) | 2024.06.27 |
| Orbit (0) | 2024.06.19 |
| Hortensia Herrero Art Center (0) | 2024.06.19 |
| TOKYU KABUKICHO TOWER (0) | 2024.06.18 |
마실와이드 | 등록번호 : 서울, 아03630 | 등록일자 : 2015년 03월 11일 | 마실와이드 | 발행ㆍ편집인 : 김명규 | 청소년보호책임자 : 최지희 | 발행소 : 서울시 마포구 월드컵로8길 45-8 1층 | 발행일자 : 매일



