

Hosho Gakuen consists of three schools: Toshima Gakuin High School, Showa Tetsudo High School, and Tokyo College of Transport Studies. For nearly three decades, Atsushi Kitagawara Architects has been involved in this extensive campus development project. This is the fifth phase of the project.




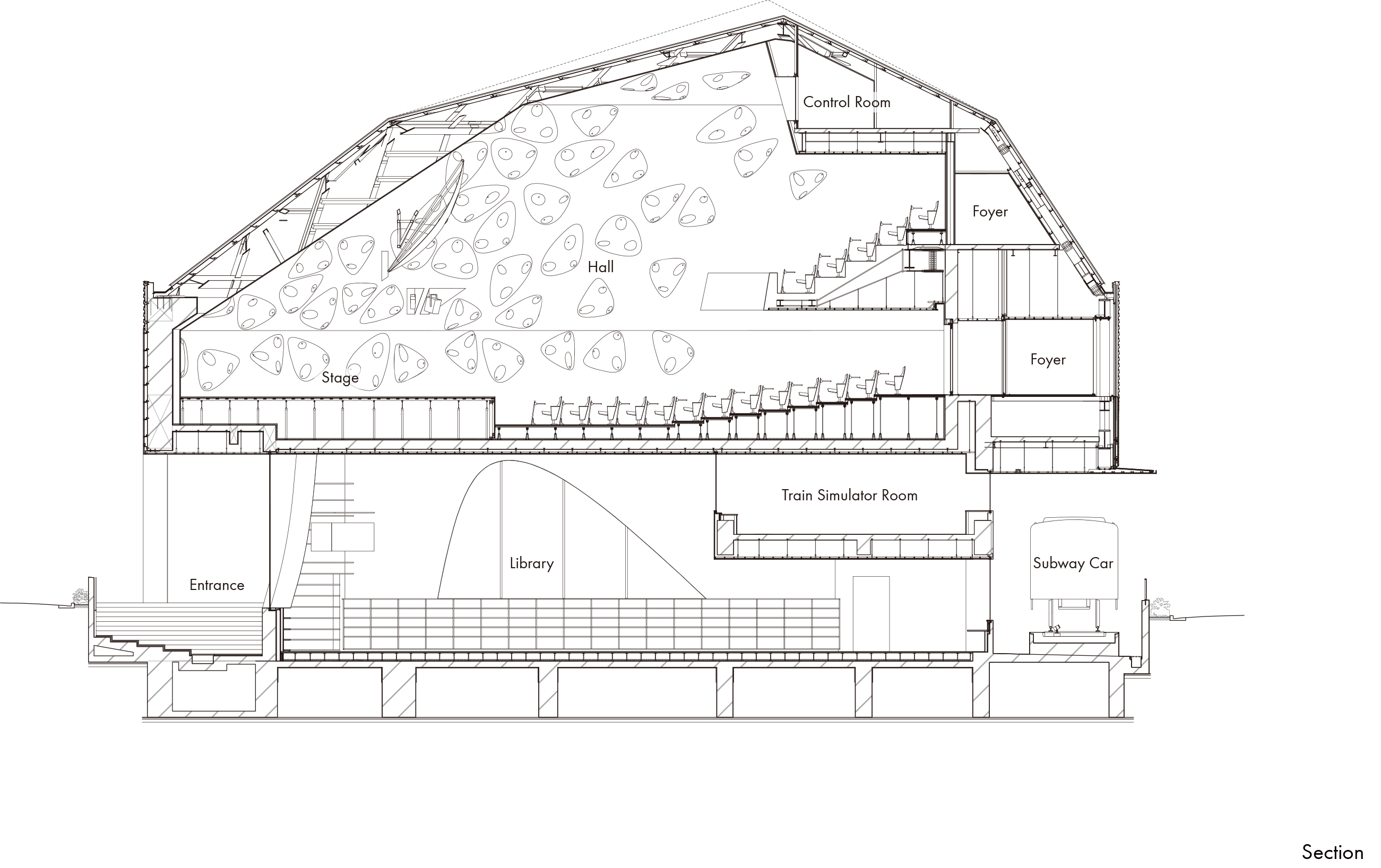
Building 6 Learning Center sits on a triangular site. The core facilities, namely a 500-capacity lecture hall, a library, and a railway simulator room, are functionally arranged to be shared among the three schools. The parabolic shape (=infinitely expanding curve) employed inside and outside of the building signifies an interconnection between all schools and the city beyond the site boundary, and the school’s continuous growth in the future. The parabolic opening at the lively ground-floor library visually ties together the students’ living space and the adjacent streetscapes.


The lecture hall is designed under an expansive mansard roof defined by the diagonal lines of the street. Its outer shell mirrors the shape of the roof, resulting in an asymmetrical and distorted pyramidal shape. To balance out the complex form, dark walls are selected using acoustic panels cast from custom-made FRP molding. These acoustic panels are carefully laid out to diffuse sound and achieve an optimal sound environment.







건축가 Atsushi Kitagawara Architects
위치 도쿄, 일본
용도 교육시설
대지면적 989.08㎡
건축면적 687.94㎡
연면적 1,992.85㎡
준공 2016. 11 - 2022. 8
대표건축가 Motomi Nishiuchi
디자인팀 Takuo Hosoya, Rin Takasuka
구조 엔지니어 TECTONICA INC.
기계 엔지니어 Architectural Energy Research Institute
시공 Kumagai Gumi Co., Ltd.
사진작가 Kenya Chiba
'Architecture Project > Education' 카테고리의 다른 글
| Rudolf Steiner University (0) | 2024.08.23 |
|---|---|
| ZGC International Innovation Center (0) | 2024.07.26 |
| School campus, Grimisuat (0) | 2024.05.31 |
| Cloud Kindergarten of Luxelakes (0) | 2024.05.31 |
| Lovell International School (0) | 2024.05.30 |
마실와이드 | 등록번호 : 서울, 아03630 | 등록일자 : 2015년 03월 11일 | 마실와이드 | 발행ㆍ편집인 : 김명규 | 청소년보호책임자 : 최지희 | 발행소 : 서울시 마포구 월드컵로8길 45-8 1층 | 발행일자 : 매일



