

Several municipalities in the canton of Valais (Switzerland) have seen their population grow in recent years. Fast connections to service centers and a high quality of life have made these communities very attractive.
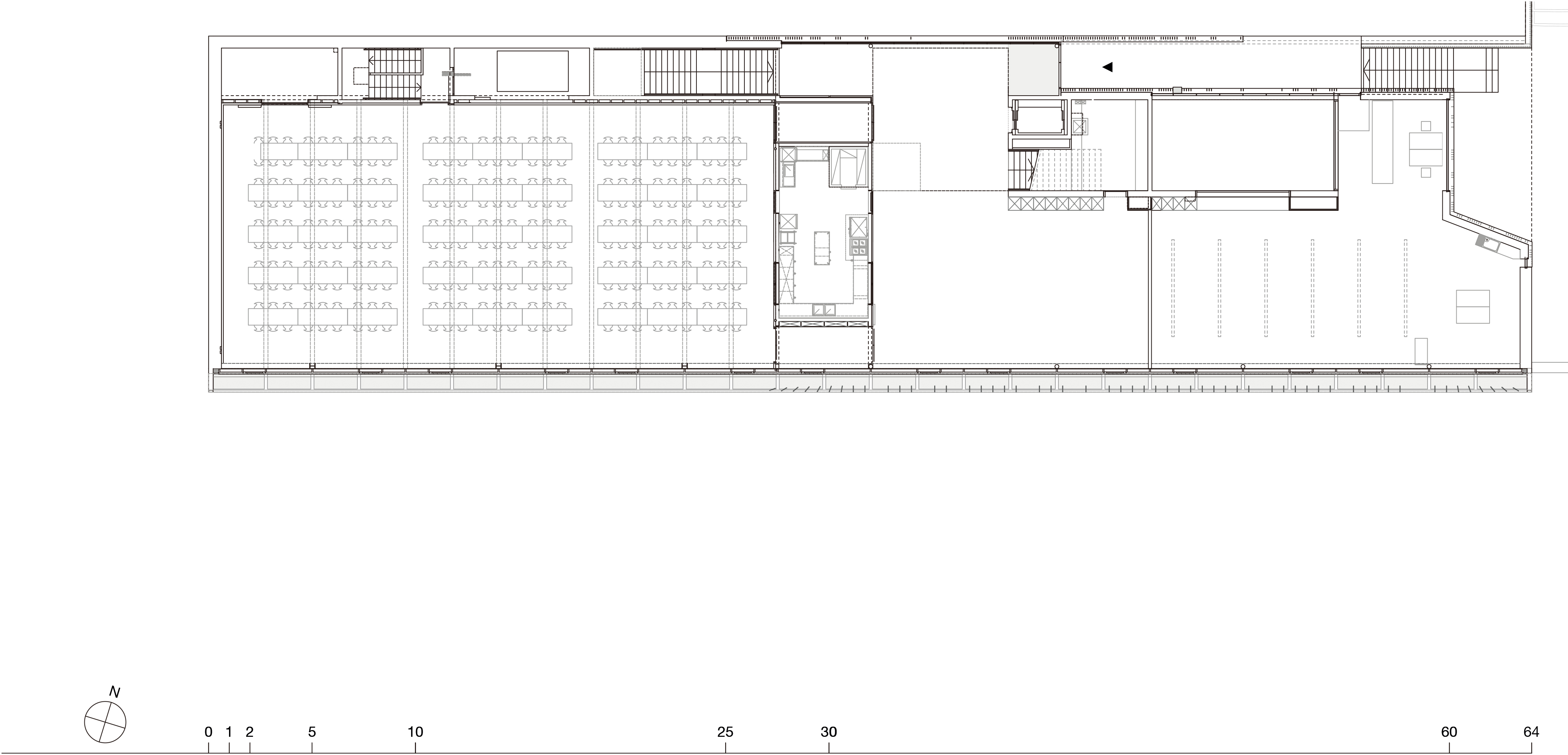
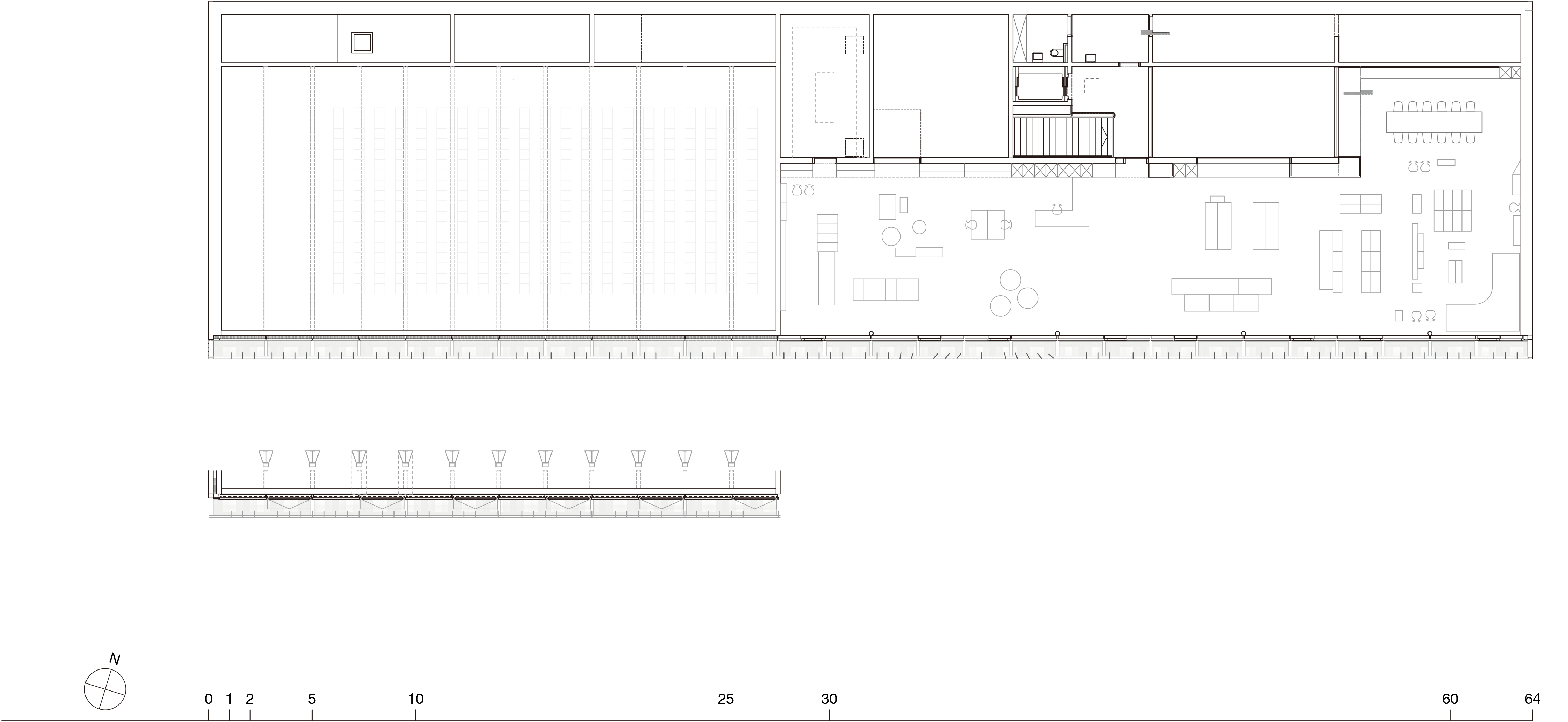
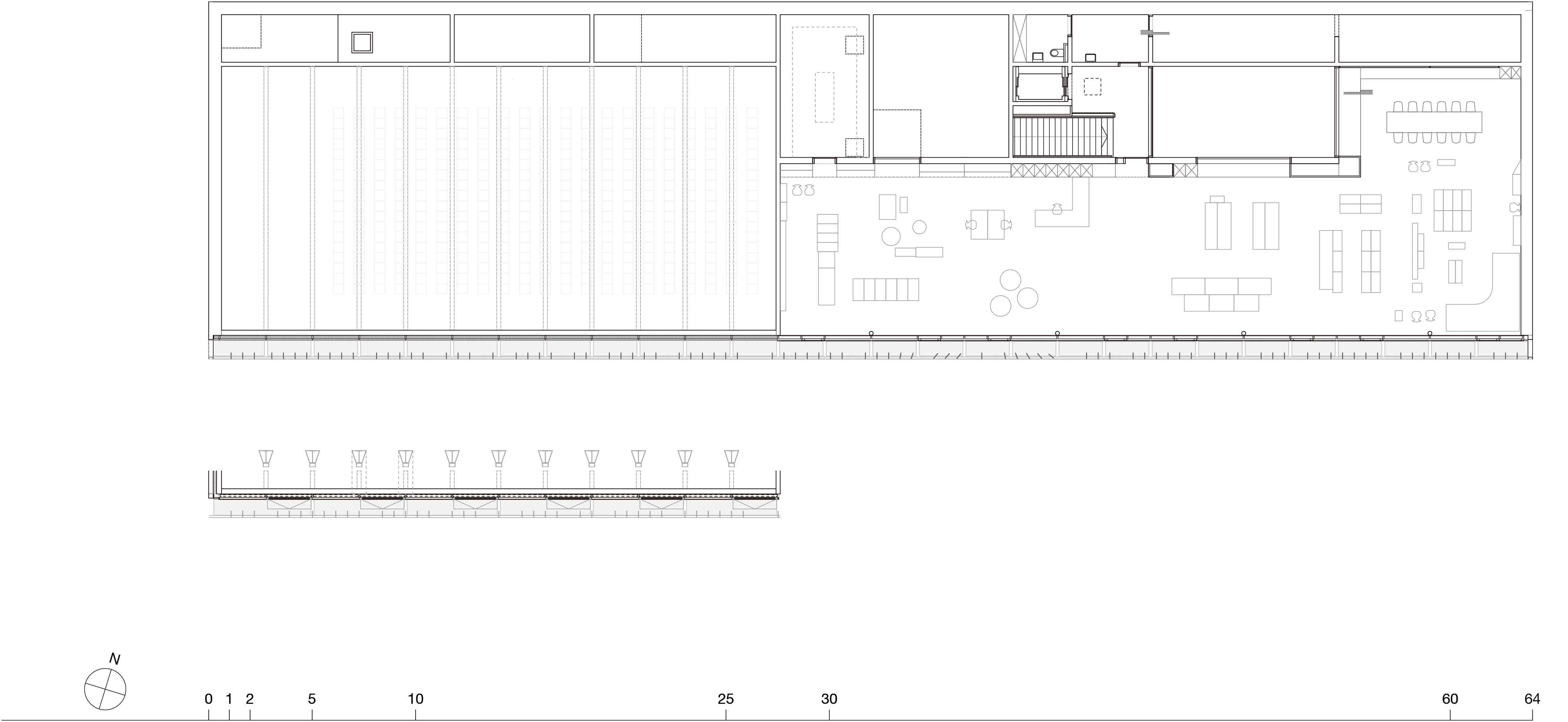
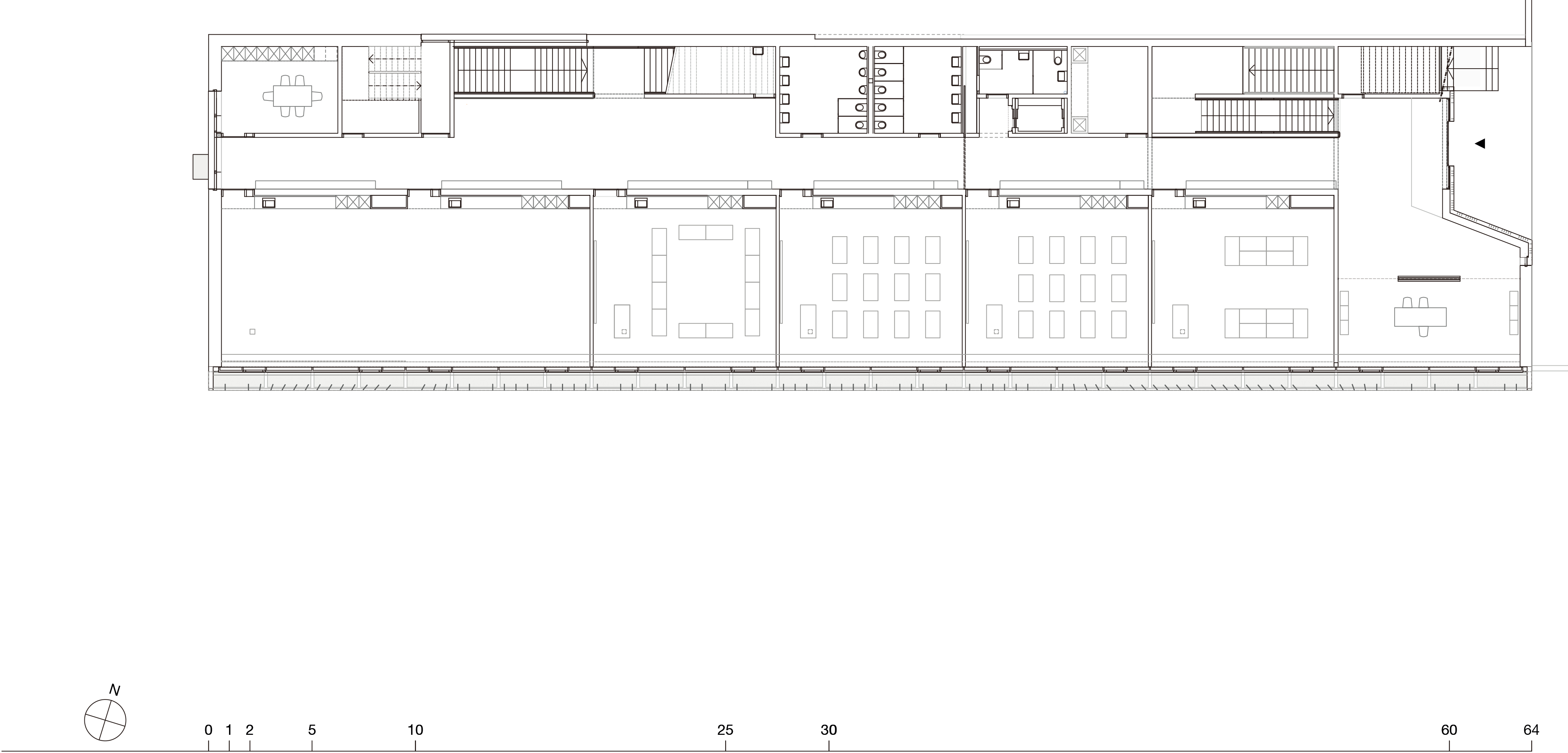
At an altitude of 880 m, the commune of Grimisuat, located on the sunny side of the Alps and ten minutes from the city of Sion, needs to expand its school infrastructure. In addition to classrooms, the building program includes a library, a meeting room for 300 people, storage space for the municipal archives and changing rooms for outdoor sports activities.


The school extension is the result of an open architectural competition held in 2014. The jury appreciated the precision of how the new building fits into the steep natural slope of the site, and its ability to link the various outdoor spaces on the plot, located on different levels.


The extension gives the community a single, functional building with quality spaces. This building, which is alive all day, all year round, thus becomes a catalyser for the dynamic life of the village.




건축가 COMAMALA ISMAIL
위치 Grimisuat, 스위스
용도 교육시설
건축 면적 3,300 m²
준공 2014 - 2017
대표건축가 Marie Frund-Eggenschwiler, Véronique Heissler , Atelier Jordan
공동협업 Atelier Jordan
사진작가 Adrien Barakat
'Architecture Project > Education' 카테고리의 다른 글
| ZGC International Innovation Center (0) | 2024.07.26 |
|---|---|
| Hosho Gakuen Learning Center Building no. 6 (0) | 2024.06.17 |
| Cloud Kindergarten of Luxelakes (0) | 2024.05.31 |
| Lovell International School (0) | 2024.05.30 |
| Texoversum Innovation Center (0) | 2024.05.27 |
마실와이드 | 등록번호 : 서울, 아03630 | 등록일자 : 2015년 03월 11일 | 마실와이드 | 발행ㆍ편집인 : 김명규 | 청소년보호책임자 : 최지희 | 발행소 : 서울시 마포구 월드컵로8길 45-8 1층 | 발행일자 : 매일



