

TEXOVERSUM – Südwesttextil Federation for Trade and Employment in the Textile Industry, Reutlingen
The teaching, research and innovation center for cross-cutting technologies in the textile industry known as the Texoversum was developed and constructed as part of the new campus expansion plan of the Reutlingen University of Applied Sciences. It promises to become a powerful and highly expressive component of the built environment at the university.
Textile construction is the theme of the design both in function, with a weaving of different disciplines and activities on the interior, and in form, with the representational woven exterior that makes the building so distinct. The first building of its kind with a façade of woven carbon and glass fiber tiles, the building stands as a symbol of the future potential of innovative fiber-based materials and textile techniques.
Using a robotic winding process, the individual tiles are tailor-made for their intended purpose. Each tile is designed on the basis of five templates and arranged to follow the path of the sun, creating a unique, multi-layered appearance. All of the tiles are self-supporting and do not require a separate load-bearing frame. The staggered arrangement of the tiles provides unobstructed views of the surroundings. In addition to meeting the demands for sun and fall protection as well as other practical functions, the façade is also aesthetically and symbolically engaging.


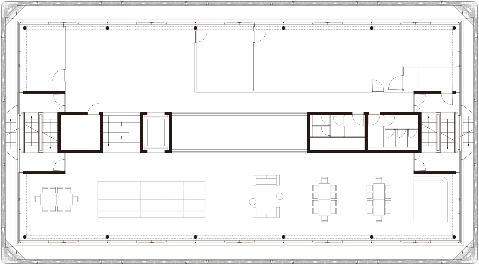
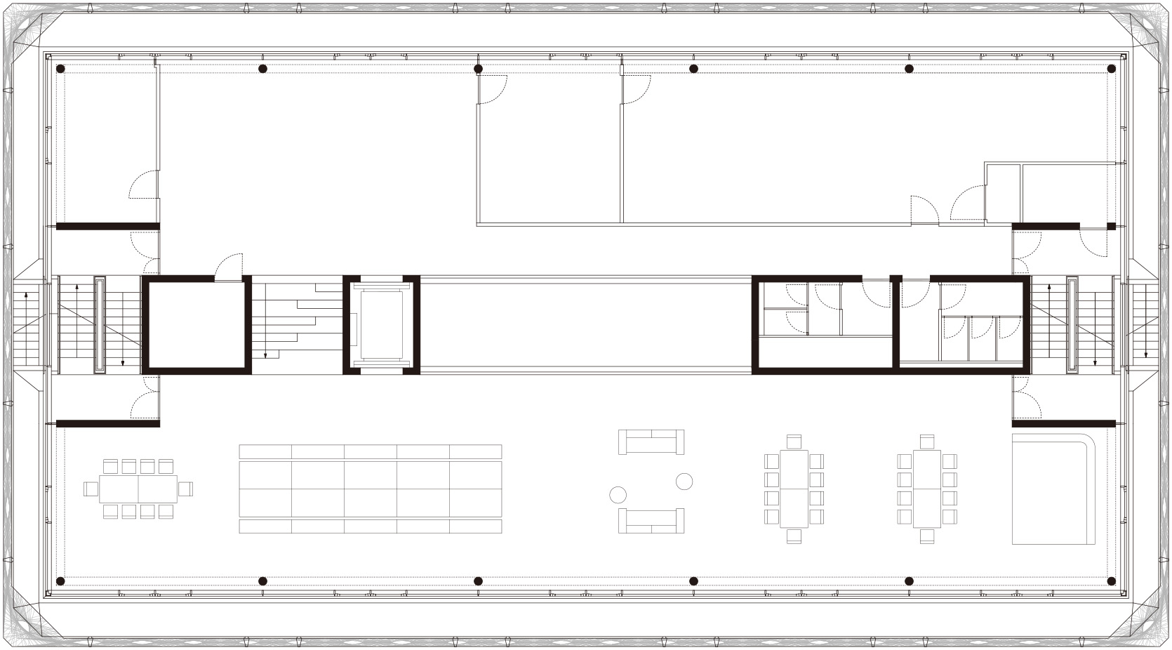
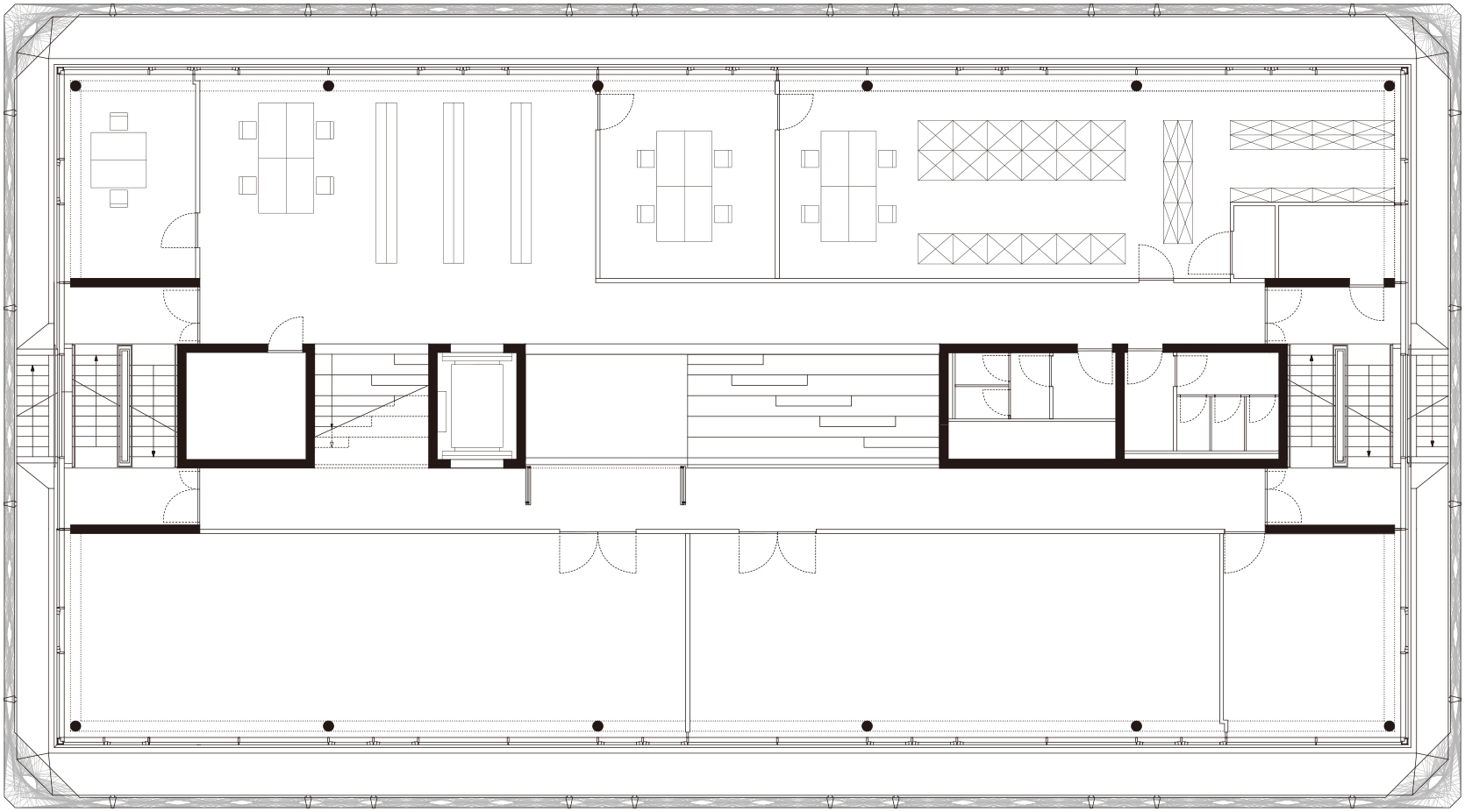
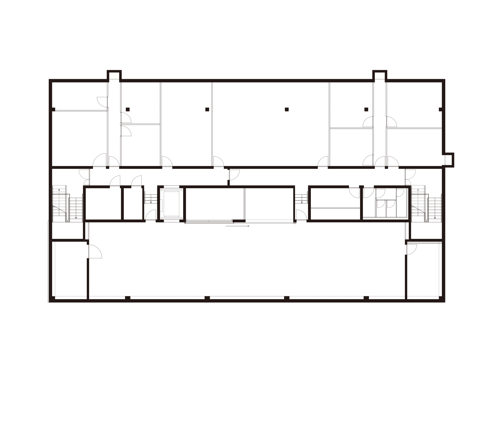
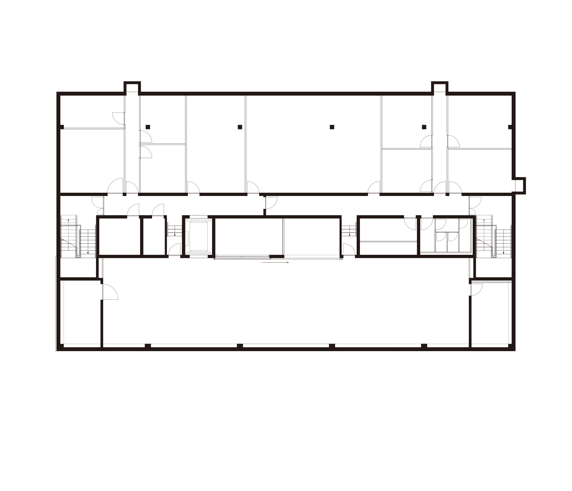
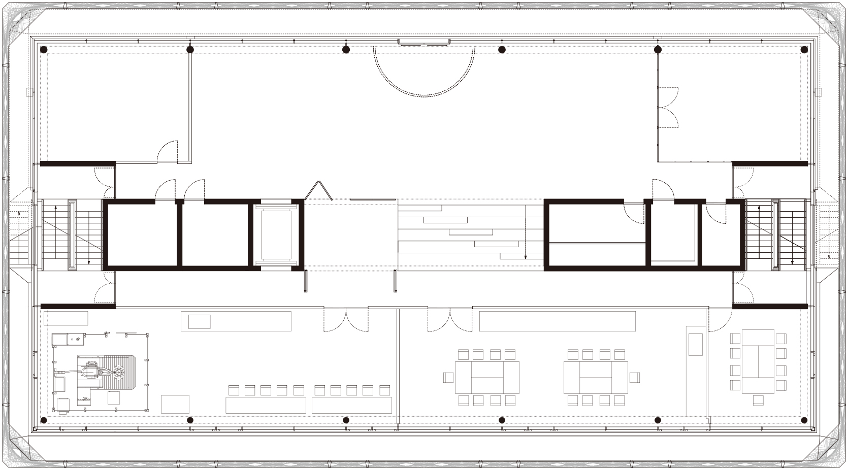
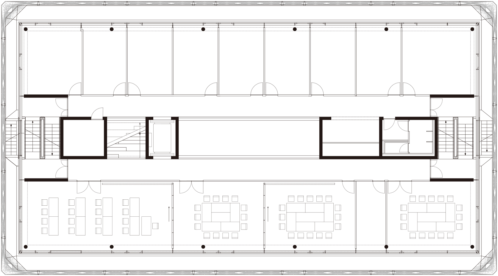
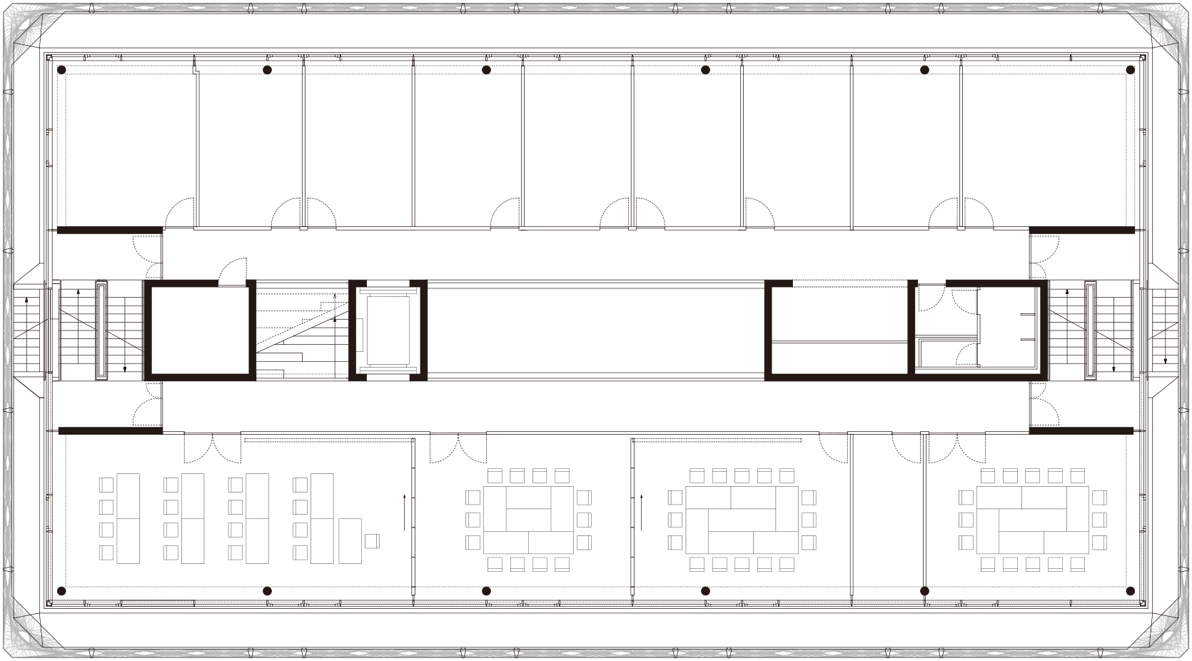
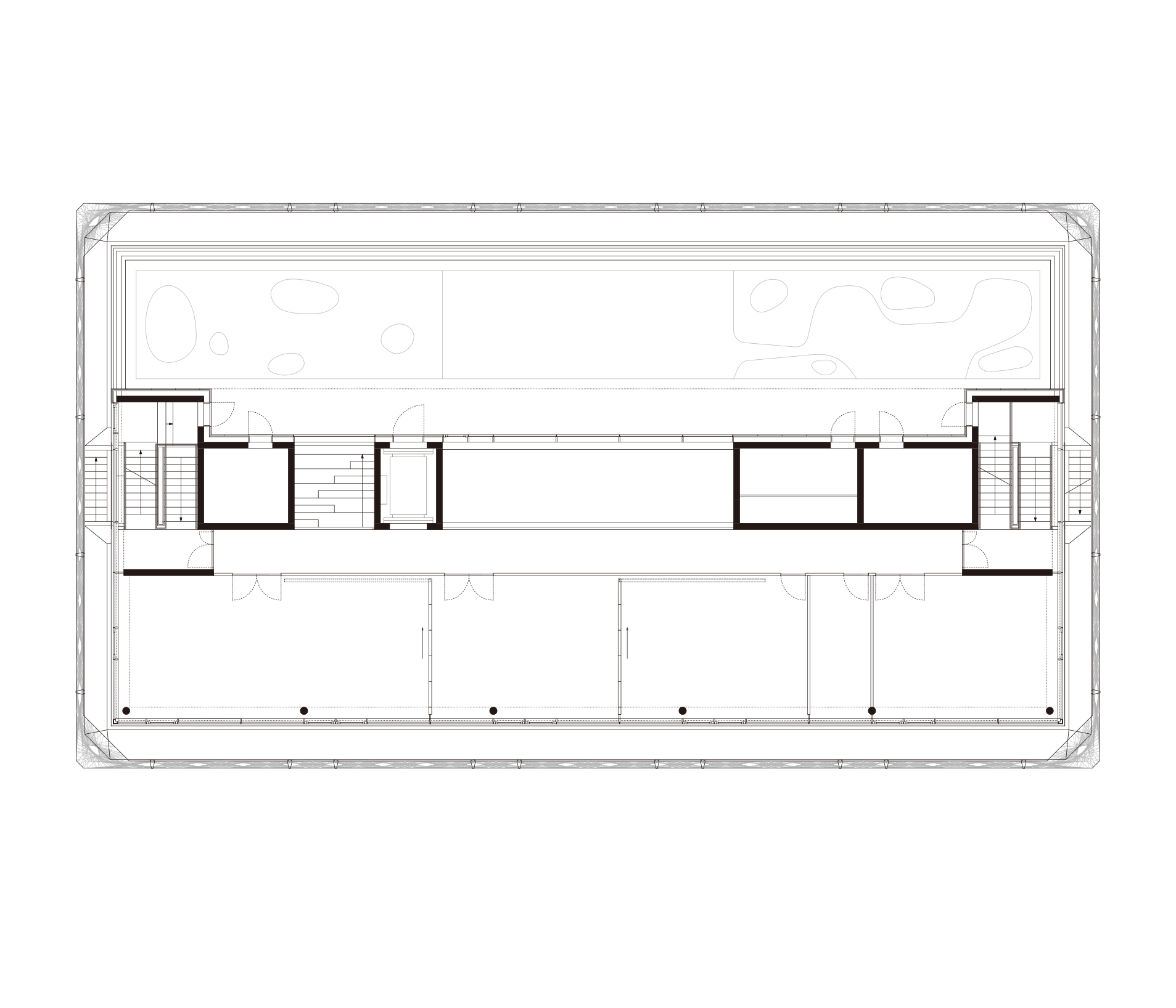
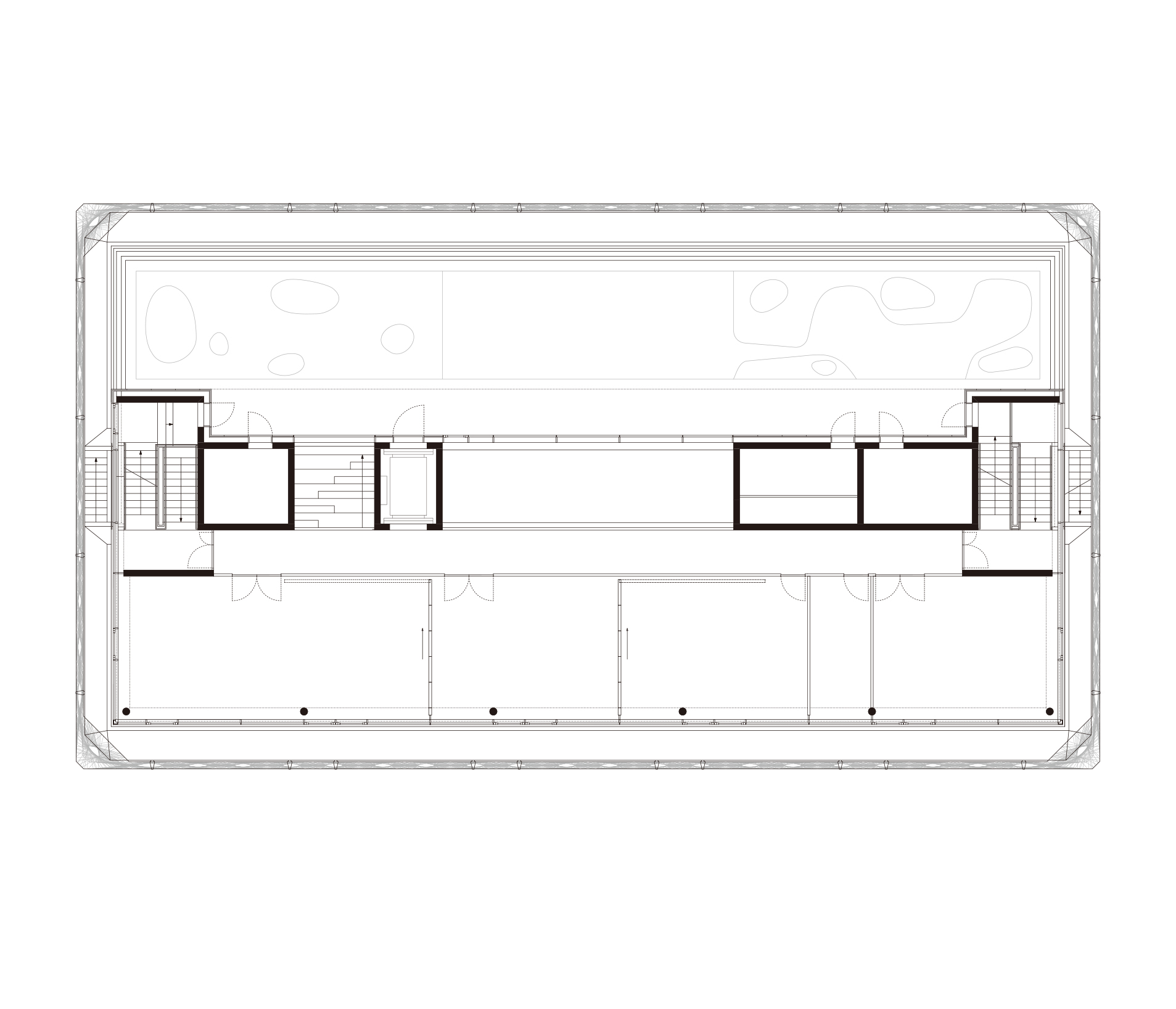
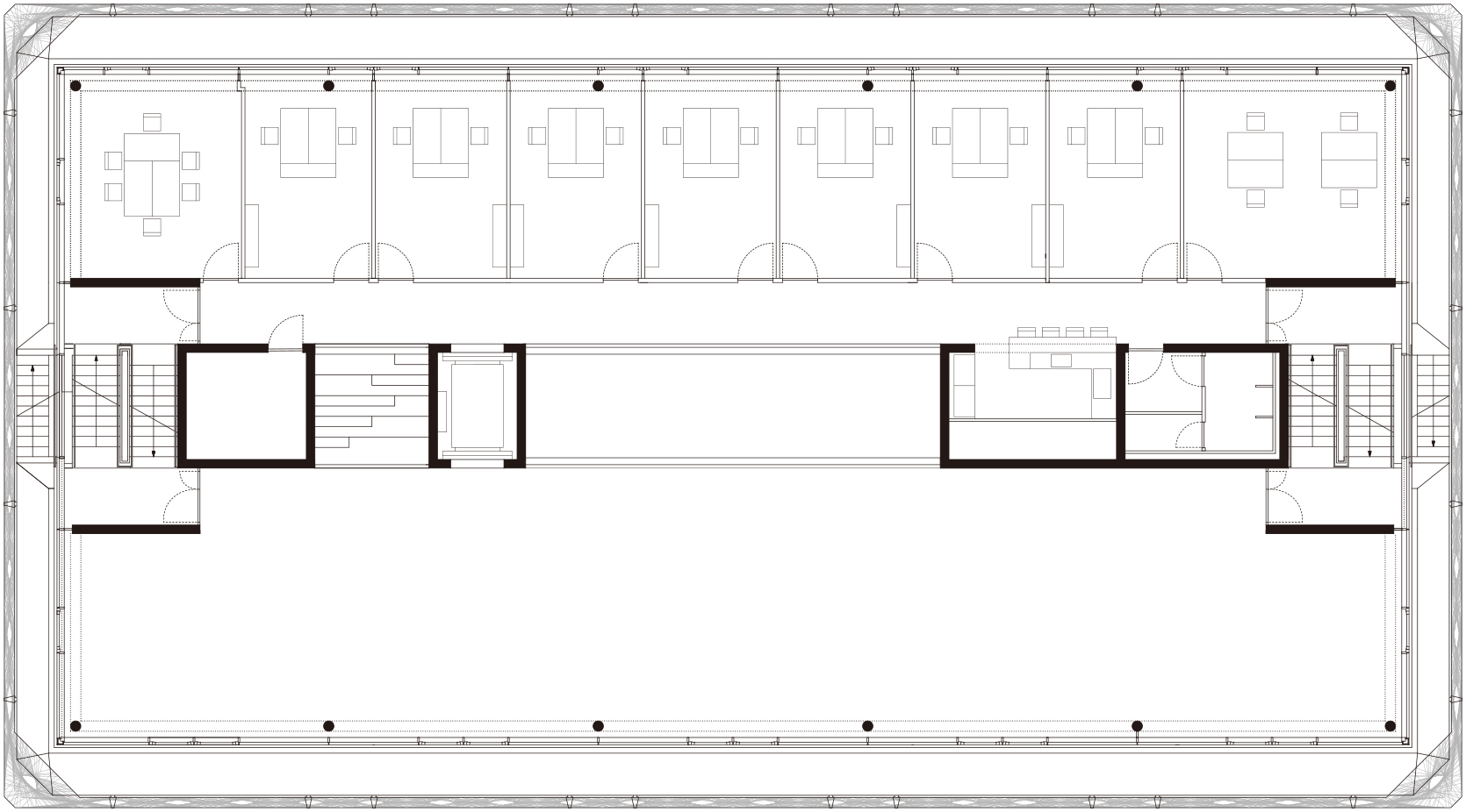
The central elements of transparency and interconnectedness visible in the architectural design continue in the structural design. Inside, the Texoversum has an open, transparent, split-level layout. The stories are staggered at half-level intervals and woven together visually in the atrium, which connects the various sections with one another while also forming a spatial continuum that culminates in a spacious roof terrace. There is a distinctly industrial character to the interior design with finished as well as unfinished concrete features and technical ceilings with exposed ductwork. The open-plan layout provides a collaborative work environment for a variety of user groups as well as a stimulating platform for knowledge sharing.



The use of color inside accentuates the flexible, neutral nature of the structure and connects the split levels spatially. A continuous color gradient shows the promise of color-printed textiles and references historic Gobelin tapestries. Whereas the woven façade with its intentional openings offers views of the surroundings from the inside, the cutouts give viewers outside an informal, postcard-shaped glimpse of the working world within the Texoversum.












건축가 allmannwappner, Menges Scheffler Architekten, Jan Knippers Ingenieure
위치 로이틀링겐, 독일
용도 대학시설
연면적 4,110㎡
준공 2023
대표건축가 allmannwappner gmbh, Munich
조경 디자인 Glück Landschaftsarchitektur GmbH, Stuttgart
보조 파사드 Menges Scheffler Architekten PartG mbB, Frankfurt
파사드 구조 Jan Knippers Ingenieure, Stuttgart
건물 구조 bwp Burggraf + Reiminger GmbH, Munich
사진작가 Brigida González
'Architecture Project > Education' 카테고리의 다른 글
| Cloud Kindergarten of Luxelakes (0) | 2024.05.31 |
|---|---|
| Lovell International School (0) | 2024.05.30 |
| International Institute for Geo-Information Sciences (0) | 2024.05.23 |
| Sforzacosta Preschool (0) | 2024.05.23 |
| Kakapo Creek Children’s Garden (0) | 2024.05.22 |
마실와이드 | 등록번호 : 서울, 아03630 | 등록일자 : 2015년 03월 11일 | 마실와이드 | 발행ㆍ편집인 : 김명규 | 청소년보호책임자 : 최지희 | 발행소 : 서울시 마포구 월드컵로8길 45-8 1층 | 발행일자 : 매일



