
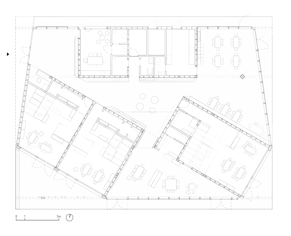
스포르차코스타 유치원은 좁은 대지와 부족한 공사 일정 등의 제약을 기회로 바꾸며, 새로운 학교 건물의 행보를 정의하였다. 실내와 실외 사이는 일련의 임계 공간을 만드는 큰 지붕으로 연결되어, 분리된 것처럼 보이는 고체와 빈 공간의 시스템을 통해 전체적인 형태를 만든다. 세 개의 작고 독립적인 시설의 배열은 다양한 형태와 비율로 일련의 공간을 형성하고 있다. 이로 인해 지붕의 변화에 의해 형성되는 비스듬한 전망을 통해 정원과 매끄럽게 통합되는 다공성 시스템을 이룬다.
공간의 관절은 환경 사이의 매끄러운 흐름이 강조되는 과도기에 분명해진다. 교실을 연결하는 이러한 ‘중간’ 공간에서 눈에 띄는 입구, 이중 높이의 공간을 비추는 천광, 단독 기둥과 같은 다양한 건축 요소가 초점으로 나타나며 의도적인 배치와 크기의 차이로 인해 탐험과 발견을 유도한다. 스포르차코스타 유치원은 음악 작업장, 냄새와 맛을 탐구하는 감각 작업장 및 도서관과 함께 가족, 어린이, 교사 및 교육자를 환영하는 공간을 수용한다. 같은 지역 내에서 공유할 수 있는 주방을 갖추고 있어 어린이들과 함께 식사 시간을 공유할 수도 있다. 구조는 전적으로 나무로 만들어졌다.
전체적인 파사드는 둘레뿐만 아니라 내부 볼륨의 벽이 플랫폼 프레임 시스템을 사용하여 구성된 수직 구조를 구성한다. 정면의 투명성은 외부에서 수직 지지대의 규칙적인 리듬을 보여주며, 덩어리의 회전으로 인해 정면이 후퇴하자 건물의 수동적인 기능에도 기여하는 넉넉한 덮개 공간을 만들 수 있었다. 또한, 이 프로젝트는 완전히 재활용 가능한 재료로 건설되어 제로 에너지 건축이기도 하다.


















건축가 BDR bureau
위치 이탈리아, 마체라타, 스포르차코스타
프로젝트면적 530㎡
설계기간 2022. 10. - 11.
시공기간 2023. 6. - 11.
대표건축가 Alberto Bottero, Simona Della Rocca
디자인팀 Morena Gagliardi, Alina Salahoru
구조엔지니어 Andrea Montagna
시스템설계 Gianluca Serpilli, Fabio Serpilli
시공관리 Paolo Bianchi
시공 Subissati Srl
기타협업 (Systems) Bioedil Srl / (Custom furniture and common areas furniture) Arredi 3N Srl / (Classroom furniture) Spazio Arredo Srl / (Exterior arrangements) Papa Enrico srl
발주자 ABF Andrea Bocelli Foundation
사진작가 Federico Farinatti, BDR bureau
해당 프로젝트는 건축문화 2024년 5월호(Vol. 516)에 게재되었습니다.
The project was published in the May, 2024 recent projects of the magazine(Vol. 516).
May 2024 : vol. 516
Contents : SKETCH City of Lost Memories / Hossain Mousavi 잃어버린 기억의 도시 / 허세인 무사비 : COMPETITION : RECENT PROJECT g:ign / g:ign architects 지아인(地我因) / 건축사사무소 지아인Arc and
anc.masilwide.com
'Architecture Project > Education' 카테고리의 다른 글
| Texoversum Innovation Center (0) | 2024.05.27 |
|---|---|
| International Institute for Geo-Information Sciences (0) | 2024.05.23 |
| Kakapo Creek Children’s Garden (0) | 2024.05.22 |
| Van Hien University Vietnam (0) | 2024.05.17 |
| Marshgate UCL East Building (0) | 2024.05.17 |
마실와이드 | 등록번호 : 서울, 아03630 | 등록일자 : 2015년 03월 11일 | 마실와이드 | 발행ㆍ편집인 : 김명규 | 청소년보호책임자 : 최지희 | 발행소 : 서울시 마포구 월드컵로8길 45-8 1층 | 발행일자 : 매일



