
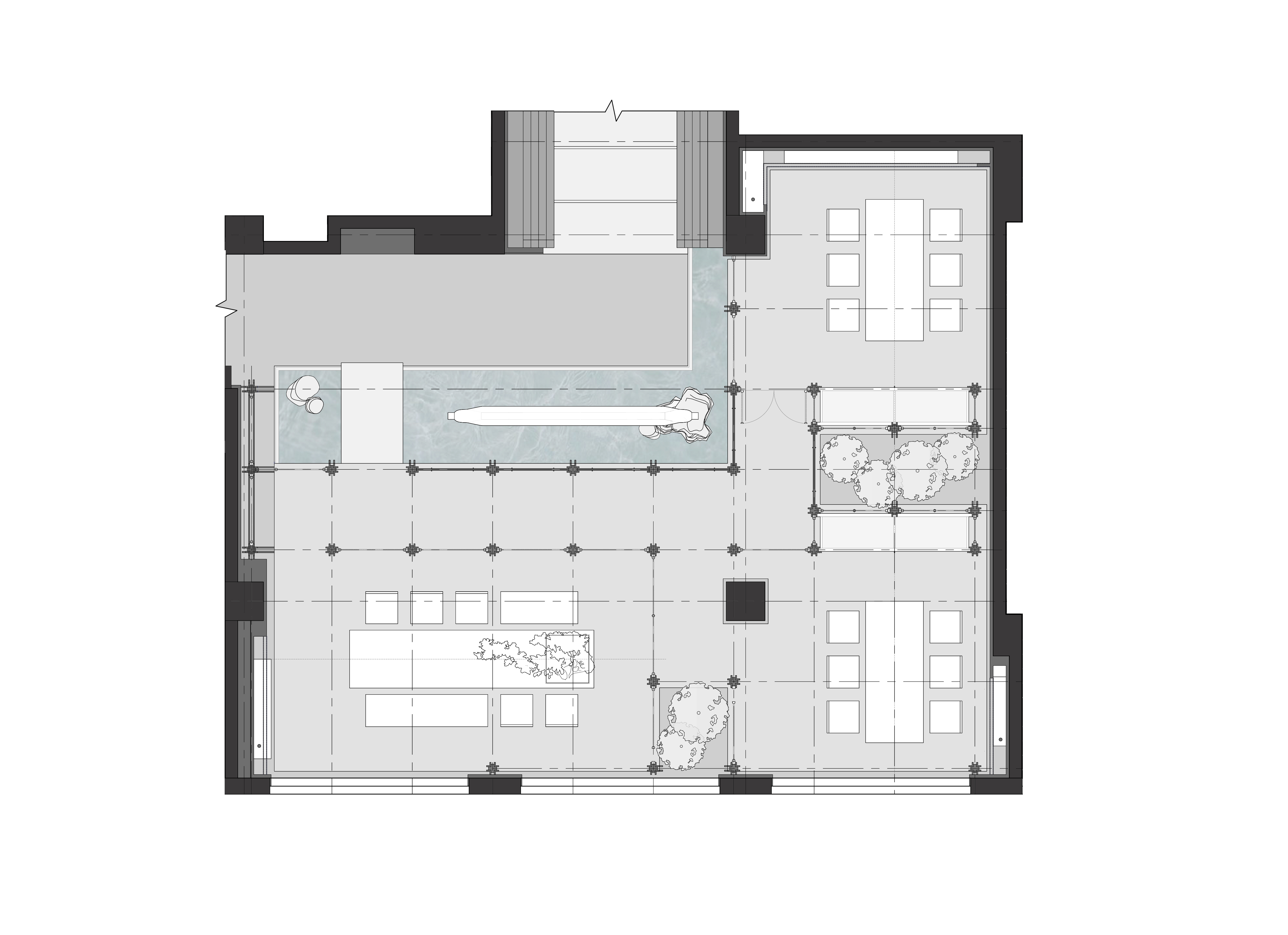
전통적인 동양의 미학과 건축 문화를 결합하여 디자인된 선위 뮤지엄은 목가적인 풍경 속에서 차를 마시는 고풍스럽고 우아한 공간이다. 향을 피우고, 차를 마시고, 조용히 대화를 나누고, 경치를 감상하고, 다구를 즐기며, 마음을 진정 시킬 수 있는 공간이다. 처음 공간에 들어서면 고요하고 차분한 분위기의 수공간 정원이 방문객을 조용히 환영한다. 방문객은 빛을 따라 공간 안으로 더 깊숙이 걸어 들어가고, 구불구불한 수공간에서 발걸음을 내디딜 때마다 각기 다른 목가적인 풍경은 마음을 차분하게 만든다. 긴 복도는 전통적인 양식을 사용하여 만들어졌으며, 전체적으로 천연 소재, 우아한 선의 가구와 다도 식기가 차분한 분위기를 만들도록 섬세하게 배치되어 있다. 또한, 부드럽고 따뜻한 노란색의 조명이 고요한 분위기를 한층 더 강화하며, 창가에는 다도상 앞에 앉아 정원의 꽃과 나무의 흔들리는 그림자를 즐기며 다도 시간을 즐길 수 있도록 설계되어 있다.






건축가 DSC·design
위치 중국, 베이징, 시청구
프로젝트면적 94㎡
준공 2023. 10.
대표디자이너 Li Zizhao
디자인팀 Zhao Zhiyuan, Yang Nan
가구디자인 Gao Kexin, Lu Shuai
조명컨설팅 Zhu Haiyan
시공 Beijing Zhongxiang Zaide Architectural Decoration Engineering Co., Ltd.
발주자 Beijing Jingyan Hemu Catering Co., Ltd.
사진작가 (Valley Vision)Zhong Ziming
해당 프로젝트는 건축문화 2024년 5월호(Vol. 516)에 게재되었습니다.
The project was published in the May, 2024 recent projects of the magazine(Vol. 516).
May 2024 : vol. 516
Contents : SKETCH City of Lost Memories / Hossain Mousavi 잃어버린 기억의 도시 / 허세인 무사비 : COMPETITION : RECENT PROJECT g:ign / g:ign architects 지아인(地我因) / 건축사사무소 지아인Arc and
anc.masilwide.com
'Interior Project > Retail' 카테고리의 다른 글
| ZAURA (0) | 2024.05.24 |
|---|---|
| Lounge at the Seoul Foundation of Arts and Culture (0) | 2024.05.21 |
| Carmencita Film Lab Madrid (0) | 2024.05.16 |
| GUNGSEOCHAE HAIR PANGYO (0) | 2024.05.13 |
| Coach Airways, A Retro-Futuristic Ode to 1970s Air Travel (0) | 2024.05.09 |
마실와이드 | 등록번호 : 서울, 아03630 | 등록일자 : 2015년 03월 11일 | 마실와이드 | 발행ㆍ편집인 : 김명규 | 청소년보호책임자 : 최지희 | 발행소 : 서울시 마포구 월드컵로8길 45-8 1층 | 발행일자 : 매일



