
시립복지원은 사회 부적응과 무관심 속에서 마음의 벽을 닫은 이들이 생활하는 작은 공동체이다. 이곳에 거주하는 사람들은 사회적 공존과 고립의 경계선에 있지만, 사회와 분리되고 단절되는 것이 아닌 함께 살아가야 하는 사람들이다. 시립복지원의 물리적인 위치는 도심 내부에 존재하기 어렵지만, 창원시립복지원은 이들을 보호하고 재활을 돕는 공간이자, 기존 사회로 회귀를 돕는 공간이다. 그래서 자연으로 열려 있지만 외부와는 분리되어 있고, 영역 안에서 보호하지만 가두어 두지 않는 공간적 특수성이 담긴 공간으로 설계되었다.
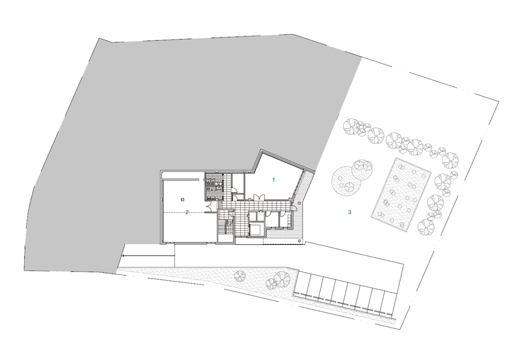
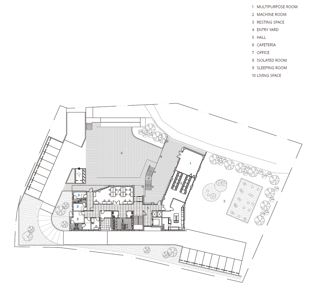
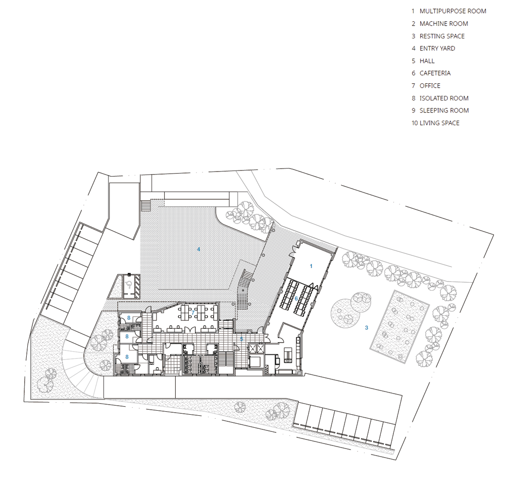
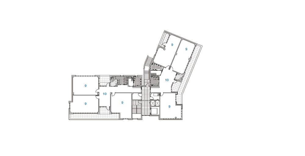
대지는 서측으로 대산의 끝자락과 태봉천이 흐르고, 동측으로는 차량 전용도로가 있어 소음이 발생한다. 주변에서의 접근이 쉽지 않은 지형이기 때문에 고저차를 이용하여 도로와 맞닿은 높은 레벨은 차량의 접근과 진입 마당을 계획하고, 지형이 낮은 위치에는 이용자들의 전용 외부 공간을 설계했다. 진입 마당은 건축물과 도로의 물리적 거리를 이격, 동시에 특별한 행사에 다양하게 활용될 수 있는 공간이다. 이용자 전용 외부 공간은 텃밭, 쉼터, 정원 등 생활 환경에 필요한 공간을 계획하여 한정되어 있는 영역을 넓게 활용하길 원했다. 창원시립복지원은 현상설계 원안을 유지할 수 없었다. 당초 계획안은 진입마당에서 필로티 공간을 지나 사적 영역(이용자들의 전용 외부 공간)으로 연결될 수 있는 동선을 계획하였다.
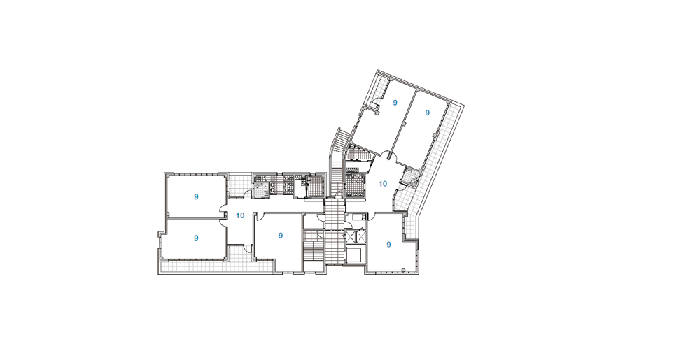
실제 복지원에서의 생활을 살펴보니 공간적인 연결보다는 사회와 소통할 수 있는 프로그램 및 교육이 더욱 우선시 되는 상황이었고, 철저히 보호되고 영역화 시켜야 했다. 이에 비를 맞지 않고 활동할 수 있는 필로티 공간의 영역을 넓혀 식당, 프로그램실과의 연계를 확장하였다. 각각의 침실 및 생활공간에서는 모두 외부 휴게 공간을 면하고 있어 내부생활의 영역이 확장된다. 외부의 다양한 환경을 시각적으로 끌어들여 지리적 환경의 이점을 적극 활용하였다. 이러한 외부 공간의 형성은 건축물의 저층부-중층부-상층부의 입체적인 볼륨을 완성시켰다. 땅속 적층된 수평적 선을 모티브로 주변 자연환경과 관계를 맺을 수 있는 재료 및 입면 계획은 자연적 환경과 관계를 맺도록 계획하였다. 석재 패널에 수평 띠를 새겨 넣어 햇빛의 방향이 움직이면서 입면 위에 맺히는 그림자의 깊이와 방향도 함께 움직이도록 하였다. 지면과 맞닿은 저층부의 입면은 땅과 닮은 벽돌을 사용하여 수평 띠를 갖는 회색빛 볼륨이 지면에서 가볍게 떠 있는, 회색빛 볼륨이 그만큼의 무게감을 갖는다.












건축가 MPA(M Play Architecture) + MUWI Architecture
위치 경상남도 창원시 마산합포구
용도 노유자시설(노숙인재활시설)
대지면적 3,970㎡
연면적 1,635.53㎡
규모 지하 1층, 지상 2층
설계기간 2020. 12. - 2021. 7.
준공 2023. 5.
대표건축가 (엠플레이건축) 김태윤 / (주.무위건축사사무소) 서정석
프로젝트건축가 (엠플레이건축) 김태윤 / (주.무위건축사사무소) 서정석
시공 (주)일동건설
사진 최진보
해당 프로젝트는 건축문화 2024년 4월호(Vol. 515)에 게재되었습니다.
The project was published in the April, 2024 recent projects of the magazine(Vol. 515).
April 2024 : vol. 515
Contents : SKETCH Living Room in Fantasy / Alexandr Krylov 환상적인 건축물 속 거실 / 알렉산드로스 크릴로프 : COMPETITION : RECENT PROJECT Gomso Salt Farm Smart Complex Center / LIM architects 곰소염전 스마트복합쉼터 / 건축
anc.masilwide.com
'Architecture Project > Healthcare' 카테고리의 다른 글
| Best Friend Animal Hospital (0) | 2024.05.02 |
|---|---|
| Blacktown Animal Rehoming Centre (0) | 2024.05.01 |
| Munsan Elderly Support Center (0) | 2023.11.21 |
| BRICKYARD RETREAT RENOVATION (0) | 2023.09.07 |
| CHILDREN'S CLINIC COMPLEX IN FUNABASHI (0) | 2023.09.06 |
마실와이드 | 등록번호 : 서울, 아03630 | 등록일자 : 2015년 03월 11일 | 마실와이드 | 발행ㆍ편집인 : 김명규 | 청소년보호책임자 : 최지희 | 발행소 : 서울시 마포구 월드컵로8길 45-8 1층 | 발행일자 : 매일



