
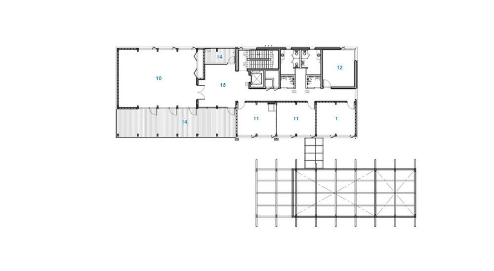
노인복지시설은 단순히 생활편의시설의 역할에서 그치는 것이 아니라 주민들이 주도하여 만들어가는 지역커뮤니티 시설이 되어야 한다. 주민 의견을 단순하게 수렴한 형태로는 미래의 변화가능성에 대응하는 공간을 만들기 어렵다. 건축가는 이런 점에서 착안하여 지속가능한 마을형 노인복지시설을 계획했다. 다층의 다채로운 마당과 실내 공간의 연결은 복합적인 프로그램과 공간 사용 가능성을 포용하는 구조적인 요소가 된다.
대지는 주 도심지에서 남측으로 500m 떨어져 있고 북측으로는 차량 진입이 가능한 도로에 접해있다. 대지의 동측에는 혜광학교가 위치해 있고 남측과 동측에는 월아산의 산세가 이어져 자연의 풍경을 접할 수 있다. 목구조의 활용은 이러한 풍경과 어우러지는 조형미를 드러낸다. 본관동에서는 실내에서의 서까래가 반복되며, 외부는 식당동 지붕의 목재루버의 반복이 이루어진다. 노출된 구조목은 대공간에 깊이 있는 공간감을 주어 휴먼스케일의 단계에서 내부 공간의 안정감을 도모한다. 실내 공간에서의 목재 사용은 시설 이용자들의 심리적 안정감을 높여주는 요소가 되며, 에너지 절감 효과를 통해 쾌적한 실내환경을 조성하여 친환경 부분에서의 지속가능성을 높였다.

Senior welfare facilities should not simply serve as neighborhood facilities, but should become local community facilities led by residents. It is difficult to create a space that responds to the possibility of future changes by simply collecting residents’ opinions. With this in mind, the architects planned a sustainable village-type senior welfare facility. The connection between the multi-level, lively yards and the indoor space becomes a structural element that embraces the possibility of complex programs and uses of space.
The site is located 500 meters south of the main city center and is adjacent to a road with vehicle access to the north. To the east of the site is Hyegwang School, and to the south and east are the terrains of Wolasan Mountain, allowing visitors to enjoy the natural scenery. The use of wooden structures reveals a formative beauty that blends in with this landscape. In the main building, the rafters are repeated in the interior, and on the outside, the wooden louvers are repeated on the roof of the dining hall. The exposed structural wood gives a sense of depth to the large space, promoting a sense of stability in the interior space at the human scale level. The use of wood in the interior space is a factor that enhances a sense of peace for facility users, and the energy-saving effect creates a comfortable indoor environment, enhancing sustainability in the eco-friendly sector.
















건축가 건축사사무소 이색
위치 경상남도 진주시 문산읍 삼곡리 727번지
용도 노유자시설
대지면적 3,237.00㎡
건축면적 610.01㎡
연면적 993,47.00㎡
건폐율 18.84%
용적률 30.51%
규모 지상 2층
설계기간 2021. 1. - 7.
준공 2022. 8.
대표건축가 박찬규
디자인팀 박찬규, 임정주
구조엔지니어 금나구조
기계엔지니어 SJ가온누리
전기엔지니어 선진엔지니어링
시공 리호건설
발주자 진주시청
사진작가 석정민
해당 프로젝트는 건축문화 2023년 8월호(Vol. 507)에 게재되었습니다.
The project was published in the August, 2023 recent projects of the magazine(Vol. 507).
August 2023 : vol. 507
Contents : Records Four Architects from Three Teams Selected for ‘2023 Korea Young Architects Award’ 2023 젊은 건축가상에 선정된 4명의 건축가들 : EXHIBITION / COMPETITION / BOOKS : SKETCH Mistakes, New Beginnings / Diego Alejandro Oquen
anc.masilwide.com
'Architecture Project > Healthcare' 카테고리의 다른 글
| Blacktown Animal Rehoming Centre (0) | 2024.05.01 |
|---|---|
| Changwon Welfare Center (0) | 2024.04.24 |
| BRICKYARD RETREAT RENOVATION (0) | 2023.09.07 |
| CHILDREN'S CLINIC COMPLEX IN FUNABASHI (0) | 2023.09.06 |
| KONOHANA CLINIC (0) | 2023.08.28 |
마실와이드 | 등록번호 : 서울, 아03630 | 등록일자 : 2015년 03월 11일 | 마실와이드 | 발행ㆍ편집인 : 김명규 | 청소년보호책임자 : 최지희 | 발행소 : 서울시 마포구 월드컵로8길 45-8 1층 | 발행일자 : 매일



