
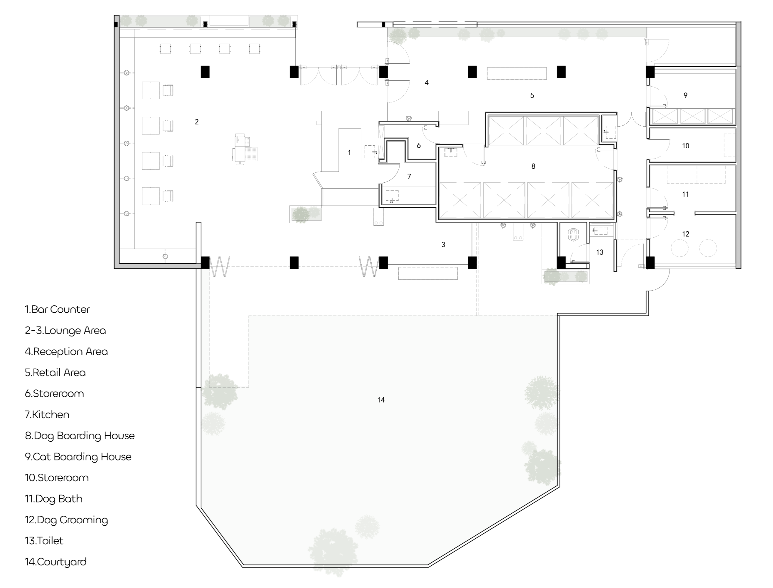
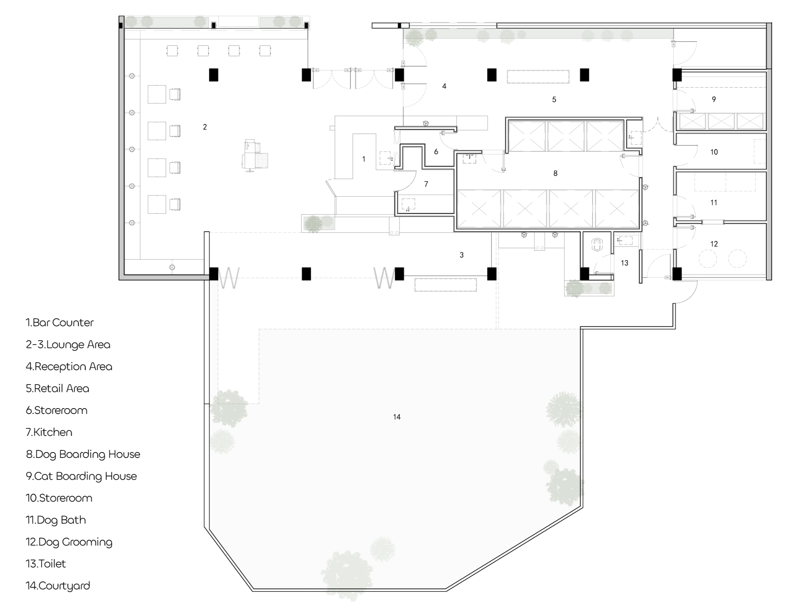
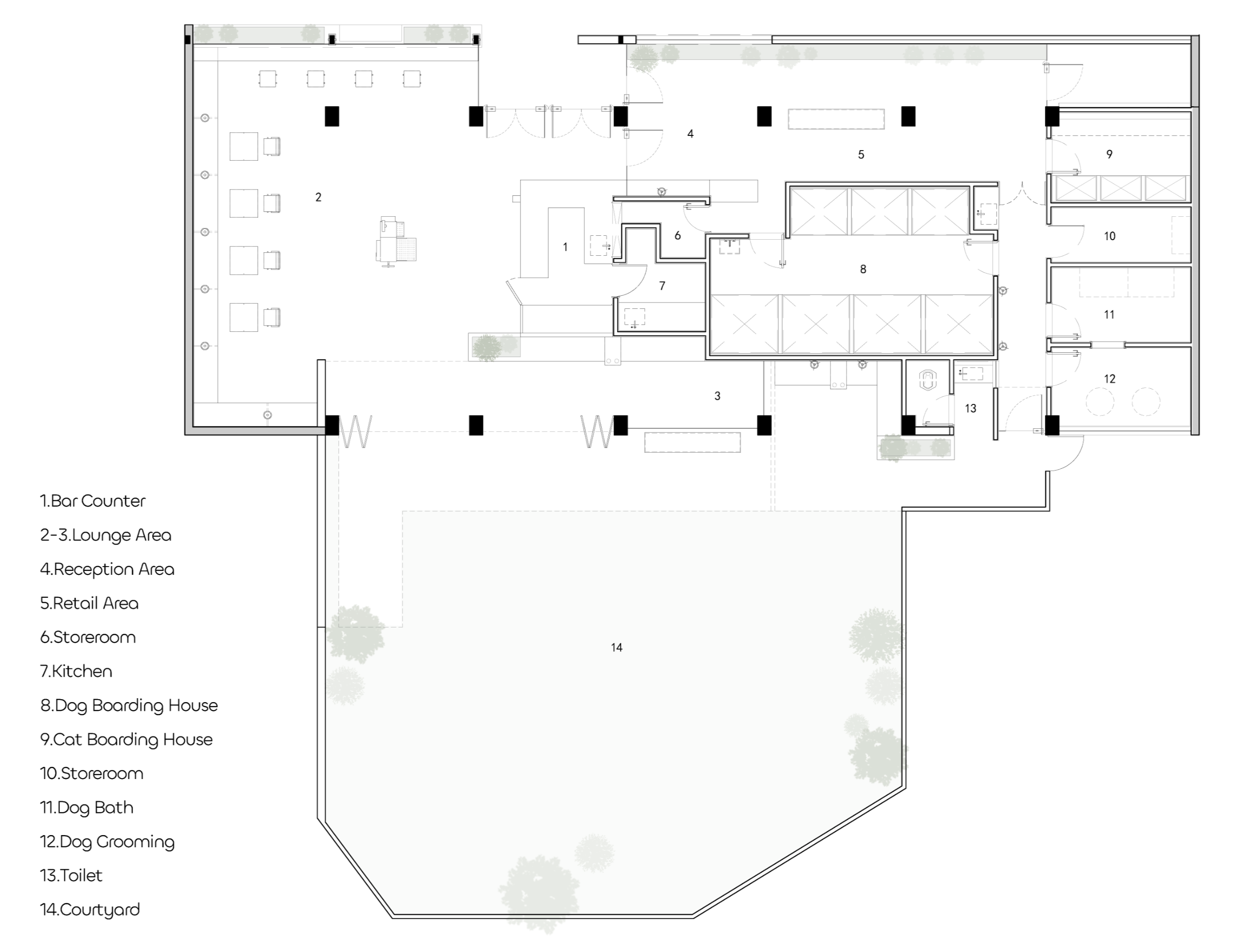
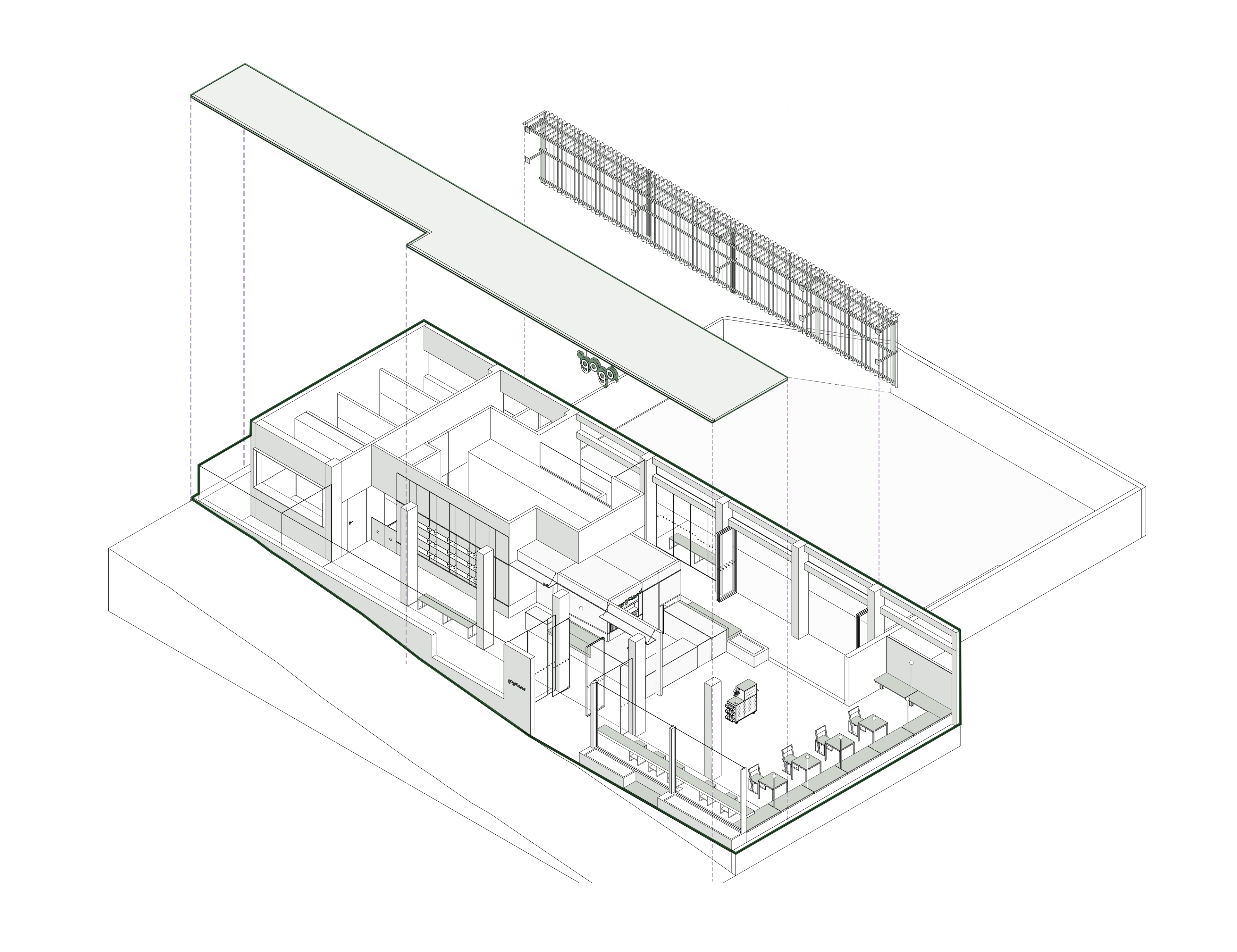
후이저우시의 와일드 아일랜드 커뮤니티에 지어진 고고랜드는 독특하고 매력적인 분위기의 반려동물 친화 공간이다. 디자이너는 나뭇잎처럼 흩날리는 활기찬 브랜드 색상을 반영해 공간의 전체적인 분위기를 돋보이게 하기 위해 약간의 녹색 장식을 채택했다. 입구의 녹색 터치를 시작으로 반려동물의 발에서 영감을 받은 디자인 요소들은 공간 곳곳에 무작위로 나타나 반려동물의 즐거운 질주가 남긴 발자국을 상징한다. 오래된 주거용 건물 아래 들어섰기 때문에, 기존의 공간을 개조하는 방식으로 진행됐다. 기존 벽체를 일부 철거하였고, 남동측의 복도와 북동측의 안뜰을 연결하고 그 부분에 야외 정원을 만들었다. 또한, 시간과 빛이 흐르면서 내부에는 자연의 그림자가 드리우는 반야외적 공간에 편안하고 따뜻한 정서를 가져다 준다. 반려동물을 위한 박스 형태의 독립된 상자 형태의 공간도 만들어져 있다.









건축가 Informal Design
위치 중국, 항저우, 후이저우시
프로젝트면적 300㎡
설계기간 2023. 7. – 8.
준공 2023. 10.
디자이너 Sheng Wang, Shubin Lin, Jie Wang, Zilong Chen
그래픽디자이너 Jing Zheng, Yanhong Liu, Jing Fu
브랜딩 Sumi Huang, Wenqi Huang
시공 Shenzhen Jushen Construction Co., Ltd.
발주자 gogoland
사진작가 Chao Zhang
해당 프로젝트는 건축문화 2024년 4월호(Vol. 515)에 게재되었습니다.
The project was published in the April, 2024 recent projects of the magazine(Vol. 515).
April 2024 : vol. 515
Contents : SKETCH Living Room in Fantasy / Alexandr Krylov 환상적인 건축물 속 거실 / 알렉산드로스 크릴로프 : COMPETITION : RECENT PROJECT Gomso Salt Farm Smart Complex Center / LIM architects 곰소염전 스마트복합쉼터 / 건축
anc.masilwide.com
'Interior Project > Retail' 카테고리의 다른 글
| Nude Project's Milan Flagship Store (0) | 2024.04.25 |
|---|---|
| PJ. Lobster Fernando VI (0) | 2024.04.18 |
| PJ. Lobster Born (0) | 2024.04.11 |
| Jang Jeong Jeong (0) | 2024.04.10 |
| URBAN GROVE (0) | 2024.04.09 |
마실와이드 | 등록번호 : 서울, 아03630 | 등록일자 : 2015년 03월 11일 | 마실와이드 | 발행ㆍ편집인 : 김명규 | 청소년보호책임자 : 최지희 | 발행소 : 서울시 마포구 월드컵로8길 45-8 1층 | 발행일자 : 매일



