
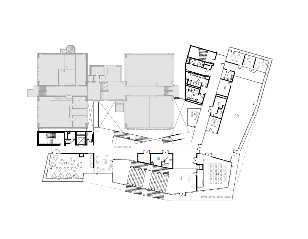
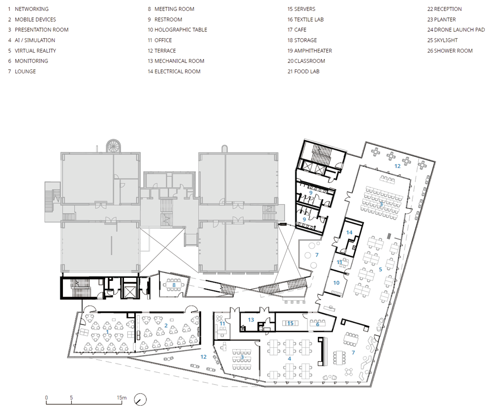
2023년 4월에 완공된 리마대학교 혁신센터는 서로 다른 일련의 프로그램들을 한 지붕 아래에 모았다. 건축가의 목표는 리마대학교와 산업체 학생들뿐만 아니라 지방 정부와 다른 기관들 간의 협업, 지식 공유, 학문 간 사고를 촉진하는 활기찬 혁신센터를 만드는 것이었다. 이를 달성하기 위해 건축가는 열린 테라스, 계단, 협업 구역으로 구성된 ‘소셜 벌집’을 만들었고, 교차 교류와 우연한 만남을 장려하기 위해 이 공간들을 중심으로 프로그램을 구성했다.
혁신센터는 페루의 신흥 산업과 밀접하게 정렬되어 있으며 각 건물 층에 걸쳐 목적별로 쌓여있다. 건물의 가장 낮은 층에는 지속 가능한 개발과 제조 상점을 위한 센터가 있다. 1층에는 로봇 공학, 프로토타이핑 및 물류 센터가 있다. 2층에는 인공 지능 및 컴퓨팅 과학 실험실이 있고 3층에는 섬유 혁신센터가 있다. 4층에는 식품 혁신 실험실이 있으며 옥상에는 넓게 설치된 태양 전지판 아래 공동 모임 공간이 있다. 모든 층에 걸쳐 짜여 있는 일련의 협력 공간, 교실 및 회의 공간, 기업가 센터, 워크샵 및 실험실, 강당, 입주 중인 기업을 위한 작업 공간이 있다. 이러한 공간으로 구성된 리마대학교 혁신센터는 공간의 조건에 대한 혼합 모델 접근법이 특징이다. 건물의 작업 영역은 기계적인 조건이 있는 반면, 건물의 일시적인 영역은 자연적으로 환기된다. 사무실과 기술자의 지원 영역은 학생, 교수진, 그리고 연구원들 사이의 접촉을 최대화하기 위해 연구실 공간에 통합된다. 알루미늄 직물 스크린이 유리 파사드를 보호하며, 바닥 라인은 태양 경로 모델링에 기초하여 셀프 쉐이딩을 위한 공간을 만들기 위한 기복이 있다. 매우 투명한 파사드는 각 혁신 센터의 공간을 시각적으로 드러내며 각 실험실의 활동을 주변 캠퍼스의 사용자들에게 연결하는 데 도움이 된다.




















건축가 Sasaki
위치 페루, 리마
대지면적 2,962㎡
건축면적 1,602㎡
연면적 12,929㎡
설계기간 2018 - 2019
시공기간 2021 - 2023
대표건축가 Pablo Savid-Buteler
프로젝트관리건축가 Antonio Furukawa
프로젝트건축가 YoungJin Lee
디자인팀 (건축팀) Amrit Pilo, Yasmin Maura-Orihuela, Robert Sugar, Evelyn Cheng Zeng / (인테리어팀) Jessica Korthuis / (조경팀) Mauricio Gomez
발주처 Universidad de Lima
시공 COSAPI
사진작가 Renzo Rebagliati, Antonio Furukawa, Eleazar Cuadros, Kevin Fu
해당 프로젝트는 건축문화 2024년 3월호(Vol. 514)에 게재되었습니다.
The project was published in the March, 2024 recent projects of the magazine(Vol. 514).
March 2024 : vol. 514
Contents : COMPETITION : SKETCH Silent River / Nikita Batrakov 침묵하는 강 / 니키타 바트라코프 : RECENT PROJECT Villa Seung Seung / MANDLDA Architects 빌라승승 / 만들다 건축사사무소 Samsong1957 / Unsangdong Architects 삼송1957 /
anc.masilwide.com
'Architecture Project > Education' 카테고리의 다른 글
| Study Pavilion TU Braunschweig (0) | 2024.04.18 |
|---|---|
| Echo at TU Delft (0) | 2024.04.17 |
| Westlake University (0) | 2024.04.15 |
| Columbia Business School (0) | 2024.04.11 |
| Extension of Yoon Joong Elementary School (Gym and Student Restaurant) (0) | 2024.04.03 |
마실와이드 | 등록번호 : 서울, 아03630 | 등록일자 : 2015년 03월 11일 | 마실와이드 | 발행ㆍ편집인 : 김명규 | 청소년보호책임자 : 최지희 | 발행소 : 서울시 마포구 월드컵로8길 45-8 1층 | 발행일자 : 매일



