
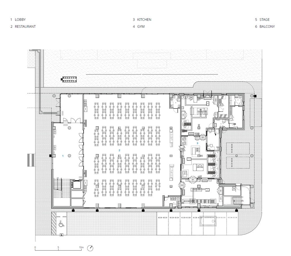
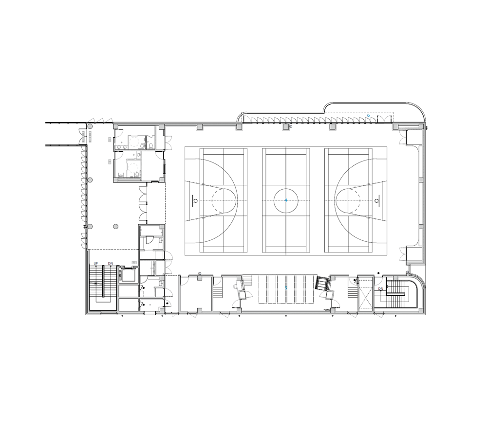
40년 전에 설립한 초등학교에 체육관과 학생식당을 증축하는 프로젝트이다. 초등학교는 기존 교사동에 특별교실동이 증축되어 브리지로 연결되어 있었고, 두 건물 앞에 자리한 운동장은 서로 관계 맺지 못한 채 존재하고 있었다. 증축되는 건축물은 위압적이지 않은 형태로 자리한다. 조용히 자리하면서 기존 건물과 운동장, 자연과 도시의 풍경, 아이들이 함께 조화롭게 어우러지는 공간이자 모든 공간이 시각적, 공간적으로 열려 있어 아이들이 자연스럽게 소통하고 더 많은 이야기를 할 수 있다. 운동장 방향으로 열린 파노라마의 창들과 뭉게구름을 닮은 2층 외부 관람대는 밝고 쾌적한 실내 환경을 만든다. 또한, 1층 학생식당은 전면 운동장, 놀이 공간과 후면 정원으로 넓은 창을 계획하여 채광과 환기뿐만 아니라 어린이들과 자연의 교감으로 이어진다. 체육관 매스는 상부로 올라갈수록 입면을 후퇴시키고 교사동과 면한 입면에는 투명한 창으로 개방감과 일조를 확보했다. 북측의 기존 교사동과 특별교실동의 브리지에서 연결된 2층 연결 통로를 통해 편리하게 이동할 수 있다. 남측에는 주민을 위한 별도의 동선이 계획되었다. 차량 동선 및 급식을 위한 하역 동선은 학생들의 출입과 이동 동선과 분리했으며, 신재생 에너지를 적극적으로 활용하기 위해 체육관 지붕에 태양광 패널을 설치하고 시스템 연료전지를 설치했다.
체육관 실내
체육관은 흰색, 연두색, 노랑색의 컬러 조합으로 밝고 쾌활한 분위기를 유도한다. 다양한 레벨과 방향으로 열린 창은 하늘과 자연을 조망할 수 있고, 채광과 환기가 극대화된 수업 환경이 조성되도록 돕는다. 운동장과 교사동 방향으로 계획된 파노라마 창을 통해 아이들의 건강한 커뮤니티가 이루어지는 편안한 장소로 만든다. 운동장을 조망할 수 있는 2층 외부 열린 관람대는 운동장과 체육관, 실내와 실외를 연결하는 아이들의 커뮤니티 공간이자 휴식 공간으로 활용되며, 무대는 객석과의 거리를 좁히는 장방형 배치로 활용도를 높였고, 단변 방향으로 노랑색의 알코브 공간 계단식 좌석을 계획하여 학생들의 다양한 행위를 불러일으키도록 의도했다.
입면, 단면
체육관의 기본 마감재는 기존 학교의 풍경과 이질감이 없으면서 따뜻한 느낌을 줄 수 있도록 연한 황토색 벽돌이 사용되었다. 1층은 노랑색의 알루미늄 시트와 창이 활기차면서 개방적인 이미지를 주며, 최상부는 진회색으로 수평성을 강조해서 부담스럽지 않은 스케일로 분절했다. 수평의 파노라마 창과 수평의 매스가 교차하면서 만들어내는 초등학교의 세번째 건물인 체육관과 학생식당은 운동장의 배경이 되면서, 단절되었던 건물과 운동장의 관계를 이어내고 아이들이 건강하게 소통할 수 있는 고리로서의 마당이 될 것이다.











건축가 SML + THE CORNERZ ARCHITECTS
위치 서울특별시 영등포구 여의나루로 2길 14
용도 교육연구시설(학교)
대지면적 11,978㎡
건축면적 1,165.60㎡
연면적 2,015.36㎡
규모 지상 2층
건폐율 9.73%
용적률 16.83%(증축분)
설계기간 2018. 10. – 2020. 8.
시공기간 2021. 8. - 2023. 2.
준공 2023. 2.
대표건축가 임승모(에스엠엘 건축사사무소) / 홍종화, 최경철(더코너즈 건축사사무소)
구조엔지니어 에스디엠
발주자 서울남부교육지원청
사진작가 신경섭
해당 프로젝트는 건축문화 2024년 3월호(Vol. 514)에 게재되었습니다.
The project was published in the March, 2024 recent projects of the magazine(Vol. 514).
March 2024 : vol. 514
Contents : COMPETITION : SKETCH Silent River / Nikita Batrakov 침묵하는 강 / 니키타 바트라코프 : RECENT PROJECT Villa Seung Seung / MANDLDA Architects 빌라승승 / 만들다 건축사사무소 Samsong1957 / Unsangdong Architects 삼송1957 /
anc.masilwide.com
'Architecture Project > Education' 카테고리의 다른 글
| Westlake University (0) | 2024.04.15 |
|---|---|
| Columbia Business School (0) | 2024.04.11 |
| LUISS Guido Carli University Campus Hub (0) | 2024.03.26 |
| Nursery School Aartselaar (0) | 2024.03.14 |
| Jakoba Mulderhuis (0) | 2024.03.12 |
마실와이드 | 등록번호 : 서울, 아03630 | 등록일자 : 2015년 03월 11일 | 마실와이드 | 발행ㆍ편집인 : 김명규 | 청소년보호책임자 : 최지희 | 발행소 : 서울시 마포구 월드컵로8길 45-8 1층 | 발행일자 : 매일



