
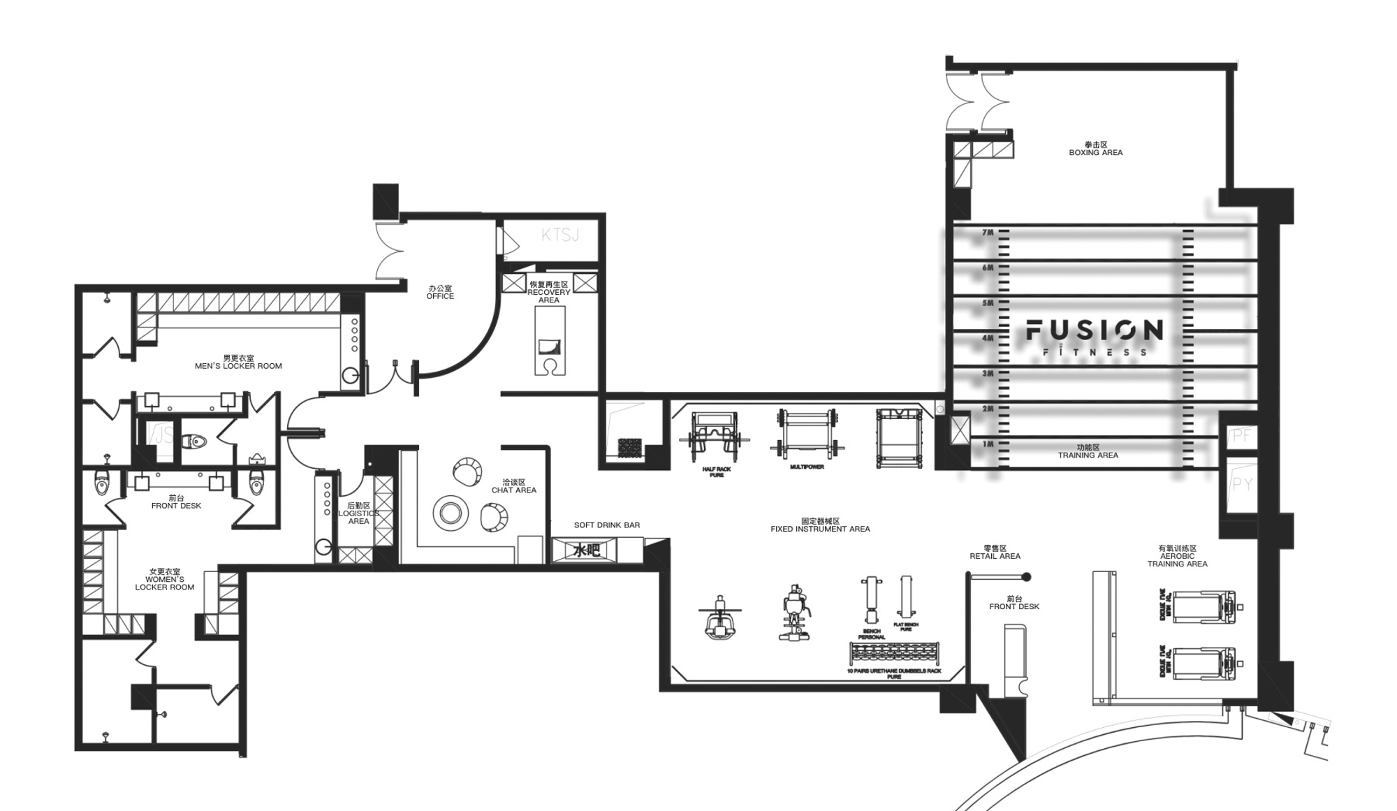
피트니스 퓨전은 Shenzhen Bay Super Headquarters Base내에 새로운 체육관을 열었다. 피트니스 퓨전은 ‘신체적 운동은 삶에 복지를 가져다줄 기술적 활동’이라는 브랜드 철학을 가지고 있다. 이에 맞춰서 디자이너는 브랜드 이미지, 독특한 공간 아이덴티티, 최적화된 사용자 경험을 만드는 데 더욱 집중했다. 세련된 패셔너블하고 따뜻한 도시의 신흥 엘리트들을 위한 독특한 피트니스 여행지 같은 장소로 만들어졌다. 디자인은 먼 고대 신화 세계에서 영감을 얻은 공간 서사를 통해 인간과 자연의 연관성, 기후 변화와 지구 환경의 영향을 돌아보는 동시에 자연 재해에 대한 깊은 사고와 경외, 인류의 미래에 대한 갈망을 전달한다. 곡선의 외관 정면은 마치 돛단배가 출항 준비를 마치고 해안을 따라 표류하는 것처럼 우아하고 독특한 분위기를 가진다. 브랜드의 힘을 보여주는 포스터와 흐르는 듯한 파사드는 막힘 없는 전망을 제공하며, 한편 퓨전 피트니스의 새로운 공간 영역을 에워싸고 있다. 돛단배의 돛단배에서 영감을 얻은 독창적인 설치물과 반투명 유리 파티션 등이 공간의 활용률을 높이고 조용하고 보호되는 분위기를 조성하여 체력단련에 집중할 수 있는 공간이다.

Fitness Fusion has opened a new gym within Shenzhen Bay Super Headquarters Base. Fitness Fusion has a brand philosophy that ‘physical exercise is a technical activity that brings well-being to life.’ Accordingly, the designers focused more on creating a brand image, unique spatial identity, and optimized user experience. The result is a unique fitness destination for the emerging elite in a fashionable and warm city. The design conveys a spatial narrative inspired by distant ancient mythological worlds, reflecting on the connection between humans and nature, the impact of climate change and the global environment, while also conveying deep thought and reverence for natural disasters and a longing for the future of humanity. The curved exterior facade has an elegant and distinctive aura, like a sailboat drifting along the shore ready to set sail. Posters showcasing the power of the brand and the flowing façade offers unobstructed views, while enclosing the new space of Fusion Fitness. Original installations and frosted glass partitions inspired by the sailboat's sailcloth utilize the space and create a quiet, protected atmosphere to focus on fitness.






건축가 SALONE DEL SALON
위치 중국, 선전
프로젝트면적 385㎡
준공 2023. 7.
디자인팀 SALONE, Weber Zheng, Chris Song
시공 ROOM
사진작가 Sean
해당 프로젝트는 건축문화 2024년 1월호(Vol. 512)에 게재되었습니다.
The project was published in the January, 2024 recent projects of the magazine(Vol. 512).
January 2024 : vol. 512
Contents : RECORDS ‘Rural Reconstruction and Regeneration, Perspectives of Land Use’, The 3rd Urban & Architecture and Urbanism Forum 2023 ‘농촌공간 재구조화 및 재생, 토지 이용에서 바라보다’, 2023 제3차 AURI 건축도시포
anc.masilwide.com
'Interior Project > Healthcare' 카테고리의 다른 글
| ARK Club (0) | 2024.08.14 |
|---|---|
| PLAYING IN COLOURS (0) | 2024.03.29 |
| SOOYOU BEAUTY SALON (0) | 2023.06.27 |
| GRANDE CLASS (0) | 2023.06.13 |
| H Zentre (0) | 2023.05.25 |
마실와이드 | 등록번호 : 서울, 아03630 | 등록일자 : 2015년 03월 11일 | 마실와이드 | 발행ㆍ편집인 : 김명규 | 청소년보호책임자 : 최지희 | 발행소 : 서울시 마포구 월드컵로8길 45-8 1층 | 발행일자 : 매일



