
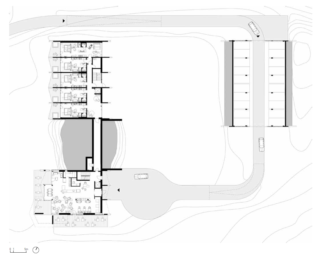
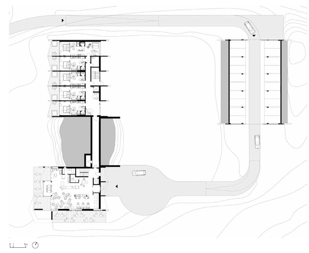
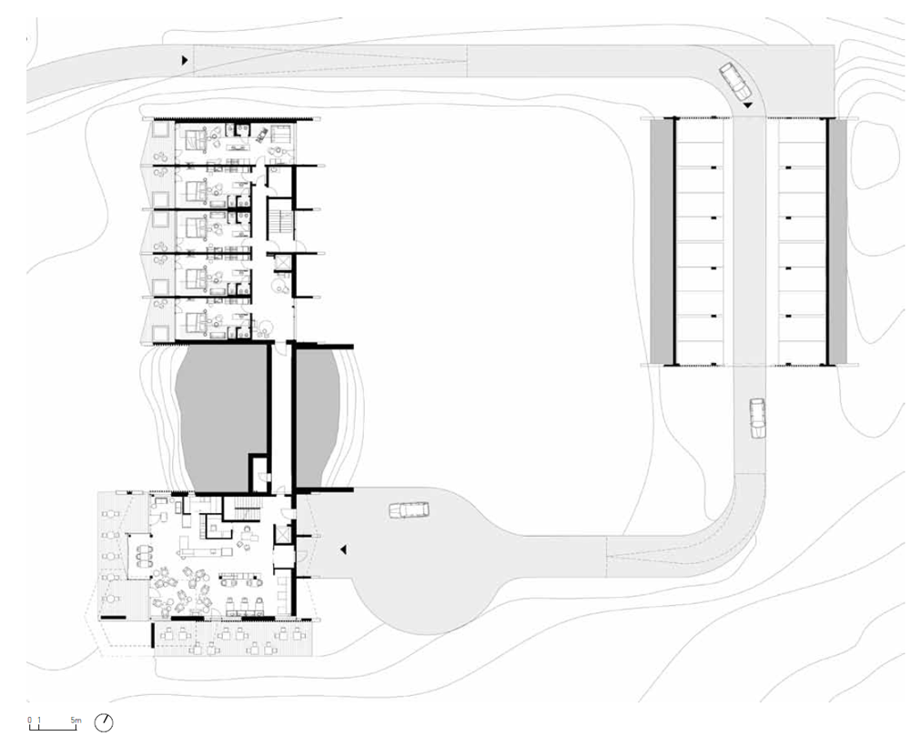
초원과 숲 사이 550년 된 농장은 그 장소가 가지고 있던 역사를 간직한 채, 호텔로 새롭게 탈바꿈되었다. 이온 호텔은 기본적으로 기존의 농장 구조를 본떠서 과거의 시간을 그대로 현재에 옮긴 것 같은 느낌을 준다. 이렇게 두 개의 건축물은 기존의 구조물들과 강한 유대감을 형성한다. 건축가는 전통적인 박공지붕의 디자인을 현대적인 기술과 언어로 표현했으며, 단순히 과거의 구조물을 복제하는 형식을 따르지 않았다. 이러한 부분은 호텔에 접근하는 사람들이 어느 부분에서 접근하냐에 따라 건축물을 각각 다른 모습으로 인식하는 데에서 드러난다. 동쪽과 서쪽 면은 외부를 향해 강한 인상을 남기고, 북쪽과 남쪽에서는 평범한 입면으로 보이는 차이를 가지고 있다. 사다리꼴의 창문은 역시 시선을 사로잡는다. 건물의 전체 길이에 걸쳐 뻗어 있는 상부의 슬랫 구조물은 균질한 입면을 만들어낸다. 또한, 이온 호텔은 기존 건축물인 농장에 사용된 나무를 최대한 그대로 사용하였으며, 재생 가능한 자재를 통하여 흥미로운 입면 속 돌출부로 다양한 그림자를 만들어내며 건축물의 활력을 강조한다.
내부는 이분법적인 디자인 언어를 가진다. 부드러운 베이지색은 미래, 신비로운, 불확실한 것은 신비로운 파란색으로 표현되어 있다. 수직과 수평의 선들은 두 개의 건축물에 일관되게 나타나며 공간에 대한 몰입감과 강렬한 인상을 가질 수 있도록 한다.

A 550-year-old farm nestled between meadows and forests has been transformed into a hotel while preserving the history of the place. Aeon Hotel, essentially modeled after the existing farm structures, evokes a feeling of transporting the past into the present. These two buildings form a strong connection with the existing structures, maintaining a sense of continuity. The architect expressed the design of traditional gabled roofs with modern technology and language, avoiding a simple replication of past structures. This aspect becomes evident as people approaching the hotel perceive the architecture differently depending on which side they approach. The east and west facades make a strong impression toward the outside, while the north and south sides appear with a more ordinary aspect. The trapezoidal windows also capture attention. The slat structure extending over the entire length of the building creates a uniform facade.Additionally, the Aeon Hotel maximally utilizes the wood that was used in the original farm construction, emphasizing the vitality of the building through interesting protrusions and various shadows, achieved with renewable materials.
The interior adopts a dichotomous design language. Soft beige represents the future, while mysterious and uncertain elements are expressed in a mystical blue. Vertical and horizontal lines consistently appear in both structures, creating a sense of immersion and leaving a powerful impression on the space.











건축가 noa* network of architecture
위치 이탈리아, 소프라볼차노
연면적 3.157㎡
시공기간 2021. 1.
준공 2021. 7.
프로젝트건축가 Barbara Jahn-Rösel
디자인팀 noa* network of architecture
인테리어디자인 noa* network of architecture
사진작가 Alex Filz
해당 프로젝트는 건축문화 2024년 1월호(Vol. 512)에 게재되었습니다.
The project was published in the January, 2024 recent projects of the magazine(Vol. 512).
January 2024 : vol. 512
Contents : RECORDS ‘Rural Reconstruction and Regeneration, Perspectives of Land Use’, The 3rd Urban & Architecture and Urbanism Forum 2023 ‘농촌공간 재구조화 및 재생, 토지 이용에서 바라보다’, 2023 제3차 AURI 건축도시포
anc.masilwide.com
'Architecture Project > Commercial' 카테고리의 다른 글
| Guili Hotel, Luzhou (0) | 2024.03.18 |
|---|---|
| PLA 2 Floating Resort (0) | 2024.03.11 |
| Lanserhof Sylt (0) | 2024.03.07 |
| mimmim (0) | 2024.03.06 |
| TRIVIUM (0) | 2024.03.05 |
마실와이드 | 등록번호 : 서울, 아03630 | 등록일자 : 2015년 03월 11일 | 마실와이드 | 발행ㆍ편집인 : 김명규 | 청소년보호책임자 : 최지희 | 발행소 : 서울시 마포구 월드컵로8길 45-8 1층 | 발행일자 : 매일



