
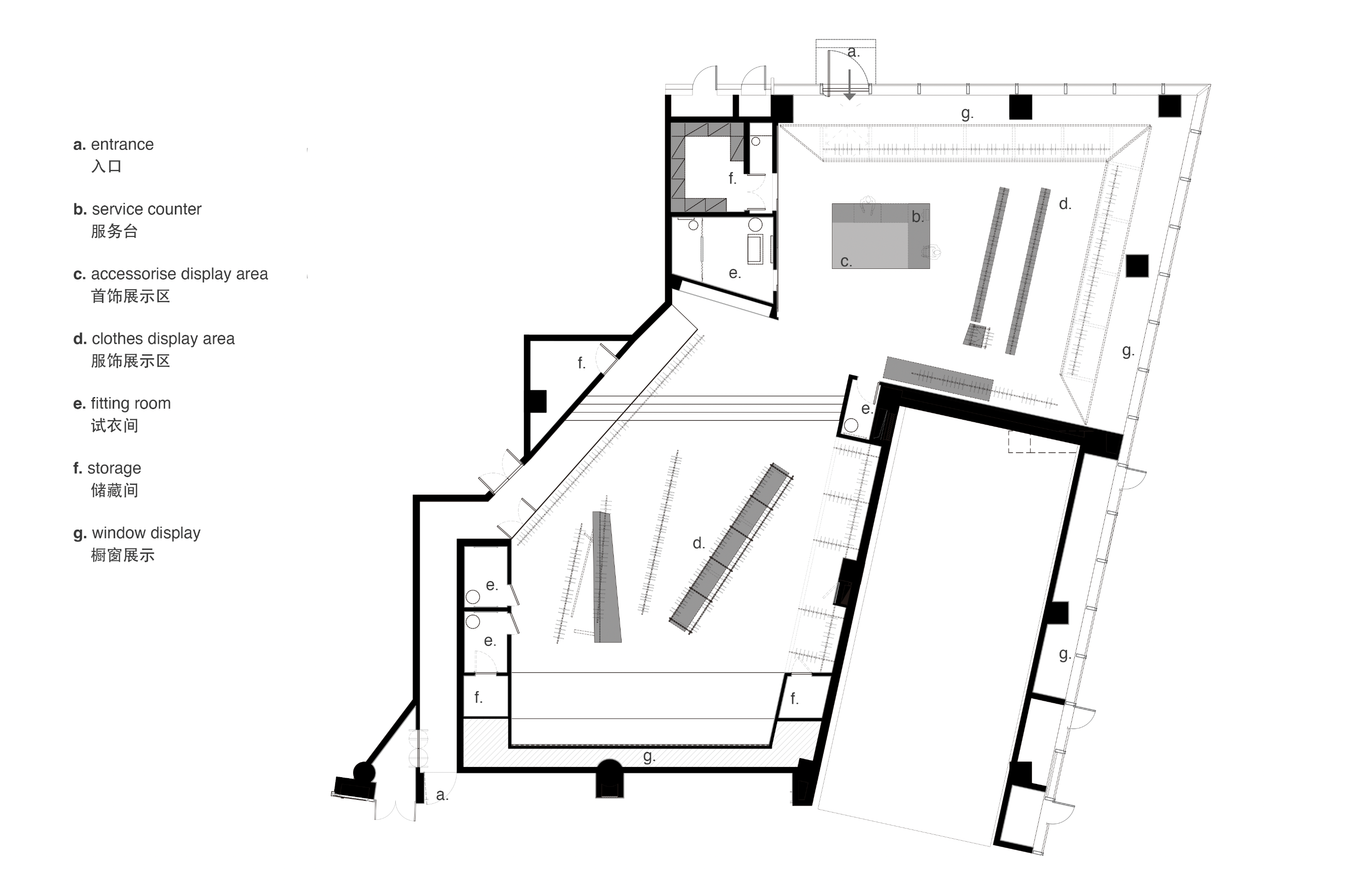
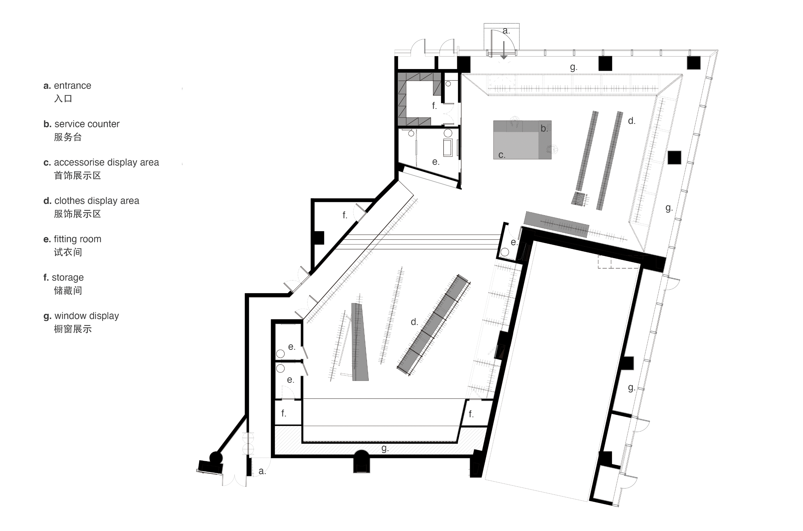
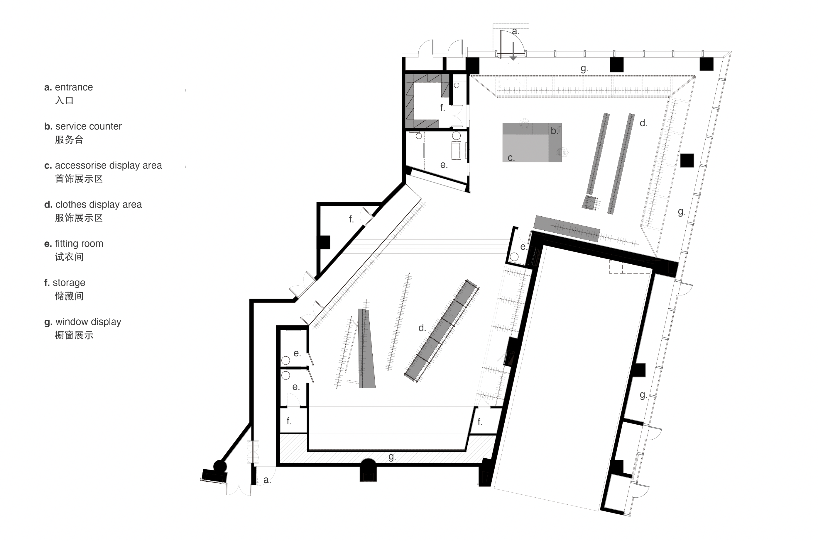
패션 부티크 에스엔디(SND)의 새로운 콘셉트 스토어는 바쁜 도시 속에서 거대한 모래 언덕을 탐험하는 듯한 초현실적인 경험을 선사한다. 모래 언덕의 한쪽에 계획한 검은 통로는 깊은 광산으로 들어가는 듯한 착각을 준다. 밝은 조명은 손님들을 탐험하도록 인도하며, 메탈 스크린을 통해 모래 언덕의 조명과 그림자가 투영된다. 한정된 층고 안에서 거대한 모래 언덕을 완성하고, 그 아래에 리테일 공간을 계획했다. 20m에 가까운 너비를 기둥 없이 지탱하도록 설계된 구조는 파이프 등의 기계 장치를 숨길 수 있는 천장 속 공간 덕분에 깔끔한 인테리어 공간을 만들 수 있다. 피팅의 조명 계획은 마치 달빛 아래 서 있는 몰입감 있는 경험이 된다. 건축가는 모래, 철, 도시에 관한 광활한 모티브를 통해 브랜드의 스토리텔링을 담아낸 공간을 설계했다.








건축가 Various Associates
위치 중국, 광둥
용도 상업시설
연면적 500㎡
준공 2022. 10.
프로젝트건축가 Qianyi Lin, Dongzi Yang
디자인팀 Bo Huang, Junrui Zhang, Yuewen Cao
발주자 SND
사진작가 SFAP
해당 프로젝트는 건축문화 2023년 11월호(Vol. 510)에 게재되었습니다.
The project was published in the November, 2023 recent projects of the magazine(Vol. 510).
November 2023 : vol. 510
Contents : Records ‘Drawing the Future of East Asian Traditional Architecture’, 2023 Hanok Policy Symposium ‘동아시아 전통건축의 미래를 그리다’, 2023년 한옥정책 심포지엄 The ‘Diplomatic Venue’ Returns after 100 Years, De
anc.masilwide.com
'Interior Project > Retail' 카테고리의 다른 글
| MIJANGWON (0) | 2024.02.22 |
|---|---|
| Readellion Bookstore (0) | 2024.02.15 |
| Vera Wang Boutique & LE'PRECIOUS Boutique (0) | 2024.02.07 |
| A RADICAL TAKE ON CAR DEALERSHIP (0) | 2024.01.26 |
| CHAGEE Tea Bar, Shanghai (0) | 2024.01.22 |
마실와이드 | 등록번호 : 서울, 아03630 | 등록일자 : 2015년 03월 11일 | 마실와이드 | 발행ㆍ편집인 : 김명규 | 청소년보호책임자 : 최지희 | 발행소 : 서울시 마포구 월드컵로8길 45-8 1층 | 발행일자 : 매일


