
구속하려는 것들로부터 일상의 해방
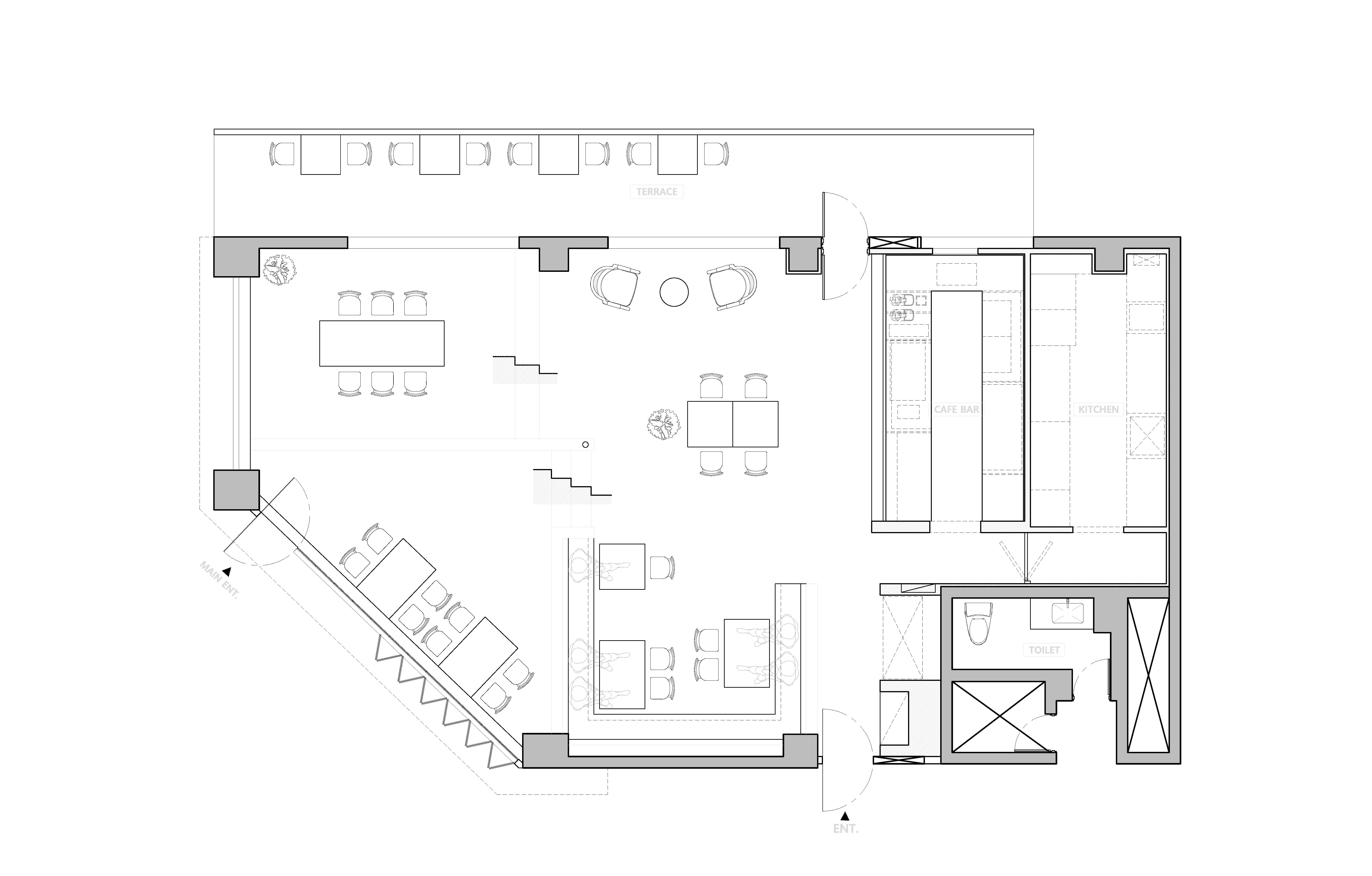
처음 이 공간은 반지하 형태의 여건을 지니고 있었다. 하지만 우리는 시각적 규정을 깨고자 단을 조성하여, 절반은 외부와 같은 레벨로, 또 절반은 내부의 레벨로 구성했다. 그렇기에 외부에서 진입하였을 때 공간 속에서 레이어가 나뉘게 되며, 개인마다 다른 공간감을 느낄 수 있도록 유도했다. 그래서 이러한 요소들로 하여금 이 공간을 반지하라는 공간적인 측면에서의 "해방"이라고 의미했다. 이렇게 해방이라는 키워드를 통해 규정되지 않는 열려있는 공간을 만들고자 한다.

Liberation of daily life from things that try to bind
At first, this space had semi-basement conditions. However, we wanted to break the visual rules by creating a platform, half of which was on the same level as the outside and half on the same level as the inside. Therefore, when entering from the outside, the space is divided into layers, allowing each individual to feel a different sense of space. So, these elements meant that this space was “liberated” in a spatial sense. In this way, we wanted to create an open space that is not defined through the keyword of liberation.














건축가 오롯이스튜디오
위치 서울특별시 중구 동호로 218 세움빌딩 1층(신당동)
용도 카페&와인바
대지면적 150㎡(실내, 테라스, 외관만 해당)
디자인팀 오롯이스튜디오
시공 오롯이스튜디오
발주자 오롯이스튜디오
사진작가 최영준
'Interior Project > Cafe&Restaurant' 카테고리의 다른 글
| Art Forest (0) | 2024.03.05 |
|---|---|
| SAWERDO (0) | 2024.02.08 |
| AGE House (0) | 2024.01.17 |
| Zhongmeishan Self-service BBQ PLUS (0) | 2024.01.08 |
| M Stand (Wuhan International Plaza) (0) | 2023.10.31 |
마실와이드 | 등록번호 : 서울, 아03630 | 등록일자 : 2015년 03월 11일 | 마실와이드 | 발행ㆍ편집인 : 김명규 | 청소년보호책임자 : 최지희 | 발행소 : 서울시 마포구 월드컵로8길 45-8 1층 | 발행일자 : 매일



