
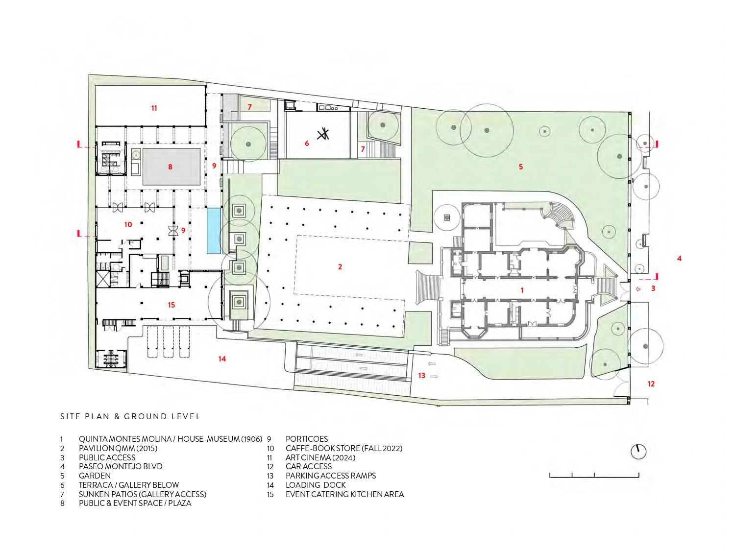
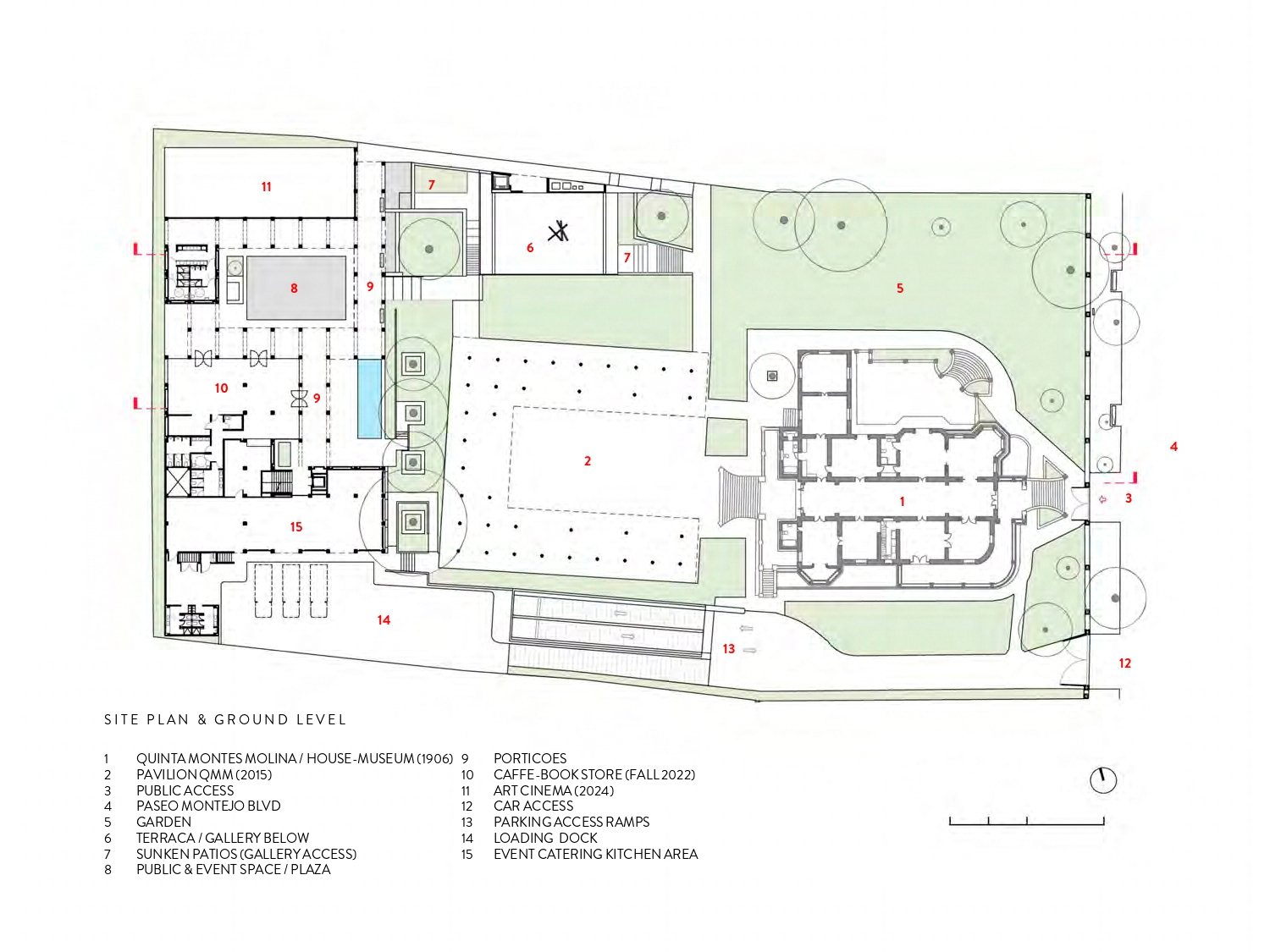
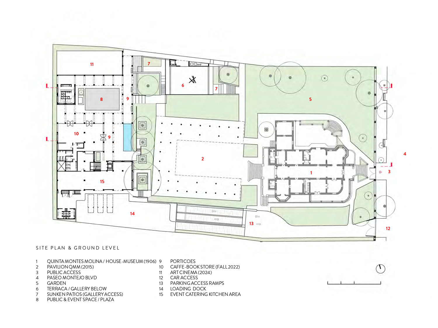
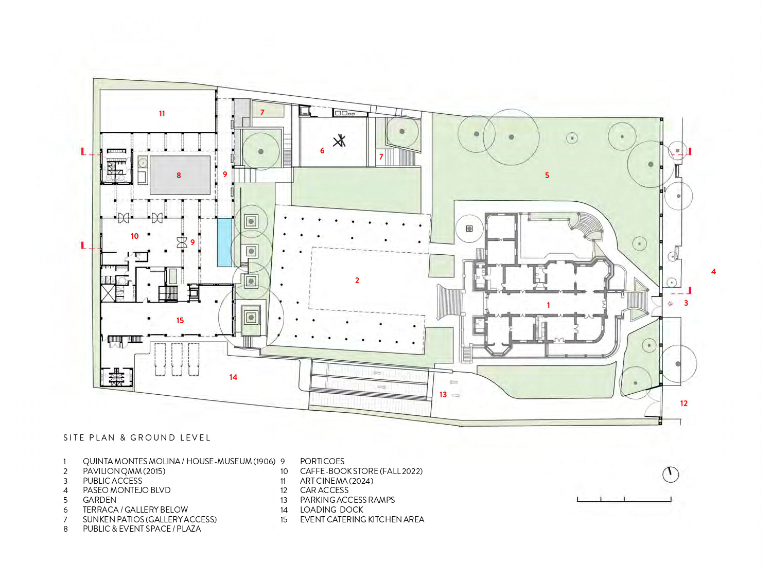
큐엠엠 문화센터는 1906년에 지어진 이래로 파세오 몬테조(Paseo Montejo) 지역의 건축 아이콘이었던 ‘퀸타 몬테스 몰리나 (Quinta Montes Molina)’의 공간 일부를 리뉴얼한 프로젝트다. 건축가는 사회적·문화적 행사를 유치할 수 있는 지역문화와 공동체의 중심 공간이 되는 문화센터 프로젝트를 제안했다. 정문으로부터 이어지는 오래된 정원수들의 너머, 기둥과 현관은 마치 집의 전망을 담는 프레임처럼 중앙의 안뜰을 감싸며 공공공간을 만들어낸다. 빛과 그림자를 투영할 수 있는 표면은 끊임없이 변화하는 자연과 소통하는 건축 언어를 선보인다. 건축에 사용된 모든 콘크리트는 지역 내 토착재료로 만들어졌으며, 콘크리트 소재를 노출하고 접합하는 등 다양한 표현을 시도하며 기존의 건물을 재해석했다.











건축가 MATERIA + Gustavo Carmona
위치 멕시코, 메리다
준공 2022
디자인팀 Karla Uribe, Gustavo Xoxotla, Luis Felipe Márquez, Mathías Henry, Raybel Cueva, Yaatzil Ceballos, Sandra Ciro, Teresa Berumen, Edgar Dzul, Magaly Morales, Miguel Ramírez, María Castelazo
프로젝트 매니저 Yamil Barbosa
프리패브 콘크리트 기술 Predecon
조명 Luca Salas
조경 Gustavo Carmona, Molino Lab, Jarde
주계약자 Opresa
사진작가 Jaime Navarro
해당 프로젝트는 건축문화 2023년 6월호(Vol. 505)에 게재되었습니다.
The project was published in the June, 2023 recent projects of the magazine(Vol. 505).
June 2023 : vol. 505
Contents : Records ‘Design Competition’, Seoul’s Dreams to Have a Global Urbanscape 서울시, ‘디자인 공모’ 첫 도입, 세계적인 도시경관을 꿈꾸다 <SKY PROJECT> Pavilion, Open to the Seoul <하늘소所>, 서울을 향
anc.masilwide.com
'Architecture Project > Cultural' 카테고리의 다른 글
| SKYLINE MANSION Experience Center (0) | 2023.09.27 |
|---|---|
| Madrid House of PEACEFUL PARENTHESIS (0) | 2023.09.21 |
| JIJIADUN VILLAGE CONFERENCE CENTER, KUNSHAN (0) | 2023.09.20 |
| SHRINE OF EVERYMAN (0) | 2023.09.19 |
| The Planning Exhibition Center of LiangjiangCollaborative Innovation Zone, Chongqing (0) | 2023.09.12 |
마실와이드 | 등록번호 : 서울, 아03630 | 등록일자 : 2015년 03월 11일 | 마실와이드 | 발행ㆍ편집인 : 김명규 | 청소년보호책임자 : 최지희 | 발행소 : 서울시 마포구 월드컵로8길 45-8 1층 | 발행일자 : 매일



