

DJI 스카이시티는 중국 선전의 남산 지구에 위치하며, 각각 44층과 40층의 두 개의 타워로 이루어져 있다. 하늘을 향한 고층의 두 건물은 시민용 드론과 창의적 카메라 기술 분야에서 세계적인 기술력을 자랑하는 DJI 회사의 ‘혁신의 중심’이자 창의적인 커뮤니티를 형성한다는 상징성을 나타낸다. 더불어 혁신적인 구조의 고층 빌딩 디자인을 통해 유네스코 도시인 선전 지역의 랜드마크를 형성한다.
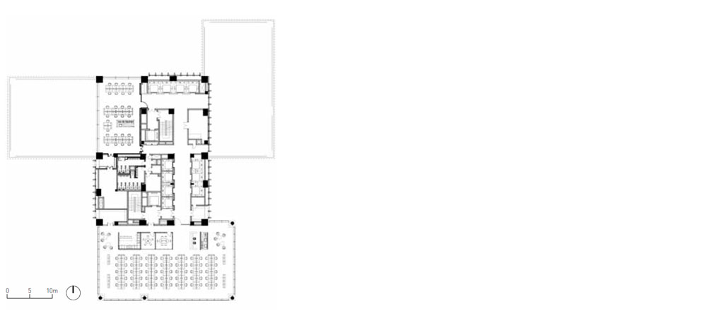
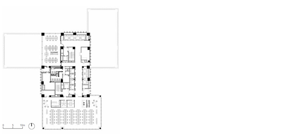
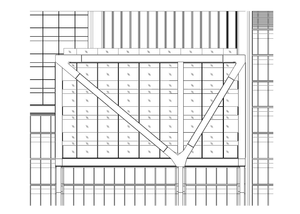
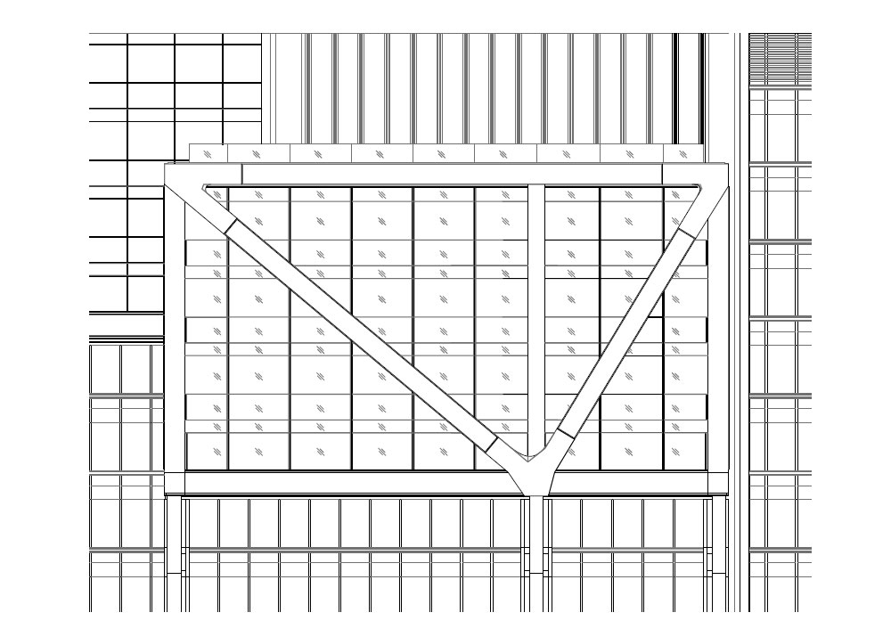
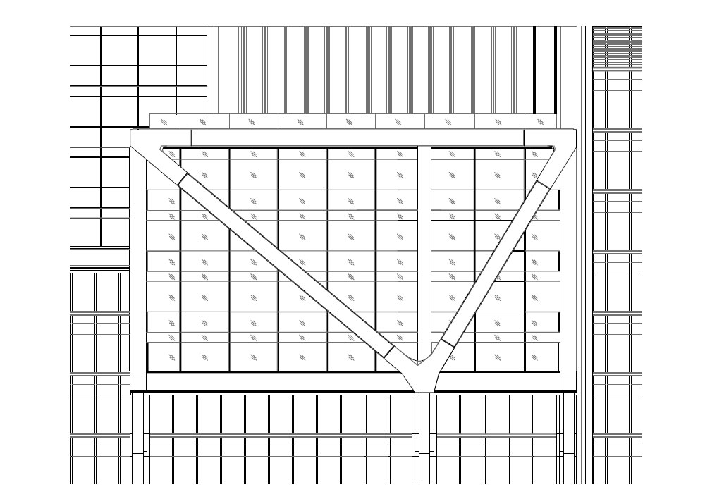
DJI 회사의 창업자 Frank Wang은 모든 직원의 성장과 복지에 큰 관심을 기울이며, 실용적이면서 기쁨을 줄 수 있는 작업 환경을 마련하고자 했다. 이러한 대표의 이념에 따라 DJI 스카이시티는 발전, 지혜, 가능성을 새로이 높이고 사회에 환원할 수 있는 솔루션에 대한 영감을 줄 수 있는 공간이 되었다. 건축가는 주요 연구 및 혁신 센터의 역할을 할 수 있도록 건물의 내부 공간을 설계하였다. 두 개의 타워는 각각 사무 공간과 연구 공간으로 사용되며 고도 105m, 길이 90m의 현수교로 연결되어 있다. 이는 두 타워의 볼륨 사이에서 우아한 연결고리를 만든다. 내부에는 사무실, 연구실, 시험 비행 공간, 직원 교육실 및 공공시설이 포함되어 있다. 각각 타워의 볼륨은 메가트러스 공법과 원형으로 프로파일 된 강철 서스펜션 로드로 이루어진 캔틸레버로 구성되어 독특한 느낌을 준다. 초고층 규모의 건물에서 비대칭 형태의 강철 서스펜션 구조를 혁신적으로 사용함으로써 기둥을 최소화였고 두 공간의 영역이 연속되도록 인상적인 외관을 만들어냈다. 또한, 기둥이 없는 높은 층고의 스튜디오를 형성하여 실내에서도 드론 제품을 개발하고 테스트할 수 있는 공간을 만들어냈다. 이러한 스튜디오 공간은 DJI 스카이시티의 독특한 정체성을 강조하는 V 형상의 트러스를 통해 외부에서 볼 수 있도록 표현되었다. 이는 도시의 스카이라인을 배경으로 타워에 두드러지는 정체성을 부여한다.
1층의 높이에서 띄워진 볼륨은 주변부의 경사진 녹색 정원으로부터 건물 바닥까지 녹지를 끌어들이는 역할을 한다. 또한, 1층은 지역 보건소 등의 공공시설을 갖추고 있어 모든 이들에게 열린 개방적인 공간으로 디자인되었다. 이로써 DJI 스카이시티가 도시 환경을 존경하고 지역 사회에 기여하는 역할을 하도록 한다. 타워의 각각 볼륨의 옥상에는 스카이가든이 마련되어 직원들이 활용할 수 있는 실외 공간을 제공한다.




















건축가 Foster + Partners
위치 중국, 선전
용도 업무시설, 상업시설, 복합시설
총면적 242,000㎡
대지면적 17,606㎡
바닥면적 12,409㎡
기준층면적 2,500㎡
규모 지하 4층, 지상 40층(T1), 지상 44층(T2)
시공기간 2017 - 2022
준공 2022
디자인팀 Grant Brooker, Young Wei Chiu, Takuji Hasegawa, Jolanda Oud, Edin Gicevic, Yunfu Yi, Andres Harris, Aquilino Fernandez Lopez, Pavan Birdi, Saman Ziaie, Ben Mowat, Julio Alberto Garcia Pizarro, Theodora Maria Moudatsou, Nina Haylock, Lindsay Duncan, Matt Morris, Alejandra Gavira Fernandez, Wolfgang Muller, Tulin Kori Candela, Carlo Pedata Maude Pinet
구조엔지니어 ARUP
기계엔지니어 ARUP
파사드엔지니어 ARUP
조명엔지니어 Foster + Partners; HDA
조경엔지니어 Foster + Partners; Wubei Group; Ueyakato Landscape
인테리어 Foster + Partners; Hongtao Decoration Associates
수직운송 컨설턴트 ARUP
그린빌딩 컨설턴트 Shenzhen Junye Building Technology
풍동설계 컨설턴트 Southwest Jiaotong University
철강구조건설 China Construction Science and Industry Corporation Ltd.
협업사 CAPOL
시공사 Steel, SRC and RC structure for main building structure
주계약자 Main Contractor
발주자 Dajiang Innovations
사진작가 Fangfang Tian, ACF, SFAP, Chao Zhang
해당 프로젝트는 건축문화 2023년 4월호(Vol. 503)에 게재되었습니다.
The project was published in the April, 2023 recent projects of the magazine(Vol. 503).
April 2023 : vol. 503
Contents : Records 데이비드 치퍼필드, 2023년 프리츠커상 수상 테크놀로지와 디지털로 설계된 강소도시를 만나다 : NEWS / COMPETITION / BOOKS : SKETCH How to Capture the Moment of LIFE / Damon Kowarsky 삶의 순간을 포
anc.masilwide.com
'Architecture Project > Office' 카테고리의 다른 글
| Phaidon Press HQ (0) | 2023.06.22 |
|---|---|
| LEGO Campus (0) | 2023.06.20 |
| vip.com Headquarter (0) | 2023.06.16 |
| Innovation Center for High-Performance Medical Devices (0) | 2023.06.15 |
| Samhyun HQ (0) | 2023.06.14 |
마실와이드 | 등록번호 : 서울, 아03630 | 등록일자 : 2015년 03월 11일 | 마실와이드 | 발행ㆍ편집인 : 김명규 | 청소년보호책임자 : 최지희 | 발행소 : 서울시 마포구 월드컵로8길 45-8 1층 | 발행일자 : 매일



