
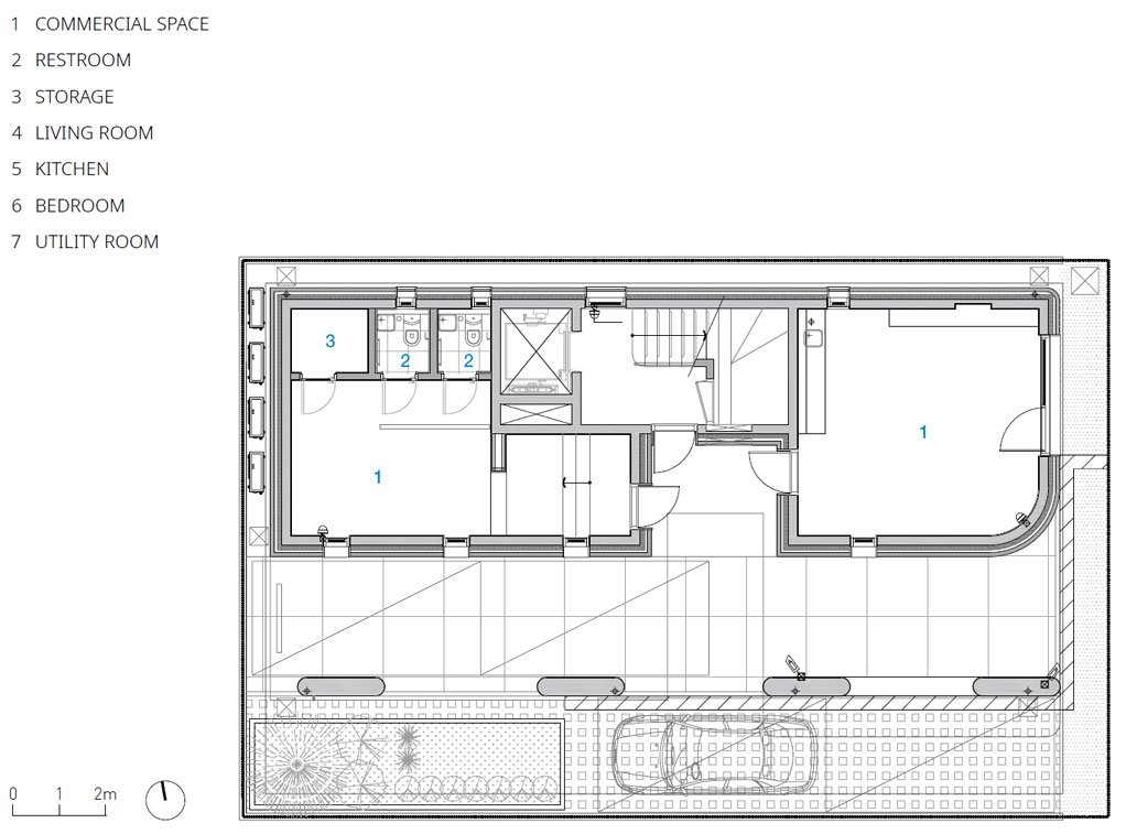
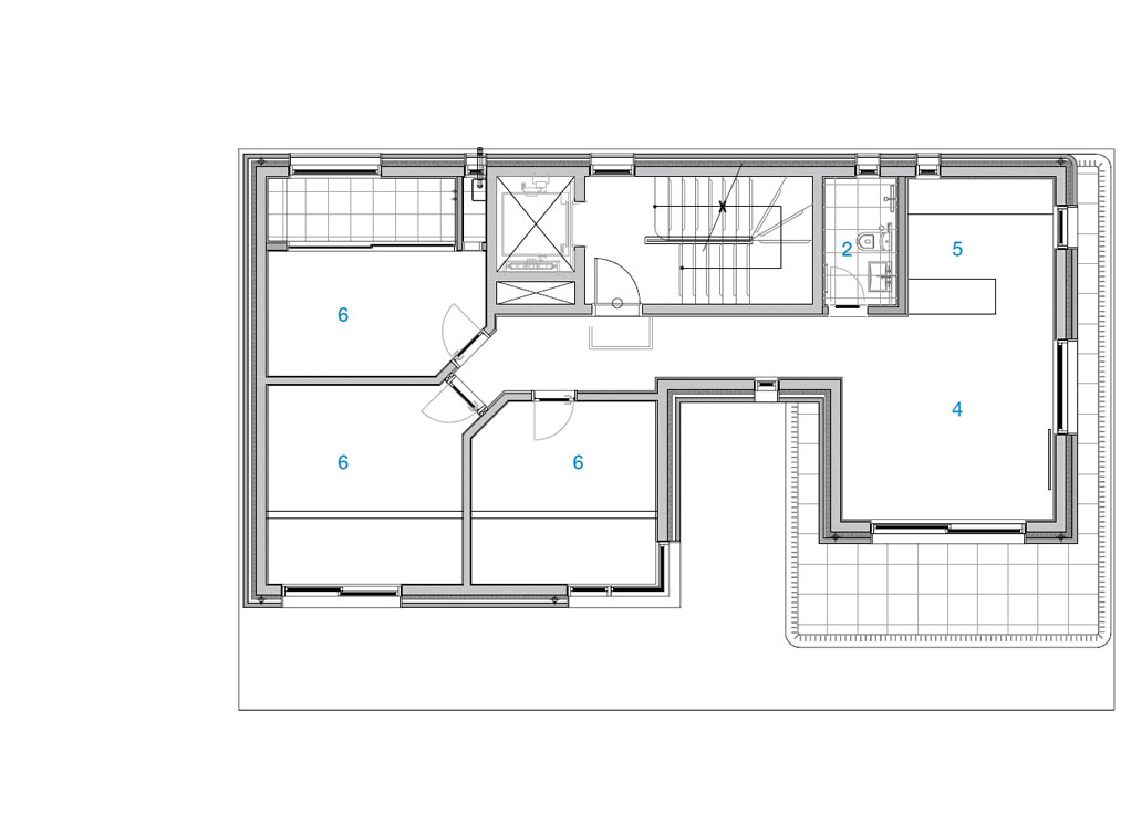
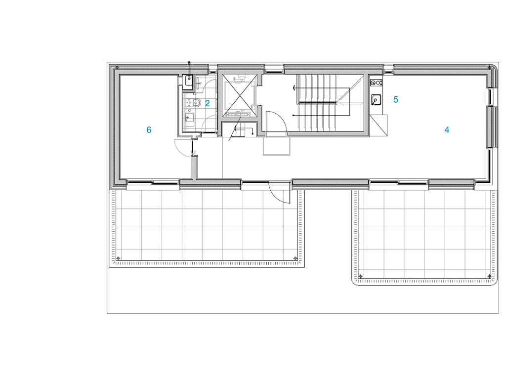
The H Building is a project design for a multi-family home within the development zone of Goyang City. The client intended to use this multi-family home as a second residence and office space, with most of the space dedicated to their private use. This intention was reflected throughout the entire project, from interior design to furniture coordination. Because of the nature of the development zone, the design incorporated restrictions related to south-facing sun exposure, and the exterior was constructed with ivory bricks to meet the client's firm requirements. To achieve a staggered masonry structure rather than employing conventional masonry, the entire module was adjusted. Bricks were cut to create curved surfaces on the building's corner sections, reflecting the intention to create a softer and milder appearance for the ivory masonry building. Curved treatments were also used for the main entrance columns on the first floor and the main mass on the facade to enhance the entry. Balconies and terraces throughout the building's external areas were designed with planter-like landscaping to allow residents to enjoy greenery both inside and outside the building. Through the harmonious integration of the H Building with other structures in the neighborhood, it is hoped that not only the client but also all neighboring residents can lead a peaceful life in the gentle atmosphere of the village.

에이치 빌딩은 고양시의 택지개발지구의 필지 안에 들어선 다가구주택이다. 건축주는 자신의 여가 주택 겸 사옥 공간으로 활용하고자 했다. 에이치 빌딩은 택지개발지구의 특성상 남중 일조권 사선에 대한 제한규제가 설계에 반영됐다. 건축주의 강한 요구조건에 따라 아이보리 벽돌이 외장 마감재로 결정됐다. 외벽은 일반 조적의 반타기 시공이 아닌 정쌓기 시공 방식이 사용됐는데, 이러한 공법을 적용하기 위해 다가구주택의 모듈을 조율할 필요가 있었다. 건물 모서리 부분의 조적 마감 부분은 곡면으로 처리하기 위해 벽돌을 커팅하여 시공했다. 이러한 곡면 처리는 아이보리색 건축물과 어울리는 부드럽고 온화한 분위기를 만들기 위함이다. 1층의 메인 진입부 기둥과 입면의 메인 매스도 곡면 처리했다. 곳곳의 발코니와 테라스라는 외부공간에 화분형 조경을 두어 건물 내외부에서 신록을 향유할 수 있다. 에이치 빌딩이 단지의 여러 건축물과 조화롭게 어울리며 건축주뿐만 아니라 이웃하는 모든 사람이 마을의 온화한 분위기 속에서 따스한 삶을 영위할 수 있길 바란다.













건축가 엘케이에스에이 건축사사무소
위치 경기도 고양시 덕양구 향동동 543-4
용도 휴게음식점, 단독주택(다가구주택)
대지면적 231.40㎡
건축면적 133.59㎡
연면적 382.75㎡
규모 지상 4층
건폐율 57.73%
용적률 165.41%
설계기간 2020. 10. – 2021. 3.
시공기간 2021. 5. – 2022. 6.
준공 2022. 6.
대표건축가 이근식
사진작가 구의진
해당 프로젝트는 건축문화 2023년 4월호(Vol. 503)에 게재되었습니다.
The project was published in the April, 2023 recent projects of the magazine(Vol. 503).
April 2023 : vol. 503
Contents : Records 데이비드 치퍼필드, 2023년 프리츠커상 수상 테크놀로지와 디지털로 설계된 강소도시를 만나다 : NEWS / COMPETITION / BOOKS : SKETCH How to Capture the Moment of LIFE / Damon Kowarsky 삶의 순간을 포
anc.masilwide.com
'Architecture Project > Multifamily' 카테고리의 다른 글
| Escenario Fudomae (0) | 2023.06.22 |
|---|---|
| SESTET (0) | 2023.06.20 |
| Daita Project (0) | 2023.05.31 |
| Arpartment 55 (0) | 2023.05.11 |
| RI-N 130-24 (0) | 2023.05.10 |
마실와이드 | 등록번호 : 서울, 아03630 | 등록일자 : 2015년 03월 11일 | 마실와이드 | 발행ㆍ편집인 : 김명규 | 청소년보호책임자 : 최지희 | 발행소 : 서울시 마포구 월드컵로8길 45-8 1층 | 발행일자 : 매일



