
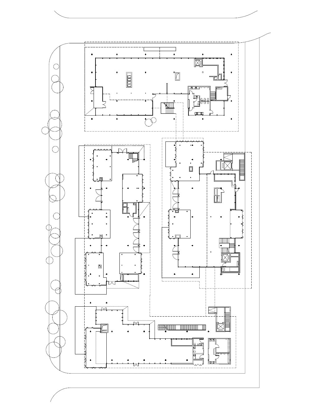
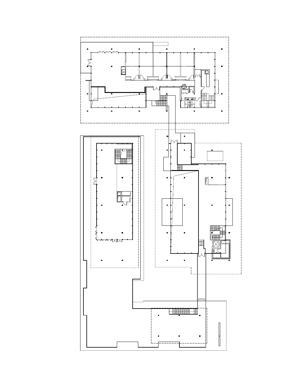
As the urban society gets developed, the concept of “community” has been referred often these days. The community has a meaning of the place where people live and make memories. Therefore, Pulo market is designed as a space with various convenience functions and community function which promotes mutual communication.
Loads are concentrated on wooden beams and steel columns to preserve the complete shape of the building. The three independently located blocks inside the street are scaled appropriately and extended toward the neighboring area. Through this, it forms a pleasant internal intersection to connect residential areas and parks and serves as an important transportation route leading to blocks where various functions are concentrated. The modern structure of spruce wood and steel frame shows lightweight structural characteristics and allows for numerous spaces. The collar beam and rafters of the inner roof are placed on the same plane, and the exposed wood structure shows structural beauty. In addition, by using a large amount of reusable wood, it is designed to be eco-friendly and can be built quickly in a simple modular manner.
Pulo Market is a building that has established future-oriented modules and variable systems in consideration of various needs of commercial facilities by type. The square space is formed of blocks corresponding to each commercial facility. Through this system, it will be able to accommodate the needs of various facilities such as cafes, snacks, bars, restaurants, and retail stores and meet the role of space for gatherings, dining out, and business.

최근 도시사회가 발전함에 따라 “커뮤니티”의 개념이 자주 언급되고 있다. 커뮤니티는 사람들이 거주하며 추억을 만드는 장소로서의 의미를 가진다. 이에 따라 플로 마켓은 다양한 생활편의 기능을 갖추고 상호 커뮤니케이션을 촉진하는 커뮤니티의 기능을 하는 공간으로 설계되었다.
목재로 된 빔과 강철 기둥에 하중이 집중되어 건물의 완전한 형태를 그대로 보전한다. 거리 내부에 독립적으로 자리 잡은 3개의 블록은 적당한 규모를 이루며 이웃 지역을 향해 확장된다. 이를 통해 쾌적한 내부의 교차로를 형성하여 주거지역과 공원을 연결하는 역할을 하며, 다양한 기능이 집약되어있는 블록으로 이어지는 중요한 교통로의 역할을 한다. 가문비나무 원목과 철골로 이루어진 현대적인 구조는 경량 구조적인 특성을 보이며, 다중의 공간을 무수히 제공할 수 있게 한다. 내부 지붕의 중도리와 서까래를 같은 평면에 배치하고 노출된 목재 구조는 구조적인 아름다움을 보여준다. 또한, 재사용이 가능한 다량의 목재를 사용함으로써 친환경적이며, 간단한 모듈식으로 빠르게 지을 수 있게 설계되었다.
플로 마켓은 유형별 상업 시설의 다양한 요구를 고려하여 미래지향적인 모듈과 가변 체계를 설정한 건축물이다. 광장 공간은 각각의 상업 시설에 해당하는 블록으로 형성된다. 이러한 체계를 통해 카페, 스낵, 바, 레스토랑, 소매점 등의 다양한 시설의 요구를 수용하며 모임, 외식, 비즈니스를 위한 공간의 역할을 충족할 수 있게 된다.















건축가 a9a rchitects
위치 Zhengzhou, China
용도 Commercial
연면적 4,200㎡
설계기간 2021. 7. - 12.
시공기간 2021. 11. - 2022. 10.
준공 2022. 10.
대표건축가 Jio Li
프로젝트건축가 Jio Li
디자인팀 Mingmin Yu, Chito Wang, One Chen, Xinrui Wang
협업 (Building BCD Interior Design) HEZI DESIGN / (Landscape design) H&A LANDSCAPE DESIGN / (Structural design) LuAnLu Partner Structure Consulting / (Visual identity design) ZSDC / (Signage design) a9a rchitects / (Architectural Lighting) bpi / (Interior lighting) studio illumine, Artluci lighting design / (
Curtainwall design) Zhengzhou Jinyige Decoration Engineering / (Electromechanical design) MING SHEN ARCHITECTURE DESIGN / (Construction drawing design) MING SHEN ARCHITECTURE DESIGN
시공 Shanghai Zhenyuan Timber Structures Engineering Co., Ltd.
발주자 THE IDEAL LAND
사진작가 Arch-Exist Photography, THE IDEAL LAND, TOPIA
해당 프로젝트는 건축문화 2023년 4월호(Vol. 503)에 게재되었습니다.
The project was published in the April, 2023 recent projects of the magazine(Vol. 503).
April 2023 : vol. 503
Contents : Records 데이비드 치퍼필드, 2023년 프리츠커상 수상 테크놀로지와 디지털로 설계된 강소도시를 만나다 : NEWS / COMPETITION / BOOKS : SKETCH How to Capture the Moment of LIFE / Damon Kowarsky 삶의 순간을 포
anc.masilwide.com
'Architecture Project > Commercial' 카테고리의 다른 글
| Novacolor Paint Showroom (0) | 2023.06.15 |
|---|---|
| HEYTEA Store at the Mixc, Jinan (0) | 2023.06.07 |
| The Quayside (0) | 2023.06.06 |
| Peak Tea (0) | 2023.05.26 |
| H Code (0) | 2023.05.23 |
마실와이드 | 등록번호 : 서울, 아03630 | 등록일자 : 2015년 03월 11일 | 마실와이드 | 발행ㆍ편집인 : 김명규 | 청소년보호책임자 : 최지희 | 발행소 : 서울시 마포구 월드컵로8길 45-8 1층 | 발행일자 : 매일



