
Gathering and Diversity
The building-to-land ratio of the existing buildings close to the maximum, the first floor (dementia relief center) that must be used during construction, and spaces that must be expanded as needed. Under these tight conditions, I thought about how to approach it to form functionally necessary spaces and have symbolism at the same time. The area of Masan Health Center has already been expanded once in the land, and this project is for the second expansion. Although it takes a short time, there is definitely each layer in the process, and these lights gather to form a single collection. This is similar to the existence of various architectural languages and elements in the city center. Various vocabulary words were gathered to form a new collection by creating a new space over the existing building. The collection and diversity represent the nature of this expansion project and at the same time resemble the appearance of the city.
Layout and Plan Planning
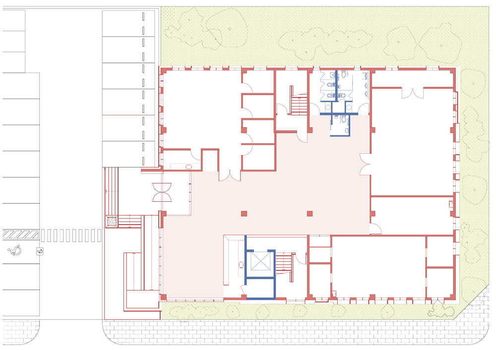
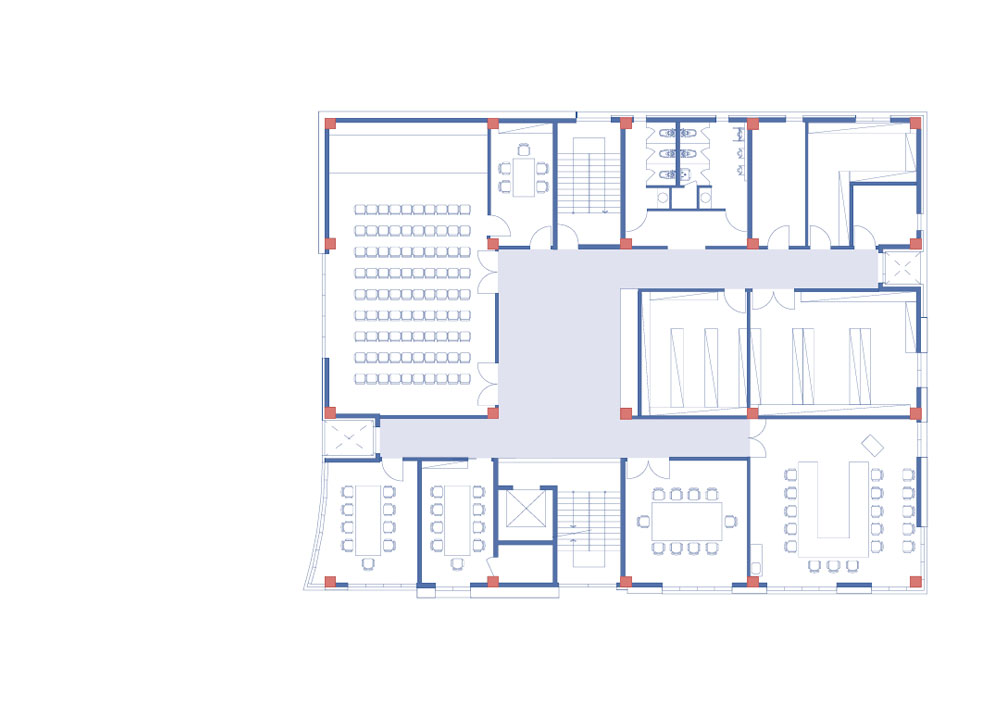
It was difficult to escape the area of the existing building on the horizon due to the building-to-land ratio of the existing building and the separation distance by the sunlight zone in the north-south direction. The dementia safety center on the first floor is not included in the area of expansion as it plans to maintain the same function even after the expansion. However, the elevator installation and the existing two stairs were used to enter the space of the extension of the second and third floors. On the second and third floors, which are vertical expansion areas, dedicated spaces are arranged around public spaces. The employee rest area facing the hall gives a sense of openness to the public space along with the external rest area, and when arriving on the second floor through stairs or elevators, it can notify the space distinct from the dementia safety center on the first floor and have a clear movement line on the horizontal. The third floor is divided into office areas, multipurpose rooms, and conference rooms around the hall. The location of the offices on the second and third floors is located in the same direction toward the southeast, planning a pleasant environment for the workplace, and the multipurpose room and conference room can have a visual relationship with the existing public health center.
Elevation and physical properties
The main exterior material was aluminum panel and external insulation system (stucco finish), which was the same as and contrary to the physical properties of existing buildings. The existing building and the expansion plan are divided on the elevation around the space of the aluminum panel ribbon, and the volume of the extension with cognition and symbolism expresses the concept of collection and diversity in texture through a stucco finish. In addition, it was planned to create a sense of depth on the elevation by utilizing the physical properties of materials and to create a new light in the city by newly interpreting the sense of depth on the surface of existing buildings.

집합과 다양성
최대치에 가까운 기존 건축물의 건폐율, 공사 중에도 사용해야 하는 1층 (치매안심센터), 그러면서도 필요에 의해 증축되어야 하는 공간들. 이러한 여유 없는 조건들 속에서 어떻게 접근하여야 기능적으로 필요한 공간들을 구성하며, 동시에 상징성을 가질 수 있을지 고민하였다. 마산보건소의 영역은 이미 대지 안에서 한차례 증축되었고, 본 프로젝트는 2번째 증축을 위한 프로젝트이다. 짧은 시간 일어난 과정이지만, 그 과정에는 분명 각각의 켜(layer)가 존재하고, 이러한 켜들이 모여 하나의 집합체를 이룬다. 이는 도심지 안에서 다양한 건축적 언어와 요소들이 존재하는 것과 유사하다. 이번 증축 작업은 기존 건축물 위로 새로운 띠를 만들어 다양한 어휘들이 모이고, 하나의 새로운 집합체를 형성하는 작업이었다. 집합과 다양성은 이번 증축프로젝트의 성격을 나타냄과 동시에 도시의 모습과도 닮아있다.
배치 및 평면계획
기존건축물의 건폐율과 정북 방향 일조권에 의한 이격거리 등으로 인해 수평 상에서 기존건축물의 영역을 벗어나기는 어려웠다. 1층의 치매안심센터는 증축 후에도 같은 기능을 유지할 계획이어서 증축의 영역에 포함되지 않는다. 새로 설치된 엘리베이터와 기존 2개의 계단을 이용하여 2, 3층 증축의 공간으로 진입할 수 있다. 수직증축 영역인 2, 3층은 공용공간을
중심으로 전용공간을 배치했다. 홀과 면해있는 직원 휴게공간은 외부 휴게공간과 함께 공용공간의 개방감을 느끼게 한다. 이는 계단이나 엘리베이터를 통해 2층에 도착했을 때, 1층 치매안심센터와는 구분되는 공간을 알림과 동시에, 수평 상에서 명확한 동선을 가진다. 3층은 홀을 중심으로 사무영역과 다목적실, 회의실의 영역으로 나누어진다. 2, 3층의 사무실의 위치는 동남향으로 같은 방향에 위치하여 업무공간의 쾌적한 환경을 계획하였고, 다목적실, 회의실은 기존 보건소와의 시각적 관계를 맺을 수 있다.
입면과 물성
주 외장재는 알루미늄패널과 외단열시스템(스터코마감)으로 기존건축물이 가진 물성과 동일하고 상반되는 재료를 선택했다. 알루미늄패널의 띠를 중심으로 기존건축물과 증축계획 부분이 입면 상 나뉘게 되고, 인지성과 상징성을 갖게 되는 증축부의 볼륨은 스터코마감을 통하여 집합과 다양성의 개념을 질감으로 표현했다. 또한 재료가 가지고 있는 물성을 활용하여 입면에 깊이감을 만들고, 기존건축물의 입면에서 나타나는 깊이감을 새롭게 해석함으로 인해 도시 속 새로운 켜를 만들어가도록 계획했다.











건축가 엠플레이건축 + 스테이건축사사무소
위치 경상남도 창원시 마산합포구 월영동북로 15
용도 업무시설
대지면적 2,976.2㎡
건축면적 1,487㎡ (증축 : 621.34㎡)
연면적 3,734.95㎡ (증축 : 1,196.73㎡)
규모 지상 3층 (2,3층 증축)
건폐율 49.98%
용적률 122.46%
설계기간 2021. 5 - 9
시공기간 2022. 1 - 8
준공 2022. 9
대표건축가 (엠플레이건축) 김태윤 / (스테이건축사사무소) 윤지훈
프로젝트건축가 (엠플레이건축) 이현주
구조엔지니어 에스엔에스구조
기계엔지니어 대명설비
전기엔지니어 에이스이엔지
시공 한라토건주식회사
발주자 창원시 마산보건소
사진작가 최진보
해당 프로젝트는 건축문화 2023년 4월호(Vol. 503)에 게재되었습니다.
The project was published in the April, 2023 recent projects of the magazine(Vol. 503).
April 2023 : vol. 503
Contents : Records 데이비드 치퍼필드, 2023년 프리츠커상 수상 테크놀로지와 디지털로 설계된 강소도시를 만나다 : NEWS / COMPETITION / BOOKS : SKETCH How to Capture the Moment of LIFE / Damon Kowarsky 삶의 순간을 포
anc.masilwide.com
'Architecture Project > Healthcare' 카테고리의 다른 글
| The Aluminum Mountain (0) | 2023.07.18 |
|---|---|
| Josaikai Dental Garden Clinic (0) | 2023.07.14 |
| Winship Cancer Institute (0) | 2023.05.15 |
| Heng Salon - A 29m2 Pop-up Scalp Care Salon (0) | 2023.04.12 |
| Natural Beauty Salon, Yushan Rd, Shanghai (0) | 2023.04.11 |
마실와이드 | 등록번호 : 서울, 아03630 | 등록일자 : 2015년 03월 11일 | 마실와이드 | 발행ㆍ편집인 : 김명규 | 청소년보호책임자 : 최지희 | 발행소 : 서울시 마포구 월드컵로8길 45-8 1층 | 발행일자 : 매일



